Verkocht

Mekkelholtsweg 11 7523 DB Enschede

102m2
Wonen
5
Kamers
123m2
Perceel
1935
Bouwjaar
Royale en moderne TWEE-ONDER-EEN-KAPWONING op toplocatie nabij Roombeek

Op een uitstekende locatie aan de rand van de geliefde wijk Roombeek, en op korte afstand van het centrum van Enschede, scholen, sportfaciliteiten, winkels en openbaar vervoer, ligt deze royale en gemoderniseerde twee-onder-een-kapwoning met aangebouwde stenen berging, terrasoverkapping en een zonnige tuin op het westen.

Indeling

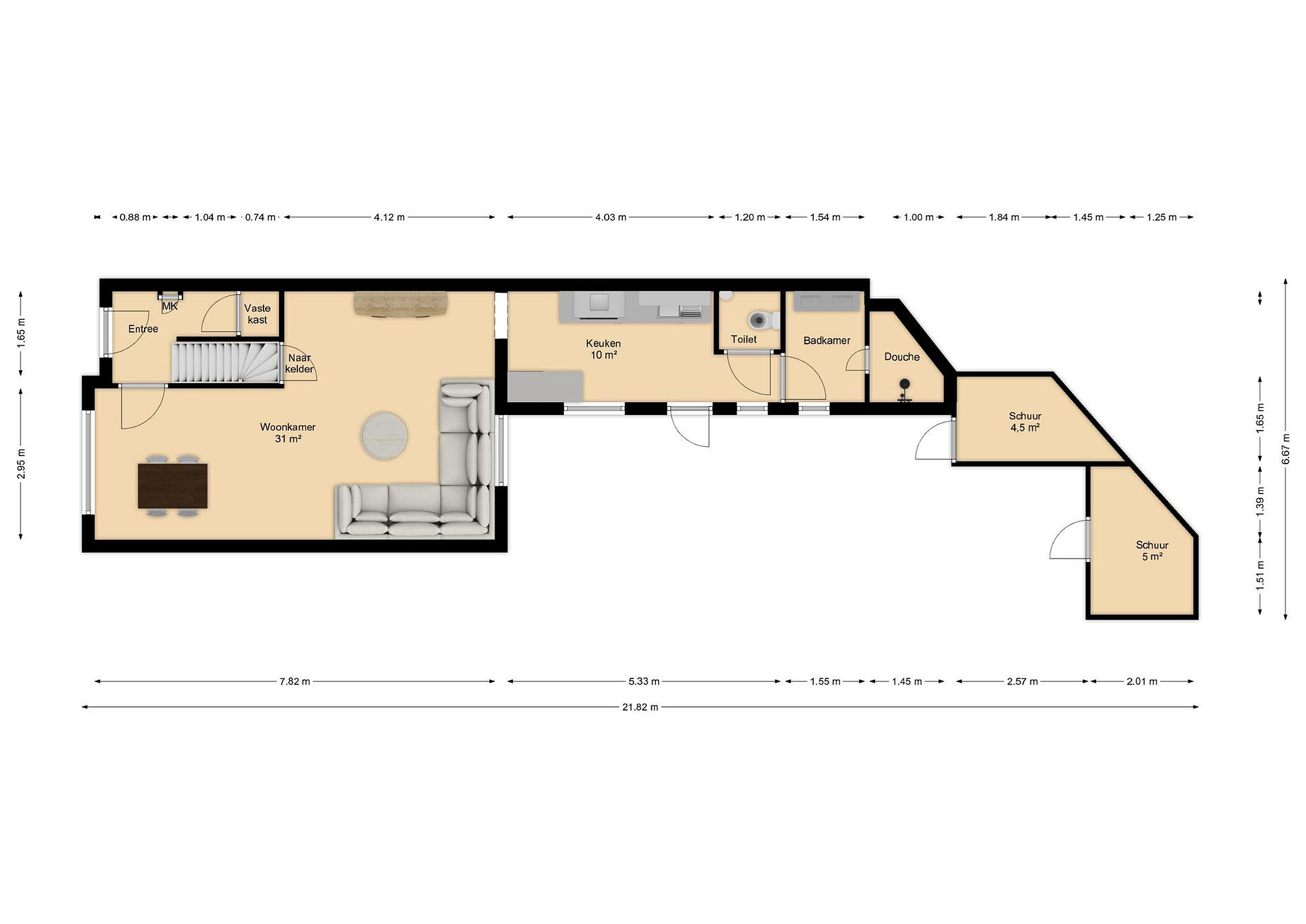
Begane grond
Entree, hal met meterkast en trapopgang. Royale en lichte woonkamer met vloerverwarming, Moderne keuken voorzien van inductiekookplaat, afzuigkap, koelkast en vaatwasser. Modern toilet en een luxe badkamer met inloopdouche en badmeubel.

Eerste verdieping
Overloop met toilet en drie slaapkamers, allen voorzien van een laminaatvloer. Deze verdieping beschikt over comfortabele airconditioning.

Tweede verdieping
Vaste trap naar de overloop met een ingedeelde verdieping voorzien van dakkapel, een hobbykamer en een extra slaapkamer.

Bijzonderheden

Geïsoleerde betonvloer woonkamer met vloerverwarming (begane grond)
Gevelisolatie en isolerende beglazing
Nieuwe badkamer en nieuw toilet
Airconditioning en rolluiken aanwezig
Zonnige tuin op het westen met berging en terrasoverkapping

Kenmerken

Bouwjaar: 1935
Perceeloppervlakte: 123 m2
Woonoppervlakte: 102 m2
Inhoud: 385 m3
Vraagprijs € 269.000,- k.k.

Aanvaarding in overleg.

Bij aankoop is een waarborgsom/bankgarantie van 10% van de koopprijs vereist.

Deze informatie is vrijblijvend en informatief. Aan eventuele onjuistheden kunnen geen rechten worden ontleend.

Lees meer

Verkoopgeschiedenis

Aangeboden sinds
29 januari 2026
Verkoopdatum
18 maart 2026
Looptijd
2 maanden

Kenmerken

Overdracht

Prijs per m2
€ 2.637
Aangeboden sinds
29 januari 2026
Status
Verkocht
Aanvaarding
In overleg

Bouw

Soort woonhuis
Eengezinswoning, twee-onder-een-kap woning
Soort bouw
Bestaande bouw
Bouwjaar
1935
Staat van onderhouden binnen
Goed
Staat van onderhouden buiten
Goed

Oppervlakte en inhoud

Perceeloppervlakte
123 m2
Inhoud van de woning
385 m3
Oppervlakte gebouwgebonden buitenruimten
16 m2
Oppervlakte overige inpandige ruimten
13 m2

Indeling

Aantal kamers
5
Aantal slaapkamers
4
Aantal woonlagen
3
Voorzieningen

Buitenruimte

Balkon
Nee
Schuur/berging
Nee

Maandlasten berekenen

De maandlasten voor je woning bestaan uit meer dan alleen de hypotheeklasten. Hieronder vind je een overzicht van de bijkomende kosten en lasten. Zo weet je precies wat je huis per maand gaat kosten. En met de handige vergelijkers kun je ook nog eens snel de beste deals sluiten!

  • Kaart
  • Streetview