Onder optie

Broekheurnerweg 28 7513 ES Enschede

127m2
Wonen
4
Kamers
148m2
Perceel
2025
Bouwjaar
Op een mooie locatie aan de Broekheurnerweg in Enschede, op loopafstand van het bruisende stadscentrum, wordt momenteel een stijlvol dubbelblok gerealiseerd. De bouw is reeds gestart, wat betekent dat u binnenkort al kunt genieten van uw gloednieuwe woning. Deze energiezuinige woningen zijn volledig geïsoleerd en bieden daarmee optimaal wooncomfort. Met een moderne uitstraling, ruime achtertuin en parkeergelegenheid op eigen terrein is dit de ideale plek voor gezinnen of starters. Wonen met alle stedelijke voorzieningen binnen handbereik? Grijp nu uw kans!

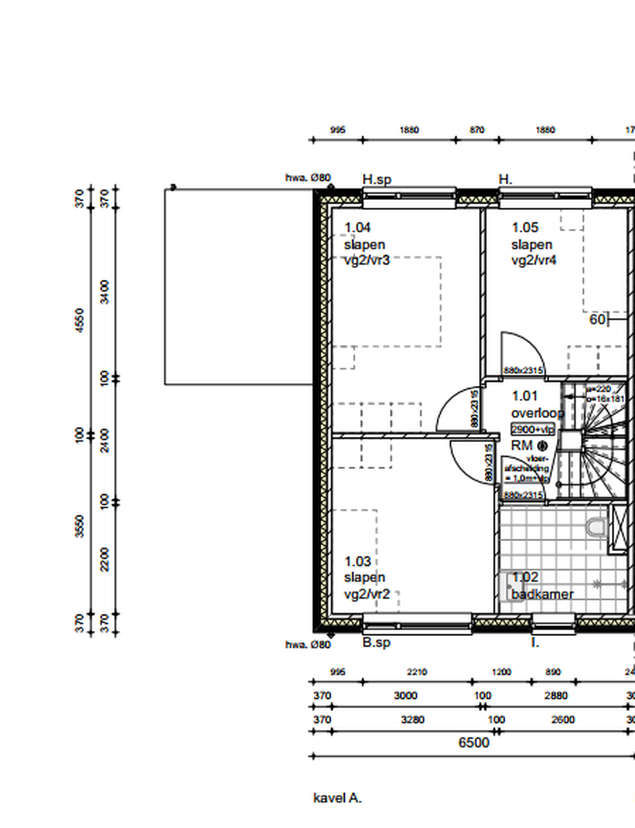
Indeling:
- Begane grond: entree, toilet, open keuken en een woonkamer aan de achterzijde met openslaande deuren naar de tuin.
- 1e verdieping: overloop, 3 slaapkamers, badkamer voorzien van inloopdouche, wastafel en hangend toilet.
- 2de verdieping: open ruimte

De woning beschikt over een eigen parkeerplaats.

- Planning: De bouw is inmiddels gestart. Waarbij de planning is om nog in 2025 op te leveren.
- Oplevering: Exclusief keuken, tuinaanleg en bestrating.
Lees meer

Kenmerken

Overdracht

Prijs per m2
€ 4.449
Aangeboden sinds
25 april 2025
Status
Beschikbaar
Aanvaarding
In overleg

Bouw

Soort woonhuis
Eengezinswoning, twee-onder-een-kap woning
Soort bouw
Nieuwbouw
Bouwjaar
2025
Soort dak
Zadeldak
Staat van onderhouden binnen
Uitstekend
Staat van onderhouden buiten
Uitstekend

Oppervlakte en inhoud

Perceeloppervlakte
148 m2
Inhoud van de woning
509 m3
Oppervlakte overige inpandige ruimten
10 m2

Indeling

Aantal kamers
4
Aantal slaapkamers
3
Aantal woonlagen
3
Voorzieningen
Schuur/berging

Buitenruimte

Balkon
Nee
Schuur/berging
Ja

Maandlasten berekenen

De maandlasten voor je woning bestaan uit meer dan alleen de hypotheeklasten. Hieronder vind je een overzicht van de bijkomende kosten en lasten. Zo weet je precies wat je huis per maand gaat kosten. En met de handige vergelijkers kun je ook nog eens snel de beste deals sluiten!

  • Kaart
  • Streetview