Gerard Brandtweg 91 1602 LZ Enkhuizen

105m2
Wonen
4
Kamers
125m2
Perceel
1978
Bouwjaar
Lichte woning op een hoek gelegen met fijne tuin op het westen.

Starters opgelet!

Ben jij op zoek naar een fijne lichte woning met verrassend veel ruimte, een moderne afwerking èn een zonnige tuin? Dan is Gerard Brandtweg 91 in Enkhuizen absoluut een woning die je gezien moet hebben! Bel gerust voor een bezichtiging via 0229-278424— we nemen graag de tijd om je alles te laten zien.
De vraagprijs is een bieden vanaf prijs.

Bijzonderheden:
- Energielabel B
- Moderne keuken (2016)
- Moderne badkamer (2022)
- 3 ruime slaapkamers
- Grotendeels HRr++ beglazing (2025)
- 10 zonnepanelen (2021)
- Kruipruimte isolatie (2020)

Indeling:
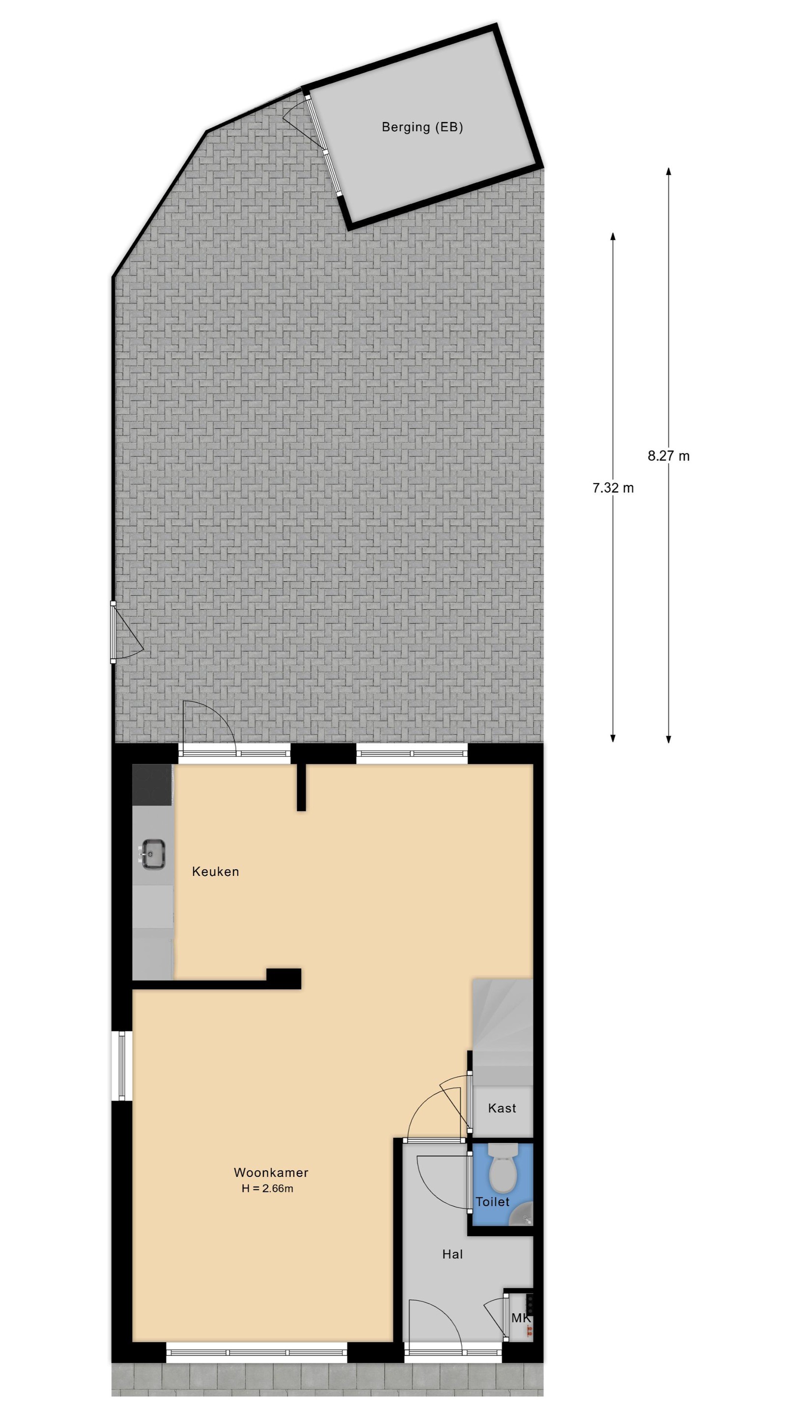
Je komt binnen in de hal met toilet en meterkast. Vanuit hier stap je de sfeervolle woonkamer binnen, die dankzij het grote zijraam heerlijk licht is. De ruimte is praktisch ingedeeld met een gezellige zithoek aan de straatzijde en een eetgedeelte met open keuken aan de tuinzijde.
De keuken in een rechte opstelling is voorzien van diverse inbouwapparatuur zoals een inductie kookplaat, afzuigkap, vaatwasser, koelkast en een combi oven-magnetron. Er is bij het eetgedeelte voldoende ruimte voor de eettafel.
Trap naar eerste verdieping.

Eerste verdieping:
Op de eerste verdieping tref je aan een ruime overloop, waar je met gemak nog een werkruimte zou kunnen realiseren en een tweetal goed bemeten slaapkamers. De moderne badkamer is ingericht met een 2de toilet, een inloopdouche, een wastafelmeubel en handdoekradiator.

Tweede verdieping:
Via de vaste trap kom je op de tweede verdieping. Hier is een ruime voorzolder met opstelling voor de wasmachine/droger, de cv-opstelling en de omvormer van de zonnepanelen. Verder vind je hier een royale 3de slaapkamer met zij-raam en een groot dakraam.

Het buiten:
De zonnige achtertuin ligt op het westen, waardoor je al vanaf de middag tot in de avond van de zon kunt genieten. Via de handige zijpoort heb je direct toegang tot de tuin — perfect voor de fiets of als je snel naar de berging achterin de tuin wilt.

De verkoper vertelt:
"De afgelopen jaren heb ik met veel liefde van deze woning aan de Gerard Brandtweg 91 mijn thuis gemaakt. Ik laat met gemengde gevoelens mijn eerste huis achter: supertrots op wat het is geworden, maar ook met een beetje pijn in het hart. Ik kijk er enorm naar uit om samen te gaan wonen met mijn vriend, maar dit huis zal altijd een bijzondere plek voor me blijven. Ik heb hier met ontzettend veel plezier gewoond — en ik weet zeker dat de volgende bewoner hier net zo fijn zal wonen als ik.".

Gemeente Enkhuizen:
De woning ligt op een gunstige locatie waardoor je met een paar minuten op de fiets het station, attractiepark Sprookjeswonderland, recreatie bad Enkhuizerzand, het strand, het Zuiderzee museum, de jachthavens maar natuurlijk ook de gezellige binnenstad van Enkhuizen kunt bereiken. Het winkelcentrum Koperwiekplein ligt dichtbij. In de omgeving zijn meerdere basisscholen, een middelbaar voortgezet onderwijs (RSG) en de nodige sportvoorzieningen. In een paar autominuten rijd je op de dijk naar Lelystad of naar de N505 richting de A7.

Lees meer

Kenmerken

Overdracht

Prijs per m2
€ 3.089
Aangeboden sinds
6 november 2025
Status
Beschikbaar
Aanvaarding
In overleg

Bouw

Soort woonhuis
Eengezinswoning, eind woning
Soort bouw
Bestaande bouw
Bouwjaar
1978
Staat van onderhouden binnen
Goed
Staat van onderhouden buiten
Goed

Oppervlakte en inhoud

Perceeloppervlakte
125 m2
Inhoud van de woning
381 m3
Oppervlakte externe bergruimte
5 m2

Indeling

Aantal kamers
4
Aantal slaapkamers
3
Aantal woonlagen
3
Voorzieningen
Tuin, schuur/berging, dakraam

Buitenruimte

Balkon
Nee
Schuur/berging
Ja

Maandlasten berekenen

De maandlasten voor je woning bestaan uit meer dan alleen de hypotheeklasten. Hieronder vind je een overzicht van de bijkomende kosten en lasten. Zo weet je precies wat je huis per maand gaat kosten. En met de handige vergelijkers kun je ook nog eens snel de beste deals sluiten!

  • Kaart
  • Streetview