Verkocht OV

Lekstraat 48 8303 LT Emmeloord

127m2
Wonen
5
Kamers
162m2
Perceel
1975
Bouwjaar
Vraagprijs: € 310.000,- k.k.
LET OP: Dit is een richtprijs

Ruime instapklare tussenwoning gelegen in Emmeloord-West!

Dit is een veelzijdige woning voor zowel starters als jonge gezinnen. Deze tussenwoning met eigen oprit is gelegen op 162 m2 eigen grond in een rustige, kindvriendelijke wijk. Het huis biedt voldoende ruimte waar je jaren met plezier van kunt genieten.

Hier woon je rustig, maar toch met alles binnen handbereik: supermarkt, snackbar, apotheek, huisarts, scholen, kinderopvang en park om de hoek. Het centrum van Emmeloord met winkels, scholen en sportvoorzieningen op korte fietsafstand. Verder op korte afstand van de op en afrit van de snelweg A6 en de N50.

Wat deze woning zo aantrekkelijk maakt:
- Ruime doorzon woonkamer met pvc vloer
- Moderne half open keuken met diverse inbouwapparatuur (2019)
- Vier ruime slaapkamers (waarvan één op de tweede verdieping)
- Betegelde badkamer met douche/ligbad en wastafelmeubel (2021)
- Zonnige achtertuin op het zuiden met overkapping aan de achtergevel en een tuinhuis incl. een overkapping en een achterom. Ruime stenen berging in de voortuin plus een eigen oprit voor de auto.
- Kindvriendelijke wijk met veel groen en scholen in de buurt
- Energielabel A+, volledig voorzien van vloerisolatie (EPS parels HR++) en dubbel glas (grotendeels HR+ 2017), 10 zonnepanelen (2024), hybride warmtepomp (2025)

INDELING
Begane grond: Entree/ hal met vernieuwd toilet, vernieuwde meterkast en trapopgang.
Ruime woonkamer met half open keuken. Volledig voorzien van mooie pvc vloer. De keuken is voorzien van spoelbak, inductiekookplaat, rvs afzuigkap, koelkast, combimagnetron en een losse vaatwasser.

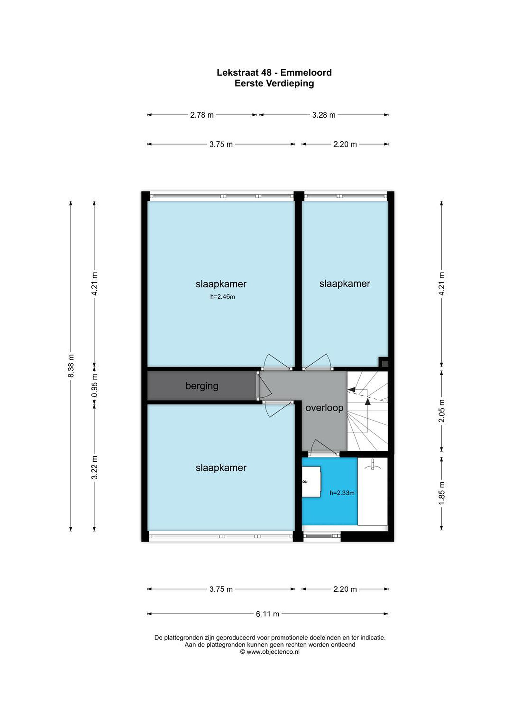
Eerste verdieping: Overloop met een inloopkast. Drie ruime slaapkamers voorzien van vinyl vloer. Betegelde badkamer voorzien van ligbad/douche, wastafelmeubel.

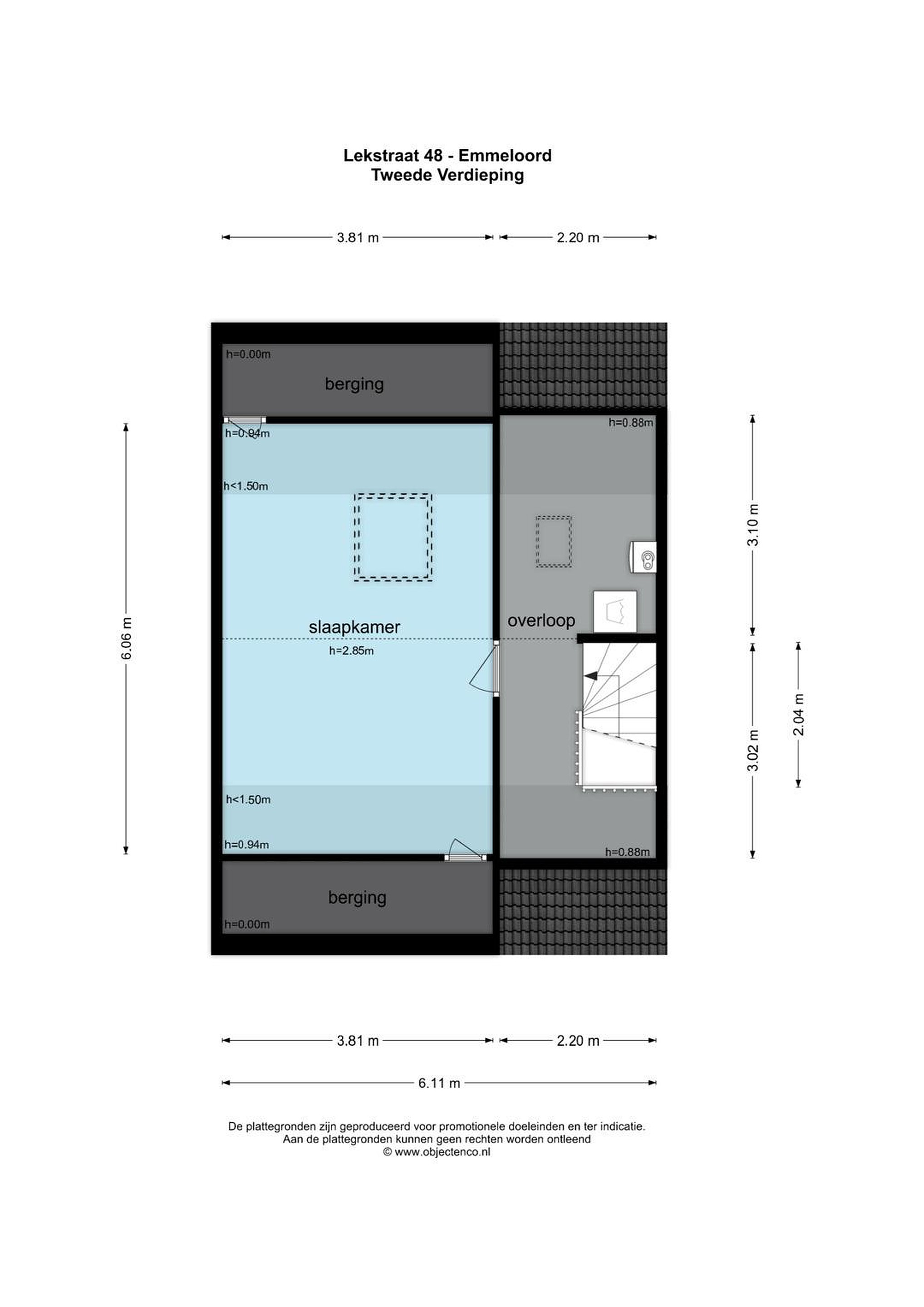
Tweede verdieping: Vaste trap naar voorzolder met de opstelling van de cv ketel (Remeha), mechanische ventilatie unit en de hybride warmtepomp (Intergas Xtend Hybride/bouwjaar 2025). Witgoedaansluiting en veel bergruimte en een dakraam. Een vierde slaapkamer met groot dakraam en bergruimte achter de knieschotten. Deze verdieping is voorzien van een nette laminaatvloer.

Buiten
Fraai aangelegde voortuin met een eigen oprit voor de auto een praktische stenen fietsenberging. De achtertuin met terras, gazon en beplanting. Vrijstaande houten berging met elektra en een overkapping. Aan de achtergevel is ook een houten overkapping aanwezig met verlichting en er is een buitenkraan.

Kenmerken in het kort:
- Bouwjaar 1975
- Perceeloppervlak 162 m2
- Woonoppervlak 127,20 m2
- Gebouwgebonden buitenruimte 17,60 m2
- Externe bergruimte 13,9 m2
- Inhoud 448,16 m3
- Officieel meetrapport aanwezig
- Energielabel A+

Plan snel een bezichtiging en ontdek zelf het comfort, de ruimte en de fijne ligging van deze woning!

Emmeloord
Emmeloord fungeert als “Polderhoofdstad” van de Noordoostpolder en heeft daardoor een zeer uitgebreid voorzieningenaanbod. U vindt hier alle denkbare middelbare scholen, een uitgebreid winkelaanbod, bioscoop, theater, medische voorzieningen, diverse horecagelegenheden, sportfaciliteiten en kerken.
Voor de ontspanning maakt u een wandeling in het Emmelerbos of gaat u iets verder weg naar het Werelderfgoed Schokland, natuurpark Netl, golfclub Emmeloord of recreatiegebied Wellerwaard.
Emmeloord is gunstig gelegen nabij de A6 en N50. Amsterdam, Utrecht, Leeuwarden en Groningen zijn binnen een uur met de auto bereikbaar. Zwolle, Kampen en Lelystad binnen een half uur. In het centrum is een busstation met lijndiensten in alle richtingen.

Aan deze presentatie kunnen geen rechten worden ontleend.
Toelichtingsclausule NEN2580. De Meetinstructie is gebaseerd op de NEN2580. De Meetinstructie is bedoeld om een meer eenduidige manier van meten toe te passen voor het geven van een indicatie van de gebruiksoppervlakte. De Meetinstructie sluit verschillen in meetuitkomsten niet volledig uit, door bijvoorbeeld interpretatieverschillen, afrondingen of beperkingen bij het uitvoeren van de meting.

Lees meer

Kenmerken

Overdracht

Prijs per m2
€ 2.437
Aangeboden sinds
25 september 2025
Status
Verkocht onder voorbehoud
Aanvaarding
In overleg

Bouw

Soort woonhuis
Eengezinswoning, tussen woning
Soort bouw
Bestaande bouw
Bouwjaar
1975
Staat van onderhouden binnen
Goed
Staat van onderhouden buiten
Goed

Oppervlakte en inhoud

Perceeloppervlakte
162 m2
Inhoud van de woning
448 m3
Oppervlakte externe bergruimte
13 m2
Oppervlakte gebouwgebonden buitenruimten
17 m2

Indeling

Aantal kamers
5
Aantal slaapkamers
4
Aantal woonlagen
3
Voorzieningen

Buitenruimte

Balkon
Nee
Schuur/berging
Nee

Maandlasten berekenen

De maandlasten voor je woning bestaan uit meer dan alleen de hypotheeklasten. Hieronder vind je een overzicht van de bijkomende kosten en lasten. Zo weet je precies wat je huis per maand gaat kosten. En met de handige vergelijkers kun je ook nog eens snel de beste deals sluiten!

  • Kaart
  • Streetview