Kampereiland 12 8302 KV Emmeloord

122m2
Wonen
5
Kamers
328m2
Perceel
1990
Bouwjaar
Ruime twee-onder-een-kapwoning met eigen oprit en royale achtertuin in de geliefde wijk De Erven!

Op zoek naar een ruime gezinswoning met energielabel B in een kindvriendelijke wijk? Dan is deze fijne twee-onder-een-kapwoning aan Kampereiland 12 in Emmeloord zeker het bekijken waard! Deze woning, gebouwd in 1990, beschikt over een woonoppervlakte van 122,5 m2, een perceeloppervlakte van 328 m2 en een royale gebouwgebonden buitenruimte van 41,10 m2. De woning biedt volop ruimte, zowel binnen als buiten, en beschikt over een eigen oprit, een ruime berging en een zonnige achtertuin met overkapping.
Begane grond
Via de eigen oprit bereikt u de entree van de woning. In de hal bevinden zich de meterkast, het toilet, de trapopgang naar de eerste verdieping en een binnendeur naar de berging. Vanuit de hal loopt u door naar de lichte doorzonwoonkamer, die dankzij de grote raampartijen veel daglicht biedt. De open keuken bevindt zich aan de achterzijde en is voorzien van een achterdeur die toegang geeft tot de overkapping en de fraai aangelegde achtertuin. Aansluitend aan de overkapping bevindt zich een extra deur naar de berging en een aangebouwde houten schuur, ideaal voor opslag of als hobbyruimte.

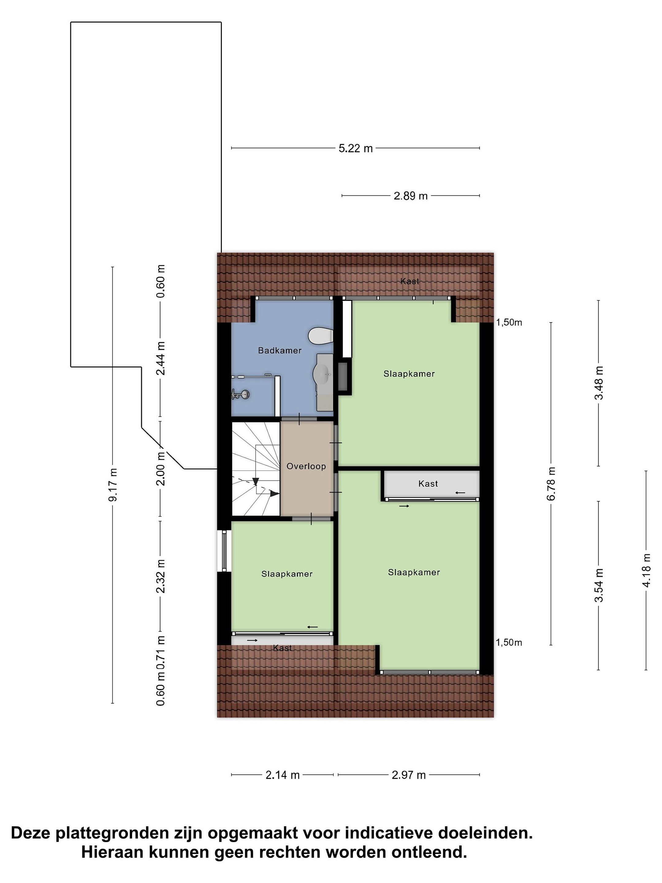
Eerste verdieping
Op de eerste verdieping leidt de overloop naar drie ruime slaapkamers en de badkamer. De badkamer is modern en praktisch ingericht met een inloopdouche, toilet en wastafel. Alle slaapkamers zijn voorzien van veel opbergruimte.

Tweede verdieping
Via een vaste trap bereikt u de tweede verdieping. Hier treft u een extra vierde slaapkamer met een wastafel en knieschotten voor extra bergruimte. Op de overloop bevindt zich de cv-ketel en is er via een luik nog extra opslagruimte beschikbaar

Details
Pluspunten van deze woning
✔ Ruime twee-onder-een-kapwoning met een woonoppervlakte van 122,5 m2
✔ Gelegen in de gewilde wijk De Erven in Emmeloord
✔ Energielabel B – duurzaam en energiezuinig
✔ Ruime achtertuin met overkapping en een extra houten schuur
✔ Eigen oprit en inpandige berging
✔ Vier slaapkamers, ideaal voor gezinnen
✔ Perceeloppervlakte van 328 m2

Gelegen in de populaire wijk De Erven, biedt deze woning een fijne woonomgeving met veel groen, speelvoorzieningen en diverse voorzieningen in de buurt. Interesse? Neem snel contact op voor een bezichtiging!

Lees meer

Kenmerken

Overdracht

Prijs per m2
€ 3.755
Aangeboden sinds
5 november 2025
Status
Beschikbaar
Aanvaarding
In overleg

Bouw

Soort woonhuis
Eengezinswoning, twee-onder-een-kap woning
Soort bouw
Bestaande bouw
Bouwjaar
1990
Soort dak
Zadeldak
Staat van onderhouden binnen
Goed
Staat van onderhouden buiten
Goed

Oppervlakte en inhoud

Perceeloppervlakte
328 m2
Inhoud van de woning
439 m3
Oppervlakte gebouwgebonden buitenruimten
41 m2

Indeling

Aantal kamers
5
Aantal slaapkamers
4
Aantal woonlagen
3
Voorzieningen
Tuin, schuur/berging

Buitenruimte

Balkon
Nee
Schuur/berging
Ja

Maandlasten berekenen

De maandlasten voor je woning bestaan uit meer dan alleen de hypotheeklasten. Hieronder vind je een overzicht van de bijkomende kosten en lasten. Zo weet je precies wat je huis per maand gaat kosten. En met de handige vergelijkers kun je ook nog eens snel de beste deals sluiten!

  • Kaart
  • Streetview