Verkocht OV

Van Echtenswijk 10 7916 TD Elim

131m2
Wonen
4
Kamers
18000m2
Perceel
1929
Bouwjaar
Landelijk wonen op een prachtig perceel van bijna twee hectare, in het buitengebied van Elim is het mogelijk!

Heerlijk landelijk gelegen tussen de dorpen Elim, Slagharen en Hollandscheveld staat deze vrijstaande woning uit 1929. De woning is grotendeels voorzien van dubbele beglazing en de gevels zijn deels geïsoleerd, het energielabel is F.

Ondanks dat deze mooie woning direct bewoonbaar is ligt een upgrade van o.a. keuken en sanitair voor de hand. De algehele onderhoudsstaat waaronder een deel van de dakconstructie verdient aandacht en er is sprake van enkele verzakkingen van de begane grond vloer. Bij de prijsstelling is meegewogen dat koper de ruimte heeft om zelf de gewenste aanpassingen te doen.

Het perceel is uitermate geschikt voor het houden van paarden en/of ander (klein)vee.
De totale perceelgrootte bedraagt 18.000 m2. Het woonhuis heeft een woonbestemming, de rest van het perceel heeft een agrarische bestemming.
Begane grond
Entree/hal met toilet; Woonkamer; Keuken; Bijkeuken; Hal; Badkamer en slaapkamer.

Eerste verdieping
Overloop en twee ruime slaapkamers.

Tuin
Rondom de woning ligt de prachtig aangelegde tuin, de Oost- en Westzijde van het perceel zijn ingericht als grasland.

Details
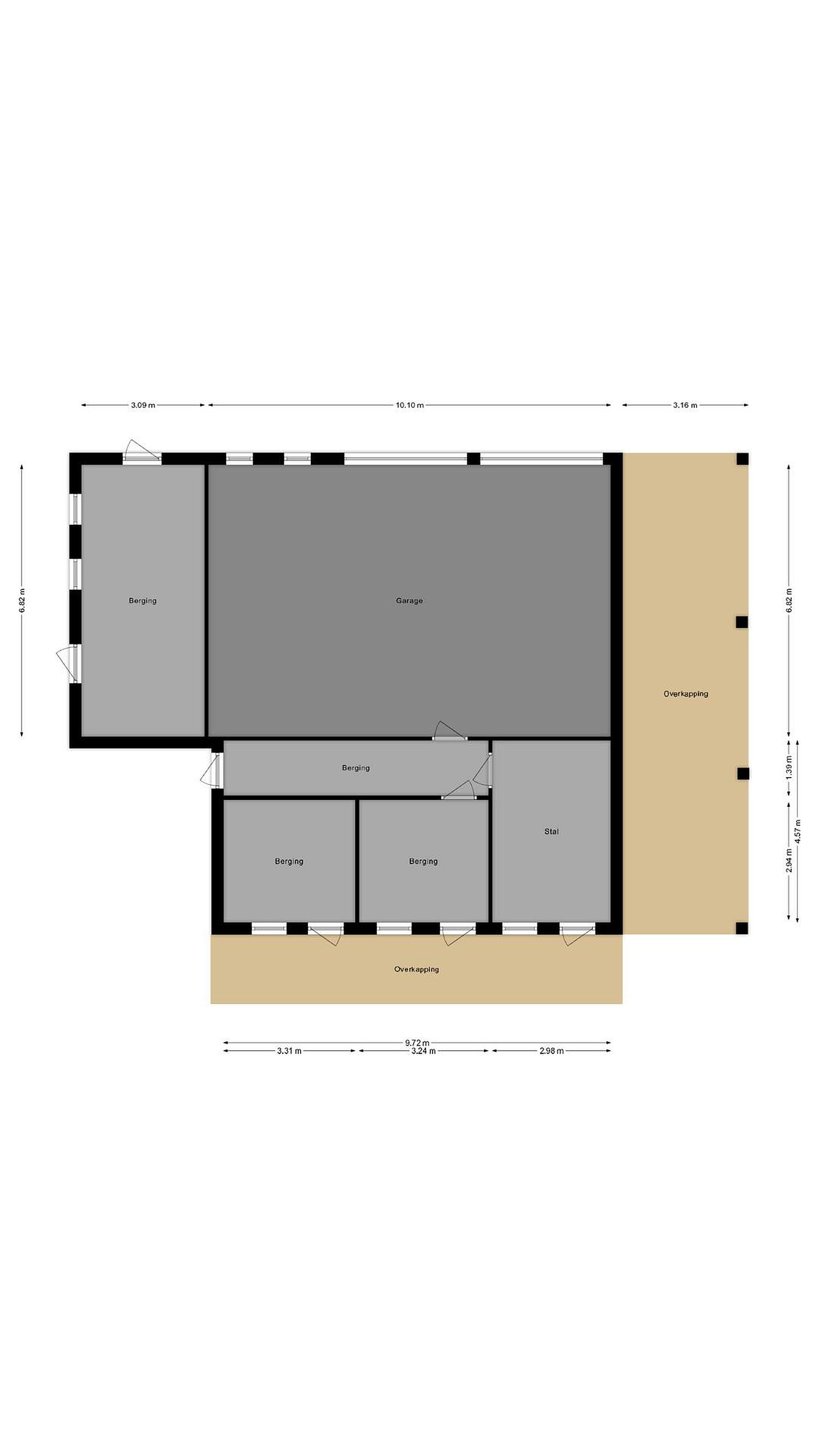
Er zijn een dubbele garage met berging, een ruime stal met 3 boxen en een overkapping aanwezig.

- Woonoppervlak 131,1 m2 en 633 m3 inhoud
- Energielabel F
- Totale perceelgrootte 18.000 m2

Deze woning op een heerlijke locatie is zeker een bezichtiging waard, neem gerust contact op om een afspraak in te plannen.

Lees meer

Kenmerken

Overdracht

Prijs per m2
€ 3.966
Aangeboden sinds
29 augustus 2025
Status
Verkocht onder voorbehoud
Aanvaarding
In overleg

Bouw

Soort woonhuis
Eengezinswoning, vrijstaande woning
Soort bouw
Bestaande bouw
Bouwjaar
1929
Soort dak
Dwarskap
Staat van onderhouden binnen
Goed
Staat van onderhouden buiten
Redelijk

Oppervlakte en inhoud

Perceeloppervlakte
18000 m2
Inhoud van de woning
633 m3
Oppervlakte externe bergruimte
137 m2

Indeling

Aantal kamers
4
Aantal slaapkamers
3
Aantal woonlagen
2
Voorzieningen
Tuin, glasvezel

Buitenruimte

Balkon
Nee
Schuur/berging
Nee

Maandlasten berekenen

De maandlasten voor je woning bestaan uit meer dan alleen de hypotheeklasten. Hieronder vind je een overzicht van de bijkomende kosten en lasten. Zo weet je precies wat je huis per maand gaat kosten. En met de handige vergelijkers kun je ook nog eens snel de beste deals sluiten!

  • Kaart
  • Streetview