Verkocht

Van Vorststraat 37 5622 CV Eindhoven

146m2
Wonen
7
Kamers
345m2
Perceel
1961
Bouwjaar
Ben je op zoek naar een halfvrijstaande woning (hoek van blok van drie woningen) die je nog helemaal naar eigen wens kunt inrichten dan is dit je kans! Centraal gelegen nabij tal van voorzieningen in de recent vernieuwde Van Vorststraat staat deze riante gezinswoning (147 m2 woonoppervlak!) met maar liefst 6 slaapkamers, achtertuin op het zonnige zuidwesten en een ruime garage annex berging (27 m2) op een perceel van maar liefst 345 m2. Kortom komt dat zien!!
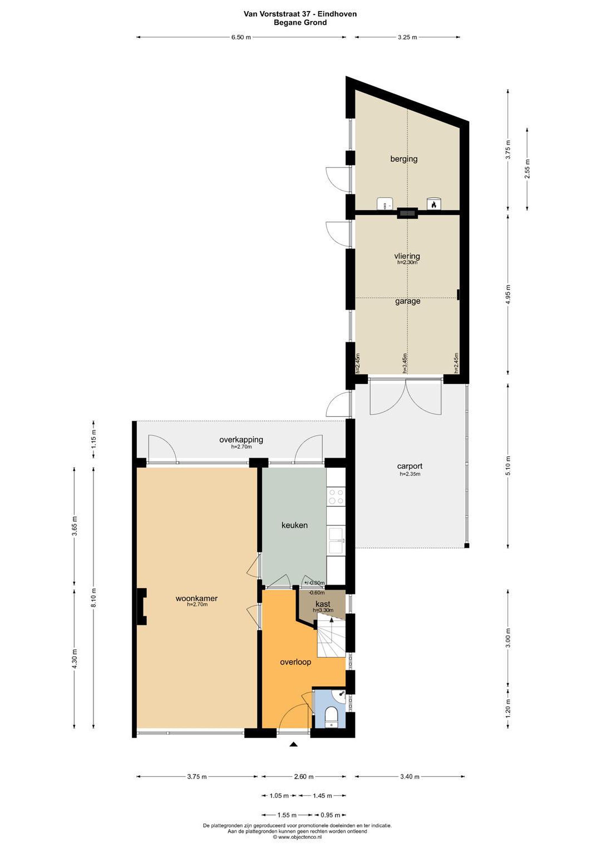
Begane grond
Brede straat met voldoende parkeermogelijkheden. Circa 10 m diepe verzorgde voortuin, entree van de woning, grote ontvangsthal met natuurstenen vloer en trapopgang naar de verdieping, toilet met fontein, ruime doorzon woonkamer met open haard, parket vloer en deur naar terras en achtertuin. Door de grote raampartijen krijgt het geheel een optimale lichtinval. De ruime, dichte keuken is voorzien van een keuken in vaste wandopstelling met diverse boven- en onderkasten en een rvs-werkblad met dubbele roestvrijstalen spoelbak, een gasfornuis met oven en afzuigkap. De keuken heeft een betegelde vloer en biedt toegang tot een grote verdiepte kelderkast en de achtertuin. Deze aangelegde achtertuin is gesitueerd op het zuidwesten en is voorzien van een terras met sierbestrating en bloemborders en is deels overdekt door het bovengelegen balkon. Door de vaste beplanting in de borders en de schansmuur aan de achterzijde biedt deze achtertuin een optimale privacy. Tevens is in de achtertuin aan de zijde van de oprit een grote verwarmde stenen berging met elektra en opstelling van de recent vernieuwde HR cv-ketel gesitueerd. Aansluitend treft men de garage aan welke is uitgerust met verlichting, elektra en de beschikking heeft over een separate groepenkast. De garage is toegankelijk middels de riante oprit met carport. Zodoende is het mogelijk diverse voertuigen al dan niet overdekt te stallen.

Eerste verdieping
met inbouwkasten, vaste wastafel en deur naar balkon alsmede nog een derde slaapkamer met grote inbouwkast en deur naar balkon. De grotendeels betegelde badkamer is voorzien van een inloopdouche met douchewand, een tweede toilet en een vaste wastafel met spiegel en planchet. De slaapkamers aan de achterzijde zijn tevens voorzien van rolluiken.

Tweede verdieping
Middels vaste trap bereikbare ruime overloop met opstelling recent vernieuwde elektrische boiler, een drietal slaapkamers, allen voorzien van een dakkapel en twee slaapkamers hebben de beschikking over een vaste wastafel en één beschikt er nog over een inbouwkast.

Tuin
Ruime voor- en achtertuin v.v. sierbestrating en beplanting alsmede een riante garage annex berging.

Details
- Het betreft hier een zeer ruime halfvrijstaande woning, hoek van een blok van drie;

- Een perceel van maar liefst 345m2;

- De woonoppervlakte bedraagt 147m2;

- De woning heeft een extra grote garage annex berging in de achtertuin (ca. 27m2);

- Riante oprit met carport;

- De woning is grotendeels voorzien van isolatieglas en de spouw is nageïsoleerd;

- De HR c.v. ketel dateert van 2022 en de elektrische boiler is van 2023;

- De woning telt maar liefst zes ruime slaapvertrekken en diverse praktische inbouwkasten;

- De woning is gunstig gelegen in de wijk “Barrier” nabij de Dr. Berlagelaan. In de onmiddellijke omgeving van het Catharinaziekenhuis, het Winkelcentrum Woensel, de Woenselse Markt en sportaccommodaties;

- Goede ligging t.o.v. diverse uitvalswegen;

- Recent bouwkundig rapport ter beschikking;

- Een woning die je beslist van binnen gezien moet hebben! De ruimte zal je verrassen;

Lees meer

Verkoopgeschiedenis

Aangeboden sinds
8 september 2025
Verkoopdatum
30 september 2025
Looptijd
21 dagen

Kenmerken

Overdracht

Prijs per m2
€ 3.333
Aangeboden sinds
8 september 2025
Status
Verkocht
Aanvaarding
In overleg

Bouw

Soort woonhuis
Eengezinswoning, hoek woning
Soort bouw
Bestaande bouw
Bouwjaar
1961
Staat van onderhouden binnen
Goed
Staat van onderhouden buiten
Goed

Oppervlakte en inhoud

Perceeloppervlakte
345 m2
Inhoud van de woning
522 m3
Oppervlakte externe bergruimte
26 m2
Oppervlakte gebouwgebonden buitenruimten
32 m2

Indeling

Aantal kamers
7
Aantal slaapkamers
6
Aantal woonlagen
3
Voorzieningen
Tuin, schuur/berging, open haard

Buitenruimte

Balkon
Nee
Schuur/berging
Ja

Maandlasten berekenen

De maandlasten voor je woning bestaan uit meer dan alleen de hypotheeklasten. Hieronder vind je een overzicht van de bijkomende kosten en lasten. Zo weet je precies wat je huis per maand gaat kosten. En met de handige vergelijkers kun je ook nog eens snel de beste deals sluiten!

  • Kaart
  • Streetview