Verkocht

Zijpendaal 5 6715 KL Ede

106m2
Wonen
4
Kamers
265m2
Perceel
1985
Bouwjaar
Zoekt u een halfvrijstaande woning met garage en parkeren op eigen terrein, waar u zélf nog uw stempel op kunt drukken? Een huis dat misschien wat liefde nodig heeft, maar waar u jarenlang met uw gezin met plezier kunt wonen? Dan is deze leuke woning absoluut het bekijken waard!

Deze woning ligt op een rustige en kindvriendelijke locatie in de woonwijk Veldhuizen B. In de directe omgeving vindt u meerdere basisscholen, speeltuinen, openbaar vervoer (bus), winkelcentrum Bellestein, sportpark Inschoten en natuurlijk het Veldhuizerbos. Alles wat een gezin nodig heeft, ligt hier letterlijk om de hoek.

Indeling
Begane grond:
U komt binnen via de entree en hal met trapopgang, toilet met fontein en toegang tot de woonkamer.
De woonkamer is speels ingedeeld in een L-vorm en beschikt over een houtkachel – een fijne plek voor gezellige avonden met het gezin.
De open keuken is uitgevoerd in een L-opstelling en voorzien van diverse inbouwapparatuur. Vanuit de keuken heeft u directe toegang tot de achtertuin, ideaal voor spelende kinderen of een zomerse barbecue.

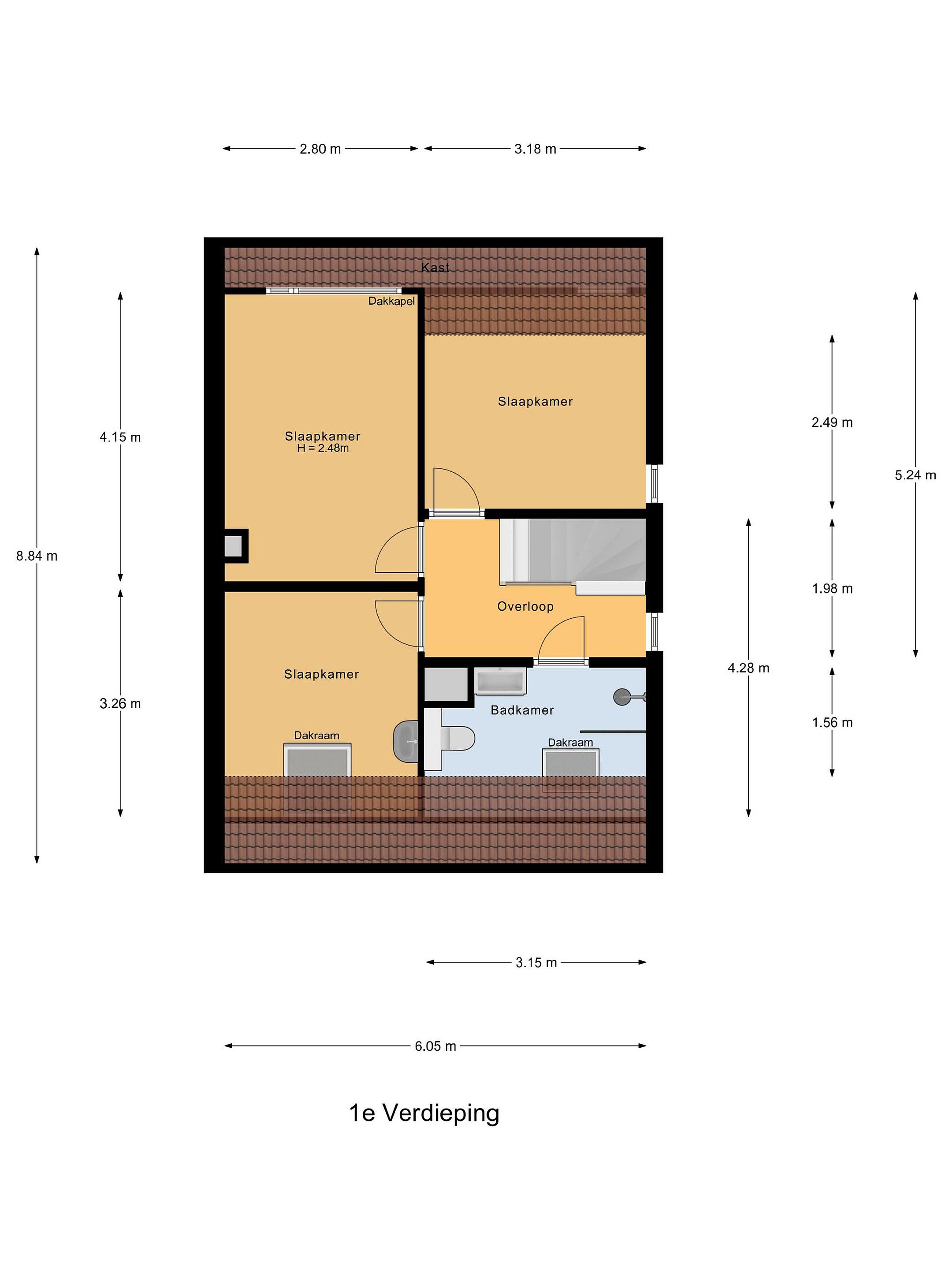
Eerste verdieping:
Op de overloop vindt u toegang tot drie prima slaapkamers.
De badkamer is medio 2021 gerealiseerd en modern uitgevoerd met een wastafel met meubel, tweede toilet, badkamermeubel, douchecabine, radiator en een dakraam voor daglicht.

Tweede verdieping:
Via een vaste trap bereikt u de zolderverdieping. Deze is momenteel één open ruimte met de aansluiting voor de C.V.-installatie en een groot dakraam.
Indien gewenst is hier eenvoudig een vierde (slaap)kamer te realiseren – ideaal als extra slaapkamer, werkruimte of hobbykamer.

Garage:
Via de eigen oprit bereikt u de stenen garage van ca. 6,4 x 3 meter, voorzien van elektra en een deur naar de achtertuin. Perfect voor fietsen, opslag of hobby’s.

Tuin:
De achtertuin is gelegen op het zuidoosten en meet ca. 9,5 meter diep en 6,5 meter breed. Een fijne plek om te genieten van de ochtend- en middagzon, terwijl de kinderen lekker buiten spelen.

Bijzonderheden:
- Woonoppervlakte: ca. 106 m2
- Perceeloppervlakte: ca. 265 m2
- Inhoud: ca. 436 m3
- Bouwjaar: 1985
- Energielabel: B
- Volledig voorzien van dubbel-/HR-glas
- C.V.-installatie: Vaillant, bouwjaar 2025 (eigendom)
- Mechanische ventilatie

Kortom: een fijne gezinswoning op een uitstekende locatie, met volop potentie om er helemaal uw eigen thuis van te maken. Zin om te komen kijken en de mogelijkheden zelf te ervaren? Dan laten we u deze woning graag zien!

Let op: In de koopakte zal een niet-zelfbewoningsclausule worden opgenomen. Dit betekent dat de verkoper de woning niet zelf heeft bewoond en geen informatie kan verstrekken over het gebruik. Uiteraard krijgt de koper de mogelijkheid tot het laten uitvoeren van een bouwkundige keuring.

Lees meer

Verkoopgeschiedenis

Aangeboden sinds
29 januari 2026
Verkoopdatum
30 maart 2026
Looptijd
2 maanden

Kenmerken

Overdracht

Prijs per m2
€ 4.712
Aangeboden sinds
29 januari 2026
Status
Verkocht
Aanvaarding
Direct

Bouw

Soort woonhuis
Eengezinswoning, twee-onder-een-kap woning
Soort bouw
Bestaande bouw
Bouwjaar
1985
Soort dak
Zadeldak
Staat van onderhouden binnen
Goed
Staat van onderhouden buiten
Goed

Oppervlakte en inhoud

Perceeloppervlakte
265 m2
Inhoud van de woning
436 m3
Oppervlakte gebouwgebonden buitenruimten
8 m2
Oppervlakte overige inpandige ruimten
19 m2

Indeling

Aantal kamers
4
Aantal slaapkamers
3
Aantal woonlagen
3
Voorzieningen
Tuin, ventilatie, rookkanaal, dakraam

Buitenruimte

Balkon
Nee
Schuur/berging
Nee

Maandlasten berekenen

De maandlasten voor je woning bestaan uit meer dan alleen de hypotheeklasten. Hieronder vind je een overzicht van de bijkomende kosten en lasten. Zo weet je precies wat je huis per maand gaat kosten. En met de handige vergelijkers kun je ook nog eens snel de beste deals sluiten!

  • Kaart
  • Streetview