Verkocht

Asakkerweg 29 6718 ZE Ede

139m2
Wonen
6
Kamers
380m2
Perceel
2012
Bouwjaar
Karakteristieke woning in jaren ’30 stijl, gelegen op een toplocatie omringd door natuur aan de rand van de Edese bossen, de Ginkelse Heide en met het levendige centrum van Ede op loopafstand. De woning beschikt over een energielabel A+++, een moderne keuken en badkamer, vijf slaapkamers, een sfeervolle achtertuin op het zuiden met een zeer royale afsluitbare veranda, glazen overkapping, extra berging en een oprit voor 2 auto’s en een ruime geschakelde garage. Deze uitstekend onderhouden eigentijdse woning is ruim, licht en heeft een doordachte indeling.

Duurzaamheid en comfort
Energiezuinig met een comfortabel binnenklimaat en een lage energierekening! De woning heeft een energielabel A+++ en is volledig geïsoleerd. Verder beschikt de woning over hardhoutenkozijnen met HR++ beglazing, een hybride verwarmingssysteem (CV + warmtepomp uit 2024) en 15 zonnepanelen (nog onder garantie). Hiermee kunt u als koper vaak profiteren van gunstige hypotheekvoorwaarden.

Begane grond
Bij binnenkomst treft u een ruime hal met meterkast (9 groepen, 2 aardlekschakelaars en 3-fase), de toiletruimte en trapopgang. De L-vormige open keuken aan de voorzijde is uitgerust met moderne apparatuur, waaronder een 4-zone inductiekookplaat, afzuigkap, combimagnetron, vaatwasser en een stijlvolle Amerikaanse koelkast. Onder de trap is een praktische extra opbergruimte gecreëerd. De tuingerichte woonkamer is heerlijk licht dankzij de grote raampartijen en zijramen met op maat gemaakte luxe shutters voor een optimale daglichtregulering. De vloer is afgewerkt met hoogwaardig click-pvc van Therdex met een geïntegreerde ondervloer voor extra comfort. Via de glazen overkapping bereikt u droog de geschakelde garage, waar zich een bijkeuken bevindt met dubbele wasbak, wasmachine en droger.

Eerste verdieping
De overloop geeft toegang tot drie slaapkamers en een complete badkamer. De ouderslaapkamer is licht en ruim, met ramen aan beide zijden die ook uitgerust zijn met sfeervolle shutters. De complete badkamer is voorzien van een wastafelmeubel, doucheruimte met hand- en regendouche, een hoekligbad, tweede toilet, designradiator, mechanische ventilatie en een raam voor aangename daglichttoetreding.

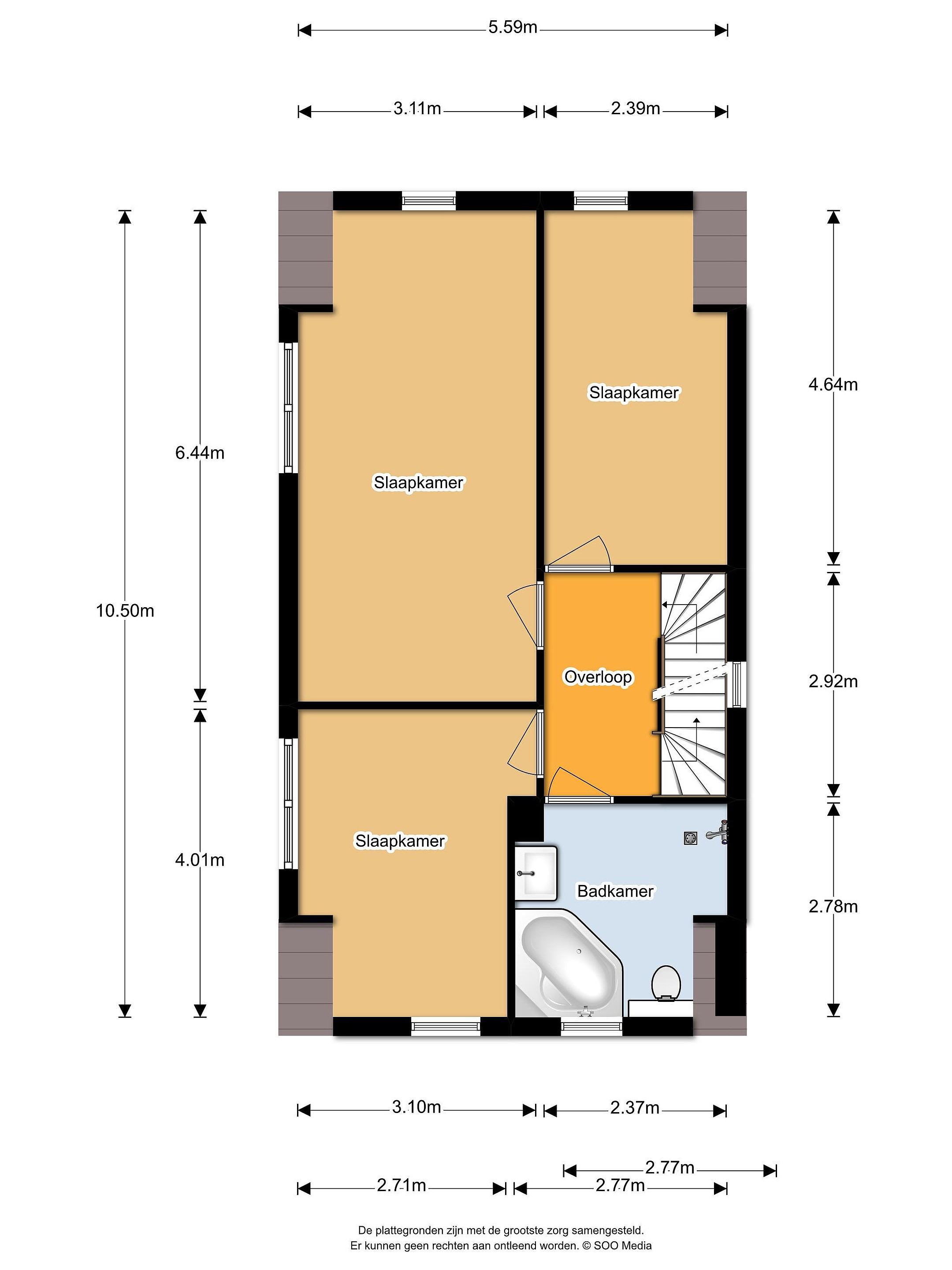
Tweede verdieping
Op zolder bevinden zich twee knusse slaapkamers die eventueel ook als hobby- of werkkamer gebruikt kunnen worden. Tussen deze kamers bevindt zich een grote multifunctionele overloop. Alle ruimtes zijn voorzien van een aluminium plafond met inbouwverlichting. Bij de slaapkamers is hierin ook infraroodverwarming opgenomen. Boven de slaapkamers biedt een vliering extra bergruimte. In een aparte technische ruimte zijn de hybride verwarmingsinstallatie (2024) en ventilatie-unit (2020) ondergebracht.

Tuin
De voortuin is aangelegd met diverse planten en een terras met grind. De sfeervolle achtertuin is op het zuiden gelegen en biedt veel privacy. Verder is de tuin relatief onderhoudsarm met diverse terrassen, mooie plantenperken met o.a. hortensia’s, vlinderstruiken, siergrassen, druiven en leibomen. De tuin is waterbesparend aangelegd, met infiltratiekratten en regentonnen voor efficiënt hergebruik van regenwater. Een absolute aanwinst met het oog op het veranderende klimaat. Verder is er nog een achterom.

Veranda en overkapping
De zeer royale houten veranda is perfect als tweede woonkamer met bijvoorbeeld een buitenkeuken. De veranda is door middel van zeil en rolblinds afsluitbaar en is daardoor een gezellige plek om het hele jaar door te genieten van het buitenleven, ongeacht het weer. Vanuit de veranda krijgt u toegang tot de bijkeuken en de garage. Aansluitend aan de achtergevel bevindt zich nog een brede glazen overkapping.

Oprit/Garage
De oprit biedt plaats aan twee auto’s. Openbaar parkeren kan ook in een parkeerstrook op straat.
De royale geschakelde en verwarmde garage beschikt over water en elektra en is deels ingericht als caravanstalling (hoogte roldeur 220 cm, binnen hoogte garage 260 cm). De vloer is voorzien van duurzame SwissDeck-tegels

Berging
Poortschuurtje voor fietsen en tuinbenodigdheden dat tevens dient als doorgang tussen voor- en achtertuin.

Details
- Goed onderhouden geschakelde woning in karakteristieke jaren ’30 stijl;
- Gelegen op een toplocatie in een groene, rustige omgeving nabij natuur en centrum;
- Energiezuinig en duurzaam: energielabel A+++, hybride warmtepomp en 15 zonnepanelen ;
- Moderne keuken, complete badkamer en 5 slaapkamers;
- Achtertuin op het zuiden met veel privacy en slimme wateropvang;
- Royale afsluitbare houten veranda, glazen overkapping en extra poortschuurtje.
- Oprit voor twee auto’s, royale garage, eventueel geschikt voor caravanstalling.

Aanvaarding: op korte termijn mogelijk.

Interesse in deze ruime woning? Maak dan snel een afspraak voor een bezichtiging!
Koopt u de woning zonder voorbehoud financiering? Dan houden wij 2 weken na het ondertekenen van de koopovereenkomst aan voor het storten van de waarborgsom/bankgarantie.

MOET UW EIGEN WONING NOG VERKOCHT WORDEN?
Wij komen graag op bezoek voor een gratis waardebepaling van uw huidige woning. U krijgt tevens van ons een deskundig verkoopadvies, antwoorden op uw vragen en een vrijblijvende offerte. Zo weet u precies waar u aan toe bent. Neem direct contact met ons op voor een afspraak!

Deze informatie is door ons met de nodige zorgvuldigheid samengesteld. Onzerzijds wordt echter geen enkele aansprakelijkheid aanvaard voor enige onvolledigheid, onjuistheid of anderszins, dan wel de gevolgen daarvan. Alle opgegeven maten en oppervlakten zijn indicatief. Van toepassing zijn de Vastgoed Nederland Consumentenvoorwaarden.


Lees meer

Verkoopgeschiedenis

Aangeboden sinds
19 januari 2026
Verkoopdatum
10 februari 2026
Looptijd
23 dagen

Kenmerken

Overdracht

Prijs per m2
€ 5.719
Aangeboden sinds
19 januari 2026
Status
Verkocht
Aanvaarding
In overleg

Bouw

Soort woonhuis
Eengezinswoning, geschakelde woning
Soort bouw
Bestaande bouw
Bouwjaar
2012
Soort dak
Samengesteld dak
Staat van onderhouden binnen
Uitstekend
Staat van onderhouden buiten
Uitstekend

Oppervlakte en inhoud

Perceeloppervlakte
380 m2
Inhoud van de woning
635 m3
Oppervlakte gebouwgebonden buitenruimten
36 m2
Oppervlakte overige inpandige ruimten
24 m2

Indeling

Aantal kamers
6
Aantal slaapkamers
5
Aantal woonlagen
3
Voorzieningen
Tuin, schuur/berging, ventilatie, glasvezel

Buitenruimte

Balkon
Nee
Schuur/berging
Ja

Maandlasten berekenen

De maandlasten voor je woning bestaan uit meer dan alleen de hypotheeklasten. Hieronder vind je een overzicht van de bijkomende kosten en lasten. Zo weet je precies wat je huis per maand gaat kosten. En met de handige vergelijkers kun je ook nog eens snel de beste deals sluiten!

  • Kaart
  • Streetview