Verkocht OV

Oorgat 21H 1135 CP Edam

194m2
Wonen
5
Kamers
168m2
Perceel
2021
Bouwjaar
Uniek vormgegeven, loft-achtige HOEKWONING van ca. 194 m2 met VIER SLAAPKAMERS, een ZONNIGE TUIN op het ZUIDEN aan VAARWATER, ENERGIELABEL A, maar liefst 25 ZONNEPANELEN én een WARMTEPOMP. Geheel gasloos en duurzaam gebouwd in 2021. Deze woning biedt een combinatie van comfort, ruimte, moderne afwerking en een bijzondere ligging aan het Oorgat in het sfeervolle Edam. Een buitenkans!

DE WONING
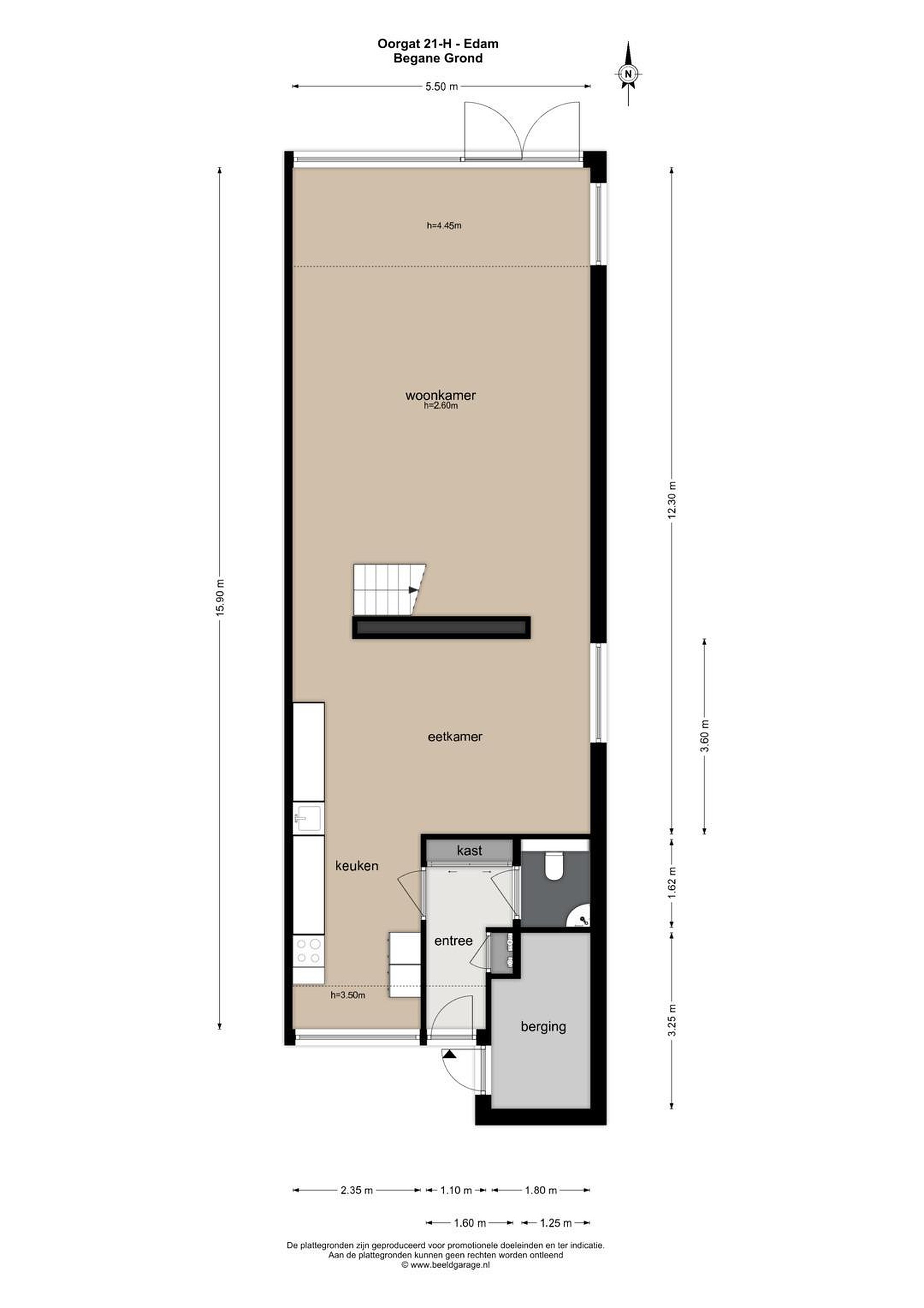
Aan de voorzijde van de woning bevindt zich een praktische, separate fietsenberging, direct grenzend aan de woning, maar niet inpandig toegankelijk. Via de voordeur betreed je de ruime hal met garderobe en modern toilet met fonteintje.

De begane grond is indrukwekkend open en licht, met een prachtige gietvloer die in de hele woning is doorgelegd. De luxe woonkeuken is volledig uitgerust met hoogwaardige inbouwapparatuur: een oven, stoomoven, inductiekookplaat met geïntegreerde afzuiging, twee koelkasten, een losse vriezer, Quooker en een vaatwasser.

De eetkamer loopt naadloos over in de ruime woonkamer, waar de glazen achtergevel van maar liefst 4,45 meter hoog zorgt voor een adembenemende lichtinval en uitzicht op de zonnige tuin én het doorgaande vaarwater. Openslaande deuren verbinden binnen met buiten, ideaal voor zomerse dagen en lange avonden aan het water.

EERSTE VERDIEPING
De overloop geeft toegang tot twee slaapkamers aan de voorzijde, elk voorzien van een sfeervolle vide, perfect als speelhoek of werkplek. In het midden van deze verdieping bevindt zich de moderne badkamer met inloopdouche, dubbele wastafel en tweede toilet.

Aan de achterzijde ligt de royale master bedroom van ca. 23 m2 met uitzicht op het water en een open verbinding naar beneden in de woonkamer. Deze ruimte is desgewenst eenvoudig op te splitsen in twee aparte slaapkamers.

TWEEDE VERDIEPING
De tweede verdieping biedt een ruime vierde slaapkamer met inloopkast. Deze inloopkast is multifunctioneel en biedt de mogelijkheid tot het realiseren van een tweede badkamer. Daarnaast is er een grote wasruimte van ca. 7 m2 aanwezig, ideaal als was- en opbergruimte.

DE LIGGING
Oorgat 21-H ligt op een unieke locatie in Edam, direct aan vaarwater en met vrij uitzicht aan de achterzijde. Het historische centrum van Edam met haar winkels, horeca, scholen en voorzieningen ligt op korte loopafstand. Amsterdam is uitstekend bereikbaar per auto en openbaar vervoer. Hier geniet je van een dorps gevoel met stedelijke gemakken binnen handbereik.

DUURZAAMHEID & COMFORT
Deze woning is volledig gasloos en gebouwd volgens de nieuwste duurzaamheidsnormen. Dankzij de warmtepomp, 25 zonnepanelen en uitstekende isolatie beschikt de woning over een definitief energielabel A. De gehele woning is voorzien van vloerverwarming – per verdieping regelbaar – en alle installaties zijn energiezuinig en toekomstbestendig.

BIJZONDERHEDEN
- Woonoppervlakte ca. 194 m2 (NEN2580 meetrapport beschikbaar);
- Perceel van 168 m2;
- Bouwjaar 2021, volledig instapklaar en uitstekend onderhouden;
- Tuin op het zuiden, grenzend aan doorgaand vaarwater;
- Energielabel A, volledig gasloos, warmtepomp en 25 zonnepanelen;
- Hoogwaardige gietvloer met vloerverwarming door het hele huis;
- Luxe keuken met o.a. stoomoven, Quooker, dubbele koeling en inductie met geïntegreerde afzuiging;
- Sfeervolle videkamers en royale master bedroom (evt. op te splitsen);
- Inloopkast met mogelijkheid tot tweede badkamer;
- Grote wasruimte op tweede verdieping;
- Eigen fietsenberging aan de voorzijde.


De op deze website getoonde vrijblijvende informatie is door ons (met zorg) samengesteld op basis van gegevens van de verkoper (en/of derden). Wij staan niet in voor de juistheid of volledigheid daarvan. Wij adviseren u en/of uw makelaar om contact met ons op te nemen bij interesse in een van onze woningen.
Lees meer

Kenmerken

Overdracht

Prijs per m2
€ 4.768
Aangeboden sinds
30 oktober 2025
Status
Verkocht onder voorbehoud
Aanvaarding
In overleg

Bouw

Soort woonhuis
Eengezinswoning, hoek woning
Soort bouw
Bestaande bouw
Bouwjaar
2021
Staat van onderhouden binnen
Uitstekend
Staat van onderhouden buiten
Uitstekend

Oppervlakte en inhoud

Perceeloppervlakte
168 m2
Inhoud van de woning
761 m3
Oppervlakte overige inpandige ruimten
8 m2

Indeling

Aantal kamers
5
Aantal slaapkamers
4
Aantal woonlagen
3
Voorzieningen
Tuin, schuur/berging, dakraam

Buitenruimte

Balkon
Nee
Schuur/berging
Ja

Maandlasten berekenen

De maandlasten voor je woning bestaan uit meer dan alleen de hypotheeklasten. Hieronder vind je een overzicht van de bijkomende kosten en lasten. Zo weet je precies wat je huis per maand gaat kosten. En met de handige vergelijkers kun je ook nog eens snel de beste deals sluiten!

  • Kaart
  • Streetview