Verkocht

Paulina van Weellaan 1 3247 AN Dirksland

143m2
Wonen
6
Kamers
772m2
Perceel
1938
Bouwjaar
Mooie instapklare vrijstaande woning in Dirksland met grote schuur/garage
Op een fantastische locatie aan de Paulina van Weellaan in Dirksland staat deze sfeervolle, instapklare vrijstaande woning met een royale garage/schuur, ruime oprit en een zonnige tuin rondom. Een heerlijke plek voor wie op zoek is naar comfort, ruimte en privacy – én direct wil kunnen starten met wonen.
De woning biedt maar liefst 143 m2 gebruiksoppervlakte wonen en heeft diverse extra ruimtes, waaronder een grote bijkeuken, een extra kamer op de begane grond, vier slaapkamers en volop opbergruimte. De royale garage van circa 29 m2 maakt het geheel bijzonder aantrekkelijk voor hobbyisten, zelfstandigen of extra bergruimte.
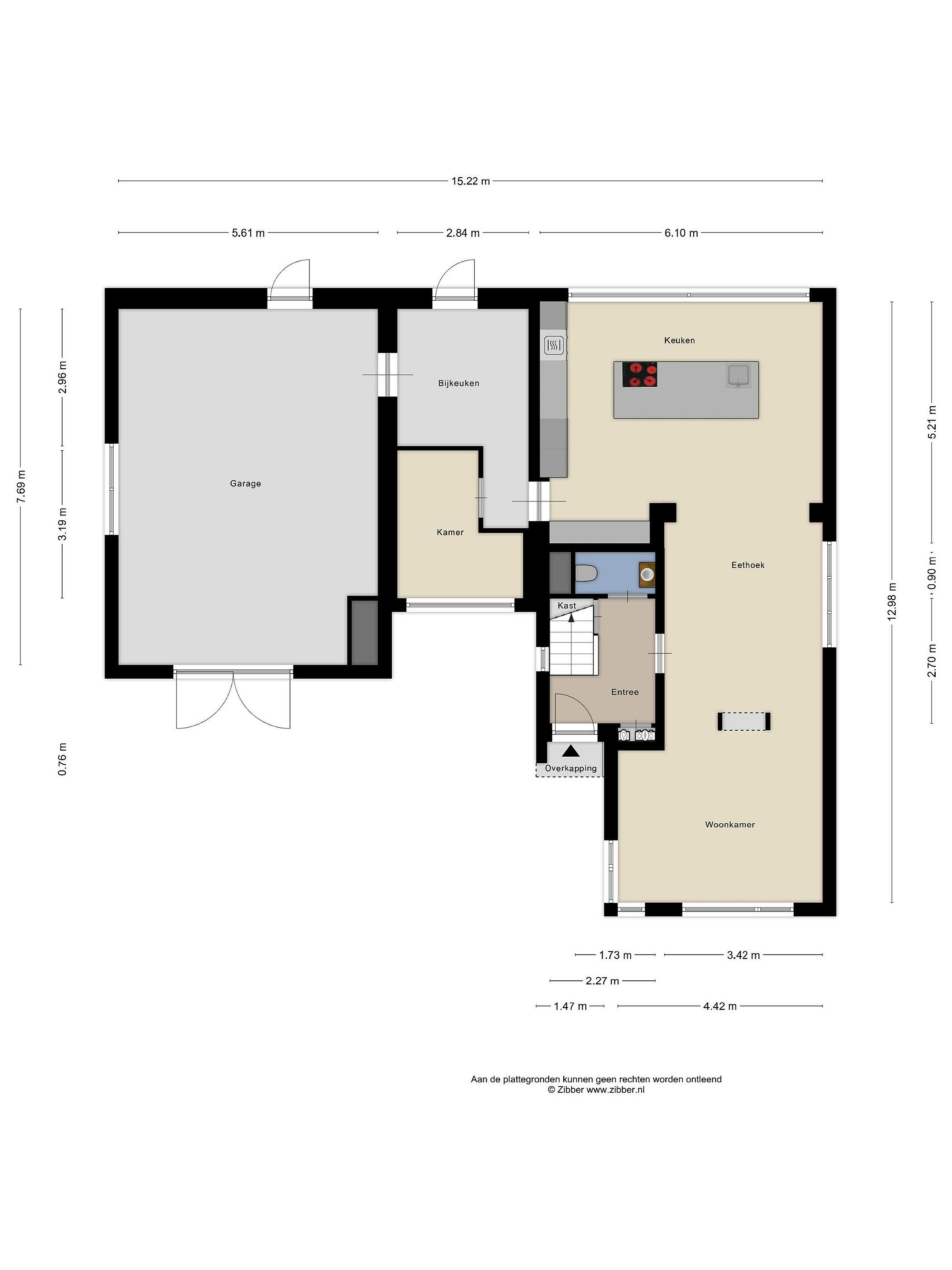
Begane grond
Via de entree betreedt u de lichte hal, met toegang tot het toilet, de trapopgang en de woonkamer. De woonkamer is ruim opgezet en door de vele raampartijen heerlijk licht – een fijne leefruimte met vrij zicht op de tuin.
Aan de achterzijde bevindt zich de royale open keuken. Deze leef keuken beschikt over een groot kookeiland, veel werkruimte en een royale aluminium schuifpui naar de tuin. Direct naast de keuken ligt de bijkeuken, ideaal voor extra voorraad of de wasruimte.
De extra kamer op de begane grond biedt mogelijkheden als thuiswerkplek, speelkamer of hobbyruimte.

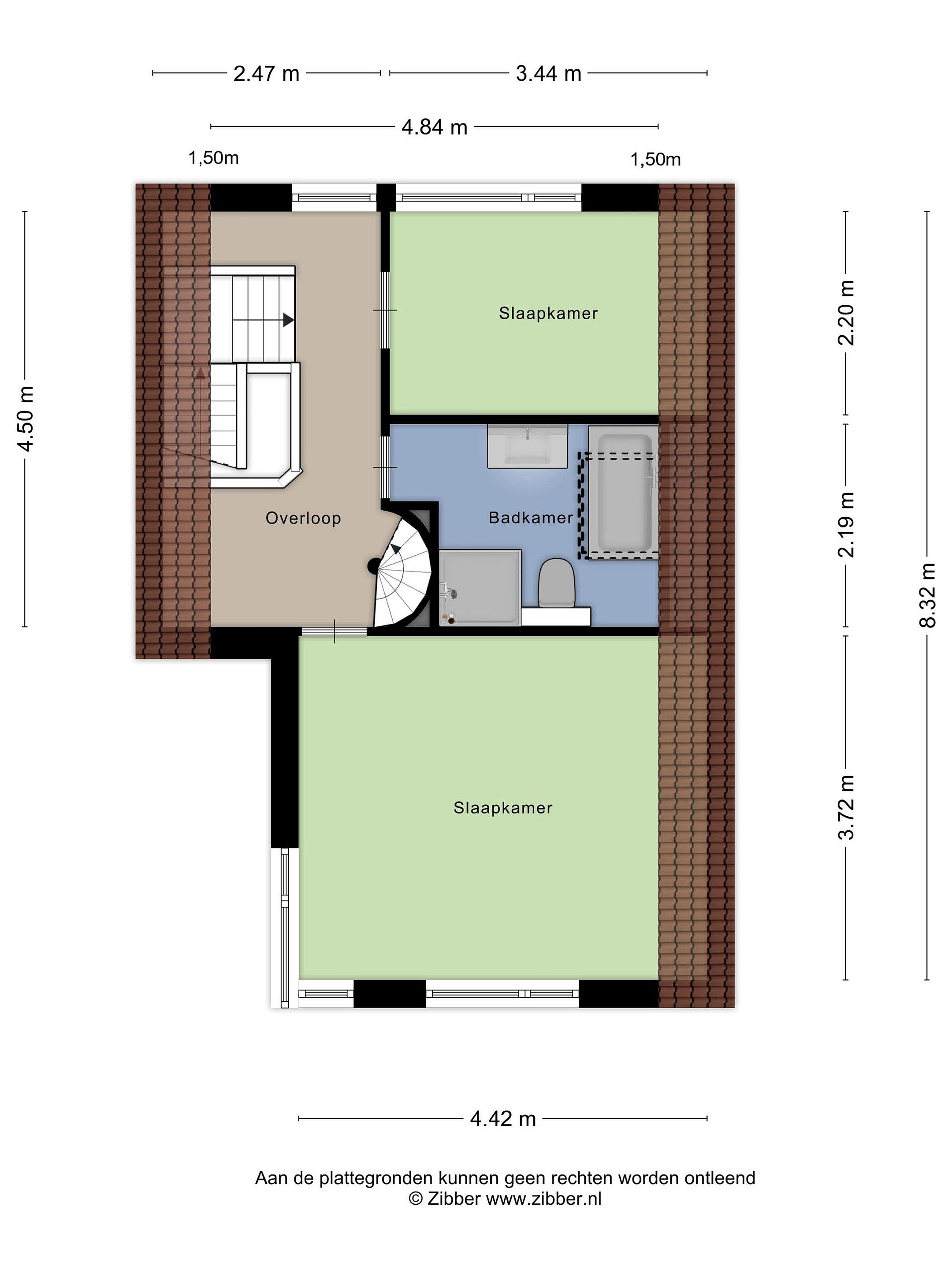
Eerste verdieping
De eerste verdieping telt twee ruime slaapkamers en een complete badkamer. De, zo goed als nieuwe badkamer is uitgerust met een ligbad, douche, wastafel en toilet.

Tweede verdieping
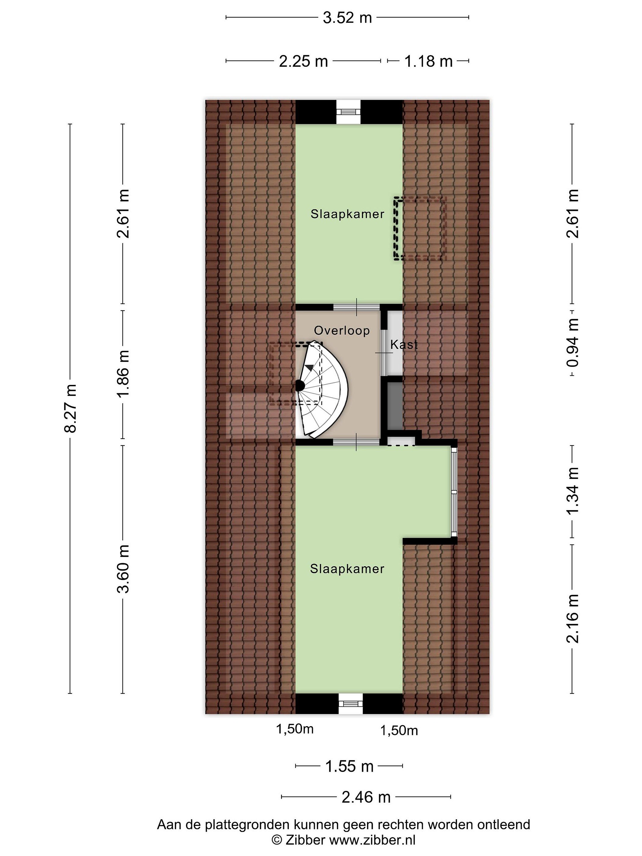
Via een vaste trap bereikt u de tweede verdieping, waar zich nog twee slaapkamers bevinden. Dankzij de dakkapel en slimme indeling is dit een volwaardige etage met extra kastruimte op de overloop.

Tuin
Garage / Schuur
Een van de absolute highlights van deze woning is de grote garage/schuur. Met een oppervlakte van circa 29 m2 en dubbele deuren is dit de perfecte plek voor:
- hobby’s
- opslag
- stalling van auto, motor of aanhanger
- werkplaats aan huis
Deze ruimte is een grote meerwaarde en maakt deze woning onderscheidend in zijn segment. Alle voorbereidingen zijn getroffen om deze garage multifunctioneel te maken. Zoals voorbereiding voor toilet, buitenkranen, vloerverwarming en is volledig geïsoleerd.

Tuin & perceel:
De woning staat op een royaal perceel en heeft een fijne tuin rondom. Er is parkeergelegenheid voor meerdere auto's op eigen terrein. De achtertuin biedt volop privacy en mogelijkheden om verschillende terrassen te creëren.

Details
- Instapklare vrijstaande woning
- Ruime leef keuken met aluminium panorama schuifpui
- Grote bijkeuken + extra kamer op de begane grond
- Vier slaapkamers
- Grote vrijstaande garage/schuur
- Woonoppervlakte: 143,2 m2
- Perceel ruim en zonnig
- Volop parkeergelegenheid op eigen terrein

Over Dirksland:
Dirksland is een dorp waar rust, ruimte en gezelligheid samenkomen. Je woont hier landelijk, maar mét alle voorzieningen binnen handbereik. Het dorp heeft een sfeervolle dorpskern met winkels, een supermarkt, sportverenigingen, basisscholen en natuurlijk het ziekenhuis. De vriendelijke gemeenschap en gemoedelijke sfeer maken Dirksland een plek waar je je snel thuis voelt.
Ook natuurliefhebbers zitten hier goed: je bent binnen enkele minuten in de polder, bij het water of in de uitgestrekte natuurgebieden van Goeree-Overflakkee. Perfect voor wandelen, fietsen of gewoon genieten van de rust.
Dankzij de centrale ligging rij je bovendien zó richting Rotterdam, Middelharnis, Zeeland of de stranden van Ouddorp. Dirksland combineert dat heerlijke dorpsgevoel met verrassend goede bereikbaarheid — ideaal voor wie rustig wil wonen maar niets wil missen.

Lees meer

Verkoopgeschiedenis

Aangeboden sinds
26 november 2025
Verkoopdatum
29 januari 2026
Looptijd
2 maanden

Kenmerken

Overdracht

Prijs per m2
€ 5.063
Aangeboden sinds
26 november 2025
Status
Verkocht
Aanvaarding
In overleg

Bouw

Soort woonhuis
Eengezinswoning, vrijstaande woning
Soort bouw
Bestaande bouw
Bouwjaar
1938
Soort dak
Zadeldak
Staat van onderhouden binnen
Goed
Staat van onderhouden buiten
Goed

Oppervlakte en inhoud

Perceeloppervlakte
772 m2
Inhoud van de woning
687 m3
Oppervlakte gebouwgebonden buitenruimten
1 m2
Oppervlakte overige inpandige ruimten
42 m2

Indeling

Aantal kamers
6
Aantal slaapkamers
4
Aantal woonlagen
3
Voorzieningen
Tuin, kabel-tv, glasvezel, buitenzonwering, dakraam

Buitenruimte

Balkon
Nee
Schuur/berging
Nee

Maandlasten berekenen

De maandlasten voor je woning bestaan uit meer dan alleen de hypotheeklasten. Hieronder vind je een overzicht van de bijkomende kosten en lasten. Zo weet je precies wat je huis per maand gaat kosten. En met de handige vergelijkers kun je ook nog eens snel de beste deals sluiten!

  • Kaart
  • Streetview