Honingeter 24 3247 GD Dirksland

133m2
Wonen
4
Kamers
122m2
Perceel
2017
Bouwjaar
Vergeet alles wat je denkt te weten over een “gewone tussenwoning”. Honingeter 24 is een royaal familiehuis met maar liefst 133 m2 aan woonplezier. Ruimte, licht en comfort komen hier perfect samen. Dit is geen huis waar je in woont… dit is een huis waar je van geniet. Deze moderne eengezinswoning is de afgelopen jaren helemaal aangepakt. Met een frisse uitstraling, een moderne keuken en badkamer, 6 zonnepanelen (2022) en recent schilderwerk (2025) en A label hoef je hier alleen nog maar je spullen neer te zetten.
Begane grond
Je komt binnen in de hal met toilet en trapopgang. De woonkamer is ruim, met plek genoeg voor een gezellige zithoek en eettafel. De open keuken (2017) is voorzien van Siemens inbouwapparatuur. Via de woonkamer stap je zó je tuin in: een moderne, lichte buitenruimte waar je heerlijk kunt genieten.

Eerste verdieping
Op de eerste verdieping vind je twee ruime slaapkamers Waarvan een met een jnloopkast. De badkamer (2017) is modern en compleet met een douche, bad, wastafelmeubel. Toilet is apart gesitueerd op de eerste verdieping.

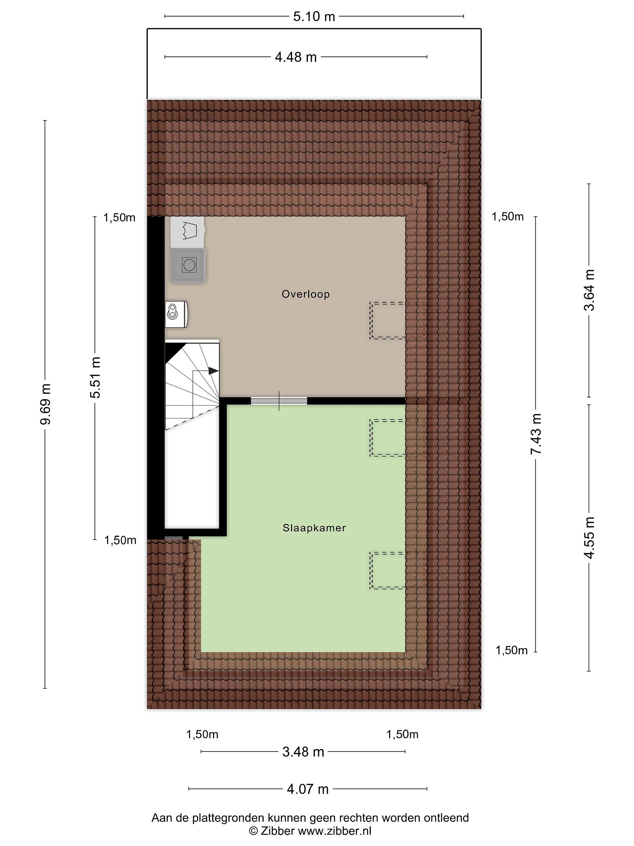
Tweede verdieping
De zolderverdieping gebruik je als derde slaapkamer, en door een muur gescheiden kan je hier ook een werkruimte of hobbykamer maken. Op de overloop vind je de aansluiting voor de wasmachine en droger en extra bergruimte op een bergzolder.

Tuin
De achtertuin is modern, licht en onderhoudsvriendelijk en beschikt over een berging. Een heerlijke plek waar je direct kunt genieten van de zon en gezellige avonden met vrienden of familie kunt hebben.

Details
- Instapklaar en netjes afgewerkt
- Keuken (2017) met Siemens apparatuur
- Badkamer (2017)
- 6 zonnepanelen (2022)
- Schilderwerk buitenzijde (2025)
- Moderne en lichte achtertuin
- Gelegen in een kindvriendelijke woonwijk van Dirksland
- Energielabel A
Ligging
Je woont hier in een rustige en gewilde wijk van Dirksland, dichtbij scholen, winkels en sportverenigingen. Middelharnis en Rotterdam zijn dankzij de N215 en N59 eenvoudig bereikbaar.

Lees meer

Kenmerken

Overdracht

Prijs per m2
€ 3.700
Aangeboden sinds
10 oktober 2025
Status
Beschikbaar
Aanvaarding
In overleg

Bouw

Soort woonhuis
Eengezinswoning, tussen woning
Soort bouw
Bestaande bouw
Bouwjaar
2017
Soort dak
Samengesteld dak
Staat van onderhouden binnen
Uitstekend
Staat van onderhouden buiten
Uitstekend

Oppervlakte en inhoud

Perceeloppervlakte
122 m2
Inhoud van de woning
473 m3
Oppervlakte externe bergruimte
5 m2

Indeling

Aantal kamers
4
Aantal slaapkamers
3
Aantal woonlagen
3
Voorzieningen
Tuin, schuur/berging, ventilatie, kabel-tv, glasvezel, dakraam

Buitenruimte

Balkon
Nee
Schuur/berging
Ja

Maandlasten berekenen

De maandlasten voor je woning bestaan uit meer dan alleen de hypotheeklasten. Hieronder vind je een overzicht van de bijkomende kosten en lasten. Zo weet je precies wat je huis per maand gaat kosten. En met de handige vergelijkers kun je ook nog eens snel de beste deals sluiten!

  • Kaart
  • Streetview