Verkocht OV

Groene Kruisstraat 94 4671 EM Dinteloord

137m2
Wonen
5
Kamers
335m2
Perceel
1957
Bouwjaar
Houden jullie van veel ruimte in huis en tuin? Kijk dan eens naar deze leuke 2-onder-1 kap in een mooie, groene straat in Dinteloord.
Het dak en de goten zijn dit jaar helemaal vernieuwd, dus daar heb je geen omkijken naar. Daarnaast biedt de aanbouw heel veel mogelijkheden. Je kunt hem gebruiken als berging zoals nu grotendeels gebeurt, maar je kunt er ook een badkamer en slaapkamer maken óf misschien is het iets voor je hobby of een eigen bedrijf aan huis?
In 2022 zijn 3 airco's geplaatst waarmee je kunt koelen én verwarmen. Een duurzame optie dus om het hele huis op de gewenste temperatuur te krijgen, naast de bestaande centrale verwarming en houtkachel. Aan jou de keuze welke warmtebron je wilt gebruiken!
Is jouw interesse gewekt? Kijk en lees snel verder of bel ons om een bezichtiging af te spreken.
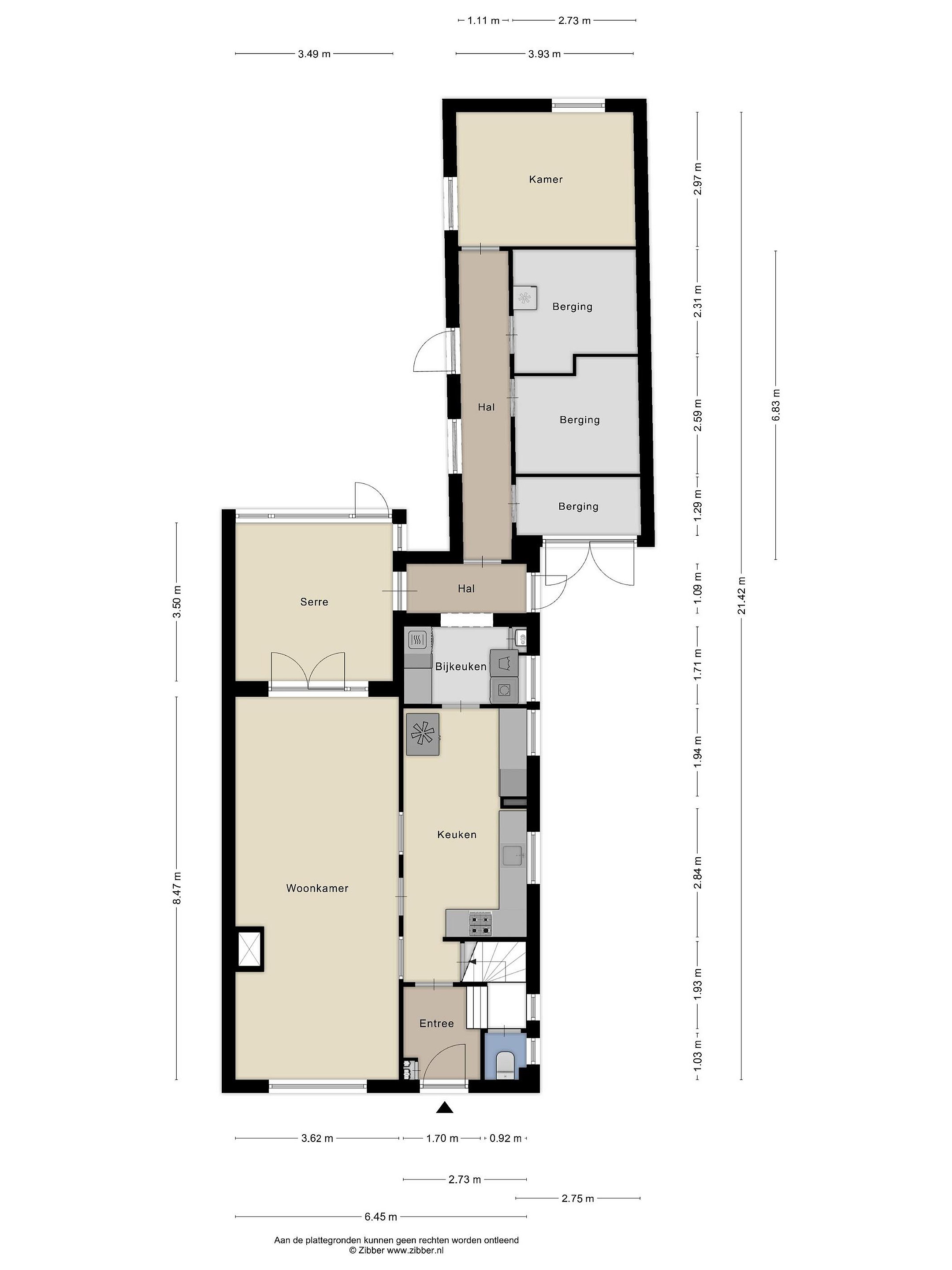
Begane grond
Hal met meterkast (8 groepen en 2 aardlekschakelaars). De toiletruimte is een paar treden hoger en heeft een staand toilet.
Vanuit de hal, kom je binnen in de keuken. Het is een grote keuken met veel werk- en bergruimte en hij is lekker licht door het grote raam. Qua apparatuur vind je er een 5-pits gasfornuis, afzuigkap en een vaatwasser. Ook is er een 2e aanrechtblad, ideaal voor apparaten die je vaak gebruikt, zoals een koffieapparaat, een waterkoker of een broodrooster.

In het verlengde van de keuken is de bijkeuken; deze is voorzien van onder andere een oven, een magnetron en nog meer bergruimte. Ook vind je hier de CV ketel en het aansluitpunt voor wasmachine en droger.

Dan gaan we terug naar de woonkamer. Deze is lekker ruim, heeft een houten vloer en een houtkachel. De aangebouwde serre, geeft nóg meer leefruimte.
De huidige eigenaren maken veel gebruik van deze ruimte, zeker omdat een airco (2022) zorgt voor een aangename warmte.

Vanuit de serre is er toegang tot een 2e hal, die de bijkeuken verbindt met de aanbouw. Deze is nu grotendeels in gebruik als berging, maar zoals eerder beschreven kan je hier heel veel kanten mee op!


Eerste verdieping
Een overloop met toegang tot 3 slaapkamers, een bergruimte en de badkamer.
De grootste slaapkamer is aan de achterzijde van het huis en heeft afmetingen van 3,62m * 2,80m. De andere 2 slaapkamers zijn bijna even groot met een oppervlakte van 7,5 m2 en 7,6 m2.
Bij de slaapkamer aan de voorkant is een doorgang naar de voormalige badkamer. Een ideale ruimte om een inloopkast te maken.
Tot slot komen we bij de badkamer, deze is uitgerust met een ligbad met douche, een staand toilet en een wastafelmeubel.

De hele verdieping is voorzien van kunststof kozijnen met draai-kantel ramen met HR glas en horren tegen insecten!

Tweede verdieping
De tweede verdieping is een bergzolder die bereikbaar is via een nieuwe vlizotrap.

Tuin
De tuin is in 2022 volledig onderhoudsvriendelijk aangelegd met sierbestrating. Heb jij liever wat meer groen, dan kan je er uiteraard tegels uithalen. De tuin ligt op het Noord-Westen en is zo diep dat je heel de dag wel een plekje kan vinden in de zon of in de schaduw.

Lees meer

Kenmerken

Overdracht

Prijs per m2
€ 3.131
Aangeboden sinds
20 november 2025
Status
Verkocht onder voorbehoud
Aanvaarding
In overleg

Bouw

Soort woonhuis
Eengezinswoning, twee-onder-een-kap woning
Soort bouw
Bestaande bouw
Bouwjaar
1957
Soort dak
Zadeldak
Staat van onderhouden binnen
Goed
Staat van onderhouden buiten
Goed

Oppervlakte en inhoud

Perceeloppervlakte
335 m2
Inhoud van de woning
544 m3
Oppervlakte overige inpandige ruimten
17 m2

Indeling

Aantal kamers
5
Aantal slaapkamers
4
Aantal woonlagen
3
Voorzieningen
Tuin, rolluiken, airconditioning, rookkanaal

Buitenruimte

Balkon
Nee
Schuur/berging
Nee

Maandlasten berekenen

De maandlasten voor je woning bestaan uit meer dan alleen de hypotheeklasten. Hieronder vind je een overzicht van de bijkomende kosten en lasten. Zo weet je precies wat je huis per maand gaat kosten. En met de handige vergelijkers kun je ook nog eens snel de beste deals sluiten!

  • Kaart
  • Streetview