Telgenhöfke 8A 7591 LV Denekamp

81m2
Wonen
2
Kamers
155m2
Perceel
1994
Bouwjaar
Twee linkerhanden? Geen probleem! Aan deze onderhoudsvriendelijke en energiezuinige woning v.v. energielabel B hoef je niets meer te doen. Dus: meubels verhuizen en genieten maar!

Praktische eindwoning welke vanuit een transformatie in 2016 volledig gerenoveerd is tot deze instapklare (starters)woning! Op de begane grond vind je een nette keuken én woonkamer met direct toegang tot de achtertuin. Op de verdieping bevindt zich één slaapkamer en een keurige badkamer. Op de tweede verdieping kan een extra (slaap)kamer gesitueerd worden. De achtertuin is onderhoudsvriendelijk te noemen, redelijk van formaat en beschikt over een handige berging!
Kortom: een verrassend ruime en praktische woning op een fijne locatie, perfect voor starters!
Begane grond
Entree; meterkast en een vrijdragend toilet met fonteintje. De keuken is aan de voorzijde gelegen, biedt uitzicht over de straat en is o.a. voorzien van een combi-oven, kookplaat met afzuiging en een vaatwasser. De woonkamer aan de achterzijde biedt rechtsreeks toegang tot de tuin.

Eerste verdieping
Via de vaste trap kom je op de ruime overloop, waar je toegang hebt tot een slaapkamer en de badkamer. De badkamer is voorzien van een toilet, een wastafel en een inloopdouche.

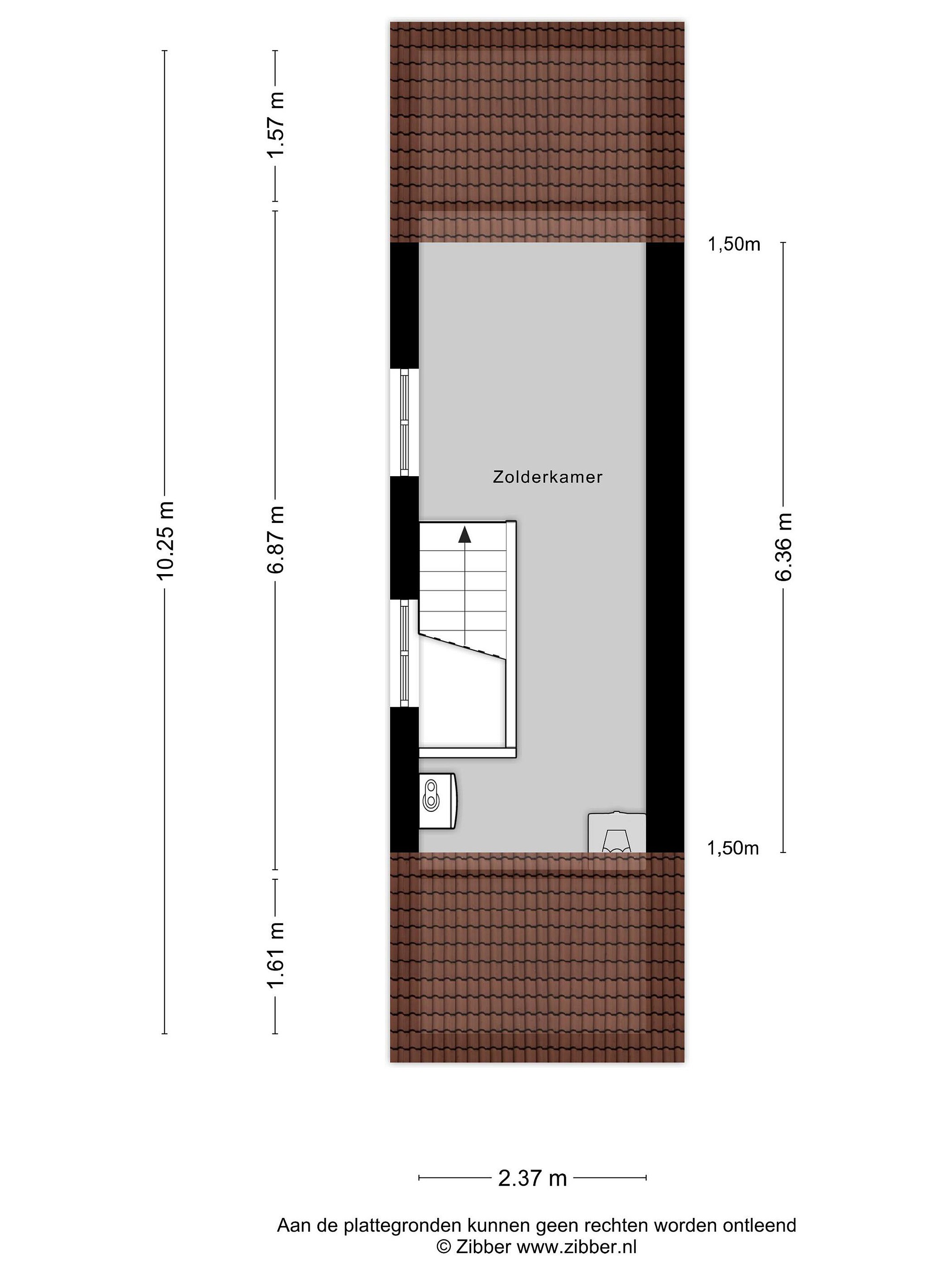
Tweede verdieping
De tweede verdieping is bereikbaar via de vaste trap en biedt de mogelijkheid om eventueel een extra slaapkamer te creëren. Ook is hier de Nefit Trendline (2016, eigendom) gesitueerd.

Tuin
De tuin is deels bestraat en deels voorzien van kunstgras. Daarnaast is er een vrijstaande houten berging aanwezig en beschikt de tuin over een praktische achterom

Details
- Bouwjaar: 1994
- Perceeloppervlakte: ca 155 m2 (dient nog gesplitst te worden)
- Woonoppervlakte: 81 m2
- Royale woonkamer verbonden met de keuken
- Nette keuken met inbouwapparatuur
- Ruime badkamer
- Mogelijkheid voor het creëren van een extra slaapkamer op de tweede verdieping
- Compacte achtertuin met houten berging
- Nefit Trendline CV ketel (2016)
- Aanvaarding in overleg
- Bij koop is een waarborgsom/bankgarantie vereist van 10% van de koopsom

Lees meer

Kenmerken

Overdracht

Prijs per m2
€ 3.395
Aangeboden sinds
18 december 2025
Status
Beschikbaar
Aanvaarding
In overleg

Bouw

Soort woonhuis
Eengezinswoning, eind woning
Soort bouw
Bestaande bouw
Bouwjaar
1994
Soort dak
Zadeldak
Staat van onderhouden binnen
Goed
Staat van onderhouden buiten
Goed

Oppervlakte en inhoud

Perceeloppervlakte
155 m2
Inhoud van de woning
287 m3
Oppervlakte externe bergruimte
5 m2

Indeling

Aantal kamers
2
Aantal slaapkamers
1
Aantal woonlagen
3
Voorzieningen
Tuin, schuur/berging, ventilatie

Buitenruimte

Balkon
Nee
Schuur/berging
Ja

Maandlasten berekenen

De maandlasten voor je woning bestaan uit meer dan alleen de hypotheeklasten. Hieronder vind je een overzicht van de bijkomende kosten en lasten. Zo weet je precies wat je huis per maand gaat kosten. En met de handige vergelijkers kun je ook nog eens snel de beste deals sluiten!

  • Kaart
  • Streetview