Verkocht

De Kievit 136B 7591 LJ Denekamp

143m2
Wonen
4
Kamers
373m2
Perceel
2002
Bouwjaar
Dankzij het ontwerp in karakteristieke ‘Engelse’ stijl combineert deze semibungalow op unieke wijze een moderne en opvallende uitstraling. De woning is geschikt voor een brede doelgroep: met slaap- en badkamer op de begane grond is comfortabel gelijkvloers wonen mogelijk, maar de ruimte maakt het ook een ideale gezinswoning.

Rustig gelegen met een fraaie, groene omgeving biedt deze woning volop privacy, een vrij uitzicht én een zonnige achtertuin waar je in alle rust kunt genieten. De woning beschikt op de eerste verdieping eveneens over twee slaapkamers en een nette badkamer. Het geheel is uitstekend onderhouden, beschikt over een eigen oprit met carport en biedt voldoende parkeergelegenheid op eigen terrein.
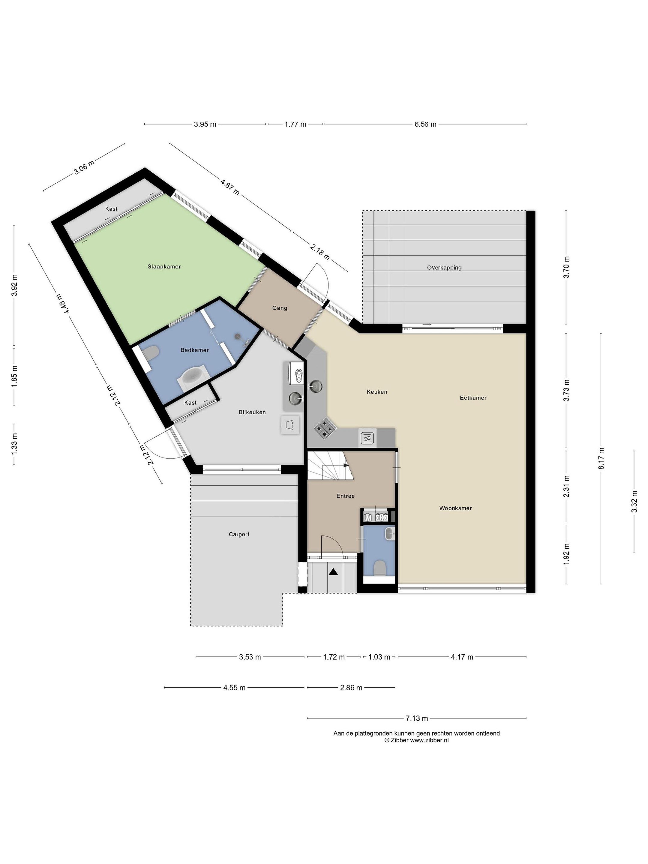
Begane grond
Entree v.v. een gave plavuizen vloer; meterkast, vrijdragend toilet met fonteintje. De lichte woonkamer aan de voorzijde staat in open verbinding met de keuken en beschikt over een schuifpui naar de achtertuin. De open keuken welke beschikt over diverse inbouwapparatuur, staat centraal in de woning en biedt toegang tot het achterportaal. Vanuit hier zijn zowel de achtertuin, de bijkeuken alsook de slaapkamer bereikbaar. De bijkeuken is voorzien van de witgoedaansluitingen, een praktische wasbak en de Nefit Cv-ketel (2002, eigendom). Een groot pluspunt van deze woning is de slaapkamer op de begane grond, direct grenzend aan de royale badkamer. Deze is uitgerust met een ruime inloopdouche, een tweede toilet en een wastafelmeubel.

Eerste verdieping
Overloop welke toegang biedt tot een ruime slaapkamer, een badkamer en een extra derde slaap- of werkkamer. De badkamer is netjes ingericht en voorzien van de benodigde basisvoorzieningen.

Tweede verdieping
Vanuit de extra slaap- of werkkamer is de vliering bereikbaar.

Tuin
De fraai aangelegde tuin beschikt over een stijlvolle overkapping, welke zorgt voor een aangename schaduwplek en tegelijkertijd beschutting biedt bij wisselende weersomstandigheden. Via een achterom is de tuin eenvoudig bereikbaar. Daarnaast is er een houten berging aanwezig, ideaal voor het opbergen van tuingereedschap en diversen.

Details
- Bouwjaar: 2002
- Perceeloppervlakte: 373 m2
- Woonoppervlakte: 143 m2
- Royale woon-/eetkamer met schuifpui naar de tuin
- Open keuken met diverse inbouwapparatuur
- Slaap- en badkamer op de begane grond
- Verdieping met (twee) extra slaapkamers en badkamer
- Gelegen in een rustige, groene en kindvriendelijke wijk
- Tijdloze indeling met alle voorzieningen op de begane grond
- V.v. energielabel B!
- Dichtbij diverse voorzieningen
- Aanvaarding in overleg
- Bij koop is een waarborgsom/bankgarantie vereist van 10% van de koopsom

Lees meer

Verkoopgeschiedenis

Aangeboden sinds
12 september 2025
Verkoopdatum
14 oktober 2025
Looptijd
één maand

Kenmerken

Overdracht

Prijs per m2
€ 3.462
Aangeboden sinds
12 september 2025
Status
Verkocht
Aanvaarding
In overleg

Bouw

Soort woonhuis
Eengezinswoning, geschakelde woning
Soort bouw
Bestaande bouw
Bouwjaar
2002
Soort dak
Zadeldak
Staat van onderhouden binnen
Uitstekend
Staat van onderhouden buiten
Uitstekend

Oppervlakte en inhoud

Perceeloppervlakte
373 m2
Inhoud van de woning
528 m3
Oppervlakte externe bergruimte
7 m2
Oppervlakte gebouwgebonden buitenruimten
38 m2
Oppervlakte overige inpandige ruimten
5 m2

Indeling

Aantal kamers
4
Aantal slaapkamers
3
Aantal woonlagen
3
Voorzieningen
Tuin, schuur/berging, ventilatie, rolluiken, schuifpui

Buitenruimte

Balkon
Nee
Schuur/berging
Ja

Maandlasten berekenen

De maandlasten voor je woning bestaan uit meer dan alleen de hypotheeklasten. Hieronder vind je een overzicht van de bijkomende kosten en lasten. Zo weet je precies wat je huis per maand gaat kosten. En met de handige vergelijkers kun je ook nog eens snel de beste deals sluiten!

  • Kaart
  • Streetview