Verkocht OV

Clematisstraat 25 7591 XJ Denekamp

146m2
Wonen
5
Kamers
302m2
Perceel
1973
Bouwjaar
Welkom aan de Clematisstraat 25! Deze verrassend ruime woning heeft dankzij de uitbouw aan de achterzijde een lichte, open keuken die direct als het hart van het huis aanvoelt. Met maar liefst vier slaapkamers en een moderne badkamer biedt deze woning volop ruimte voor het hele gezin. Buiten geniet je van een royale tuin op een perceel van ruim 300 m2, een grote garage én een gezellige overkapping. Een heerlijke plek om thuis te komen!
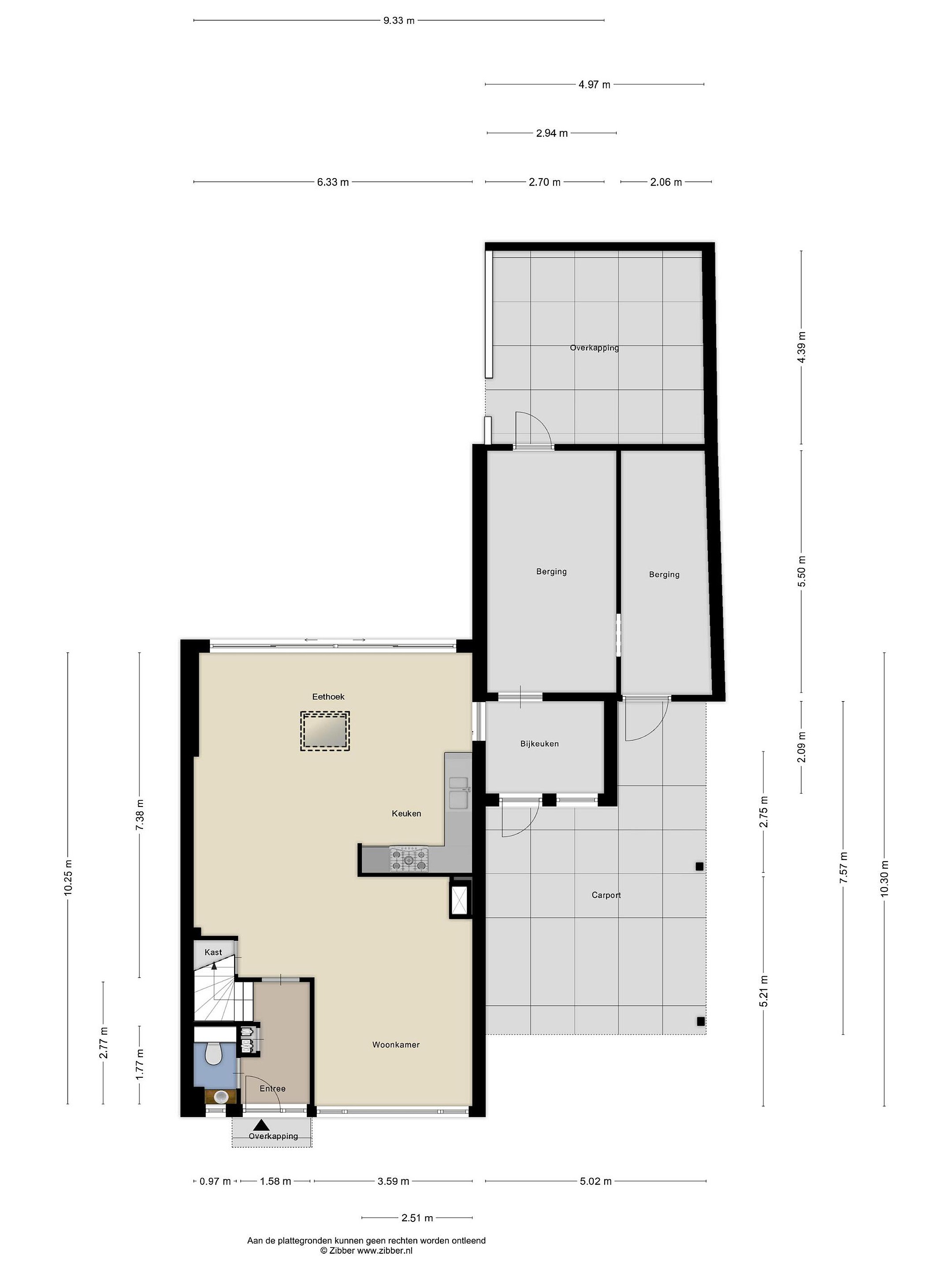
Begane grond
Entree; modern toilet mét fonteintje; meterkast; trapopgang naar de eerste verdieping en het woongedeelte. De woonkamer aan de voorzijde is sfeervol mede door de gashaard en de gave PVC vloer. Aan de achterzijde is de woning uitgebouwd waardoor er een grote open ruimte is gecreëerd. De keuken is v.v. een 4-pits gasfornuis mét afzuigkap, een combi-oven, koelkast en een vaatwasser. Doordat er een glazenschuifpui én een lichtstraat in de uitbouw is gerealiseerd is deze ruimte het hart van de woning. Tevens is er vanuit de keuken toegang tot de bijkeuken.




Eerste verdieping
De overloop biedt toegang tot drie slaapkamers en een badkamer. Alle slaapkamers beschikken over dezelfde fraaie laminaat vloer en één slaapkamer over een wastafelmeubel. De badkamer is van alle gemakken voorzien; ruime inloopdouche, ligbad, toilet en een wastafelmeubel.

Tweede verdieping
Via de vaste trap te bereiken overloop waar zich de witgoedaansluitingen zich bevinden. Er is toegang tot een extra werk- of slaapkamer met een dakraam en de bergruimte op de verdieping beschikt over voldoende opbergruimte en over de AWB CV ketel (2011, eigendom).


Tuin
Gelegen op het Oosten ligt deze nette en groene achtertuin inclusief gave overkapping. De overkapping biedt voldoende ruimte waardoor je er heerlijk kunt genieten met vrienden of familie. De berging welke vanuit de overkapping alsook vanuit de bijkeuken te bereiken is ideaal voor het opbergen van diversen. Het perceel waarop de woning is gelegen is extra breed waardoor je over een extra breed oprit beschikt als ook een extra berging naast de stenen garage!


Details
- Bouwjaar: 1973
- Perceeloppervlakte: 302 m2 
- Woonoppervlakte: 146 m2
- Royale keuken v.v. diverse inbouwapparatuur
- Moderne badkamer
- Maar liefst vier slaapkamers
- Gave en sfeervolle overkapping in de achtertuin
- Extra breed oprit én een extra berging naast de stenen garage!
- AWB CV ketel (2011, eigendom)
- Energielabel C i.c.m. 10 zonnepanelen!
- Gelegen in een gezellige buurt
- Aanvaarding in overleg 
- Bij koop is een waarborgsom/bankgarantie vereist van 10% van de koopsom 

Lees meer

Kenmerken

Overdracht

Prijs per m2
€ 2.938
Aangeboden sinds
23 oktober 2025
Status
Verkocht onder voorbehoud
Aanvaarding
In overleg

Bouw

Soort woonhuis
Eengezinswoning, twee-onder-een-kap woning
Soort bouw
Bestaande bouw
Bouwjaar
1973
Soort dak
Zadeldak
Staat van onderhouden binnen
Uitstekend
Staat van onderhouden buiten
Uitstekend

Oppervlakte en inhoud

Perceeloppervlakte
302 m2
Inhoud van de woning
575 m3
Oppervlakte externe bergruimte
11 m2
Oppervlakte gebouwgebonden buitenruimten
53 m2
Oppervlakte overige inpandige ruimten
16 m2

Indeling

Aantal kamers
5
Aantal slaapkamers
4
Aantal woonlagen
3
Voorzieningen
Tuin, schuur/berging, rookkanaal, schuifpui, dakraam

Buitenruimte

Balkon
Nee
Schuur/berging
Ja

Maandlasten berekenen

De maandlasten voor je woning bestaan uit meer dan alleen de hypotheeklasten. Hieronder vind je een overzicht van de bijkomende kosten en lasten. Zo weet je precies wat je huis per maand gaat kosten. En met de handige vergelijkers kun je ook nog eens snel de beste deals sluiten!

  • Kaart
  • Streetview