Verkocht

Brandlichterweg 50C 7591 NE Denekamp

139m2
Wonen
4
Kamers
250m2
Perceel
2011
Bouwjaar
Wonen in stijl én comfort? Deze jonge en energiezuinige woning in het gezellige Denekamp heeft alles wat je zoekt! Met energielabel A geniet je hier van lage lasten en optimaal wooncomfort. Het hoge afwerkingsniveau springt direct in het oog, met als absolute blikvanger de prachtige steellook deuren tussen leefkeuken en woonkamer, die zorgen voor een moderne en luxe uitstraling. De royale leefkeuken vormt het hart van het huis, dé plek om samen te koken, tafelen en genieten.

Met drie comfortabele slaapkamers, stijlvolle badkamer en een extra tweede verdieping is er volop ruimte voor het gehele gezin! De luxe afgewerkte garage biedt niet alleen praktische bergruimte, maar past perfect bij de hoogwaardige uitstraling van de woning. Buiten wacht een sfeervolle, afsluitbare veranda waar je het hele jaar door heerlijk zit. Gelegen in een gezellige buurt, op loopafstand van het buitengebied én de levendige dorpskern, woon je hier rustig maar toch centraal, de perfecte combinatie!
Begane grond
Entree/hal met trapopgang naar de verdieping, toilet met fonteintje en de meterkast. De woonkamer is aan de voorzijde gelegen en beschikt over grote raampartijen, fraaie vaste kasten én een sfeervolle ingebouwde elektrische sfeerhaard. Op de gehele vloer vind je een gave en goed onderhouden vloer. De woonkamer en woonkeuken zijn door middel van stijlvolle steellook deuren afgescheiden. De leefkeuken beschikt over voldoende ruimte voor een grote eettafel en voorziet in o.a. een koelkast, vriezer, inbouw koffiezetapparaat, 5 pits gaskookplaat, afzuigkap en een vaatwasser. De luxe afgewerkte garage beschikt evenals de rest van de woning over een zeer hoog afwerkingsniveau met o.a. prachtige vaste kasten en een ingebouwde wijnkoelkast!



Eerste verdieping
Overloop met toegang tot drie ruime slaapkamers. De twee slaapkamers aan de voorzijde zijn voorzien van bergruimte achter de knieschotten. De geheel betegelde en modern uitgevoerde badkamer beschikt over een inloopdouche, wastafel, verwarmde spiegel, toilet en een designradiator.


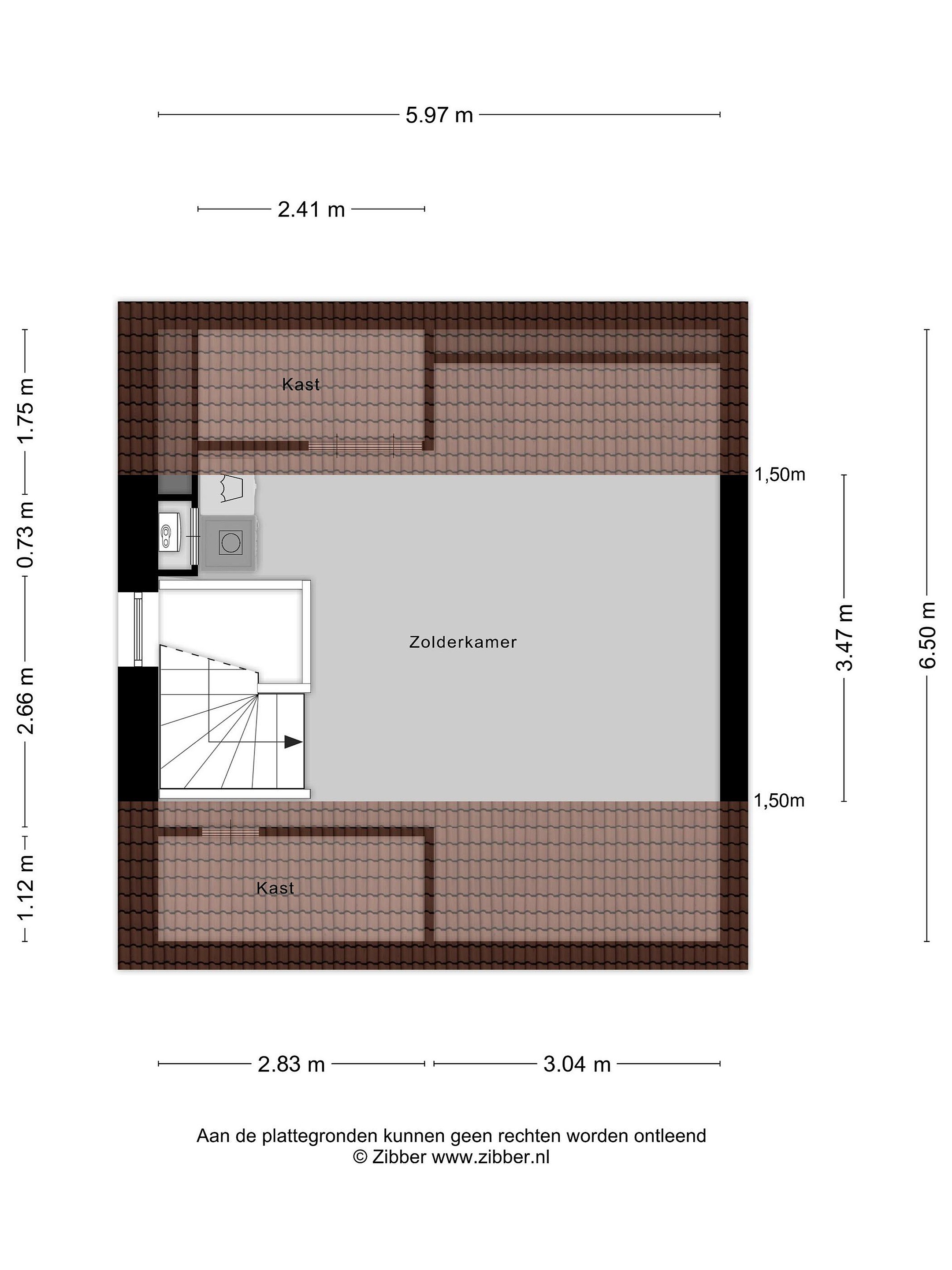
Tweede verdieping
Via een vaste trap is de zolder toegankelijk. Deze ruimte leent zich perfect voor het realiseren van een extra slaap- of hobbykamer. Daarnaast bevinden zich hier de witgoedaansluitingen.


Tuin
Middels de openslaande deuren vanuit het eetgedeelte is de fraaie serre te bereiken. De serre beschikt over gave glazen schuifdeuren en een tv aansluiting waardoor dit de ideale plek is om met vrienden of familie te genieten van het buiten zijn! Verder is de tuin onderhoudsvriendelijke wijze aangelegd met o.a. kunstgras én voldoende groen om je privacy te waarborgen!

Details
- Bouwjaar: 2012
- Perceeloppervlakte: 250 m2 
- Woonoppervlakte: 139 m2 
- Moderne leefkeuken v.v. alle gemakken
- Sfeervolle woonkamer met elektrische sfeerhaard
- Moderne ruime badkamer!
- Luxe garage met carport en ruim oprit!
- Stijlvolle serre met glazen schuifdeuren
- Intergas CV ketel (2011, eigendom)
- V.v. energielabel A i.c.m. 15 zonnepanelen
- Aanvaarding in overleg 
- Bij koop is een waarborgsom/bankgarantie vereist van 10% van de koopsom 

Lees meer

Verkoopgeschiedenis

Aangeboden sinds
3 maart 2026
Verkoopdatum
21 maart 2026
Looptijd
18 dagen

Kenmerken

Overdracht

Prijs per m2
€ 3.734
Aangeboden sinds
3 maart 2026
Status
Verkocht
Aanvaarding
In overleg

Bouw

Soort woonhuis
Eengezinswoning, twee-onder-een-kap woning
Soort bouw
Bestaande bouw
Bouwjaar
2011
Soort dak
Zadeldak
Staat van onderhouden binnen
Uitstekend
Staat van onderhouden buiten
Uitstekend

Oppervlakte en inhoud

Perceeloppervlakte
250 m2
Inhoud van de woning
572 m3
Oppervlakte gebouwgebonden buitenruimten
40 m2
Oppervlakte overige inpandige ruimten
22 m2

Indeling

Aantal kamers
4
Aantal slaapkamers
3
Aantal woonlagen
3
Voorzieningen
Tuin, glasvezel, schuifpui

Buitenruimte

Balkon
Nee
Schuur/berging
Nee

Maandlasten berekenen

De maandlasten voor je woning bestaan uit meer dan alleen de hypotheeklasten. Hieronder vind je een overzicht van de bijkomende kosten en lasten. Zo weet je precies wat je huis per maand gaat kosten. En met de handige vergelijkers kun je ook nog eens snel de beste deals sluiten!

  • Kaart
  • Streetview