Verkocht OV

Van Galenstraat 25 1782 ET Den Helder

72m2
Wonen
3
Kamers
80m2
Perceel
1900
Bouwjaar
NIEUW TE KOOP
Van Galenstraat 25 te Den Helder

Starterswoning in de Van Galenbuurt, nabij de Noordzeedijk en het stadscentrum.

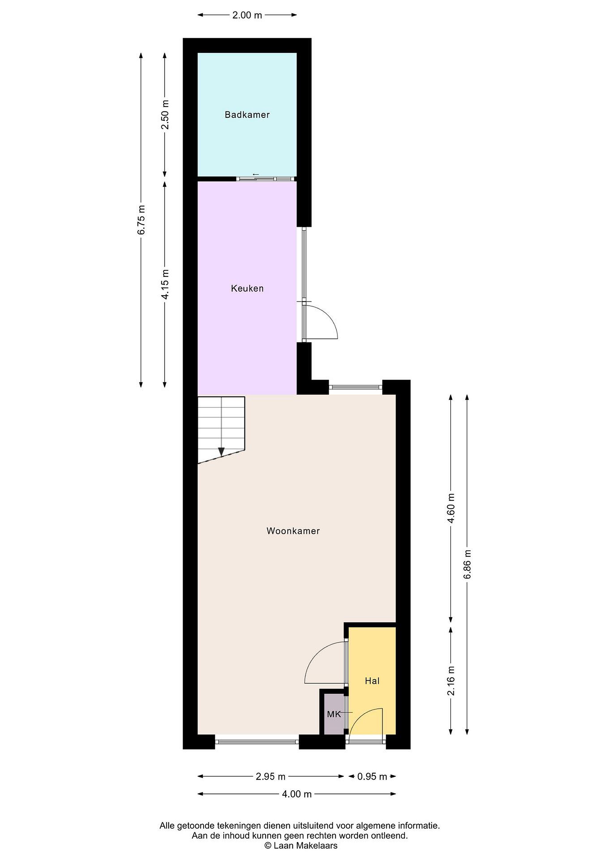
Deze tussenwoning heeft een fraaie voorgevel met kunststof kozijnen en een dakkapel. Duurzaam en onderhoudsvriendelijk. Achter deze gevel schuilt een leuke woning. De woonkamer is sfeervol en netjes afgewerkt. In de aanbouw bevindt zich een ruime keuken met landelijke uitstraling en de gebruikelijke inbouwapparatuur. Aansluitend is de geheel betegelde badkamer met een ruime douchehoek, wastafelmeubel en toilet.

Via de houten trap bereik je de verdieping. Aan de voorzijde ligt een ruime slaapkamer met kunststof dakkapel en laminaatvloer. Aan de achterzijde bevindt zich eveneens een ruime slaapkamer, met daarnaast een aparte ruimte voor de wasmachine en de cv-ketel. Praktisch ingedeeld.

De achtergevel is eveneens voorzien van kunststof bekleding, wat het onderhoudsvriendelijke karakter van de woning onderstreept. De achtertuin is een stadse tuin, gelegen op het oosten. Via een steeg is de woning ook achterom bereikbaar. De fiets staat droog in de aangebouwde houten berging.

--------
van Galenstraat 25 te Den Helder wordt aangeboden met een richtprijs van € 195.000 k.k. Een bezichtiging plan je makkelijk (en het snelst) zelf in door een bezichtigingsaanvraag via Funda. Je ontvangt van ons dan gelijk een email en sms met de mogelijke tijdstippen waarop je kan reserveren. Uiteraard kan je ook contact opnemen met ons kantoor.
--------

De Van Galenstraat is gelegen nabij het vernieuwde centrum van Den Helder met stadsparken en de Noordzeedijk. Een rustige woonomgeving met alle noodzakelijke faciliteiten in de directe omgeving. Hier vind je vele woningen met de kenmerkende uitstraling van de vooroorlogse bouwperiode. Een omgeving waar jong én oud zich goed kan vinden. Goed aan te fietsen zijn de (marine)haven, de veerboot, maar ook zeker het stadcentrum met haar voorzieningen en het centraal station.

Indeling:
Begane grond: entree, hal met meterkast, woonkamer met trap naar de verdieping, keuken in de aanbouw met aansluitend de badkamer.
Verdieping: overloop, twee slaapkamers en een wasruimte.
Er is een kleine vliering, bereikbaar via vlizo trap op de overloop.
Lees meer

Kenmerken

Overdracht

Prijs per m2
€ 2.708
Aangeboden sinds
13 februari 2026
Status
Verkocht onder voorbehoud
Aanvaarding
In overleg

Bouw

Soort woonhuis
Eengezinswoning, tussen woning
Soort bouw
Bestaande bouw
Bouwjaar
1900
Soort dak
Samengesteld dak
Staat van onderhouden binnen
Goed
Staat van onderhouden buiten
Goed

Oppervlakte en inhoud

Perceeloppervlakte
80 m2
Inhoud van de woning
250 m3
Oppervlakte externe bergruimte
3 m2

Indeling

Aantal kamers
3
Aantal slaapkamers
2
Aantal woonlagen
2
Voorzieningen
Tuin, schuur/berging

Buitenruimte

Balkon
Nee
Schuur/berging
Ja

Maandlasten berekenen

De maandlasten voor je woning bestaan uit meer dan alleen de hypotheeklasten. Hieronder vind je een overzicht van de bijkomende kosten en lasten. Zo weet je precies wat je huis per maand gaat kosten. En met de handige vergelijkers kun je ook nog eens snel de beste deals sluiten!

  • Kaart
  • Streetview