Verkocht

Spoorgracht 10 1781 CC Den Helder

147m2
Wonen
6
Kamers
143m2
Perceel
1951
Bouwjaar
NIEUW TE KOOP!!!
Spoorgracht 10 te Den Helder

Aan de Spoorgracht in Den Helder staat deze royale en goed onderhouden tussenwoning uit de jaren ’50 met circa 147 m2 woonoppervlak. De woning is de afgelopen jaren grondig gemoderniseerd, met veel aandacht voor comfort en energiezuinig wonen.

Op het dak liggen zonnepanelen en de verwarming verloopt via de hybride warmtepomp. De cv-ketel ondersteunt waar nodig en verzorgt het warme water. Daarnaast is de woning zeer goed geïsoleerd. Er is dakisolatie, HR++ beglazing, bodemisolatie en een geïsoleerde betonnen begane grondvloer met vloerverwarming. Dankzij deze combinatie van installaties en isolerende maatregelen beschikt de woning over energielabel A+. Dat betekent comfortabel wonen met lage energielasten.

Je betreedt de woning in een ruime hal met tochtportaal, uitgevoerd in glas-in-lood, vervolgens een gerenoveerde trap met verlichting met daaronder een kelderkast. In de hal bevindt zich ook het toilet, dit betreft een vernieuwde Geberit wc-douche. Hierna de leefruimte. De woonkamer is sfeervol afgewerkt met een hoogwaardige pvc-vloer en houtkachel met schouw en houtopslag. De open keuken in hoekopstelling heeft een tijdloze kleurstelling en diverse inbouwapparatuur, waaronder inductiekookplaat, combi-oven, plintboiler en koelkast. Aansluitend ligt een royale bijkeuken met bergruimte en plaats voor witgoed en vaatwasser.

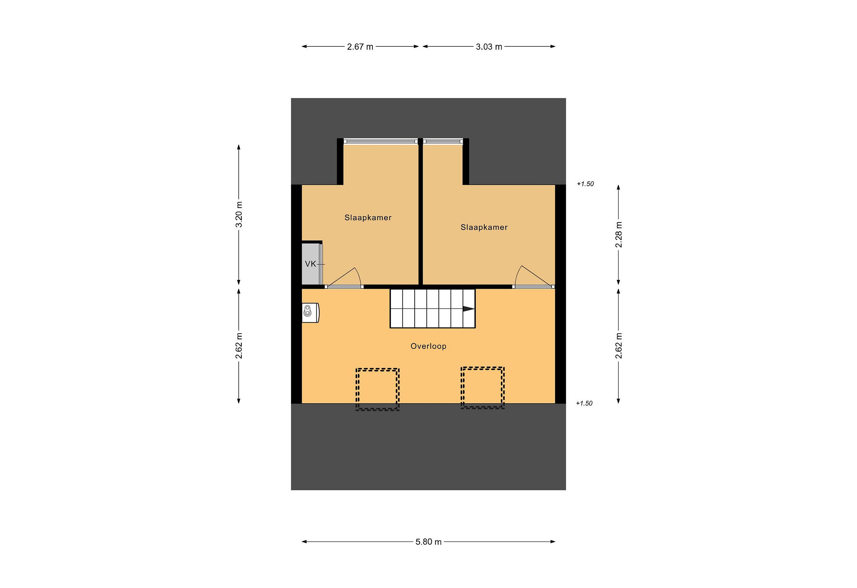
Op de eerste verdieping een overloop met een separaat modern toilet, er zijn drie slaapkamers met strakke wanden en keurige vloerafwerking, de hoofdslaapkamer aan de achterzijde heeft een balkon. Op deze verdieping is ook te bereiken de ruime en zeer luxe badkamer met inloopdouche en groot wastafelmeubel met dubbele kraan, de badkamer is voorzien van sensoren voor de automatische bediening van het licht en er is vloerverwarming aanwezig. De tweede verdieping heeft twee extra slaapkamers en een ruime voorzolder met bergruimte, cv-ketel, hybride warmtepomp en omvormer voor de zonnepanelen.

De achtertuin ligt op het zuiden, is volledig bestraat en onderhoudsvriendelijk. Achterin staat een berging van circa 23 m2 met achterom naar openbare parkeergelegenheid.

--------
De Spoorgracht 10 te Den Helder wordt aangeboden met een richtprijs van € 399.000 k.k. Een bezichtiging plan je makkelijk (en het snelst) zelf in door een bezichtigingsaanvraag via Funda of onze eigen website. Je ontvangt van ons dan gelijk een email en sms met de mogelijke tijdstippen waarop je kan reserveren. Uiteraard kan je ook contact opnemen met ons kantoor.
--------

De Spoorgracht is gelegen nabij het centrum van Den Helder en ook het bruisende Willemsoord met bioscoop, theater, dag- en nachthoreca. Alle gewenste faciliteiten als winkels, zorg en onderwijs zijn in de buurt te vinden. Zowel de (marine)haven als ook de boot naar Texel liggen op fietsafstand. Desondanks is het gelegen aan een niet te drukke weg met voor het overgrote deel bestemmingsverkeer. Een zondagse wandeling brengt je zo via de kade richting Noordzeedijk. Al met al een fijne plek om te wonen.

INDELING:
Begane grond: Entree met vingerafdrukscanner, hal met meterkast, toilet en trapopgang, woonkamer met houtkachel, keuken en bijkeuken.
Verdieping: Overloop met toilet, drie slaapkamers en badkamer.
Tweede verdieping: Voorzolder met plaatsing van de hybride warmtepomp, Cv ketel en omvormer. vervolgens twee slaapkamers.
Lees meer

Verkoopgeschiedenis

Aangeboden sinds
23 februari 2026
Verkoopdatum
16 maart 2026
Looptijd
21 dagen

Kenmerken

Overdracht

Prijs per m2
€ 2.714
Aangeboden sinds
23 februari 2026
Status
Verkocht
Aanvaarding
In overleg

Bouw

Soort woonhuis
Eengezinswoning, tussen woning
Soort bouw
Bestaande bouw
Bouwjaar
1951
Soort dak
Zadeldak
Staat van onderhouden binnen
Goed
Staat van onderhouden buiten
Goed

Oppervlakte en inhoud

Perceeloppervlakte
143 m2
Inhoud van de woning
527 m3
Oppervlakte externe bergruimte
23 m2
Oppervlakte gebouwgebonden buitenruimten
3 m2

Indeling

Aantal kamers
6
Aantal slaapkamers
5
Aantal woonlagen
3
Voorzieningen
Tuin, schuur/berging, ventilatie

Buitenruimte

Balkon
Nee
Schuur/berging
Ja

Maandlasten berekenen

De maandlasten voor je woning bestaan uit meer dan alleen de hypotheeklasten. Hieronder vind je een overzicht van de bijkomende kosten en lasten. Zo weet je precies wat je huis per maand gaat kosten. En met de handige vergelijkers kun je ook nog eens snel de beste deals sluiten!

  • Kaart
  • Streetview