Verkocht

Brakkeveldweg 128 1782 AK Den Helder

101m2
Wonen
3
Kamers
149m2
Perceel
1931
Bouwjaar
NIEUW TE KOOP!!!
Brakkeveldweg 128 te Den Helder

Goed gelegen, uitgebouwde tussenwoning op een royaal perceel. Op een goede locatie staat deze uitgebouwde tussenwoning, ideaal voor wie een solide start op de woningmarkt zoekt. Dankzij de uitbouw beschikt de woning over een verrassend ruime begane grond, waarbij de grote woonkeuken het echte hart van het huis vormt. Er is daarnaast nog voldoende plaats voor een comfortabele zithoek.

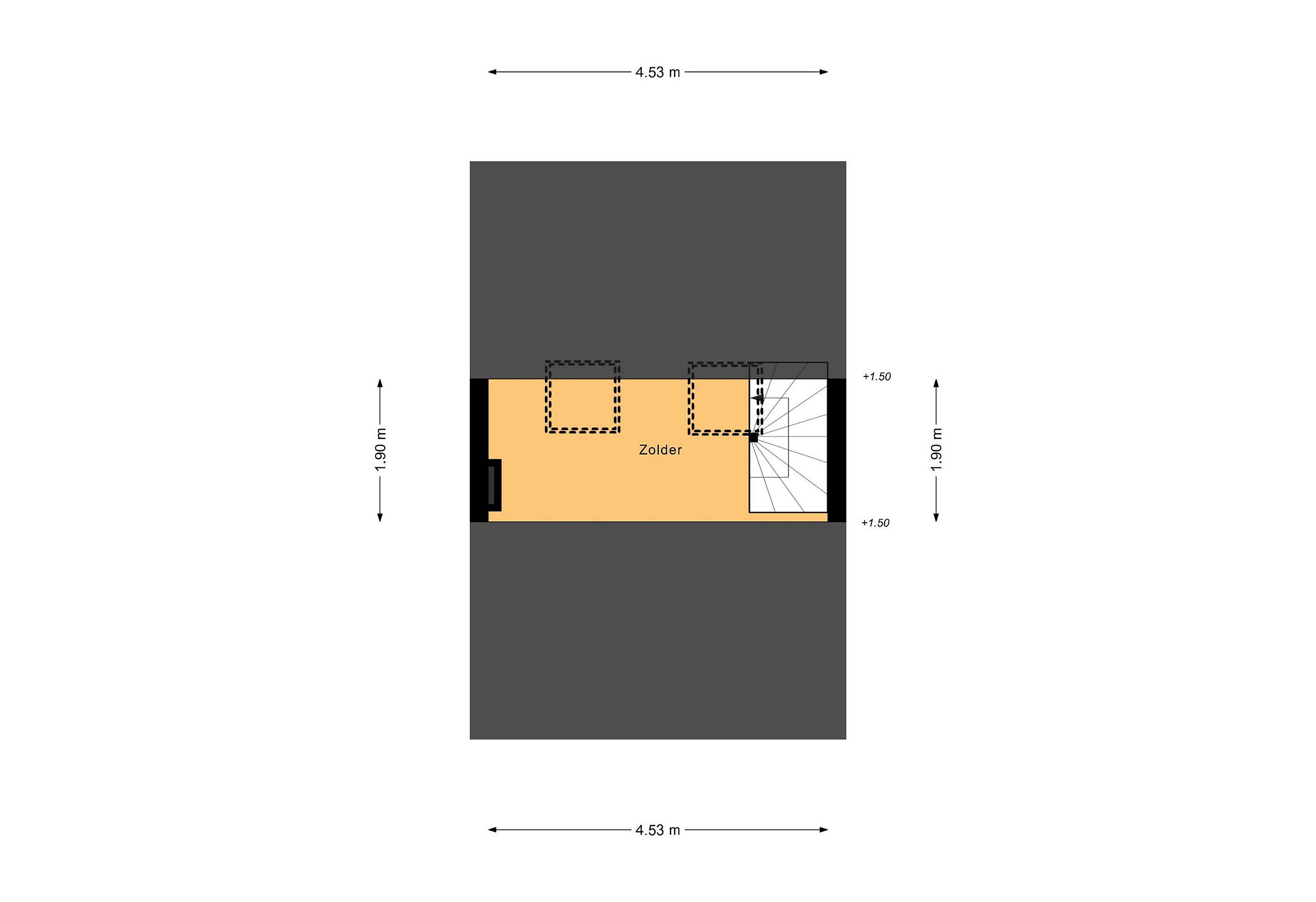
Op de eerste verdieping bevinden zich twee goed bemeten slaapkamers. Boven deze verdieping ligt nog een praktische zolderkamer, uitstekend geschikt als berging, hobbyruimte of, met enkele aanpassingen, als extra slaapkamer.

De diepe achtertuin, gelegen op het westen, biedt voldoende ruimte om te kunnen ontspannen. Achter in de tuin staat er nog een stenen berging.

De woning is in de afgelopen jaren op belangrijke punten verbeterd. Zo zijn diverse houten kozijnen vervangen door kunststof exemplaren met HR++-beglazing en is in 2014 het pannendak volledig vernieuwd.

--------
Een bezichtiging vraag je makkelijk aan via Funda of onze website. Bij een online bezichtigingsaanvraag krijg je direct een link toegestuurd per mail en/of sms waarmee je zelf in onze agenda een afspraak in kunt plannen. Zijn alle plekken gevuld zet je zelf dan zeker op de wachtlijst. Wij nemen dan snel contact met je op. Uiteraard kan je ons ook altijd bellen om een bezichtiging in te plannen!
--------

De Brakkeveldweg 128 te Den Helder wordt aangeboden met een richtprijs van € 219.000 k.k. Gezien de huidige woningmarkt is het niet uitgesloten dat de uiteindelijke verkoopprijs hoger uitvalt. Deze leuke woning is vanaf nu te bezichtigen en kan snel worden opgeleverd.

De woning is centraal gelegen in Den Helder met op wandelafstand zowel het stadscentrum met diens voorzieningen als ook het centraal station, via het tunneltje bereik je snel de Albert Heijn Meeuwenstraat en op korte afstand van de woning zijn er basisscholen en kinderopvang te vinden. Op fietsafstand zijn de (marine)haven en Willemsoord te bereiken.

INDELING:
entree, hal met meterkast en trapopgang, woonkamer met aan de voorzijde een erker en de zithoek met gashaard. Aan de achterzijde in de aanbouw de woonkeuken met plavuizenvloer met vloerverwarming (tevens vloerverwarming in de bijkeuken en badkamer). De aanbouw heeft fraaie daklichten, welke de woonkamer voorziet van meer daglichttoetreding. De bijkeuken biedt ruimte voor een CV ketel en aansluitingen voor het witgoed, daarna volgt het toilet en de badkamer. Via de trap in de hal is de verdieping te bereiken, hier een royale overloop met toegang tot twee slaapkamers met aan de voor- en achterzijde zeer goed kunststof kozijnen met hr++ beglazing. Via een vaste trap is de bergzolder te bereiken. Achter de woning een westelijk gelegen achtertuin met achterom.
Lees meer

Verkoopgeschiedenis

Aangeboden sinds
3 december 2025
Verkoopdatum
30 januari 2026
Looptijd
2 maanden

Kenmerken

Overdracht

Prijs per m2
€ 2.168
Aangeboden sinds
3 december 2025
Status
Verkocht
Aanvaarding
In overleg

Bouw

Soort woonhuis
Eengezinswoning, tussen woning
Soort bouw
Bestaande bouw
Bouwjaar
1931
Soort dak
Zadeldak
Staat van onderhouden binnen
Goed
Staat van onderhouden buiten
Goed

Oppervlakte en inhoud

Perceeloppervlakte
149 m2
Inhoud van de woning
340 m3
Oppervlakte externe bergruimte
11 m2

Indeling

Aantal kamers
3
Aantal slaapkamers
2
Aantal woonlagen
3
Voorzieningen
Tuin, schuur/berging

Buitenruimte

Balkon
Nee
Schuur/berging
Ja

Maandlasten berekenen

De maandlasten voor je woning bestaan uit meer dan alleen de hypotheeklasten. Hieronder vind je een overzicht van de bijkomende kosten en lasten. Zo weet je precies wat je huis per maand gaat kosten. En met de handige vergelijkers kun je ook nog eens snel de beste deals sluiten!

  • Kaart
  • Streetview