Binnenhaven 98 1781 BM Den Helder

95m2
Wonen
5
Kamers
120m2
Perceel
1864
Bouwjaar
NIEUW TE KOOP!!!
Binnenhaven 98 te Den Helder

Een huis dat je niet alleen bekijkt, maar beleeft!

Sommige woningen kloppen gewoon. Niet alleen omdat ze perfect gestyled zijn, maar ook omdat ze karakter hebben, logisch aanvoelen en in de loop der jaren precies goed zijn gegroeid. Dit huis aan de Helderse Binnenhaven is er zo één. Gebouwd in 1864, met zicht op het water en de levendigheid van de haven, maar tegelijk verrassend rustig als jij je binnenin de woning of achter in de tuin begeeft. Je fietst zo naar het centrum of de (marine)haven, terwijl je thuis juist dat fijne, beschutte gevoel hebt. En dan is er nog iets: achter de woning ligt gewoon een royale garage, bereikbaar via de Achterbinnenhaven.

Duurzaamheid, en dat is hier en in deze tijd geen bijzaak. Met een energielabel A+ zit je hier opvallend goed. De hybride warmtepomp, 8 zonnepanelen (2240 WP), HR-glas en de aanwezige isolatie zorgen ervoor dat comfort en lage energielasten hand in hand gaan. Dit is zo’n huis waar je niet alleen nu prettig woont, maar ook met vertrouwen vooruitkijkt. De woning zelf is in de basis charmant en authentiek, maar onderweg slim aangepast aan hoe we nu wonen. De uitbouw op de begane grond en de dakkapellen boven maken dat je hier beschikt over circa 121 m2 gebruiksoppervlak (waarvan bijna 100 m2 woonruimte) op 120 m2 eigen grond. Vier slaapkamers, dus ruimte genoeg!

--------
De richtprijs van deze woning bedraagt € 289.000 kosten koper. Gezien de huidige woningmarkt is het niet uitgesloten dat de uiteindelijke verkoopprijs hoger uitvalt. Een bezichtiging vraag je makkelijk aan via Funda of onze website. Bij een online bezichtigingsaanvraag krijg je direct een link toegestuurd per mail en/of sms waarmee je zelf in onze agenda een afspraak in kunt plannen. Zijn alle plekken gevuld zet je zelf dan zeker op de wachtlijst. Wij nemen dan snel contact met je op. Uiteraard kan je ons ook altijd bellen om een bezichtiging in te plannen!
--------

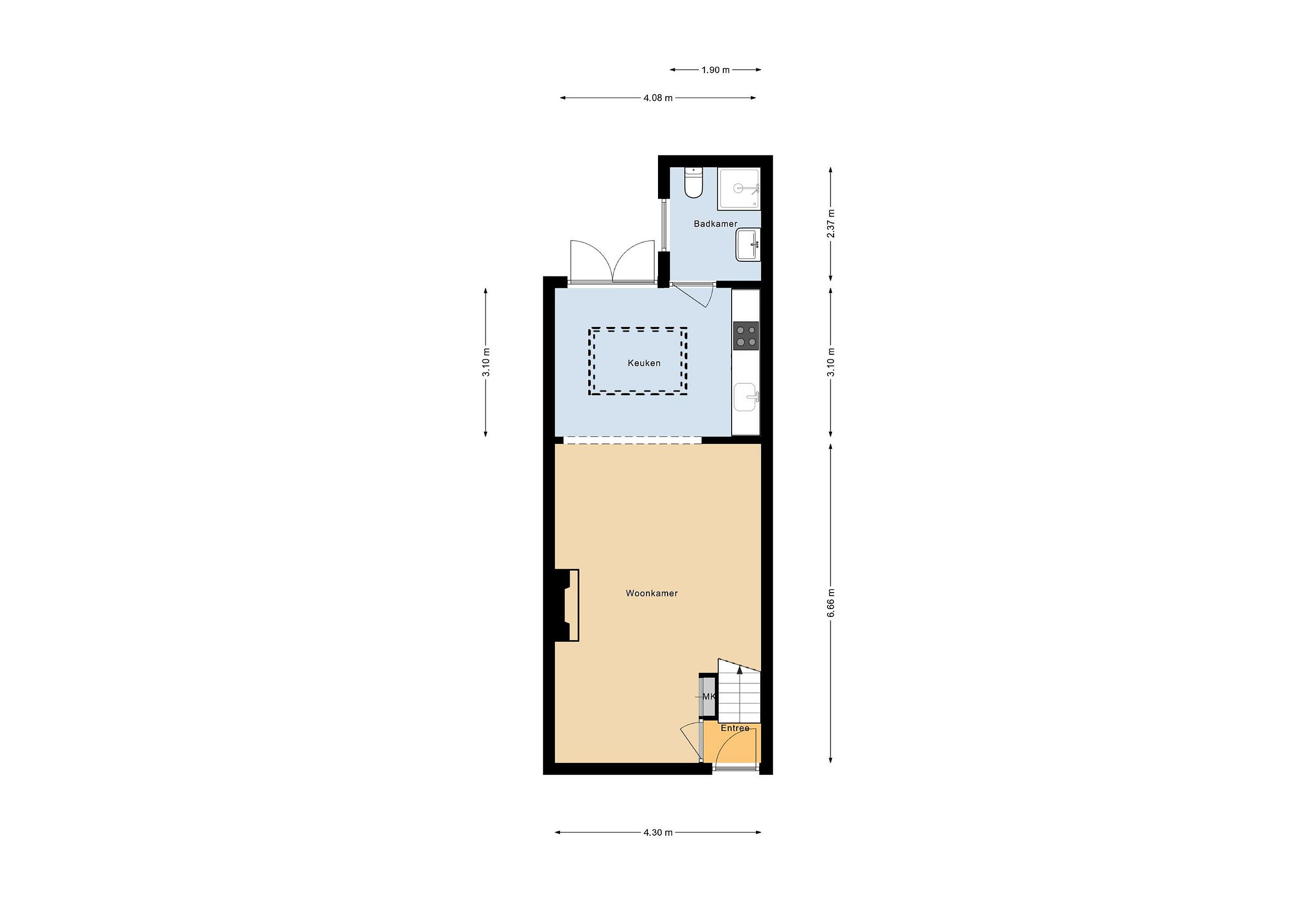
Wat direct opvalt zodra je binnenkomt, is de sfeer. De woonkamer is warm en prettig, met strak gestucte wanden, een PVC vloer en een houtkachel die het plaatje compleet maakt. Achterin, in de aanbouw een ruime inbouwkeuken met alles wat je nodig hebt, veel licht door de lichtkoepel en openslaande deuren naar buiten. Hier leef je vanzelf meer richting tuin en daglicht. Praktisch en slim is ook de badkamer op de begane grond: modern, netjes en volledig betegeld, met douche, wastafelmeubel en toilet. Boven zet die logische indeling zich door. Op de eerste verdieping twee ruime slaapkamers over de volle breedte, met aan de achterzijde een leuke verrassing: een heuse bedstee. Zo’n detail dat het huis nét die knipoog naar toen geeft. De tweede verdieping doet daar niet voor onder, met nog eens twee kamers, beide voorzien van een dakkapel. De tuin ligt op het zuidwesten, dus zon heb je hier volop. Onderhoudsvriendelijk aangelegd, met genoeg ruimte om te zitten, te eten of gewoon even niets te doen. Achterin die eerder genoemde garage, ruim, goed bereikbaar en ook nog eens voorzien van aansluitingen voor het witgoed.

Alles bij elkaar is dit geen standaard woning en dat voel je aan alles. Het is een huis dat in de loop der tijd gegroeid is, zonder zijn oorsprong te verliezen. Precies dat maakt het interessant. Kom kijken, dan snap je wat we bedoelen.
Lees meer

Kenmerken

Overdracht

Prijs per m2
€ 3.042
Aangeboden sinds
18 maart 2026
Status
Beschikbaar
Aanvaarding
In overleg

Bouw

Soort woonhuis
Eengezinswoning, tussen woning
Soort bouw
Bestaande bouw
Bouwjaar
1864
Staat van onderhouden binnen
Goed
Staat van onderhouden buiten
Goed

Oppervlakte en inhoud

Perceeloppervlakte
120 m2
Inhoud van de woning
329 m3
Oppervlakte externe bergruimte
26 m2

Indeling

Aantal kamers
5
Aantal slaapkamers
4
Aantal woonlagen
3
Voorzieningen
Tuin

Buitenruimte

Balkon
Nee
Schuur/berging
Nee

Maandlasten berekenen

De maandlasten voor je woning bestaan uit meer dan alleen de hypotheeklasten. Hieronder vind je een overzicht van de bijkomende kosten en lasten. Zo weet je precies wat je huis per maand gaat kosten. En met de handige vergelijkers kun je ook nog eens snel de beste deals sluiten!

  • Kaart
  • Streetview