Verkocht

Beukenkampstraat 6 1781 TX Den Helder

64m2
Wonen
2
Kamers
105m2
Perceel
1929
Bouwjaar
NIEUW TE KOOP!!!
Beukenkampstraat 6 te Den Helder

Via een bezichtigingsaanvraag op Funda plan je gemakkelijk zelf je bezichtiging in! Ieder moment van de dag!

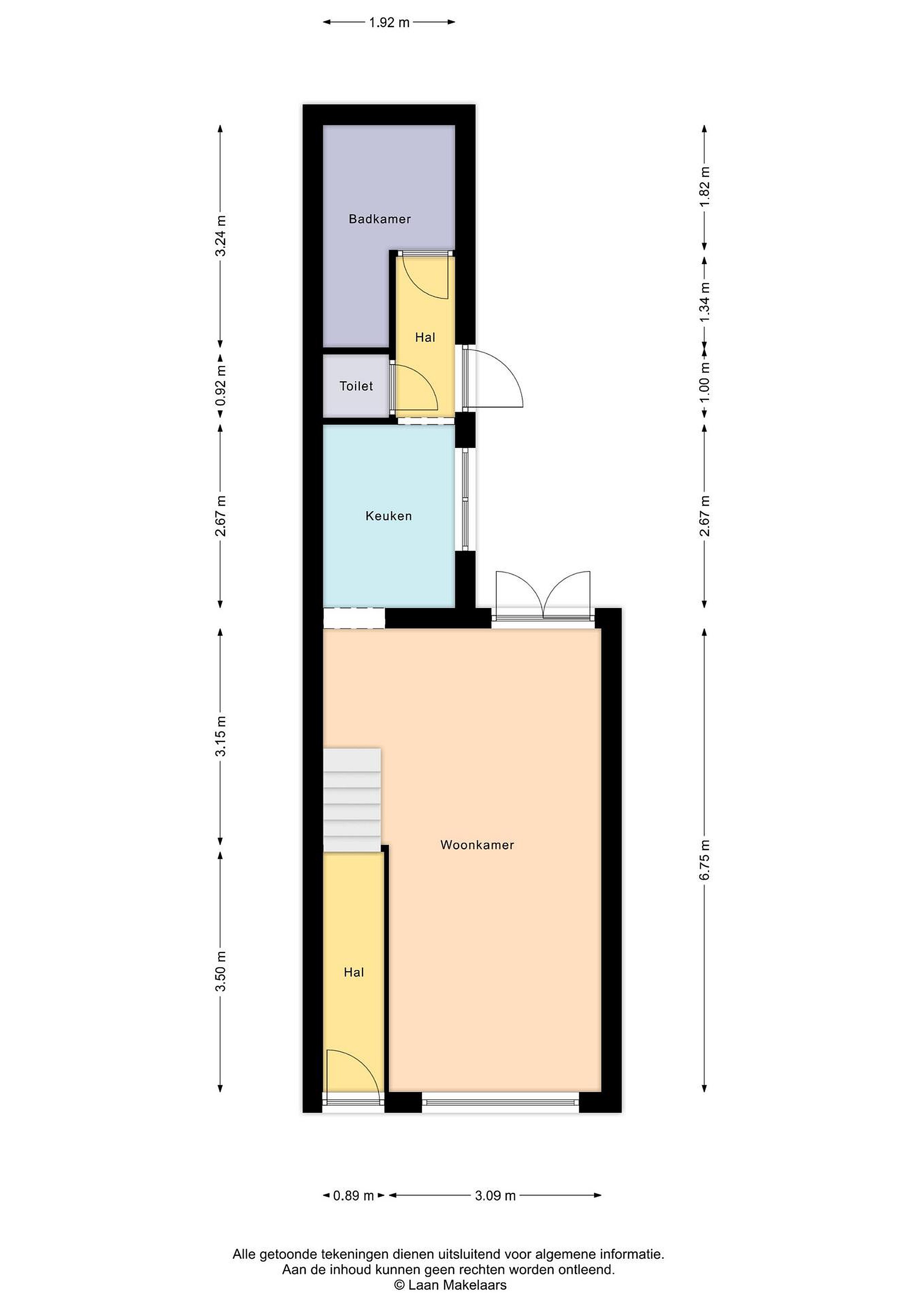
Starterswoning op korte afstand van het centrum, gelegen in een rustige en fijne woonomgeving. De woning beschikt over een nieuw pannendak uit 2016 en aan de voorzijde op de verdieping zijn kunststof kozijnen geplaatst. De woonkamer heeft een fijne lichtinval en biedt voldoende ruimte voor een zit- en eethoek. De keuken bevindt zich in de aanbouw en is eenvoudig uitgevoerd, met ruimte voor losse apparatuur. Aangrenzend is de badkamer met inloopdouche en aansluitingen voor witgoed.

Op de verdieping zijn nu 2 slaapkamers aanwezig. Een derde slaapkamer behoort tot de mogelijkheden; de plattegrond geeft hiervan een goed beeld. Boven de slaapkamers is een vliering aanwezig voor extra bergruimte. De achtertuin is diep en gelegen op het zuiden.

De woning gebruikt vrijwel geen gas doordat de verwarming plaatsvindt via een lucht-lucht warmtepomp met twee binnen-units (één boven en één beneden). Dit systeem kan in de zomer tevens koelen. Het warme water wordt geleverd via een elektrische ITHO Daalderop-boiler en een deel van de elektriciteitskosten wordt opgevangen door 4 zonnepanelen.

--------
Beukenkampstraat 6 te Den Helder wordt aangeboden met een richtprijs van € 185.000 k.k. Gezien de huidige woningmarkt is het niet uitgesloten dat de uiteindelijke verkoopprijs hoger uitvalt. Een bezichtiging plan je makkelijk (en het snelst) zelf in door een bezichtigingsaanvraag via Funda. Je ontvangt van ons dan gelijk een email met de mogelijke tijdstippen waarop je kan reserveren. Uiteraard kan je ook contact opnemen met ons kantoor.
--------

De Beukenkampstraat is een centraal gelegen straat in Den Helder waarvan een deel autovrij is. In dit autovrije deel bieden wij deze leuke starterswoning aan. Wonen in de Beukenkampstraat is wonen nabij het centrum en het centraal station, maar ook supermarkten, basisscholen en kinderopvang zijn vanaf dit adres op loopafstand. Vanaf de woning ben je binnen enkele minuten op de fiets bij de (marine)haven en het gezellige Willemsoord. Uitvalsweg N9 richting Alkmaar ligt om de hoek.

INDELING:
Begane grond: voortuin, entree, hal met meterkast en trapopgang, woonkamer, keuken, toilet en badkamer achter elkaar volgend in de aanbouw.
Verdieping: overloop en twee slaapkamers.
Lees meer

Verkoopgeschiedenis

Aangeboden sinds
7 november 2025
Verkoopdatum
8 januari 2026
Looptijd
2 maanden

Kenmerken

Overdracht

Prijs per m2
€ 2.891
Aangeboden sinds
7 november 2025
Status
Verkocht
Aanvaarding
In overleg

Bouw

Soort woonhuis
Eengezinswoning, tussen woning
Soort bouw
Bestaande bouw
Bouwjaar
1929
Soort dak
Samengesteld dak
Staat van onderhouden binnen
Redelijk
Staat van onderhouden buiten
Goed

Oppervlakte en inhoud

Perceeloppervlakte
105 m2
Inhoud van de woning
225 m3

Indeling

Aantal kamers
2
Aantal slaapkamers
2
Aantal woonlagen
2
Voorzieningen
Tuin

Buitenruimte

Balkon
Nee
Schuur/berging
Nee

Maandlasten berekenen

De maandlasten voor je woning bestaan uit meer dan alleen de hypotheeklasten. Hieronder vind je een overzicht van de bijkomende kosten en lasten. Zo weet je precies wat je huis per maand gaat kosten. En met de handige vergelijkers kun je ook nog eens snel de beste deals sluiten!

  • Kaart
  • Streetview