Verkocht

Adriaan de Grootstraat 161 1785 NK Den Helder

103m2
Wonen
5
Kamers
181m2
Perceel
1964
Bouwjaar
NIEUW TE KOOP!!!
Adriaan de Grootstraat 161 Den Helder

Wij krijgen altijd weer een glimlach op ons gezicht wanneer wij een woning mogen verkopen in de geliefde woonwijk 'de Schooten'. Deze glimlach werd alleen maar groter na het zien van deze woning. Wat een heerlijk huis. Goed onderhouden, een eigen identiteit en op vele punten recent vernieuwd. Een top-woning om in het starten of door te starten. Met de 4 slaapkamers is er namelijk meer dan genoeg ruimte om in te groeien of met een gezin in te trekken. Veel ga je aan de woning niet doen want veel is door de huidige eigenaar al gedaan. Zo is er in 2022 een nieuwe keuken geplaatst, in 2024 een nieuwe badkamer, de CV ketel komt uit 2020, er is vloerverwarming en vorig jaar is er vloerisolatie aangebracht. Dat is toch helemaal prima? Je kan er zo in.

Naast de 4 slaapkamers op de verdieping biedt de woning op de begane grond ook een hele fijne ruimte, inpandig vergroot door een erker aan de voorzijde en het realiseren van een fraaie, open keuken. Ook buiten de woning zijn extra m2 aangebracht door het plaatsen van een serre/tuinkamer aan de achtergevel die vanuit de woning via dubbel openslaande deuren is te betreden. Zie je jezelf al zitten van de zomer zo op het Zuiden? De woning is per half augustus dit jaar te betrekken.

Genoeg gelezen? Op naar de foto's want die zeggen meer dan 1000 woorden. En misschien nog beter.. Plan op tijd je bezichtiging in dan zien we elkaar snel in de woning.

--------
De richtprijs van deze woning bedraagt € 295.000 kosten koper. Gezien de huidige woningmarkt is het niet uitgesloten dat de uiteindelijke verkoopprijs hoger uitvalt. Een bezichtiging vraag je makkelijk aan via Funda of onze website. Bij een online bezichtigingsaanvraag krijg je direct een link toegestuurd per mail en/of sms waarmee je zelf in onze agenda een afspraak in kunt plannen. Zijn alle plekken gevuld zet je zelf dan zeker op de wachtlijst. Wij nemen dan snel contact met je op. Uiteraard kan je ons ook altijd bellen om een bezichtiging in te plannen!
--------

De woning is gelegen in de geliefde wijk de Schooten. Een woonomgeving waar je alle gewenste faciliteiten binnen handbereik hebt. Winkelcentra, (basis)scholen, kinderopvang, zorg, sport maar ook openbaar vervoer als het station Den Helder Zuid bevinden zich op loop- en/of fietsafstand van de woning. Ook voor een mooie zondagse wandeling of je dagelijkse hardlooprondje hoef je niet ver de buurt uit. Zowel het Rehorstpark als Quelderduijn loop je zo aan. De (marine)haven en de Rijksweg richting Alkmaar-Amsterdam en/of de Afsluitdijk bereik je na ca. 10 autominuten.


--------
INDELING
--------
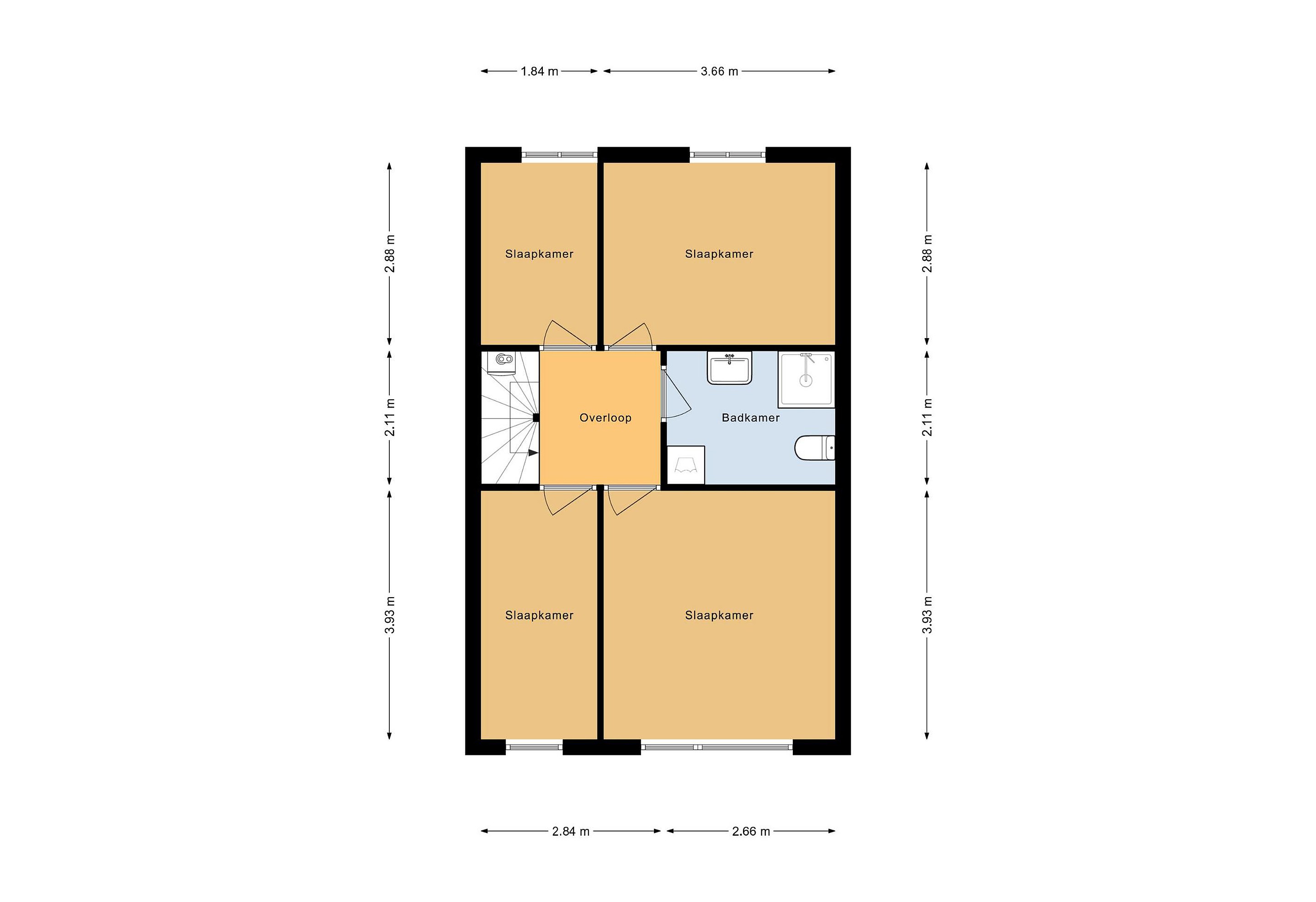
Voortuin, entree in de hal met meterkast, toilet en trapopgang naar de verdieping. Vanuit de hal kom je in de ruime doorzon woonkamer met erker aan de voorzijde en aan de achterzijde een moderne, open inbouwkeuken voorzien van al het gewenste inbouwapparatuur en kookeiland. Vanuit de keuken of de dubbel openslaande tuindeuren in de woonkamer kom je in de tuinkamer/serre en achtertuin op het Zuiden gelegen. De tuin is achterom bereikbaar, achterin de tuin staat een solide tuinberging en in het hart van de tuin nog een extra overdekte loungehoek. Genieten! Op de eerste verdieping telt de woning 4 slaapkamers. Twee aan de voorzijde en twee aan de achterzijde. De badkamer is werkelijk een plaatje, recent compleet vernieuwd en voorzien van een wastafelmeubel, inloopdouche en tweede toilet. Boven de verdieping is er nog een bergzolder, bereikbaar met vlizotrap.

--------
BEZICHTIGEN?
--------
Een bezichtiging vraag je makkelijk aan via Funda of onze website. Bij een online bezichtigingsaanvraag krijg je direct een link toegestuurd per mail en/of sms waarmee je zelf in onze agenda een afspraak in kunt plannen. Zijn alle plekken gevuld zet je zelf dan zeker op de wachtlijst. Wij nemen dan snel contact met je op. Uiteraard kan je ons ook altijd bellen om een bezichtiging in te plannen!

LAAN MAKELAARS
voor de Kop van Noord-Holland

koop- en verkoopbegeleiding
ven bestaande woningen

Lees meer

Verkoopgeschiedenis

Aangeboden sinds
14 maart 2026
Verkoopdatum
1 april 2026
Looptijd
18 dagen

Kenmerken

Overdracht

Prijs per m2
€ 2.864
Aangeboden sinds
14 maart 2026
Status
Verkocht
Aanvaarding
In overleg

Bouw

Soort woonhuis
Eengezinswoning, tussen woning
Soort bouw
Bestaande bouw
Bouwjaar
1964
Staat van onderhouden binnen
Goed
Staat van onderhouden buiten
Goed

Oppervlakte en inhoud

Perceeloppervlakte
181 m2
Inhoud van de woning
422 m3
Oppervlakte externe bergruimte
8 m2
Oppervlakte gebouwgebonden buitenruimten
16 m2

Indeling

Aantal kamers
5
Aantal slaapkamers
4
Aantal woonlagen
2
Voorzieningen
Tuin

Buitenruimte

Balkon
Nee
Schuur/berging
Nee

Maandlasten berekenen

De maandlasten voor je woning bestaan uit meer dan alleen de hypotheeklasten. Hieronder vind je een overzicht van de bijkomende kosten en lasten. Zo weet je precies wat je huis per maand gaat kosten. En met de handige vergelijkers kun je ook nog eens snel de beste deals sluiten!

  • Kaart
  • Streetview