Verkocht

Vinkenlaan 133 2623 GJ Delft

130m2
Wonen
6
Kamers
164m2
Perceel
1979
Bouwjaar
Ruime twee-onder-één-kap woning met garage gelegen in de populaire woonwijk Tanthof-Oost.
Deze 6-kamer woning heeft een schitterend aangelegde diepe achtertuin met diverse terrassen.
In de directe nabijheid bevinden zich buurtwinkels (Jumbo), scholen, openbaar vervoer en natuur- en recreatiegebied ''Midden-Delfland''. Zeer centraal gelegen met goede uitvalswegen en met station Delft Campus op korte afstand.
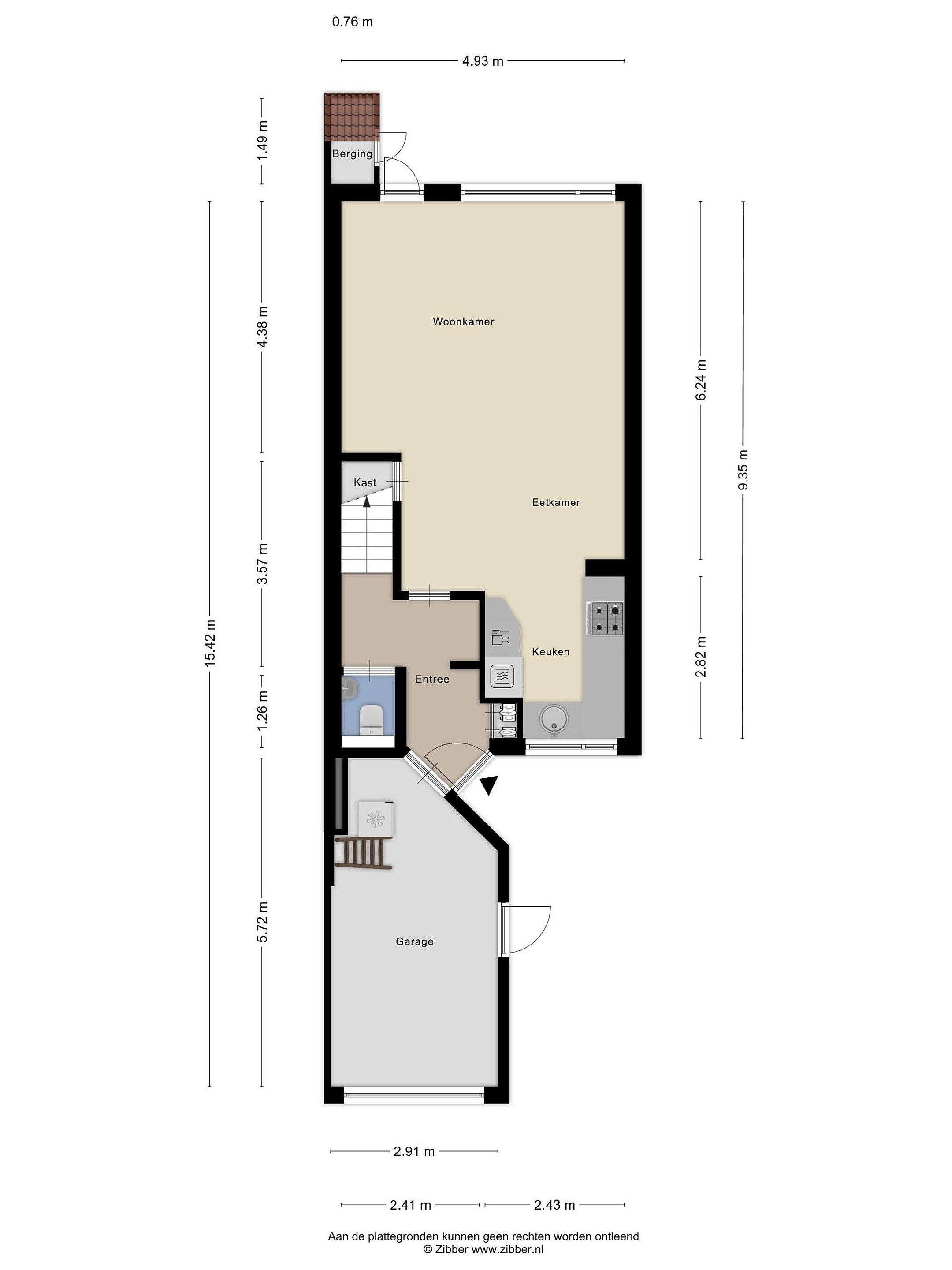
Begane grond
Entree, hal met meterkast (6 groepen + a.l.s.), deur naar de garage en toilet met wandtoilet en fonteintje. De tuingerichte woonkamer is voor een groot deel voorzien van vloerverwarming (2021) en heeft een trapkast. Via een loopdeur bereikt u de fraai aangelegde tuin met diverse terrassen, een bergkast en achterom. De open keuken (2002) is gelegen aan de voorzijde van de woning en is voorzien van diverse inbouw-apparatuur (4-pits gaskooplaat, afzuigkap, combioven, close-in-boiler, vaatwasser en koelkast). De ruime garage is voorzien van een bergzolder.

Eerste verdieping
De overloop geeft toegang tot twee ruime slaapkamers en de badkamer. Eén slaapkamer is gelegen aan de achterzijde van de woning. De slaapkamer aan de voorzijde van de woning heeft een vide met bovenin een raam. De badkamer is geheel betegeld en voorzien van een ligbad, douchecabine, wandtoilet en een wastafelmeubel (2002).

Tweede verdieping
Via de overloop heeft u toegang tot maar liefst nog drie slaapkamers, een tweede badkamer en een technische ruimte met HR combi ketel (Remeha 2020) en de slimme MV-unit (2022). Twee slaapkamers zijn gelegen aan de achterzijde van de woning, waarvan één kamer is voorzien van een vaste kast en een lichte vliering. Aan de voorzijde ligt de grootste slaapkamer. Deze is voorzien van twee vaste kasten. De badkamer (2002) is geheel betegeld en voorzien van een douchecabine, wastafelmeubel en opstelplaats voor de wasmachine en wasdroger.

Tuin
De achtertuin is gelegen op het Oosten. Door de diepte en ligging kan je op diverse tijden van de dag heerlijk in de zon zitten. Via de poort schijnt de ondergaande zon aan het einde van de dag op het terras aan de achterzijde van de tuin.

Details
Bouwjaar: 1979; perceeloppervlakte: 169 m2; gebruiksoppervlak wonen: 130,5 m2; overige inpandige ruimte: 17,5 m2; gebouwgebonden buitenruimte: 0 m2; inhoud: 524 m3; externe bergruimte: 0,6 m2.
* De woning beschikt over Energielabel: C;
* De tuinligging is Oost, maar door de diepte en de ligging van de tuin kunt u in de zomer nog lang in de zon zitten. De zon schijnt aan het einde van de dag nog door de poort de tuin in;
* De woning is aan de achterzijde op de begane grond voorzien van een uitvalscherm en een screen;
* De woning is voorzien van een slimme mechanische ventilatie-unit (2022);
* De woning is voorzien van airconditioning op de 2e etage met een hoog vermogen voor koeling van de slaapkamers op de 1e en 2e etage;
* De woning is grotendeels voorzien van HR++ glas (2022) en voor een klein deel van gewoon dubbel glas.

Lees meer

Verkoopgeschiedenis

Aangeboden sinds
5 september 2025
Verkoopdatum
26 november 2025
Looptijd
3 maanden

Kenmerken

Overdracht

Prijs per m2
€ 4.215
Aangeboden sinds
5 september 2025
Status
Verkocht
Aanvaarding
In overleg

Bouw

Soort woonhuis
Eengezinswoning, twee-onder-een-kap woning
Soort bouw
Bestaande bouw
Bouwjaar
1979
Soort dak
Samengesteld dak
Staat van onderhouden binnen
Goed
Staat van onderhouden buiten
Goed

Oppervlakte en inhoud

Perceeloppervlakte
164 m2
Inhoud van de woning
524 m3
Oppervlakte externe bergruimte
0 m2
Oppervlakte overige inpandige ruimten
17 m2

Indeling

Aantal kamers
6
Aantal slaapkamers
5
Aantal woonlagen
3
Voorzieningen
Tuin, ventilatie, alarmsysteem, buitenzonwering, airconditioning

Buitenruimte

Balkon
Nee
Schuur/berging
Nee

Maandlasten berekenen

De maandlasten voor je woning bestaan uit meer dan alleen de hypotheeklasten. Hieronder vind je een overzicht van de bijkomende kosten en lasten. Zo weet je precies wat je huis per maand gaat kosten. En met de handige vergelijkers kun je ook nog eens snel de beste deals sluiten!

  • Kaart
  • Streetview