Verkocht OV

Michiel Adriaensz. de Ruijterstraat 10 2678 GB De Lier

77m2
Wonen
4
Kamers
112m2
Perceel
1960
Bouwjaar
Deze eengezinswoning ligt op loopafstand van het centrum en heeft een zonnige tuin op het Zuidwesten. De lichte woonkamer, moderne keuken en bijkeuken, 3 slaapkamers en ruime bergzolder zorgen ervoor dat dit een fijne gezinswoning is. Benieuwd? Maak dan een afspraak met ons kantoor om een bezichtiging in te plannen.
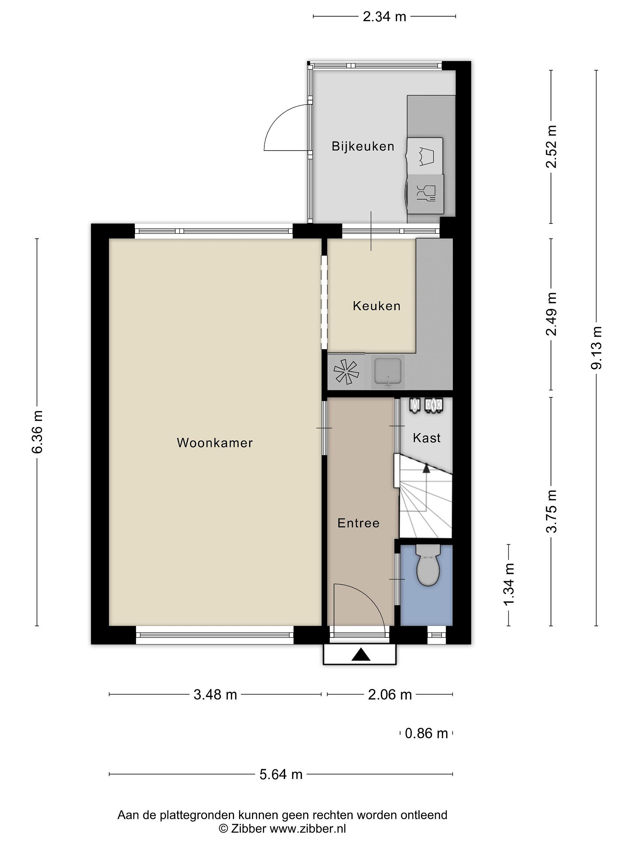
Begane grond
Aan de voorzijde valt direct de breedte van deze woning op. Dat is dan ook het voordeel van deze bouw: met wat meer breedte heb je wat minder diepte nodig, waardoor het heerlijk licht is in de woning. De hal geeft toegang tot het toilet, de trapopgang naar de verdieping, de trapkast en de woonkamer. De woonkamer is heerlijk licht met zowel aan de voor- als achterzijde grote raampartijen. Een ruime doorgang geeft toegang tot de moderne lichte keuken, voorzien van een
4-pits inductie kookplaat, afzuigkap, koelkast en vriezer en vaatwasser. Vanuit de keuken heeft u toegang tot de bijkeuken met opstelplaats voor de wasmachine en de vaatwasser. De HR-combiketel (Remeha 2015) is weggewerkt in een kast in de bijkeuken. De bijkeuken geeft toegang tot de zonnige tuin met achterom en vrijstaande stenen berging.

Eerste verdieping
De overloop geeft toegang tot de 3 slaapkamers en de badkamer. Twee slaapkamers zijn gesitueerd aan de achterzijde van de woning. De derde slaapkamer en de badkamer zijn gelegen aan de voorzijde van de woning. De lichte badkamer is voorzien van een douchecabine, een wastafelmeubel en designradiator. Vanuit de overloop kunt u middels een vlizotrap de bergzolder bereiken.

Details
Bouwjaar: 1960; perceeloppervlakte: 112 m2; gebruiksoppervlak wonen: 77,9 m2; inpandige bergruimte: 0 m2; gebouw gebonden buitenruimte: 0 m2; inhoud: 275,90 m3; externe bergruimte: 7,2 m2.
- De woning beschikt over Energielabel: C
- De woning is voorzien van dubbel glas;
- De begane grond vloer is geïsoleerd met steenwol (sept. 2025), de muren van EPS parels (feb. 2024) en het dak met PUR (2024);
- De meterkast (9 groepen) zit in de trapkast.
- Elektrisch bedienbaar uitvalscherm aan de achterzijde.

Lees meer

Kenmerken

Overdracht

Prijs per m2
€ 5.071
Aangeboden sinds
7 april 2026
Status
Verkocht onder voorbehoud
Aanvaarding
In overleg

Bouw

Soort woonhuis
Eengezinswoning, tussen woning
Soort bouw
Bestaande bouw
Bouwjaar
1960
Soort dak
Zadeldak
Staat van onderhouden binnen
Goed
Staat van onderhouden buiten
Goed

Oppervlakte en inhoud

Perceeloppervlakte
112 m2
Inhoud van de woning
275 m3
Oppervlakte externe bergruimte
7 m2

Indeling

Aantal kamers
4
Aantal slaapkamers
3
Aantal woonlagen
3
Voorzieningen
Tuin, schuur/berging

Buitenruimte

Balkon
Nee
Schuur/berging
Ja

Maandlasten berekenen

De maandlasten voor je woning bestaan uit meer dan alleen de hypotheeklasten. Hieronder vind je een overzicht van de bijkomende kosten en lasten. Zo weet je precies wat je huis per maand gaat kosten. En met de handige vergelijkers kun je ook nog eens snel de beste deals sluiten!

  • Kaart
  • Streetview