Verkocht OV

Burgemeester Cramerlaan 44 2678 AM De Lier

93m2
Wonen
4
Kamers
128m2
Perceel
1931
Bouwjaar
Op zoek naar een charmante instapklare jaren ‘30 woning met veel bergruimte? Deze goed onderhouden 4-kamerwoning met authentieke details, is een ideale kans voor starter of jong gezin die op zoek zijn naar een fijne plek zonder te moeten klussen. Prettige tuin, heel fijn gelegen, met scholen, sportverenigingen en uitvalswegen dichtbij en het gezellige centrum op fietsafstand.




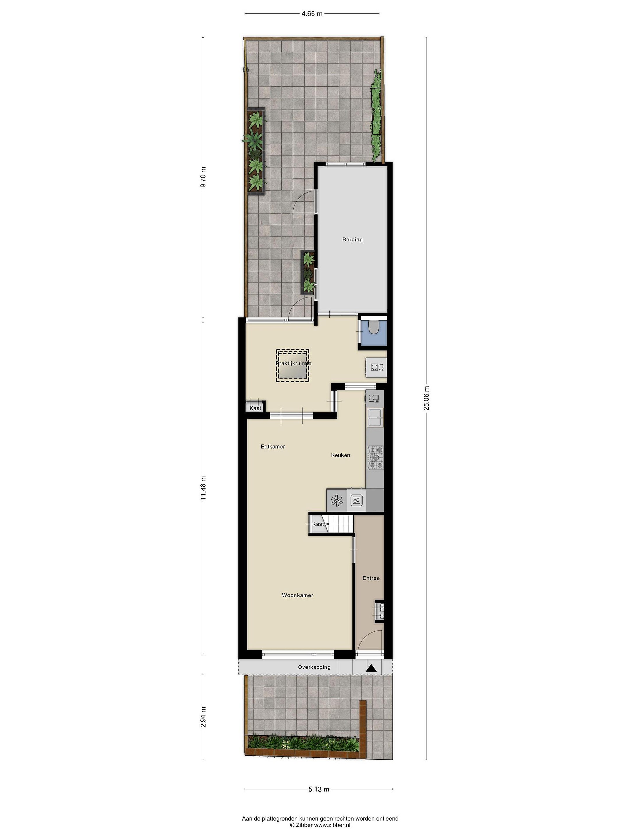
Begane grond
Via de leuk aangelegde voortuin is de voordeur bereikbaar.
Entree woning, hal met meterkast (9 groepen en 3 a.l.s.) en trap naar de eerste etage. De woonkamer is heerlijk licht door de grote raampartij aan de voorzijde. Een trapkast biedt veel opbergruimte. De half open moderne keuken (2020) is voorzien van een natuurstenen aanrechtblad en diverse inbouwapparatuur (brede 5-pits gaskookplaat, afzuigkap, grote oven, combimagnetron, vaatwasser en Quooker) en heeft authentieke openslaande deuren naar de praktijkruimte/bijkeuken. De multifunctionele ruimte is momenteel in gebruik als praktijkruimte en is voorzien van een lichtkoepel, opstelplaats voor wasmachine en droger, inbouwkast en geeft toegang tot het toilet met wandcloset. Middels de achterdeur is de achtertuin bereiken. Deze is gelegen op het noordoosten en voorzien van een achterom. De ruime berging is zowel bereikbaar vanuit de praktijkruimte/bijkeuken als vanaf buiten.

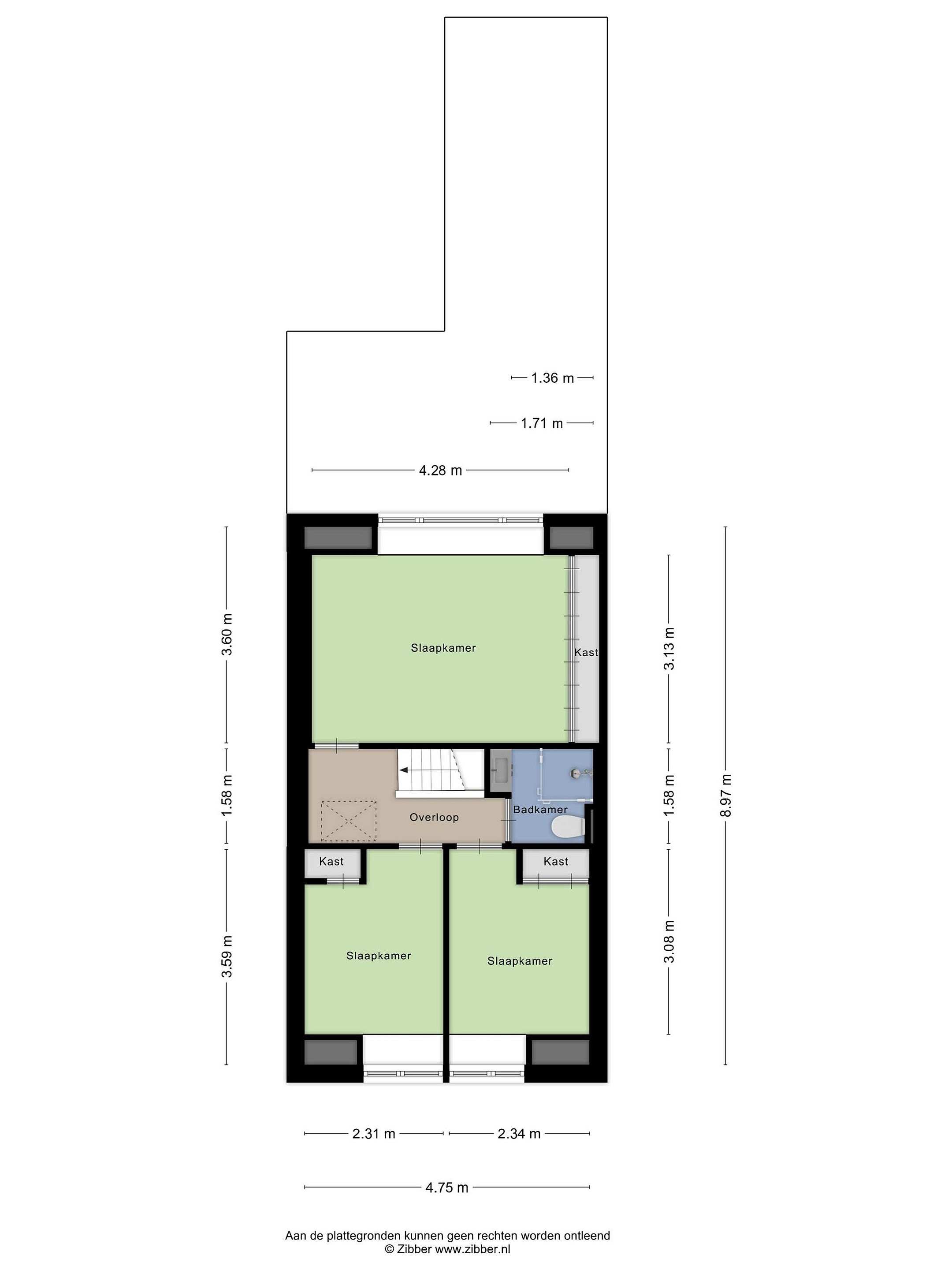
Eerste verdieping
De overloop geeft toegang tot de badkamer en 3 slaapkamers waarvan er 2 zijn gelegen aan de voorzijde van de woning en 1 aan de achterzijde. De slaapkamers zijn allen voorzien van een vaste kast. De badkamer is voorzien van een douchecabine, wastafel en tweede toilet. Deze etage heeft nog de originele paneeldeuren.
Via een vlizotrap is de ruime geïsoleerde bergzolder met Velux dakraam en opstelplaats voor HR-combiketel (Remeha 2010) bereikbaar.

Tuin:
De grotendeels bestraatte achtertuin ligt op het noordoosten heeft een brede achterom en een ruime aangebouwde, stenen berging. De achtertuin heeft geen inkijk van achterburen. De speeltuin van 't Heitje ligt schuin achter de woning.

Details
Bouwjaar: 1931; perceeloppervlakte: 128 m2; gebruiksoppervlak wonen: 93,6 m2; overige inpandige ruimte: 19,7 m2 (bering en zolder); gebouwgebonden buitenruimte: 0 m2; externe bergruimte: 0 m2; inhoud: 401,28 m3.
* De woning beschikt over Energielabel: C;
* Vanaf de meterkast naar de keuken is in 2020 een voedingskabel gelegd ter voorbereiding van elektrisch koken;
* Op de praktijkruimte na is in 2010 en 2022 de bedrading vervangen en een nieuwe groepenkast geplaatst;
* In 2023 is de voordeur vervangen, de natuurstenen drempel en het kozijn;
* Uitvalscherm op de begane grond aan de voorzijde van de woning.

Lees meer

Kenmerken

Overdracht

Prijs per m2
€ 4.274
Aangeboden sinds
1 september 2025
Status
Verkocht onder voorbehoud
Aanvaarding
In overleg

Bouw

Soort woonhuis
Eengezinswoning, tussen woning
Soort bouw
Bestaande bouw
Bouwjaar
1931
Soort dak
Mansardedak
Staat van onderhouden binnen
Goed
Staat van onderhouden buiten
Goed

Oppervlakte en inhoud

Perceeloppervlakte
128 m2
Inhoud van de woning
401 m3
Oppervlakte overige inpandige ruimten
19 m2

Indeling

Aantal kamers
4
Aantal slaapkamers
3
Aantal woonlagen
3
Voorzieningen
Tuin, schuur/berging, buitenzonwering, dakraam

Buitenruimte

Balkon
Nee
Schuur/berging
Ja

Maandlasten berekenen

De maandlasten voor je woning bestaan uit meer dan alleen de hypotheeklasten. Hieronder vind je een overzicht van de bijkomende kosten en lasten. Zo weet je precies wat je huis per maand gaat kosten. En met de handige vergelijkers kun je ook nog eens snel de beste deals sluiten!

  • Kaart
  • Streetview