Verkocht OV

Kerkstraat 25 4567 CJ Clinge

110m2
Wonen
5
Kamers
390m2
Perceel
1936
Bouwjaar
Karakteristiek wonen met rust en ruimte in het hart van Clinge

Bent u op zoek naar de charme van de jaren '30 gecombineerd met een royale tuin op het zonnige zuiden? Deze vrijstaande woning in de dorpskern van Clinge biedt een unieke kans voor wie houdt van ruimte, privacy en een woning met karakter.

Begane grond Bij binnenkomst via de authentieke hal met trapopgang ervaart u direct de fijne sfeer van deze woning. De royale doorzonwoonkamer geniet van een prachtige lichtinval. Aansluitend bevindt zich de eetkamer, een heerlijke plek voor uitgebreide diners, met direct toegang tot de keuken en het aangrenzende overdekte terras. Hier geniet u al vroeg in het voorjaar van het buitenleven.
In de aanbouw achter de eetkamer bevindt zich een praktische hal die toegang biedt tot de bijkeuken, het toilet en een doucheruimte. De bijkeuken is volledig functioneel met witgoedaansluitingen en de opstelling van de CV-ketel.

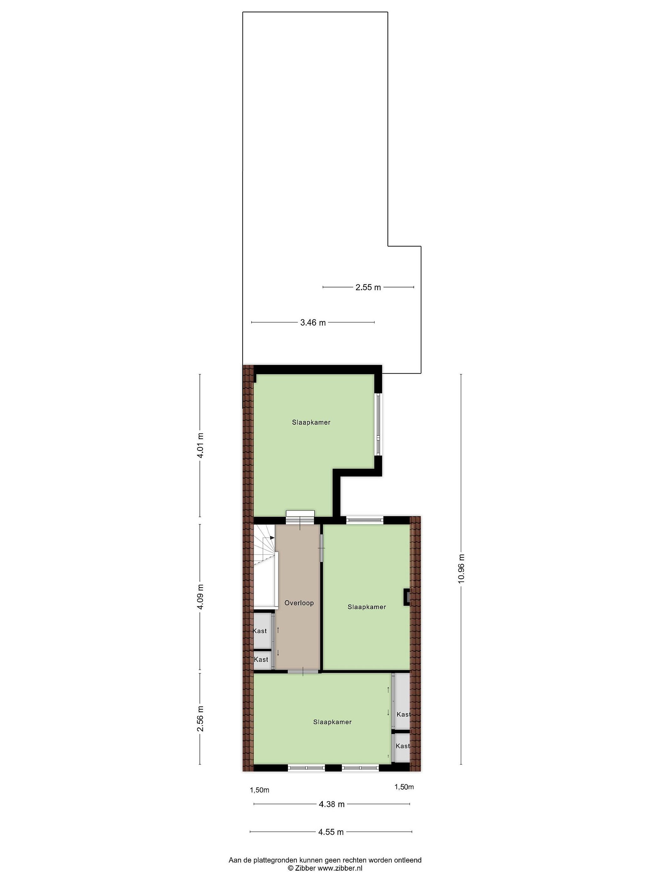
Op de verdieping bevinden zich drie ruime slaapkamers. Dankzij de slimme indeling is er daarnaast meer dan voldoende bergruimte aanwezig voor al uw spullen.

De woning staat op een royaal perceel met een oprit die plaats biedt aan meerdere auto’s. De vrijstaande garage (ca. 18 m2) is voorzien van een geïsoleerd dak, ideaal voor de hobbyist of als veilige stalling voor uw auto.

De achtertuin is een waar paradijs voor zonliefhebbers.
Gelegen op het zonnige zuiden, biedt deze tuin alle ruimte voor ontspanning en tuinieren. Er is tevens een extra berging aanwezig voor tuingereedschap en fietsen.

Bijzonderheden:
- Charmante jaren '30 architectuur.
- De woning is rondom voorzien van rolluiken.
- Overwegend houten kozijnen met dubbele beglazing; energielabel D.
- CV-ketel (ca. 12 jaar oud).
- Gelegen in een rustige straat in het centrum van Clinge, op korte afstand van natuurgebied 'De Clingse Bossen' en de Belgische grens.

Kortom: een sfeervol vrijstaand woonhuis met een riante tuin en volop mogelijkheden!



Lees meer

Kenmerken

Overdracht

Prijs per m2
€ 2.177
Aangeboden sinds
26 februari 2026
Status
Verkocht onder voorbehoud
Aanvaarding
In overleg

Bouw

Soort woonhuis
Eengezinswoning, vrijstaande woning
Soort bouw
Bestaande bouw
Bouwjaar
1936
Soort dak
Mansardedak
Staat van onderhouden binnen
Uitstekend
Staat van onderhouden buiten
Uitstekend

Oppervlakte en inhoud

Perceeloppervlakte
390 m2
Inhoud van de woning
461 m3
Oppervlakte externe bergruimte
17 m2
Oppervlakte overige inpandige ruimten
14 m2

Indeling

Aantal kamers
5
Aantal slaapkamers
3
Aantal woonlagen
2
Voorzieningen
Tuin, rolluiken

Buitenruimte

Balkon
Nee
Schuur/berging
Nee

Maandlasten berekenen

De maandlasten voor je woning bestaan uit meer dan alleen de hypotheeklasten. Hieronder vind je een overzicht van de bijkomende kosten en lasten. Zo weet je precies wat je huis per maand gaat kosten. En met de handige vergelijkers kun je ook nog eens snel de beste deals sluiten!

  • Kaart
  • Streetview