Verkocht

Van Speykstraat 58 2901 BD Capelle aan den IJssel

66m2
Wonen
3
Kamers
112m2
Perceel
1930
Bouwjaar
Starters opgelet!

Sfeervol en gezellig wonen in het rustige en vriendelijke Capelle-West!

Een karakteristieke en knusse jaren ‘30 EENGEZINSWONING met een gemoderniseerde afwerking.

De woning is bereikbaar via een achterpad en de achtertuin, heeft een badkamer op de begane grond en een heerlijke tuin op het oosten.

Zie onderstaande hoofdkenmerken met nadere omschrijving en de uitgebreide fotoreportage. Zelf sfeer proeven in de woning? Bel met Kok Makelaars voor een bezichtiging!

Hoofdkenmerken:
- Gezellige woonkamer met open keuken
- Woonkeuken met inbouwapparatuur
- Badkamer met douche en toilet op begane grond
- 2 slaapkamers op de verdieping
- Achtertuin met berging op het oosten
- Woonoppervlakte ca. 66 m2
- Perceeloppervlakte ca. 112 m2
- Eigen grond

Gelegen in de woonwijk Capelle-West nabij velerlei voorzieningen, zoals een gezellige winkelstraat, overdekt winkelcentrum “Puccinipassage”, metrostation Capelsebrug, scholen, gezondheidszorg, kinderopvang, de Hollandsche IJssel en uitvalswegen.

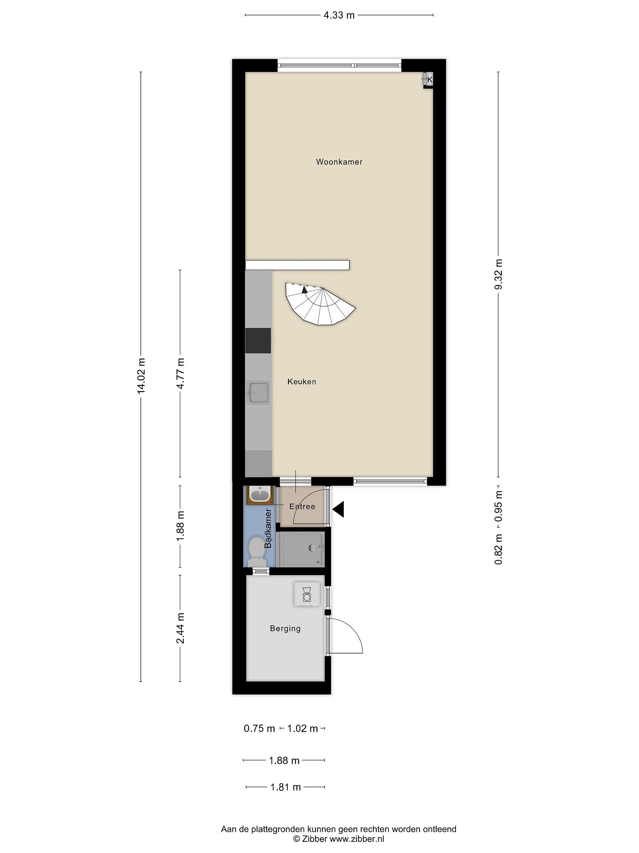
INDELING (voor de afmetingen, zie de plattegrondtekeningen)

Begane grond:
De begane grond is voorzien van PVC vloerafwerking.

Entree/hal aan de achterzijde van de woning, met toegang tot de woonkeuken/woonkamer en de badkamer/toilet. Tussen de woonkeuken en woonkamer biedt een spiltrap toegang tot de eerste verdieping.

Woonkamer, een gezellige woonkamer gelegen aan de voorzijde.

Keuken, een open woonkeuken aan de achterzijde, voorzien van een recht keukenblok, beschikt over een inductiekookplaat met afzuigkap, oven, vaatwasser en een koel/vriescombinatie.

Badkamer/toilet, geheel betegeld, voorzien van een douchecabine, wastafel en toilet.

Eerste verdieping:
De eerste verdieping is voorzien van laminaat vloerafwerking.

Slaapkamer 1, een ruime slaapkamer aan de voorzijde, voorzien van airconditioning en een vaste kastenwand.
Slaapkamer 2, een grote open kamer aan de achterzijde, voorzien van een vaste kastenwand, wastafel, opstelling cv-ketel (boven de trap) en een Velux dakraam.



Achtertuin, een heerlijke tuin gelegen op het oosten, voorzien van bestrating, een houten berging, buitenkraan en achterom.

Voortuin, voorzien van zowel bestrating en grind.

Bijzonderheden:
- Cv-ketel Intergas (2007)
- Kunststof (grotendeels) en houten kozijnen
- Dubbele beglazing
- Energielabel C
- Bouwjaar ca. 1930

Oplevering: in overleg met verkoper, indicatief half juni 2026.

Bij het samenstellen van deze verkoopinformatie en (plattegrond)tekeningen zijn we nauwkeurig te werk gegaan, aan onjuistheden en/of onvolkomenheden kunt u echter geen rechten ontlenen. Daarnaast aanvaardt de makelaar of zijn opdrachtgever geen aansprakelijkheid voor de in de verkoopinformatie en (plattegrond)tekeningen verstrekte informatie.
Lees meer

Verkoopgeschiedenis

Aangeboden sinds
19 februari 2026
Verkoopdatum
23 maart 2026
Looptijd
één maand

Kenmerken

Overdracht

Prijs per m2
€ 5.076
Aangeboden sinds
19 februari 2026
Status
Verkocht
Aanvaarding
In overleg

Bouw

Soort woonhuis
Eengezinswoning, tussen woning
Soort bouw
Bestaande bouw
Bouwjaar
1930
Soort dak
Zadeldak
Staat van onderhouden binnen
Goed
Staat van onderhouden buiten
Goed

Oppervlakte en inhoud

Perceeloppervlakte
112 m2
Inhoud van de woning
233 m3
Oppervlakte externe bergruimte
4 m2

Indeling

Aantal kamers
3
Aantal slaapkamers
2
Aantal woonlagen
2
Voorzieningen
Tuin, schuur/berging, buitenzonwering, airconditioning, dakraam

Buitenruimte

Balkon
Nee
Schuur/berging
Ja

Maandlasten berekenen

De maandlasten voor je woning bestaan uit meer dan alleen de hypotheeklasten. Hieronder vind je een overzicht van de bijkomende kosten en lasten. Zo weet je precies wat je huis per maand gaat kosten. En met de handige vergelijkers kun je ook nog eens snel de beste deals sluiten!

  • Kaart
  • Streetview