Tafelbaai 23 2904 BJ Capelle aan den IJssel

100m2
Wonen
4
Kamers
105m2
Perceel
1976
Bouwjaar
OPEN HUIS op zaterdag 28 maart van 11.00 - 15.00 uur.
Welkom aan de Tafelbaai 23: een fijne jaren ’70 hoekwoning in een rustige, groene woonomgeving in Capelle aan den IJssel. Binnen treft u een lichte doorzonwoonkamer, een nette hoekkeuken, een moderne badkamer en drie slaapkamers verdeeld over de verdiepingen. Extra pluspunten: de onderhoudsarme kunststof kozijnen, de praktische berging én de overkapping voor beschut buiten zitten. Een woning met een goede basis, waar u desgewenst ook uw eigen smaak nog verder in kunt brengen.
Begane grond
U draait de straat in en merkt meteen: dit is zo’n buurt waar het tempo vanzelf zakt. Geen doorgaand verkeer dat u de hele dag herinnerd aan haast, maar een woonomgeving waar mensen gewoon… wonen. U parkeert voor de deur en kijkt nog even naar de gevel. Een hoekwoning. Altijd net even lekkerder. Meer lucht, meer privacy en vaak ook nét wat meer mogelijkheden.

U pakt de sleutel, opent de voordeur en stapt binnen.

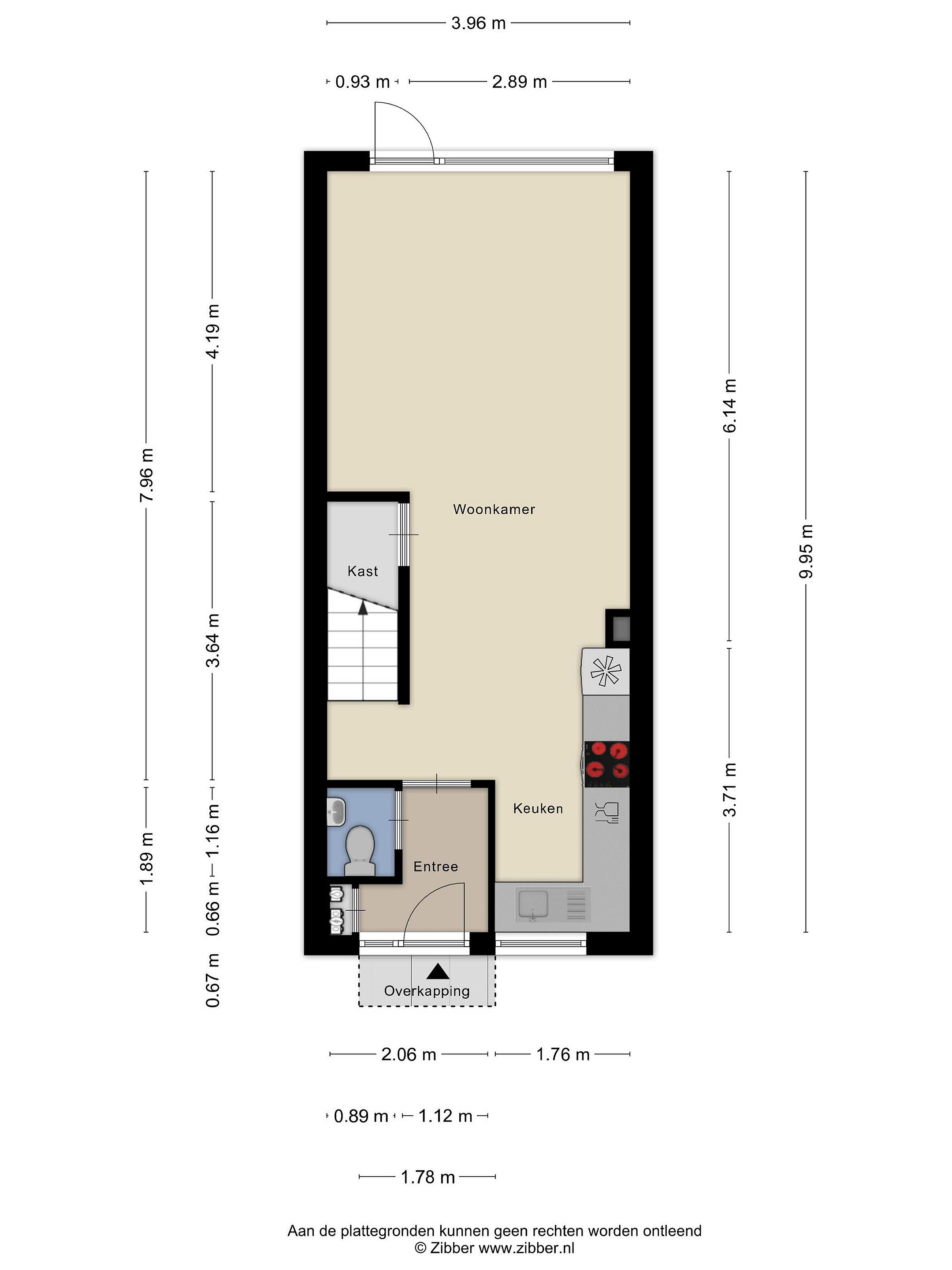
In de entree is het direct overzichtelijk: meterkast, de toiletruimte en de deur naar de woonkamer.

De woonkamer is heerlijk lang, met aan de achterzijde een royale raampartij en een deur naar buiten. Het daglicht valt breed naar binnen en geeft de ruimte dat prettige “open” gevoel. U ziet meteen de kansen: een fijne zithoek, een eettafel die niet in de weg hoeft te staan, en toch nog genoeg loopruimte over.

Een praktisch detail: aan de zijgevel is een extra wand vóór de buitengevel geplaatst voor isolatie. Dat maakt de woonkamer comfortabeler, en tegelijk is het iets om mee te nemen in uw plannen als u later de oorspronkelijke lijn van de gevel weer terug zou willen brengen.

De keuken sluit mooi aan op de woonkamer en is uitgevoerd in een rustige hoekopstelling. Neutraal, strak, veel bergruimte en een fijne werkbladlengte: hier kookt u zonder dat u eerst een verbouwing hoeft te organiseren.

Via de achterzijde stapt u naar buiten. U ziet de kleine overkapping: zo’n plek die u ’s zomers vaker gebruikt dan u vooraf denkt. Koffie in de ochtendzon, een boek op een vrije middag, of juist beschut als het weer zich weer eens “Hollands” gedraagt.

Achterop het perceel bevindt zich de berging (circa 4 m diep): ideaal voor fietsen, gereedschap, voorraad en alles wat u wél wilt hebben, maar liever niet in uw woonkamer.

Ook goed om te weten: de trap in de woonkamer is momenteel volledig omtimmerd. Dat geeft een “vaste” uitstraling. Wie liever een meer open trapbeeld heeft, kan dit weer eenvoudig aanpassen naar een open trap.


Eerste verdieping
Boven komt u via een schuifdeur op de overloop met toegang tot twee slaapkamers. Prettige formaten, praktisch in te delen — of u nu een gezin heeft, een thuiswerkplek zoekt, of gewoon graag een logeerkamer achter de hand houdt.

De badkamer is modern en fris, met een nette douche, strak tegelwerk, wastafelmeubel en toilet. Geen gedateerde toestanden: gewoon een badkamer waar u meteen mee vooruit kunt.

Tweede verdieping
De tweede verdieping biedt u een derde (slaap)kamer en extra bergruimte. Deze verdieping is bij uitstek geschikt als slaap-/werkkamer, hobbyruimte of een plek waar kinderen zich terugtrekken (ook best prettig voor u).

Details
De woning is voorzien van kunststof kozijnen (onderhoudsarm) en heeft energielabel C: een fijne basis voor comfort én woonlasten.

Tafelbaai 23 ligt in een prettige woonomgeving met veel groen in de buurt. Ideaal voor een ommetje, een frisse neus of even “de benen strekken” zonder dat u daar een dagtocht van hoeft te maken. Voor dagelijkse boodschappen, scholen, sportvoorzieningen en openbaar vervoer zit u hier bovendien praktisch: u woont rustig, maar niet afgelegen.

* Hoekwoning met fijne privacy
* 3 (slaap)kamers verdeeld over de verdiepingen
* Moderne badkamer en nette keuken
* Kunststof kozijnen
* Energielabel C
* Berging + overkapping

Lees meer

Kenmerken

Overdracht

Prijs per m2
€ 4.250
Aangeboden sinds
4 maart 2026
Status
Beschikbaar
Aanvaarding
Direct

Bouw

Soort woonhuis
Eengezinswoning, hoek woning
Soort bouw
Bestaande bouw
Bouwjaar
1976
Soort dak
Samengesteld dak
Staat van onderhouden binnen
Goed
Staat van onderhouden buiten
Goed

Oppervlakte en inhoud

Perceeloppervlakte
105 m2
Inhoud van de woning
353 m3
Oppervlakte externe bergruimte
8 m2
Oppervlakte gebouwgebonden buitenruimten
1 m2

Indeling

Aantal kamers
4
Aantal slaapkamers
3
Aantal woonlagen
3
Voorzieningen
Tuin, ventilatie, dakraam

Buitenruimte

Balkon
Nee
Schuur/berging
Nee

Maandlasten berekenen

De maandlasten voor je woning bestaan uit meer dan alleen de hypotheeklasten. Hieronder vind je een overzicht van de bijkomende kosten en lasten. Zo weet je precies wat je huis per maand gaat kosten. En met de handige vergelijkers kun je ook nog eens snel de beste deals sluiten!

  • Kaart
  • Streetview