Orkaden 14 2904 VN Capelle aan den IJssel

152m2
Wonen
5
Kamers
184m2
Perceel
1976
Bouwjaar
Heerlijk wonen in de groene en kindvriendelijke Eilandenbuurt op loopafstand van Park Hitland?!
Het kan in dit royale HERENHUIS met GARAGE met ligging op de hoek aan de Orkaden 14.

Met de fraaie en moderne eetkeuken, lichte woonkamer, vier slaapkamers en twéé badkamers is dit een zeer complete gezinswoning. De in 2022 aangelegde fraaie en zonnige achtertuin op het westen voorzien van een grote veranda maken dit plaatje helemaal compleet!

Gelegen in de wijk Oostgaarde op loopafstand van scholen, winkelcentrum en metrostation De Terp, kinderdagopvang, gezondheidszorg, sportvelden etc. Kortom: een eenmalige kans!

Zie onderstaande hoofdkenmerken met nadere omschrijving en de uitgebreide fotoreportage. Zelf sfeer proeven in de woning? Bel met Kok Makelaars voor een bezichtiging!

Hoofdkenmerken:
- Sfeervolle tuingerichte living met houtkachel
- Moderne en complet (eet)keuken (2022)
- 4 goed formaat slaapkamers, zolderkamer met dakterras (westen)
- Hoofdslaapkamer en tweede verdieping v.z.v. airconditioning
- 2 badkamers
- Riante garage met extra bergvliering
- Zonnige en fraai aangelegde achtertuin met veranda (westen)
- Parkeergelegenheid op eigen terrein
- Woonoppervlakte ca. 152 m2
- Perceeloppervlakte ca. 184 m2
- Eigen grond

Heerlijk rustig en beschut gelegen, met in de straat enkel bestemmingsverkeer, nabij speelpleintjes, grasvelden en overig groen.

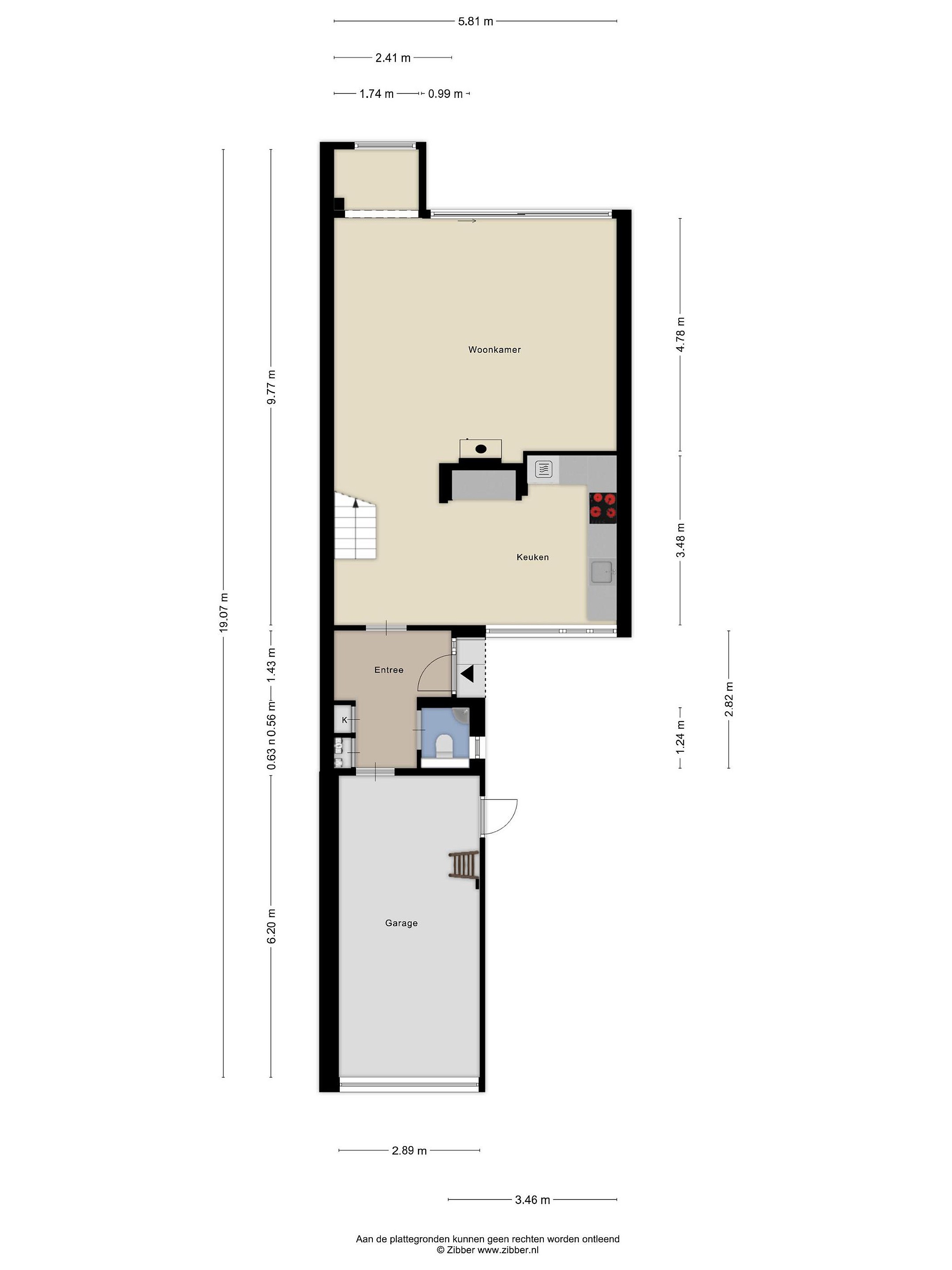
INDELING (voor de afmetingen, zie de plattegrondtekeningen)

Begane grond:
De begane grond is voorzien van een fraaie tegelvloer met vloerverwarming (m.u.v. het toilet).

Entree/hal, met toegang tot woonkamer/eetkeuken, toilet, garage en meterkast.

Woonkamer, een sfeervolle en lichte woonkamer, met een fraaie schouw en gezellige allesbrander (vuurtje stoken). Vanuit de woonkamer is er toegang tot de achtertuin via de grote kunststof schuifpui (2022) en een separate loopdeur in het oorspronkelijke achter-portaal wat is omgebouwd tot thuiswerkplek. Verder is de woonkamer voorzien van de trapopgang naar de eerste verdieping.

Keuken (2022), een riante eetkeuken, gelegen aan de voorzijde van de woning. De keuken is voorzien van een keukenblok in L-vormige opstelling, welke beschikt over een inductiekookplaat en afzuigkap, vaatwasser, oven, koelkast, speelse koffiecorner, brede lades en veel kastruimte.

Toilet, geheel betegeld, voorzien van een hangend closet, hoekfonteintje en een te openen raam.

Garage, een royale garage, voorzien van een hoog plafond, praktische bergvliering, kanteldeur aan de voor/straatzijde en een loopdeur naar de voortuin.

Eerste verdieping:
De eerste verdieping is voorzien van laminaat vloerafwerking.

Overloop, met toegang tot drie slaapkamers, de badkamer en trapopgang naar de tweede verdieping.

Slaapkamer 1, gelegen aan de achterzijde, voorzien van airconditioning.
Slaapkamer 2, een ruime slaapkamer, gelegen aan de voorzijde.
Slaapkamer 3, gelegen aan de voorzijde, voorzien van een vaste kast.

Badkamer, een uitgebouwde badkamer, welke beschikt over een groot hoek/ligbad met whirlpool, jetstreams en verlichting, een douchecabine met thermostaatkraan, badkamermeubel met wastafel, spiegelkast en kolomkasten, een tweede toilet, badkamerradiator en mechanische ventilatie.

Tweede verdieping:
Overloop, voorzien van laminaat vloerafwerking en toegang tot de vierde slaapkamer en royale bergruimte met de wasmachine- en drogeraansluiting, omvormer PV-zonnepanelen en opstelling cv-ketel en mechanische ventilatie-unit.

Slaapkamer 4, voorzien van tapijt vloerafwerking, airconditioning en met toegang tot de tweede badkamer en het zonnig dakterras op het westen.

Badkamer, een tweede(!) badkamer, voorzien van een douchecabine met thermostaatkraan, wastafel en spiegelkastje.

Tuinen:
Achtertuin (2022), gelegen op het westen, voorzien van sierbestrating, groen en kunstgras, een grote veranda met sedum-dak, buitenkraan, zonwering en verlichting in zowel de tuin als de veranda.

Voortuin, voorzien van bestrating en groen, met de mogelijkheid om te parkeren op eigen terrein.

Bijzonderheden:
- Cv-ketel Remeha (2022)
- Houten en kunststof kozijnen
- Dubbel glas op begane grond (m.u.v. voordeur en toilet)
- Enkel glas op verdiepingen
- Keralit gevelbekleding
- Spouwmuurisolatie parels toegepast (2021)
- Vloerisolatie toegepast inclusief bodemfolie (2021)
- 15 PV-zonnepanelen (2018) (285 Wp per stuk)
- Vernieuwde elektra groepenkast (2021)
- Glasvezel-aansluiting aanwezig
- Energielabel C
- Bouwjaar ca. 1976

Oplevering: in overleg met verkoper, bij voorkeur medio juli 2026 (eerder in overleg).

Bij het samenstellen van deze verkoopinformatie en (plattegrond)tekeningen zijn we nauwkeurig te werk gegaan, aan onjuistheden en/of onvolkomenheden kunt u echter geen rechten ontlenen. Daarnaast aanvaardt de makelaar of zijn opdrachtgever geen aansprakelijkheid voor de in de verkoopinformatie en (plattegrond)tekeningen verstrekte informatie.
Lees meer

Kenmerken

Overdracht

Prijs per m2
€ 3.934
Aangeboden sinds
3 april 2026
Status
Beschikbaar
Aanvaarding
In overleg

Bouw

Soort woonhuis
Eengezinswoning, eind woning
Soort bouw
Bestaande bouw
Bouwjaar
1976
Soort dak
Lessenaarsdak
Staat van onderhouden binnen
Goed
Staat van onderhouden buiten
Goed

Oppervlakte en inhoud

Perceeloppervlakte
184 m2
Inhoud van de woning
613 m3
Oppervlakte gebouwgebonden buitenruimten
10 m2
Oppervlakte overige inpandige ruimten
21 m2

Indeling

Aantal kamers
5
Aantal slaapkamers
4
Aantal woonlagen
3
Voorzieningen
Tuin, ventilatie, glasvezel, buitenzonwering, airconditioning, schuifpui

Buitenruimte

Balkon
Nee
Schuur/berging
Nee

Maandlasten berekenen

De maandlasten voor je woning bestaan uit meer dan alleen de hypotheeklasten. Hieronder vind je een overzicht van de bijkomende kosten en lasten. Zo weet je precies wat je huis per maand gaat kosten. En met de handige vergelijkers kun je ook nog eens snel de beste deals sluiten!

  • Kaart
  • Streetview