Verkocht OV

Merelhoven 229 2902 KD Capelle aan den IJssel

127m2
Wonen
5
Kamers
189m2
Perceel
1967
Bouwjaar
Een leuke EENGEZINSWONING met een heerlijke zonnige en diepe achtertuin op het zuid/westen!

Gelegen op een kindvriendelijk woonerf op een centrale locatie nabij het centrum van Capelle!

De woning bevat 4 slaapkamers op de eerste verdieping, een grote zolderkamer en parkeergelegenheid op eigen terrein. Kortom, perfect voor (aanstaande) gezinnen!

Zie onderstaande hoofdkenmerken met nadere omschrijving en de uitgebreide fotoreportage. Zelf sfeer proeven in de woning? Bel met Kok Makelaars voor een bezichtiging!

Hoofdkenmerken:
- Lichte tuingerichte woonkamer
- Keuken aan voorzijde met uitzicht op woonerf
- Badkamer met douchecabine
- 4 slaapkamers eerste verdieping
- Grote zolderkamer
- Ruime berging voorzijde (voorheen garage)
- Parkeergelegenheid op eigen terrein
- Zonnige achtertuin op het zuidwesten
- Woonoppervlakte ca. 127 m2
- Perceeloppervlakte ca. 189 m2
- Eigen grond

Gelegen op korte afstand van veel voorzieningen: winkelcentrum ‘De Koperwiek’, metrostation ‘Slotlaan’, scholen, kinderdagopvang, gezondheidszorg, diverse horeca- en amusementsgelegenheden en de uitvalswegen richting Rotterdam en Utrecht (A16/A20).

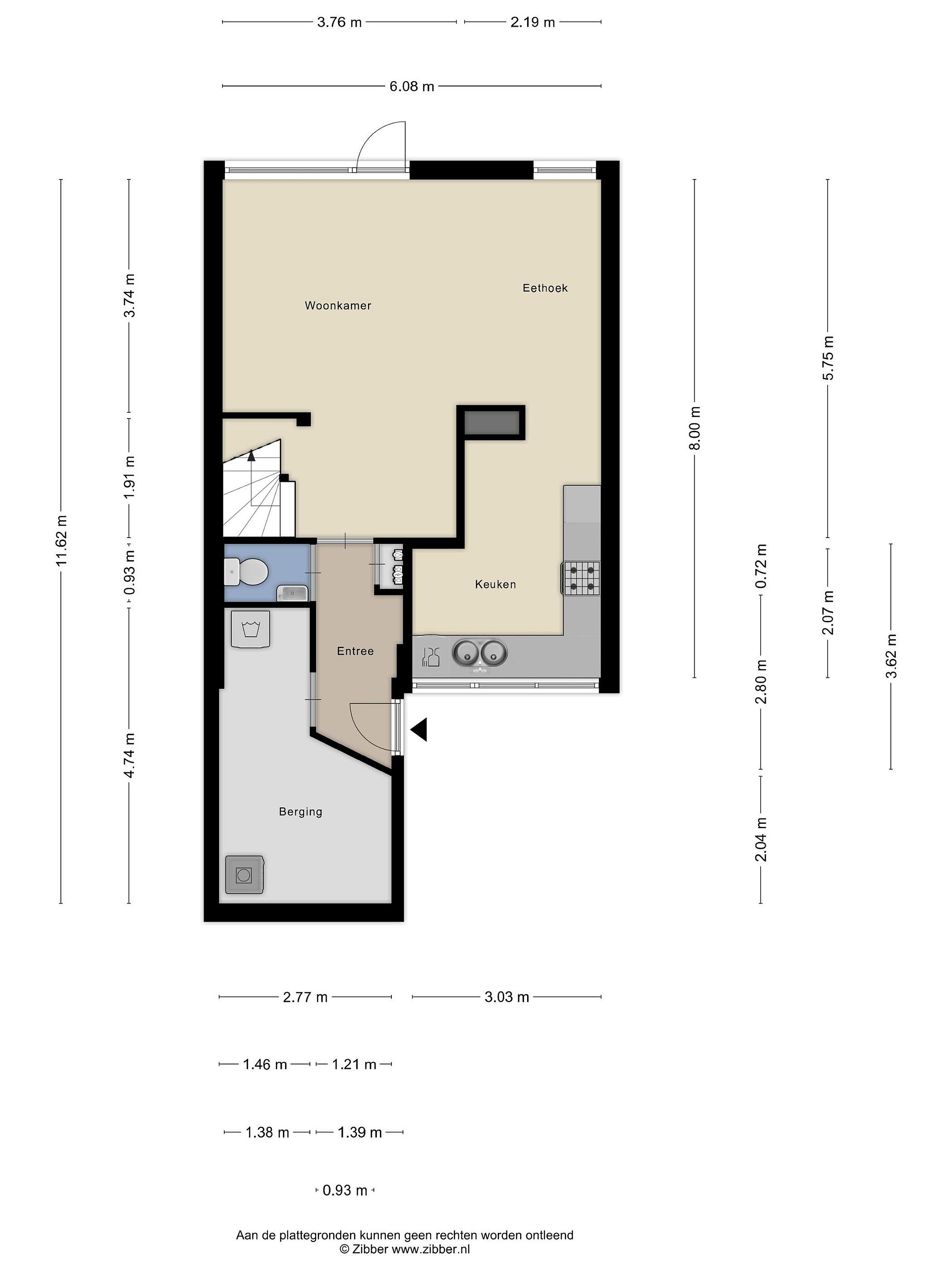
INDELING (voor de afmetingen, zie de plattegrondtekeningen)

Begane grond:
Entree/hal, voorzien van plavuizen vloerafwerking, met toegang tot de woonkamer, toilet, berging en meterkast.

Woonkamer, een lichte en tuingerichte woonkamer voorzien van laminaat vloerafwerking, met toegang tot de keuken, achtertuin en gestoffeerde trapopgang naar de eerste verdieping.

Keuken, een ruime keuken gelegen aan de voorzijde met uitzicht op het woonerf, voorzien van een keukenblok in L-vormige opstelling, gaskookplaat, afzuigkap, oven, koel/vriescombinatie, vaatwasser en een dubbele spoelbak.

Toilet, geheel betegeld, voorzien van een staand closet en een fonteintje.

Berging, een ruime berging (voorheen de garage) aan de voorzijde met een wasmachineaansluiting.

Eerste verdieping:
Overloop, voorzien van tapijt vloerafwerking, met toegang tot 4 slaapkamers, badkamer en gestoffeerde trapopgang naar de tweede verdieping.

Slaapkamer 1, een royale kamer aan de achterzijde, voorzien van een grote kast met schuif(spiegel)deuren, elektrische zonwering (screen) en zeil op de vloer.
Slaapkamer 2, gelegen aan de voorzijde, voorzien van een vaste kast, kunststof kozijn met draai/kantelramen en laminaat vloerafwerking.
Slaapkamer 3, gelegen aan de achterzijde, voorzien van 2 vaste kasten, laminaat op de vloer en elektrische zonwering (screen).
Slaapkamer 4, gelegen aan de voorzijde, voorzien van een kunststof kozijn en zeil op de vloer.

Badkamer, vergroot en geheel betegeld, voorzien van een douchecabine met thermostaatkraan, wastafel met spiegel, een tweede toilet (hangend closet), badkamerradiator en elektrische afzuiging.

Tweede verdieping:
Een grote zolderkamer met afgesloten berg/hobbyruimte, Velux dakraam, toegang tot de opstelling cv-ketel en opbergruimte achter de knieschotten. De zolderverdieping beschikt momenteel niet over een radiator.

Tuinen:
Achtertuin, een diepe tuin voorzien van diverse groen, kunstgras en sierbestrating. Daarnaast bevat de tuin een achterom en een zonwering.

Voortuin, met parkeergelegenheid op eigen terrein en voorzien van zowel bestrating als een groenstrook. De patio is uitgerust met een buitenkraan.

Bijzonderheden:
- Cv-ketel Bosch (2009)
- Houten en kunststof kozijnen
- Dubbele beglazing (m.u.v. voordeur)
- Betonnen vloeren op begane grond en eerste verdieping
- Houten vloer op tweede verdieping
- Energielabel F
- Er is geen vragenlijst verkoop woning beschikbaar
- In de koopovereenkomst zal de asbestclausule worden opgenomen
- In de koopovereenkomst zal de ‘niet zelfbewoningsclausule’ worden opgenomen
- Bouwjaar ca. 1967

Oplevering: in overleg met verkoper, op korte termijn mogelijk.

Bij het samenstellen van deze verkoopinformatie en (plattegrond)tekeningen zijn we nauwkeurig te werk gegaan, aan onjuistheden en/of onvolkomenheden kunt u echter geen rechten ontlenen. Daarnaast aanvaardt de makelaar of zijn opdrachtgever geen aansprakelijkheid voor de in de verkoopinformatie en (plattegrond)tekeningen verstrekte informatie.
Lees meer

Kenmerken

Overdracht

Prijs per m2
€ 3.543
Aangeboden sinds
16 oktober 2025
Status
Verkocht onder voorbehoud
Aanvaarding
In overleg

Bouw

Soort woonhuis
Eengezinswoning, tussen woning
Soort bouw
Bestaande bouw
Bouwjaar
1967
Soort dak
Zadeldak
Staat van onderhouden binnen
Goed
Staat van onderhouden buiten
Goed

Oppervlakte en inhoud

Perceeloppervlakte
189 m2
Inhoud van de woning
449 m3

Indeling

Aantal kamers
5
Aantal slaapkamers
4
Aantal woonlagen
3
Voorzieningen
Tuin, schuur/berging, buitenzonwering, dakraam

Buitenruimte

Balkon
Nee
Schuur/berging
Ja

Maandlasten berekenen

De maandlasten voor je woning bestaan uit meer dan alleen de hypotheeklasten. Hieronder vind je een overzicht van de bijkomende kosten en lasten. Zo weet je precies wat je huis per maand gaat kosten. En met de handige vergelijkers kun je ook nog eens snel de beste deals sluiten!

  • Kaart
  • Streetview