Kanaalweg 16 2903 LS Capelle aan den IJssel

82m2
Wonen
4
Kamers
161m2
Perceel
1938
Bouwjaar
OPEN HUIS: Zaterdag 28 maart van 11.00 tot 15.00 uur, zonder afspraak welkom!

Een karaktervolle EENGEZINSWONING met een heerlijke zonnige achtertuin van maar liefst circa 19 meter diep!
De woning beschikt over diverse originele details vanuit de bouwperiode, een gezellige woonkamer met openhaard, een aangebouwde serre en 3 slaapkamers.

In 2022 heeft er professioneel funderingsherstel plaatsgevonden, waarbij er een onderheide betonvloer (kruipruimte) en een nieuwe houten begane grondvloer zijn aangebracht. Het opleverdossier met de uitgevoerde werkzaamheden is beschikbaar.

Aan de woning moet nog wel wat achterstallig onderhoud verricht worden, dus welke handige klusser grijpt hier zijn kans?

Zie onderstaande hoofdkenmerken met nadere omschrijving en de uitgebreide fotoreportage. Zelf sfeer proeven in de woning? Bel met Kok Makelaars voor een bezichtiging!

Hoofdkenmerken:
- Sfeervolle woonkamer met openhaard
- Nette keuken met inbouwapparatuur
- Aangebouwde serre (bijkeuken)
- 3 slaapkamers (incl. zolderkamer)
- Badkamer met douchecabine
- Diepe (ca. 19 meter) achtertuin
- Woonoppervlakte ca. 82 m2 (exclusief zolderverdieping)
- Perceeloppervlakte ca. 161 m2
- Eigen grond

Gelegen in de wijk Schenkel nabij het centrum met velerlei voorzieningen op korte afstand, zoals winkelcentrum de Koperwiek, metrostation Capelle Centrum, recreatiegebied het Schollebos, scholen, winkels, gezondheidszorg, kinderdagopvang en uitvalswegen.

INDELING (voor de afmetingen, zie de plattegrondtekeningen)

Begane grond:
De begane grond is voorzien van laminaat vloerafwerking.

Entree/hal, voorzien van de originele karakteristieke details, met toegang tot de woonkamer, meterkast en gestoffeerde trapopgang naar de eerste verdieping.

Woonkamer, een gezellige woonkamer met een erker aan de voorzijde - er is altijd wat te zien op de levendige Kanaalweg. Verder bevat de woonkamer een sfeervolle openhaard, een vaste kast onder de trap en is er een doorgang naar de keuken aan de achterzijde van de woning.

Keuken, een nette keuken voorzien van een recht keukenblok met een 4-pits gaskookplaat en afzuigkap, oven, vaatwasser, en vanuit de keuken is er toegang tot het toilet en de aangebouwde serre.

Toilet, gedeeltelijk betegeld, voorzien van een hangend closet en elektrische afzuiging.

Serre, wordt momenteel gebruikt als bijkeuken, met de wasmachine- en drogeraansluiting, opstelling van de cv-ketel en verder veel bergruimte. Vanuit deze serre is er toegang tot de diepe achtertuin.

Eerste verdieping:
Overloop, voorzien van een tapijt vloerafwerking en een vaste kast.

Slaapkamer 1, gelegen aan de achterzijde, voorzien van zeil op de vloer en een vaste kast.
Slaapkamer 2, gelegen aan de voorzijde, eveneens voorzien van zeil op de vloer en een kast met Louvre deurtjes.

Badkamer, bevat een douchecabine, wastafel, tweede toilet (staand closet) en een tegels op de vloer.

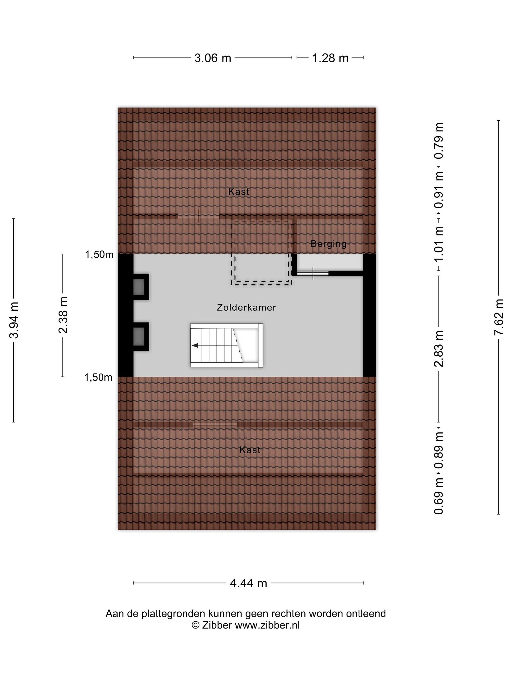
Tweede verdieping:
Zolderkamer, voorzien van een dakraam en veel bergruimte.

Tuinen:
Achtertuin, een diepe tuin gelegen op het noordoosten, waardoor u heel de dag kunt genieten van de zon of schaduw! De tuin is voorzien van een groot houten terras, splitgrind, buitenkraan en een grote blokhut met elektriciteit en verlichting. Achter de blokhut bevindt zich een overpad richting de openbare weg.

Bijzonderheden:
- Cv-ketel Nefit Proline (2018)
- Houten kozijnen
- Gedeeltelijk dubbele beglazing (alleen voorzijde)
- Houten vloeren (begane grondvloer vervangen in 2022)
- Energielabel D
- Funderingsherstel plaatsgevonden (2022)(Opleverdossier beschikbaar)
- In de Koopovereenkomst zal een niet-bewoningsclausule worden opgenomen
- Er is geen Vragenlijst Verkoop Woning beschikbaar
- Bouwjaar ca. 1938

Oplevering: in overleg met verkoper, op korte termijn mogelijk.

Bij het samenstellen van deze verkoopinformatie en (plattegrond)tekeningen zijn we nauwkeurig te werk gegaan, aan onjuistheden en/of onvolkomenheden kunt u echter geen rechten ontlenen. Daarnaast aanvaardt de makelaar of zijn opdrachtgever geen aansprakelijkheid voor de in de verkoopinformatie en (plattegrond)tekeningen verstrekte informatie.
Lees meer

Kenmerken

Overdracht

Prijs per m2
€ 4.451
Aangeboden sinds
6 februari 2026
Status
Beschikbaar
Aanvaarding
In overleg

Bouw

Soort woonhuis
Eengezinswoning, tussen woning
Soort bouw
Bestaande bouw
Bouwjaar
1938
Soort dak
Zadeldak
Staat van onderhouden binnen
Goed
Staat van onderhouden buiten
Goed

Oppervlakte en inhoud

Perceeloppervlakte
161 m2
Inhoud van de woning
329 m3
Oppervlakte externe bergruimte
14 m2
Oppervlakte gebouwgebonden buitenruimten
1 m2
Oppervlakte overige inpandige ruimten
11 m2

Indeling

Aantal kamers
4
Aantal slaapkamers
3
Aantal woonlagen
3
Voorzieningen
Tuin, schuur/berging, open haard, rookkanaal, dakraam

Buitenruimte

Balkon
Nee
Schuur/berging
Ja

Maandlasten berekenen

De maandlasten voor je woning bestaan uit meer dan alleen de hypotheeklasten. Hieronder vind je een overzicht van de bijkomende kosten en lasten. Zo weet je precies wat je huis per maand gaat kosten. En met de handige vergelijkers kun je ook nog eens snel de beste deals sluiten!

  • Kaart
  • Streetview