Vlamingpolderweg 18001 4506 HZ Cadzand

136m2
Wonen
5
Kamers
1097m2
Perceel
1996
Bouwjaar
Vakantie vieren in alle rust, met het strand op loopafstand en een zwembad in je eigen tuin? Dat kan aan de Vlamingpolderweg 18-001 in Cadzand! Deze ruime woning, gelegen in een prachtige omgeving, biedt alles voor wie op zoek is naar comfort en ontspanning.
Begane grond
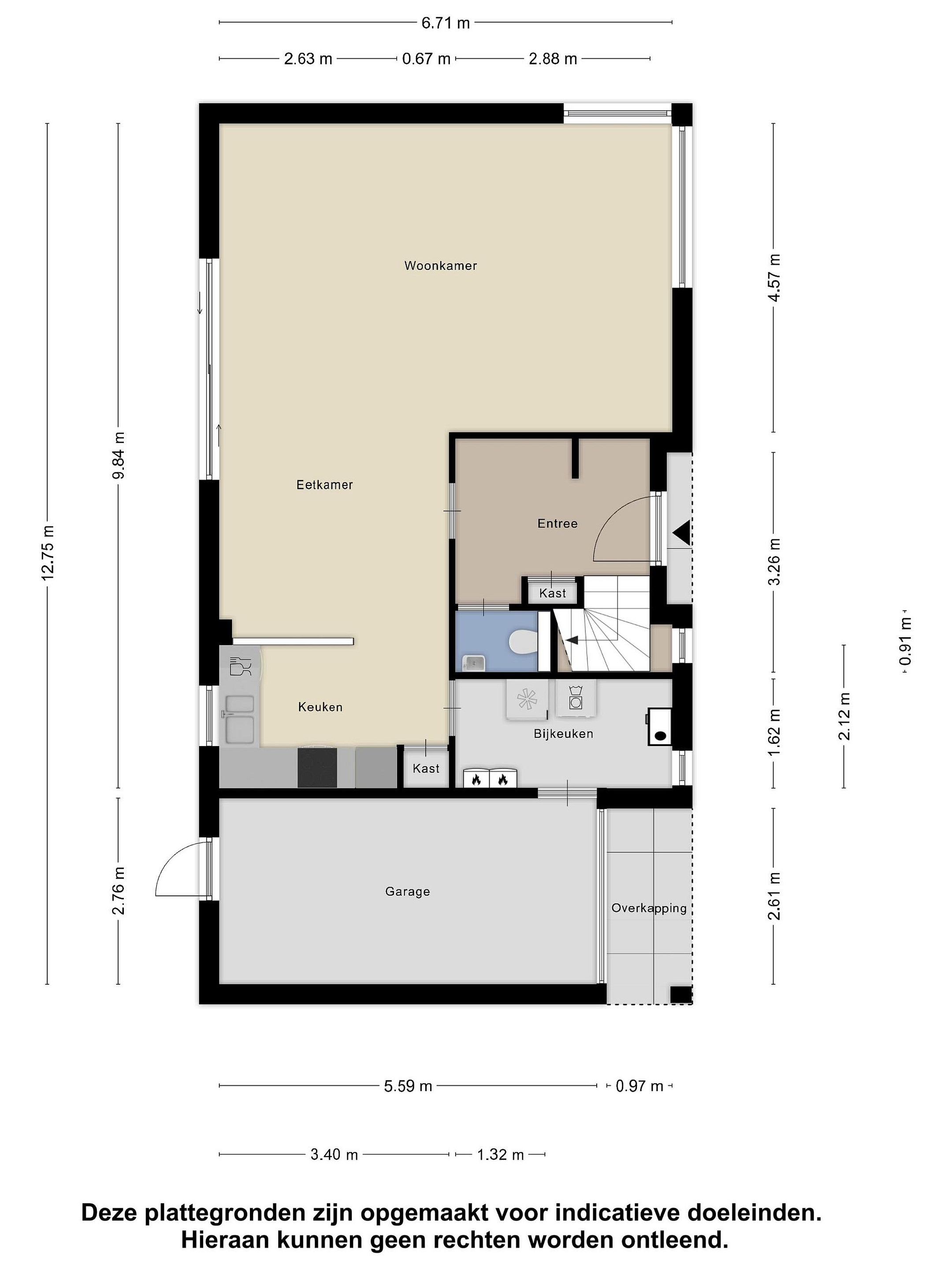
Bij binnenkomst valt direct de ruime en lichte woonkamer op. Dankzij de grote raampartijen is er veel natuurlijk licht en heb je een mooi uitzicht op de tuin. De open indeling geeft een ruimtelijk gevoel, terwijl de keuken op een speelse manier wordt afgescheiden met een halfhoog muurtje. Dit creëert een gezellige sfeer waarin koken en leven samenkomen.

Naast de keuken bevindt zich een praktische bijkeuken, ideaal voor extra opslag of het plaatsen van witgoed. Ook beschikt de woning over een garage, perfect voor het stallen van fietsen, een auto of strandspullen.

Eerste verdieping
De eerste verdieping biedt volop ruimte met maar liefst vier slaapkamers. Of je nu een groot gezin hebt, graag gasten ontvangt of een werkkamer nodig hebt, hier heb je alle mogelijkheden. De twee badkamers zorgen voor extra comfort en luxe, zodat iedereen in huis over voldoende privacy beschikt.

Tuin
De tuin is een heerlijke plek om te ontspannen. Mooi aangelegd en met een ideale ligging op het zuidwesten geniet je hier de hele dag door van de zon. Het verwarmde zwembad zorgt voor extra luxe en verkoeling op warme dagen – een echt vakantiegevoel in je eigen achtertuin!

Details
Cadzand is een geliefde kustplaats met uitgestrekte stranden, sfeervolle duinen en een ontspannen maritieme sfeer. De woning ligt op een toplocatie, direct tegenover de dijk. Zodra je de dijk oversteekt, sta je op het brede zandstrand, waar je eindeloos kunt wandelen, zwemmen of genieten van een drankje bij een van de strandpaviljoens.

Wil jij deze unieke woning zelf ervaren? Neem contact met ons op voor een bezichtiging!

Lees meer

Kenmerken

Overdracht

Prijs per m2
€ 7.297
Aangeboden sinds
10 december 2025
Status
Beschikbaar
Aanvaarding
In overleg

Bouw

Soort woonhuis
Eengezinswoning, vrijstaande woning
Soort bouw
Bestaande bouw
Bouwjaar
1996
Soort dak
Schilddak
Staat van onderhouden binnen
Goed
Staat van onderhouden buiten
Uitstekend

Oppervlakte en inhoud

Perceeloppervlakte
1097 m2
Inhoud van de woning
564 m3
Oppervlakte gebouwgebonden buitenruimten
4 m2
Oppervlakte overige inpandige ruimten
15 m2

Indeling

Aantal kamers
5
Aantal slaapkamers
4
Aantal woonlagen
2
Voorzieningen
Tuin, alarmsysteem, rolluiken, glasvezel, zwembad, schuifpui

Buitenruimte

Balkon
Nee
Schuur/berging
Nee

Maandlasten berekenen

De maandlasten voor je woning bestaan uit meer dan alleen de hypotheeklasten. Hieronder vind je een overzicht van de bijkomende kosten en lasten. Zo weet je precies wat je huis per maand gaat kosten. En met de handige vergelijkers kun je ook nog eens snel de beste deals sluiten!

  • Kaart
  • Streetview