Burgemeester van Laarstraat 20 6267 ET Cadier en Keer

179m2
Wonen
6
Kamers
264m2
Perceel
1979
Bouwjaar
DEZE WONING WORDT AANGEBODEN DOOR POOTERS MAKELAARDIJ
Deze verrassend ruime twee-onder-een-kapwoning aan de Burgemeester van Laarstraat in Cadier en Keer biedt maar liefst 179 m2 woonoppervlakte, een inpandige garage en vijf volwaardige slaapkamers. Van buitenaf doet de woning bescheiden aan, maar eenmaal binnen ervaart u direct hoeveel ruimte deze woning werkelijk te bieden heeft. De woning beschikt over een royale en praktische indeling met meerdere leefruimtes, waardoor er volop mogelijkheden zijn voor een groot gezin, een thuiswerkplek of hobbyruimte. Dankzij de vijf slaapkamers is er aan ruimte geen gebrek. De inpandige garage zorgt voor extra comfort en praktische bergruimte, met de mogelijkheid om deze desgewenst bij de woonruimte te betrekken. Hoewel de woning goed onderhouden is, dient deze deels gemoderniseerd te worden.

Indeling:

Begane grond:
Bij binnenkomst in de woning betreedt u de entree (ca.12m2), die toegang biedt tot de keuken, de meterkast, de garderobe, het toilet en de trapopgang naar de eerste verdieping. Het geheel betegelde toilet is voorzien van een duoblok en een fonteintje. Zowel entree als het toilet zijn afgewerkt met plavuizen. De ruime woonkamer (ca.39m2) beschikt over een schuifpui met toegang tot zowel de voor- als de achtertuin, wat zorgt voor veel lichtinval en een fijne verbinding met buiten. Extra bergruimte in de trappenkast en de toegang naar de kruipruimte. De open keuken (ca.8m2) is ingericht met een praktische hoekopstelling met boven- en onderkasten en is voorzien van diverse inbouwapparatuur, waaronder een 4-pits gaskookplaat, afzuigkap, vaatwasser, combi-oven en een dubbele spoelbak. De keuken en woonkamer zijn afgewerkt met een lichte parketvloer, wat het geheel een warme en verzorgde uitstraling geeft. Vanuit de keuken bereikt u de bijkeuken (ca.4m2), waar zich de aansluitingen voor het witgoed bevinden. Inpandige garage voorzien van elektra en water (ca.14m2) bereikbaar vanuit de bijkeuken, voorzien van kantelpoort met loopdeur en brievenbus.

Tuin:
Fraai aangelegde voortuin, met gazon, hagen en beplanting en oprit voor de garage gelegen. Met toegang naar woning en achterom aan de linkerzijde via de zijtuin met looppad en gazon. De achtertuin op het noordwesten, met beklinkerd terras aansluitend aan de woning, met gazon, beplanting en leibomen.

Eerste verdieping:
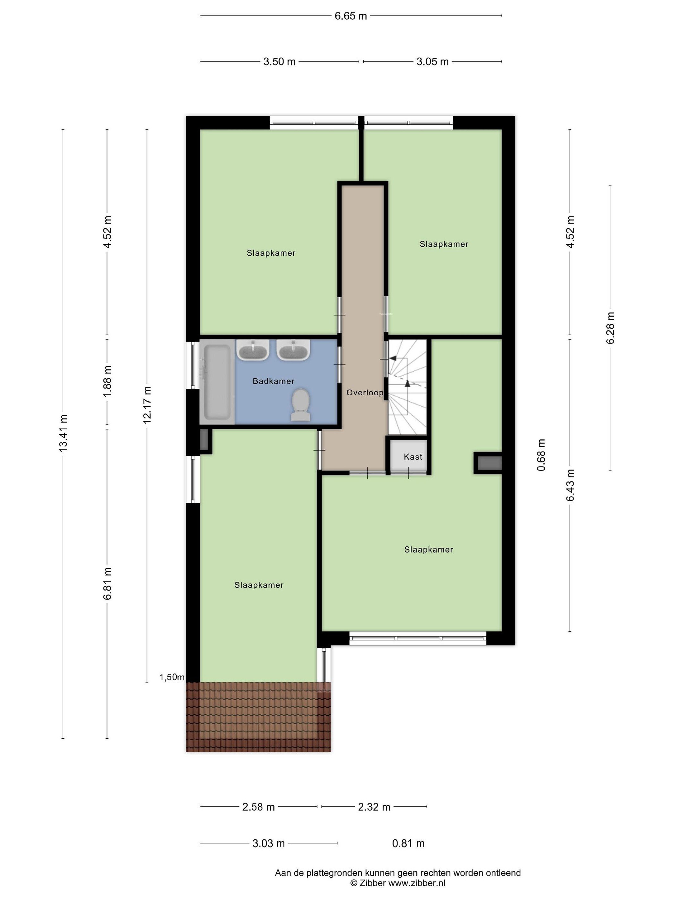
Bereikbaar via fraaie houten trap, overloop met toegang naar slaapkamer I (ca.18m2), deze ruime slaapkamer beschikt over een aangrenzende ruimte die uitstekend geschikt is als inloopkast, aangevuld met een separate bergkast voor extra opbergruimte. Slaapkamer II (ca. 17m2) ook aan voorzijde gelegen, bevindt zich boven de garage. De geheel betegelde badkamer (ca.6m2) voorzien van een ligbad met douche, duoblok en twee separate staande wastafels. Aan de achterzijde bevinden zich slaapkamer III (ca.14m2) en slaapkamer IV (ca.12m2). Alle slaapkamers zijn van een parketvloer voorzien behalve slaapkamer II, hier lagen verlijmde tapijttegels, die zijn inmiddels door verkoper verwijderd.

Tweede verdieping:
Bereikbaar via de vaste trap, hier bevindt zich slaapkamer V (ca.18m2), met een ruimtelijk gevoel door plafondhoogte tot aan het dak. De vloer is van niet verlijmde tapijttegels voorzien. De bergruimte (ca.14m2) biedt veel plek voor opslag, ook zijn hier de cv-ketel en de boiler geïnstalleerd.

Extra informatie:
- Deze twee-onder-een kapwoning is netjes onderhouden en beschikt over maar liefst 5 slaapkamers;
- De woning is bijna geheel voorzien van Meranti houten kozijnen met isolerende beglazing;
- Voordeur en toiletraampje van Meranti houten kozijnen met gehard sierglas;
- Energielabel C, geldig tot 22-10-2030;
- Verwarming en warm water wordt verkregen middels combiketel (Remeha Calenta; bj. 2017; eigendom);
- Boiler 80 liter, eigendom;
- Meterkast, stoppenkast met 7 groepen;
- Slimme meter, 1-fase aansluiting;

Algemene informatie:
De woning is gelegen in het geliefde dorp Cadier en Keer, in een gewilde woonomgeving, in de nabijheid van alle voorzieningen en uitvalswegen. Cadier en Keer (Limburgs: Keer) is een dorp in de gemeente Eijsden-Margraten dat in 2025 ongeveer 3.430 inwoners telde. Het is gelegen aan de provinciale weg tussen Maastricht, Gulpen en Vaals (de N278) en is, door de ligging dicht bij Maastricht ook populair als forensendorp. Ook de verbindingen naar de A2 en A79 zijn binnen enkele autominuten te bereiken. Het dorp ligt op het Plateau van Margraten, dat komend vanaf Maastricht, de entree naar het Zuid-Limburgse Heuvelland vormt, met een riant panorama op Maastricht en het Maasdal. Ook mooie wandel- en fietsroutes zijn op een steenworp afstand gelegen.

Ter bescherming van de belangen van zowel koper als verkoper, wordt uitdrukkelijk gesteld dat een koopovereenkomst met betrekking tot deze onroerende zaak eerst dan tot stand komt nadat koper en verkoper de koopovereenkomst hebben getekend ("schriftelijkheidsvereiste").De termijn die wordt opgenomen voor eventuele (overeengekomen) ontbindende voorwaarden (bv. Financiering) is in de regel 4 tot 6 weken na het sluiten van de mondelinge wilsovereenkomst. De waarborgsom/bankgarantie is 10% van de koopsom. De koper dient deze 2 weken ná het vervallen van de ontbindende voorwaarden bij de desbetreffende notaris te deponeren.

Koper is te allen tijde gerechtigd voor eigen rekening een bouwkundige keuring te (laten) verrichten dan wel andere adviseurs te raadplegen teneinde een goed inzicht te verkrijgen over de staat van onderhoud.

Bovenstaande vrijblijvende informatie is door Pooters Makelaardij met de nodige zorgvuldigheid samengesteld. Echter aanvaardt Pooters Makelaardij geen enkele aansprakelijkheid voor enige onvolledigheid, onjuistheid of anderszins, dan wel de gevolgen daarvan. Oppervlakten en maten zijn indicatief.
Lees meer

Kenmerken

Overdracht

Prijs per m2
€ 2.877
Aangeboden sinds
10 maart 2026
Status
Beschikbaar
Aanvaarding
In overleg

Bouw

Soort woonhuis
Eengezinswoning, twee-onder-een-kap woning
Soort bouw
Bestaande bouw
Bouwjaar
1979
Soort dak
Zadeldak
Staat van onderhouden binnen
Goed
Staat van onderhouden buiten
Goed

Oppervlakte en inhoud

Perceeloppervlakte
264 m2
Inhoud van de woning
683 m3
Oppervlakte overige inpandige ruimten
14 m2

Indeling

Aantal kamers
6
Aantal slaapkamers
5
Aantal woonlagen
3
Voorzieningen
Tuin, kabel-tv, rookkanaal, schuifpui

Buitenruimte

Balkon
Nee
Schuur/berging
Nee

Maandlasten berekenen

De maandlasten voor je woning bestaan uit meer dan alleen de hypotheeklasten. Hieronder vind je een overzicht van de bijkomende kosten en lasten. Zo weet je precies wat je huis per maand gaat kosten. En met de handige vergelijkers kun je ook nog eens snel de beste deals sluiten!

  • Kaart
  • Streetview