Verkocht

Molenlaan 26 1401 TJ Bussum

86m2
Wonen
4
Kamers
126m2
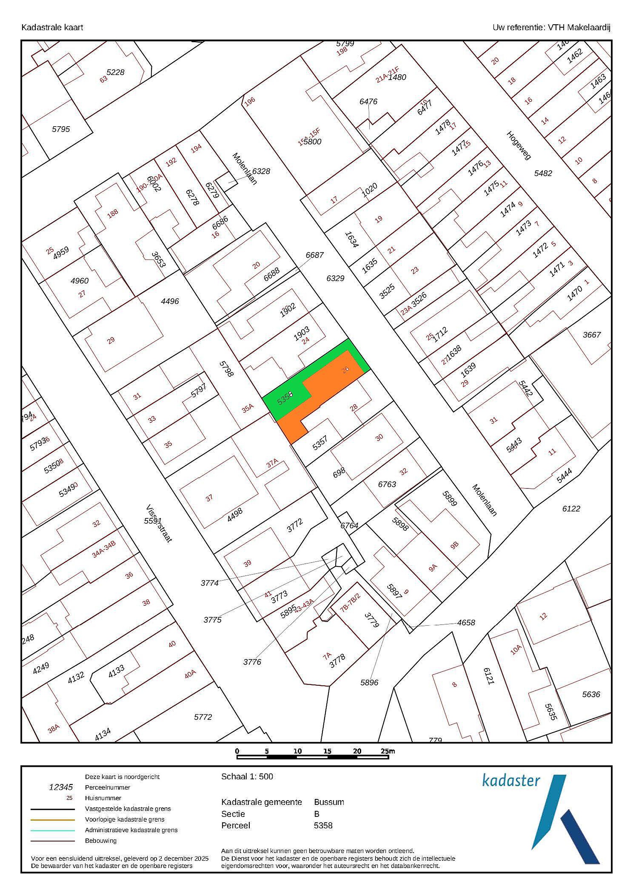
Perceel
1895
Bouwjaar
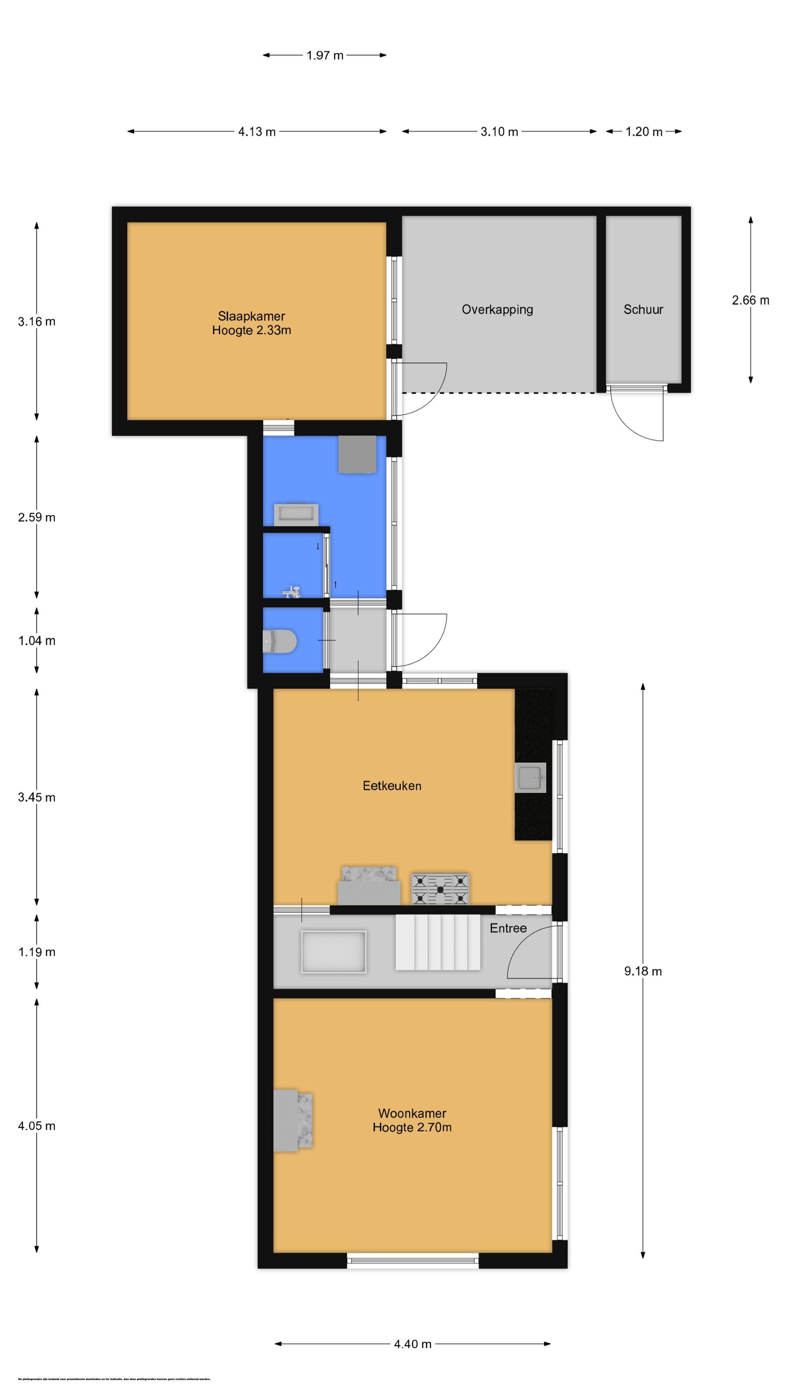
Bijzonder charmante, karakteristieke, goed onderhouden en uitgebouwde hoekwoning (blokje van 3 woningen) met zonnige tuin met overkapping en berging, gelegen in het oude centrumgebied van Bussum op een perceel van ca.126 m2. Deze woning heeft naast een fijne woonkamer een ruime woonkeuken, met toegang tot een praktische voorraadkelder, een aangebouwde badkamer en ruime slaap-werkkamer op de begane grond. Op de verdieping een overloop met toegang tot twee slaapkamers, met dakkapel, van goed formaat.
De perfecte ligging, in een gezellige straat met éénrichtingsverkeer, direct nabij de winkels, supermarkten, restaurants en terrasjes van het centrumgebied, het NS-station en uitvalswegen naar Amsterdam, Amersfoort en Utrecht maakt het plaatje compleet.
Parkeren kan aan de openbare weg, met parkeervergunning alleen uitgegeven aan bewoners kost u op jaarbasis ca. € 49,-

De binnenruimte is groter dan de buitenkant doet vermoeden. Een instapklare leuke en sfeervolle woning. Uw bezichtiging zeker waard!
Begane grond
Zodra je deze woning binnenkomt valt je direct de charme van een karakteristieke jaren 1900 woning op met een doordachte balans van de moderne eisen die je tegenwoordig aan een woning mag stellen in combinatie met een stijlvolle afwerking.

De entree met een compacte centrale hal, met leuke details, is voorzien van een houten vloer, heeft wanden van “ruw” metselwerk met een trap naar de afsluitbare eerste verdieping. De hal geeft enerzijds toegang tot de woonkamer aan de straatzijde gelegen en anderzijds toegang tot een heerlijk ruime separate woonkeuken aan de tuinzijde gelegen.

De woonkamer met een lamelparketvloer in combinatie met glad gestuucte wanden en een hoog plafond met de originele balken, afgewisseld door glad stucwerk, geven deze woonkamer een stijlvolle uitstraling De marmeren schouw met een houtkachel is de “finishing touch” van de woonkamer.

Aan de tuinzijde ligt de ruime woonkeuken. Ook hier weer de fraaie afwerking met een eiken vloer, glad gestuukte wanden en het balkenplafond. In deze ruimte is ook een marmeren schouw aanwezig, weliswaar niet aangesloten op een 2e schoorsteen maar daarom niet minder fraai. De keuken dateert uit 2015, heeft een opstelling over twee wanden met de volgende apparatuur: Een 6 pits gasfornuis met een elektrische oven met afzuigkap, vaatwasser en een losse koelkast. Er zijn voldoende kastjes en laden voor het opbergen van uw keukenspullen. Door raampartijen aan twee zijden is er een goede natuurlijke lichtinval en goede ventilatie van de ruimte.
Een leuk extraatje is de bergruimte achterin de keuken met toegang tot een kelderruimte van ca. 5 m2 met een hoogte van 1,57 meter.

De keuken heeft een “doorloop” naar de aangebouwde tussenhal met een separate toiletruimte en de badkamer. Ook hier valt de nette afwerking weer op met o.a. een fraaie natuurstenen vloer, paneeldeuren met bijbehorend hang en sluitwerk. De hal geeft toegang tot de tuin en loopt over in de badkamer, afgewerkt met natuursteen, een ruime doucheruimte met wastafelmeubel en de aansluiting voor de wasmachine. De CV ketel is in deze ruimte netjes / onzichtbaar weggewerkt in een kastje.

Via deze badkamer is er een doorgang naar de aangebouwde extra kamer van ca. 13m2 , momenteel in gebruik als slaapkamer maar ook prima te gebruiken als werk/hobbyruimte etc. Deze kamer heeft openslaande ramen en via een enkele deur toegang tot de tuin.

Eerste verdieping
De overloop van de – afsluitbare- eerste verdieping geeft toegang tot twee slaapkamers van goed formaat. Door een dakkapel is er nog extra ruimte in beide kamers gecreëerd. De slaapkamer aan de voorzijde heeft altijd dienst gedaan als ouderslaapkamer. Momenteel zijn beide kamers in gebruik als werkkamer.

Tuin
De besloten achtertuin is via een afgesloten (extra brede poort) bereikbaar. Deze tuin is nagenoeg volledig bestraat, ligt op het zuidwesten en is voorzien van een ruime overkapping met aangebouwde berging. Er is altijd wel een plekje in de zon of juist in de schaduw te vinden. De voortuin biedt voldoende afstand tussen de openbare weg en het woonhuis.

Details
De woning ligt op een perceel van 126 m2 aan de rand van het centrum van Bussum met alle leuke eetgelegenheden, kroegjes en terrasjes op loopafstand. Op 5 minuten fietsafstand is NS station Naarden-Bussum maar desgewenst ook station Bussum-Zuid bereikbaar. Bussum ligt centraal in het Gooi, voor de wandelliefhebber zijn bv. het vestingstadje Naarden Vesting maar ook natuurgebieden als Naardermeer, bos en heide in de directe omgeving. De uitvalsweg naar de snelweg A1 is goed verzorgd, binnen no-time bent u in het centrum van steden als Amsterdam of Amersfoort.

Bijzonderheden en installaties:
- Uitgebouwde charmante hoekwoning in een gewilde omgeving.
- Ingemeten conform NEN 2580, totale gebruiksoppervlakte 86 m2, exclusief de kelder van 5 m2.
- Goed onderhouden woning: het pannendak is in 2024 voorzien van nieuwe panlatten met een folie onder de dakpannen, de dakpannen zijn daarna opnieuw gelegd. De dakkapel dateert uit 2010, de buitenmuren van de woonkamer zijn vanuit de binnenzijde in 2008 geïsoleerd, De riolering is in 2003 vervangen, elektra in 2010 vervangen. Veelal kunststof kozijnen voorzien van HR++ glas, geplaatst in 2016, alleen de voordeur met bovenlichtje bevat enkel glas. Schilderwerk buitenzijde in 2025 uitgevoerd.
- Moderne ruime badkamer, keuken en sanitaire voorzieningen;
- Onderhoudsvriendelijke tuin met poort, overkapping en berging;
- Energielabel E, geldig tot 07-11-2035;
- Verwarming en warm water d.m.v. ATAG 244-EC hr-combiketel uit 2015, laatste onderhoud in november 2025 uitgevoerd
- Parkeren aan de openbare weg, met vergunning (€ 49,- op jaarbasis).


Lees meer

Verkoopgeschiedenis

Aangeboden sinds
6 december 2025
Verkoopdatum
11 februari 2026
Looptijd
2 maanden

Kenmerken

Overdracht

Prijs per m2
€ 5.802
Aangeboden sinds
6 december 2025
Status
Verkocht
Aanvaarding
In overleg

Bouw

Soort woonhuis
Eengezinswoning, hoek woning
Soort bouw
Bestaande bouw
Bouwjaar
1895
Soort dak
Samengesteld dak
Staat van onderhouden binnen
Uitstekend
Staat van onderhouden buiten
Uitstekend

Oppervlakte en inhoud

Perceeloppervlakte
126 m2
Inhoud van de woning
328 m3
Oppervlakte externe bergruimte
3 m2
Oppervlakte gebouwgebonden buitenruimten
8 m2
Oppervlakte overige inpandige ruimten
5 m2

Indeling

Aantal kamers
4
Aantal slaapkamers
3
Aantal woonlagen
3
Voorzieningen
Tuin, schuur/berging, ventilatie, kabel-tv, glasvezel, rookkanaal

Buitenruimte

Balkon
Nee
Schuur/berging
Ja

Maandlasten berekenen

De maandlasten voor je woning bestaan uit meer dan alleen de hypotheeklasten. Hieronder vind je een overzicht van de bijkomende kosten en lasten. Zo weet je precies wat je huis per maand gaat kosten. En met de handige vergelijkers kun je ook nog eens snel de beste deals sluiten!

  • Kaart
  • Streetview