Hogeweg 14 1401 TL Bussum

85m2
Wonen
4
Kamers
66m2
Perceel
1905
Bouwjaar
Te koop: Charmante tussenwoning in kindvriendelijke buurt, op loopafstand van het centrum van Bussum

Deze sfeervolle eengezinswoning ligt in een rustig straatje in een gewilde, kindvriendelijke wijk van Bussum, op korte afstand van het gezellige centrum. Met een lichte woonkamer, een halfopen keuken, drie slaapkamers en een knusse patiotuin biedt deze woning alles voor een comfortabel gezinsleven.

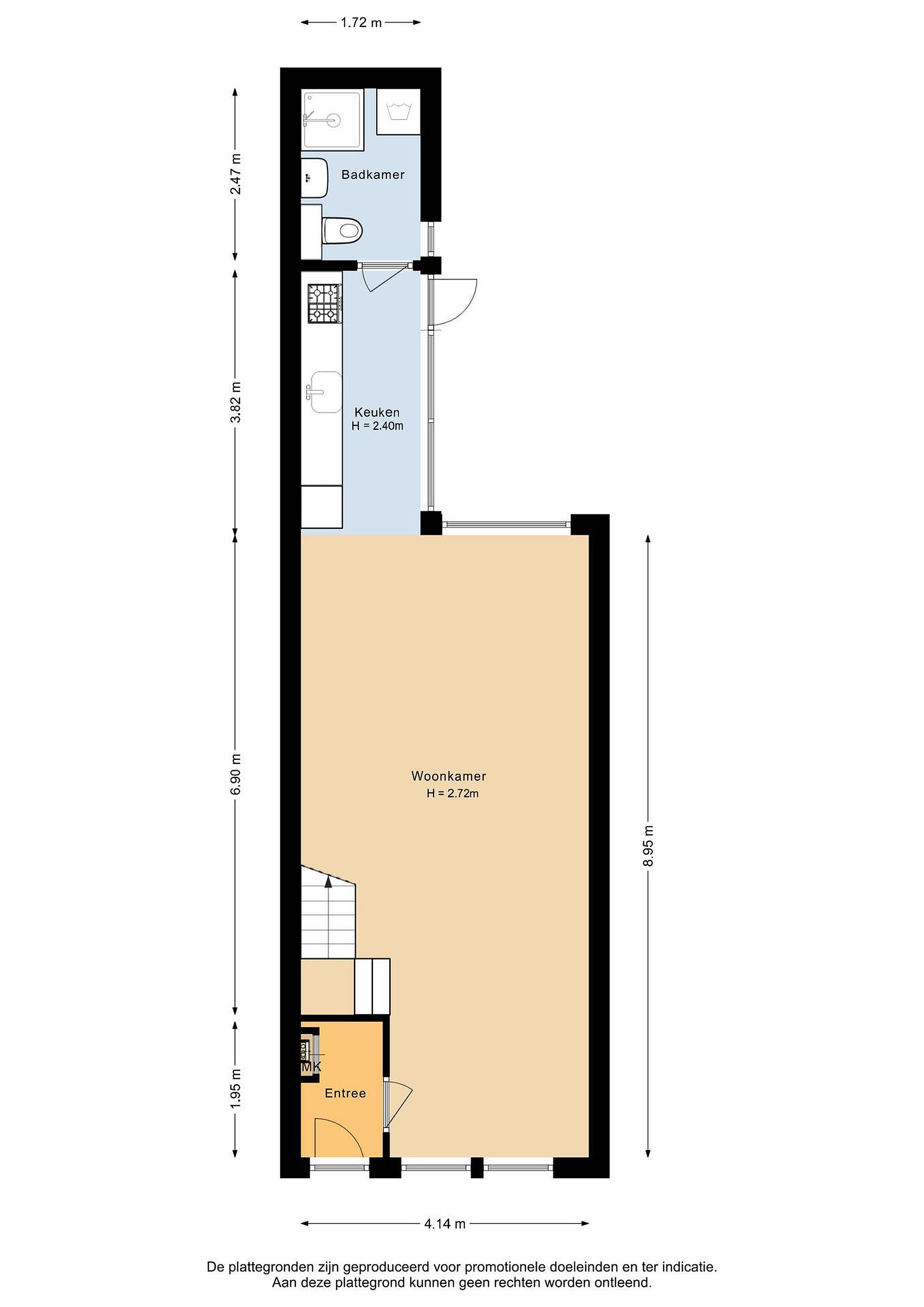
Begane grond
De entree biedt toegang tot de ruime, lichte woon-eetkamer met een hoog plafond en een open trap naar de eerste verdieping, wat voor een bijzonder ruimtelijk gevoel zorgt. De halfopen keuken is voorzien van een groot raam aan de zijkant, wat zorgt voor veel natuurlijk licht. De keuken is deels uitgerust met inbouwapparatuur en geeft toegang tot de kelder en de knusse achtertuin. De badkamer op de begane grond is ingericht met een douche, toilet, wastafel met aansluiting voor de wasmachine.

Eerste verdieping
Overloop, 3 in grootte variërende slaapkamers, waarvan 1 ruime slaapkamer met wastafel. Vanaf een de overloop is de vliering bereikbaar.

Tuin
Patio tuin met veel privacy

Details
Locatie:
De woning ligt op een heerlijke plek:
- Op loopafstand van supermarkten en het centrum van Bussum met gezellige winkels, restaurants en de wekelijkse markt.
- Basisschool om de hoek en diverse middelbare scholen in de buurt.
- Station Naarden-Bussum op korte afstand.
- Nabij diverse sportfaciliteiten zoals een zwembad, tennisbanen, voetbal- en honkbalvelden en een klimhal


Lees meer

Kenmerken

Overdracht

Prijs per m2
€ 4.588
Aangeboden sinds
17 oktober 2025
Status
Beschikbaar
Aanvaarding
In overleg

Bouw

Soort woonhuis
Eengezinswoning, tussen woning
Soort bouw
Bestaande bouw
Bouwjaar
1905
Soort dak
Plat dak
Staat van onderhouden binnen
Redelijk
Staat van onderhouden buiten
Redelijk

Oppervlakte en inhoud

Perceeloppervlakte
66 m2
Inhoud van de woning
316 m3
Oppervlakte overige inpandige ruimten
6 m2

Indeling

Aantal kamers
4
Aantal slaapkamers
3
Aantal woonlagen
4
Voorzieningen
Tuin

Buitenruimte

Balkon
Nee
Schuur/berging
Nee

Maandlasten berekenen

De maandlasten voor je woning bestaan uit meer dan alleen de hypotheeklasten. Hieronder vind je een overzicht van de bijkomende kosten en lasten. Zo weet je precies wat je huis per maand gaat kosten. En met de handige vergelijkers kun je ook nog eens snel de beste deals sluiten!

  • Kaart
  • Streetview