Dr. Schaepmanlaan 37 1402 BR Bussum

152m2
Wonen
6
Kamers
162m2
Perceel
1954
Bouwjaar
Gelegen in een rustige en kindvriendelijke straat met uitsluitend bestemmingsverkeer bevindt zich dit royale middenhuis in goede staat van onderhoud, met een heerlijke ruime en zonnige achtertuin. De woning onderscheidt zich door haar royale afmetingen en is merkbaar groter dan de overige woningen in de straat, wat zorgt voor extra wooncomfort.

De ligging is bovendien bijzonder gunstig: winkels, het NS-station Bussum Zuid, het Goois Natuurreservaat, een zwembad en diverse sportfaciliteiten bevinden zich op korte afstand. Een ideale combinatie van rustig wonen met alle voorzieningen binnen handbereik.
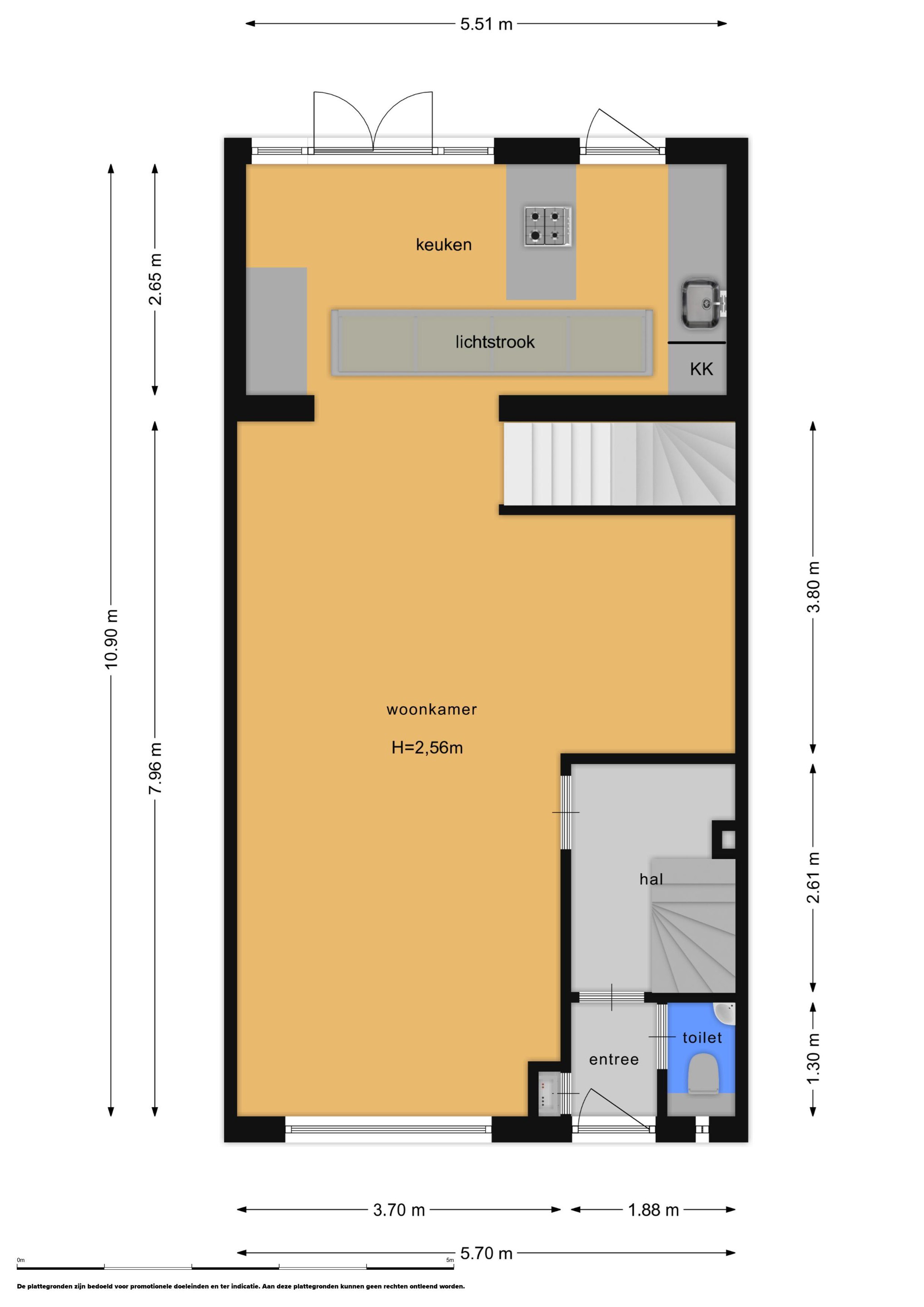
Begane grond
Entree, hal met toilet en vestibule. Royale en lichte living met uitbouw voorzien van een lichtstraat met elektrische zonwering. In de uitbouw is de keuken gesitueerd. Via openslaande deuren is de achtertuin bereikbaar. De nette keuken is uitgerust met vloerverwarming, gaskookplaat, afzuigkap, vaatwasser, combioven, inbouwmagnetron en koelkast.

Een bijzonder element is het souterrain, gerealiseerd onder de uitbouw van de keuken, dat zich uitstekend leent voor uiteenlopende doeleinden, zoals werkruimte, hobbykamer of extra bergruimte.

Eerste verdieping
Overloop met separaat toilet. Twee slaapkamers (voorheen drie), waarvan de hoofdslaapkamer is voorzien van airconditioning. De badkamer beschikt over een designradiator, inloopdouche, dubbele wastafel, vloerverwarming en een ventilatiesysteem.

Tweede verdieping
Via vaste trap bereikbaar. Voorzolder met aansluitingen voor wasmachine en droger en opstelling van de HR-combiketel. Tevens bevinden zich hier twee slaapkamers. Vanuit de slaapkamer aan de achterzijde geniet men van een fraai uitzicht over Bussum.

Tuin
diepe achtertuin met berging en achterom.

Details
- Goed onderhouden geschakelde woning op aantrekkelijke locatie
- Energielabel B
- Voorzien van vloer-, bodem- en spouwisolatie
- Zonnige, speels aangelegde achtertuin met schuur en achterom
- Uitbouw en souterrain gerealiseerd in 2007
- Elektrische installatie met 8 groepen
- Woonoppervlakte 152 m2 (NEN 2580)
- Perceeloppervlakte 162 m2
- Achtertuin ca. 73 m2

Lees meer

Kenmerken

Overdracht

Prijs per m2
€ 4.441
Aangeboden sinds
13 maart 2026
Status
Beschikbaar
Aanvaarding
In overleg

Bouw

Soort woonhuis
Eengezinswoning, geschakelde woning
Soort bouw
Bestaande bouw
Bouwjaar
1954
Soort dak
Samengesteld dak
Staat van onderhouden binnen
Goed
Staat van onderhouden buiten
Goed

Oppervlakte en inhoud

Perceeloppervlakte
162 m2
Inhoud van de woning
516 m3
Oppervlakte externe bergruimte
6 m2

Indeling

Aantal kamers
6
Aantal slaapkamers
5
Aantal woonlagen
4
Voorzieningen
Tuin, airconditioning

Buitenruimte

Balkon
Nee
Schuur/berging
Nee

Maandlasten berekenen

De maandlasten voor je woning bestaan uit meer dan alleen de hypotheeklasten. Hieronder vind je een overzicht van de bijkomende kosten en lasten. Zo weet je precies wat je huis per maand gaat kosten. En met de handige vergelijkers kun je ook nog eens snel de beste deals sluiten!

  • Kaart
  • Streetview