Verkocht OV

Rietgans 41 3752 KG Bunschoten-Spakenburg

133m2
Wonen
6
Kamers
170m2
Perceel
1979
Bouwjaar
Rietgans 41, Bunschoten-Spakenburg

Dit is nou een echte kluswoning mét ruimte. Heel veel ruimte. Met maar liefst 133 m2 woonoppervlakte, een brede opzet van bijna zes meter en een keukenuitbouw is dit huis de perfecte basis voor wie groot wil wonen én zijn eigen stempel wil drukken.

De woning komt uit 1979 – degelijk gebouwd en klaar voor een flinke update. Hier ligt alles open voor wie potentie ziet: een nieuwe indeling, een frisse uitstraling, een plek die helemaal bij jou past. De huidige opzet is al logisch, maar ook flexibel. Door de keuken en woonkamer te wisselen, creëer je bijvoorbeeld een royale woonkeuken aan de achterzijde en een sfeervolle woonkamer aan de voorzijde.

Nog meer ruimte nodig? Op de verdieping kun je met een kleine aanpassing de zolder boven de uitbouw bij de leefruimte betrekken. En met vijf slaapkamers is dit huis nu al verrassend ruim.

Buiten wacht een fijne tuin op het zuiden – volop zon, privacy en ruimte voor het hele gezin. De ligging is bovendien ideaal: in een rustige, kindvriendelijke buurt waar kinderen nog buiten spelen en je alles bij de hand hebt.

Je merkt het al: dit is zo’n woning waar je doorheen moet kunnen kijken. Wie de potentie ziet, maakt hier iets bijzonders van. En doordat het huis degelijk gebouwd is, kun je de verbouwing stap voor stap aanpakken en zo helemaal naar je hand zetten.

Zelf zien of meer weten? Bel ons voor een bezichtiging – dan laten we je graag de mogelijkheden zien.
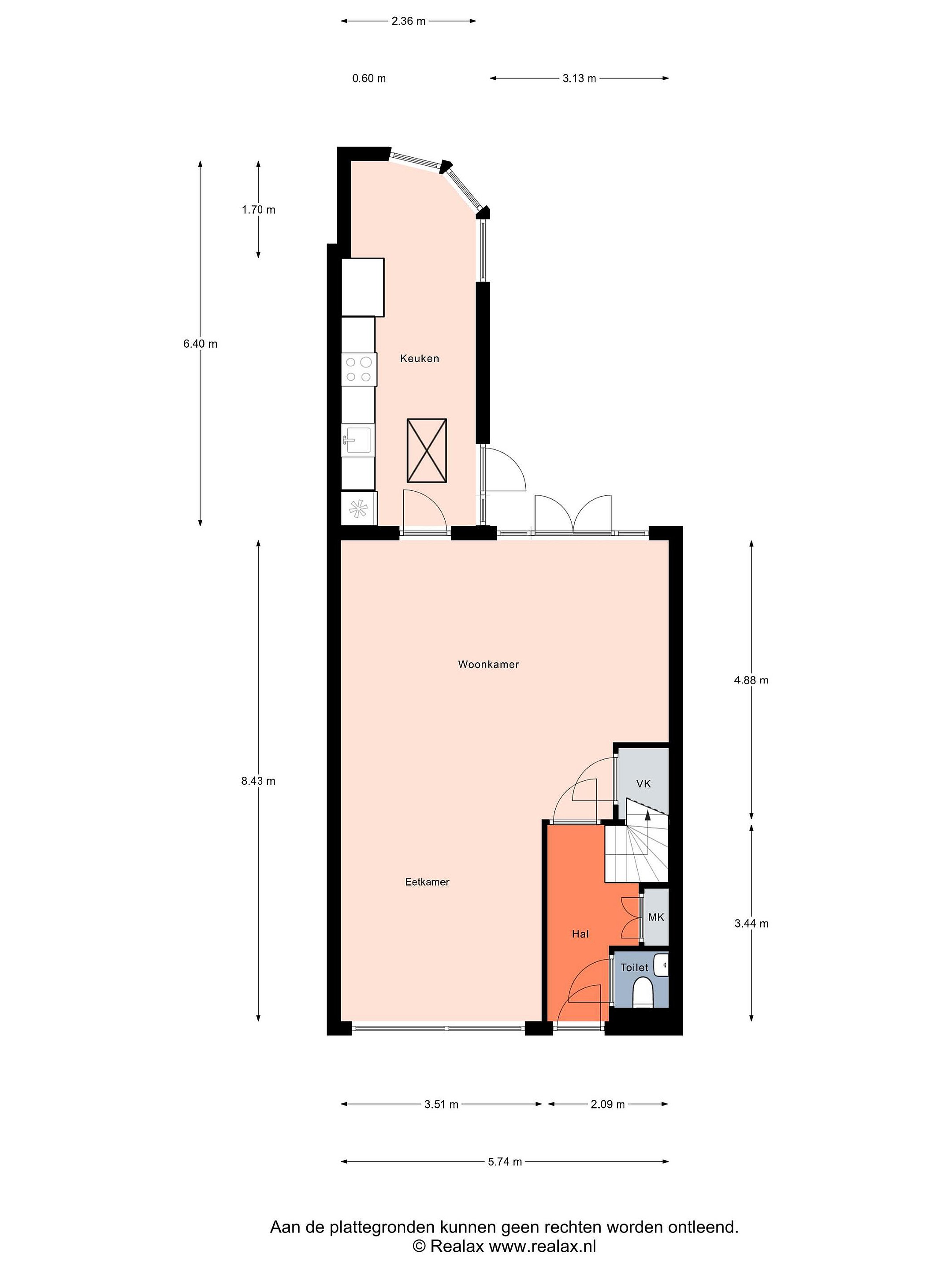
Begane grond
Via de voordeur kom je binnen in de hal, waar zich de meterkast (MK) en het toilet met fonteintje bevinden. Vanuit de hal is er toegang tot zowel de trapopgang naar de verdieping als tot de royale woonkamer.

De woonkamer strekt zich over de volledige breedte van de woning uit en biedt volop ruimte voor een comfortabele zithoek en een aparte eethoek aan de achterzijde.

Aan de achterzijde in de uitbouw bevindt zich de keuken. De keuken is voorzien van een ruime werkbladopstelling en voldoende kastruimte. Vanuit de keuken is er direct toegang tot de achterzijde van de woning, waar zich bijvoorbeeld de tuin of buitenruimte kan bevinden.

Aangrenzend aan de woonkamer bevindt zich een ruime trapkast, ideaal voor extra opslagruimte.

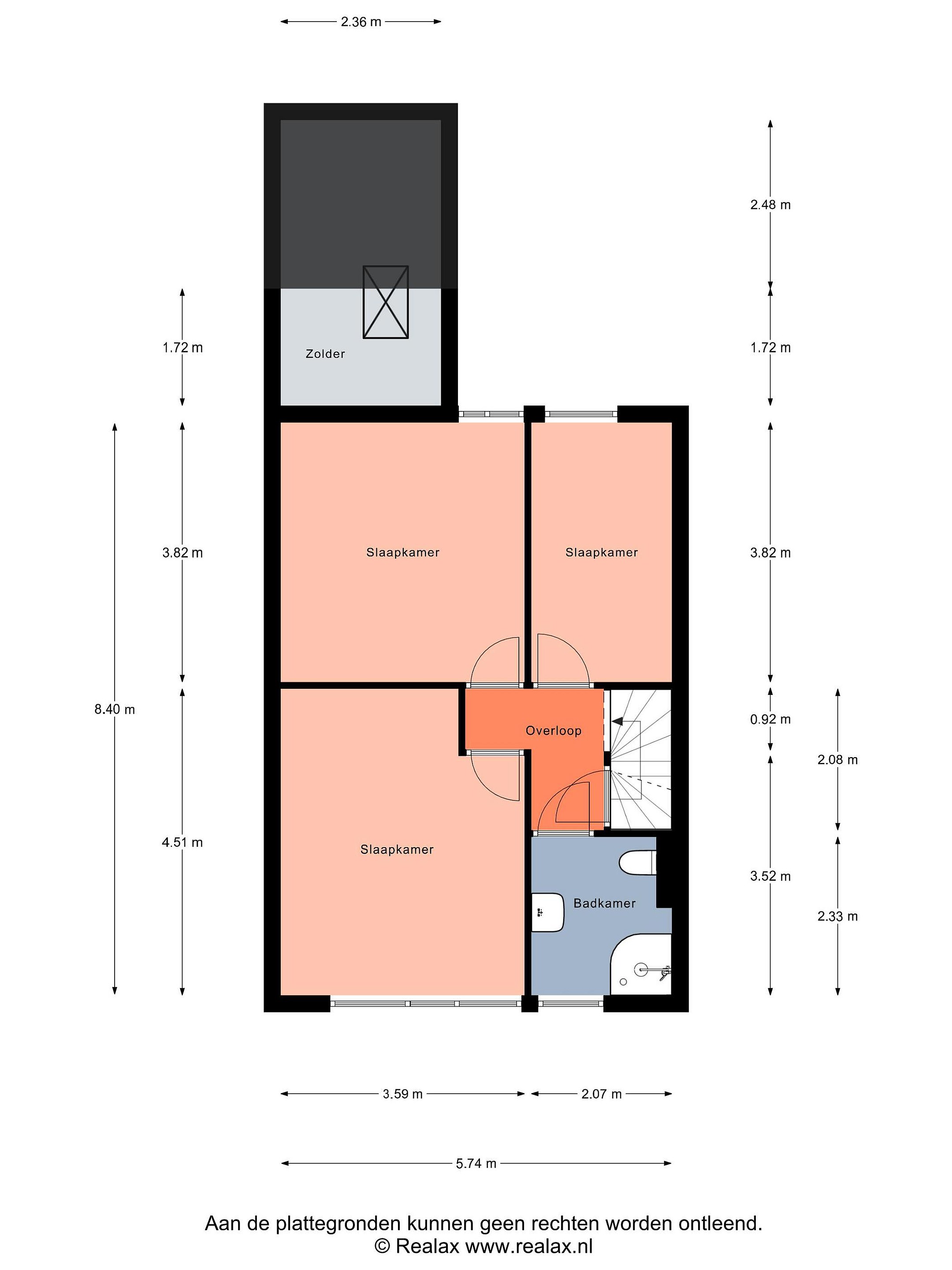
Eerste verdieping
Via de trap bereik je de overloop, die toegang biedt tot drie ruime slaapkamers, de badkamer en de trapopgang naar de zolder.

Aan de voorzijde van de woning bevindt zich de grootste slaapkamer, die royaal van formaat is en voldoende ruimte biedt voor een tweepersoonsbed, kledingkast en eventueel een werkhoek. Aan de achterzijde zijn nog twee slaapkamers gelegen, ideaal als kinderkamer, logeerkamer of werkkamer. Dankzij de grote ramen genieten alle vertrekken van veel daglicht.

De badkamer bevindt zich aan de voorzijde t met een douche, wastafel en tweede toilet.

Tweede verdieping
Via een vaste trap kom je op de zolderverdieping, die verrassend veel ruimte en mogelijkheden biedt. De overloop geeft toegang tot twee ruime slaapkamers en handige bergruimtes (VK) aan beide zijden, weggewerkt onder de schuine dakdelen.

Beide slaapkamers zijn prettig van formaat en beschikken over dakramen, waardoor er voldoende daglicht binnenvalt. De kamers kunnen uitstekend dienen als extra slaapkamers, werkkamers of hobbyruimtes.

Op de overloop is bovendien de aansluiting voor de wasmachine en droger aanwezig, evenals de opstelling van de cv-installatie.

Tuin
De woning beschikt over een achtertuin die volledig is bestraat, waardoor deze onderhoudsvriendelijk is. De tuin biedt volop ruimte voor een gezellige zithoek en een eettafelset, ideaal om in alle rust te genieten van het buitenleven.

Dankzij de gunstige ligging is er gedurende de dag veel zon aanwezig, terwijl de hoge schutting zorgt voor optimale privacy. Langs de erfafscheiding is een deel voorzien van decoratieve begroeiing.


Lees meer

Kenmerken

Overdracht

Prijs per m2
€ 3.271
Aangeboden sinds
12 november 2025
Status
Verkocht onder voorbehoud
Aanvaarding
In overleg

Bouw

Soort woonhuis
Eengezinswoning, tussen woning
Soort bouw
Bestaande bouw
Bouwjaar
1979
Soort dak
Zadeldak
Staat van onderhouden binnen
Redelijk
Staat van onderhouden buiten
Redelijk

Oppervlakte en inhoud

Perceeloppervlakte
170 m2
Inhoud van de woning
477 m3
Oppervlakte externe bergruimte
8 m2
Oppervlakte overige inpandige ruimten
4 m2

Indeling

Aantal kamers
6
Aantal slaapkamers
5
Aantal woonlagen
3
Voorzieningen
Tuin, buitenzonwering, dakraam

Buitenruimte

Balkon
Nee
Schuur/berging
Nee

Maandlasten berekenen

De maandlasten voor je woning bestaan uit meer dan alleen de hypotheeklasten. Hieronder vind je een overzicht van de bijkomende kosten en lasten. Zo weet je precies wat je huis per maand gaat kosten. En met de handige vergelijkers kun je ook nog eens snel de beste deals sluiten!

  • Kaart
  • Streetview