Verkocht

Paardenkamp 62 3751 JR Bunschoten-Spakenburg

180m2
Wonen
7
Kamers
266m2
Perceel
2018
Bouwjaar
Thuis begint hier.
Deze woning biedt licht, ruimte en een afwerking die klopt tot in detail. Van buiten maakt hij al indruk met zijn statige uitstraling, en eenmaal binnen wordt dat gevoel alleen maar versterkt. Hier ervaar je comfort op niveau. Vanaf het moment dat je de auto op eigen oprit parkeert tot het moment dat je plaatsneemt in de royale woonkeuken voor een lange avond tafelen, klopt het plaatje.

De leefruimte is royaal en doordacht ingedeeld, met als stralend middelpunt de ruime woonkeuken. Dit is geen plek om alleen te koken, maar om samen te komen. Lange avonden met vrienden, kinderen die hun huiswerk maken aan de keukentafel, een kop koffie in de ochtendzon of een verjaardag met familie; hier speelt het gezinsleven zich af. De moderne afwerking en hoogwaardige materialen zorgen voor een stijlvolle en rustige basis waarin ieder detail op zijn plek valt.

De keuken staat in prettige verbinding met de woonkamer, die door de L-vorm knus aanvoelt en tegelijkertijd verrassend ruim is. Zo heb je het beste van twee werelden: openheid én geborgenheid.
Aansluitend bevindt zich de volledig geïsoleerde garage, direct verbonden met de woning. Een praktische ruimte die al snel een onmisbaar verlengstuk van het huis wordt. Of het nu gaat om hobby, opslag of gewoon het gemak van binnendoor naar binnen stappen, dit is comfort waar je snel aan gewend raakt.

Op de verdiepingen zet het gevoel van ruimte zich moeiteloos voort. De kamers zijn prettig van formaat en zelfs de tweede etage is volwaardig ingericht. Met maar liefst vijf slaapkamers biedt deze woning alle ruimte voor een groot gezin, werken aan huis of het creëren van een eigen plek voor ieder gezinslid.

Buiten wacht een zonnige tuin op het zuiden, waar je vanaf het voorjaar tot ver in het najaar geniet van lange dagen in de zon. Het royale perceel van 266 m2 geeft je de vrijheid om te ontspannen, te spelen of uitgebreid te tafelen met familie en vrienden. Hier ervaar je rust en privacy, met alle ruimte om het buitenleven optimaal te beleven.

Paardenkamp 62 ligt in een rustige en geliefde woonomgeving met alle dagelijkse voorzieningen binnen handbereik. Scholen, winkels en uitvalswegen bevinden zich op korte afstand, waardoor je hier woont met het beste van twee werelden: comfortabel én centraal.
Een woning die luxe, ruimte en zon samenbrengt op één adres. Kom binnen en ervaar het zelf.
Begane grond
Entree via de hal met meterkast, toiletruimte en trapopgang naar de eerste verdieping. Vanuit de hal is er toegang tot de ruime woonkamer, met openhaard, aan de voorzijde van de woning. Aan de achterzijde bevindt zich de open keuken met kookeiland en voldoende ruimte voor een eethoek. Vanuit de keuken is de praktische bijkeuken/garage bereikbaar. De garage biedt tevens toegang tot de oprit en de achtergelegen overkapping/berging.

Eerste verdieping
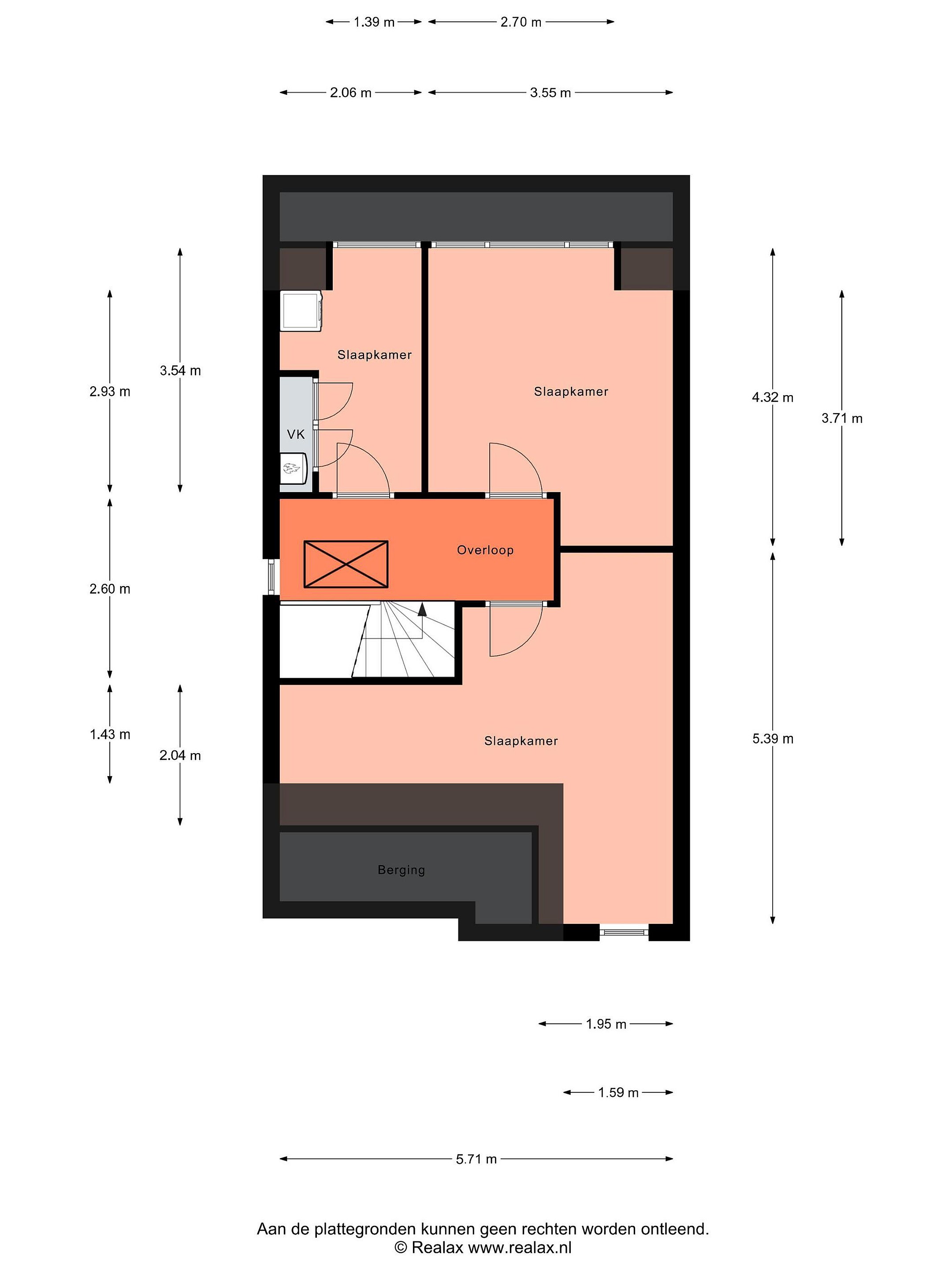
Overloop met toegang tot drie slaapkamers, een separate toiletruimte en de badkamer. De badkamer is voorzien van een ligbad, douche en wastafel. Twee slaapkamers bevinden zich aan de achterzijde van de woning en de derde, royale slaapkamer aan de voorzijde beschikt over een vaste kast.

Tweede verdieping
Overloop met toegang tot drie slaapkamers. In één van de slaapkamers bevindt zich de aansluiting voor de wasmachine en is tevens de opstelling voor de cv-installatie aanwezig. Daarnaast is er extra bergruimte achter de knieschotten en een separate berging.

Tuin
De fraai aangelegde achtertuin is gelegen op het zonnige zuiden en grenst direct aan het water. De tuin beschikt over meerdere terrassen, een gazon en diverse groenborders waardoor er altijd een fijne plek is om te zitten, zowel in de zon als in de schaduw. Achterin de tuin bevindt zich een vlonder aan het water met mogelijkheid om een bootje aan te leggen. Daarnaast is er een ruime overkapping waar het heerlijk beschut zitten is, ideaal om het hele jaar door van de tuin te genieten.

Details
Bijzonderheden:
- 20 zonnepanelen
- Volledig geïsoleerde garage met openslaande deuren
- Slaapkamers allen voorzien van rolluiken
- Dakkapel zuidzijde
- Tuin voorzien van stalen damwand en vlonder

Lees meer

Verkoopgeschiedenis

Aangeboden sinds
5 maart 2026
Verkoopdatum
1 april 2026
Looptijd
één maand

Kenmerken

Overdracht

Prijs per m2
€ 5.472
Aangeboden sinds
5 maart 2026
Status
Verkocht
Aanvaarding
In overleg

Bouw

Soort woonhuis
Eengezinswoning, twee-onder-een-kap woning
Soort bouw
Bestaande bouw
Bouwjaar
2018
Soort dak
Zadeldak
Staat van onderhouden binnen
Uitstekend
Staat van onderhouden buiten
Uitstekend

Oppervlakte en inhoud

Perceeloppervlakte
266 m2
Inhoud van de woning
738 m3
Oppervlakte gebouwgebonden buitenruimten
18 m2
Oppervlakte overige inpandige ruimten
24 m2

Indeling

Aantal kamers
7
Aantal slaapkamers
6
Aantal woonlagen
4
Voorzieningen
Tuin, rolluiken, open haard, buitenzonwering

Buitenruimte

Balkon
Nee
Schuur/berging
Nee

Maandlasten berekenen

De maandlasten voor je woning bestaan uit meer dan alleen de hypotheeklasten. Hieronder vind je een overzicht van de bijkomende kosten en lasten. Zo weet je precies wat je huis per maand gaat kosten. En met de handige vergelijkers kun je ook nog eens snel de beste deals sluiten!

  • Kaart
  • Streetview