Verkocht OV

Huurdemanskamp 42 3751 JA Bunschoten-Spakenburg

102m2
Wonen
4
Kamers
93m2
Perceel
2012
Bouwjaar
Wonen met uitzicht
Instapklaar genieten aan de Rengerswetering

Stap binnen in Huurdemanskamp 42 en ervaar hoe licht en ruimte hier samenkomen. Aan de voorzijde kijk je uit over het water, uniek gelegen aan de rand van de Rengerswetering.

Binnen is de woning verzorgd en instapklaar. De woonkamer heeft een prettige lichtinval en sluit mooi aan op de keuken en tuin. Op de eerste verdieping vind je ruime slaapkamers en als extra plus een volledig ingerichte zolder, ideaal als werkplek, hobbykamer of extra slaapkamer.

Ook buiten is het genieten. De tuin is overzichtelijk en sfeervol aangelegd, een fijne plek om te ontspannen of samen te zijn met vrienden.

De ligging maakt het plaatje compleet. Rengerswetering is een geliefde wijk waar je alle voorzieningen binnen handbereik hebt. Met een supermarkt en school om de hoek en het centrum van Spakenburg op fietsafstand woon je hier praktisch en centraal.

Zie jij jezelf al thuis voelen met uitzicht op het water en alle comfort van nu? Huurdemanskamp 42 staat voor je klaar.
Begane grond
Entree
Voorentree met toegang tot de hal.

Hal
Hal met toilet, meterkast en toegang tot de woonkamer.

Woonkamer
Tuingerichte woonkamer met aan de achterzijde de keuken.

Keuken
Keuken voorzien van combi-oven, gaskookplaat, afzuigkap, koelkast en vriezer.

Eerste verdieping
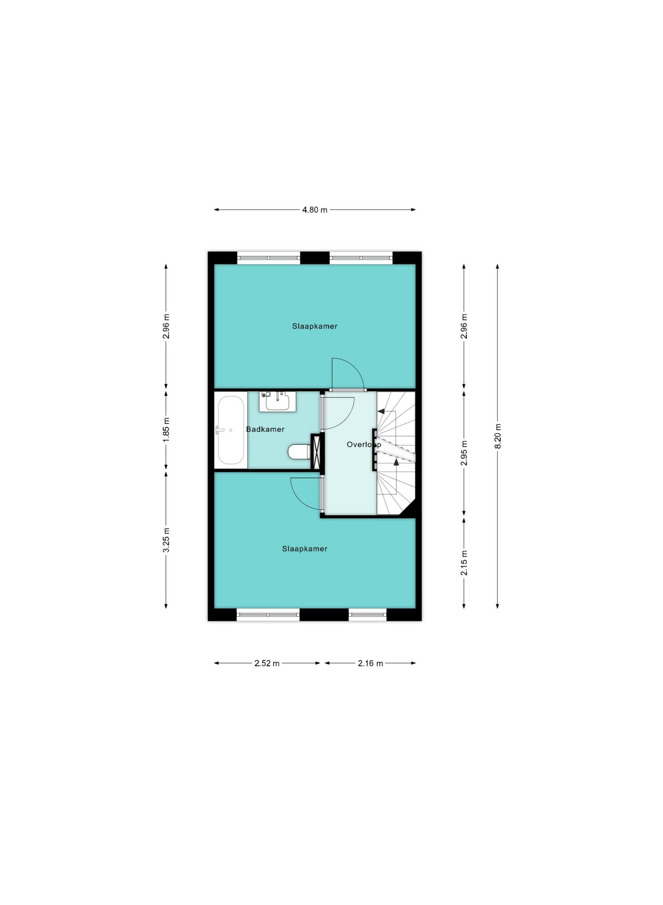
Eerste verdieping – overloop
Overloop met toegang tot slaapkamers en badkamer.

Slaapkamers
Twee ruime slaapkamers.

Badkamer
Badkamer met toilet, ligbad/douche en wastafel.

Tweede verdieping
Ingerichte zolder met voorzolder en ruime slaapkamer met groot dakraam.
Voorzolder met aansluiting voor wasmachine en droger.

Tuin
Tuin op het noorden met berging.

Lees meer

Kenmerken

Overdracht

Prijs per m2
€ 4.706
Aangeboden sinds
19 september 2025
Status
Verkocht onder voorbehoud
Aanvaarding
In overleg

Bouw

Soort woonhuis
Eengezinswoning, tussen woning
Soort bouw
Bestaande bouw
Bouwjaar
2012
Soort dak
Zadeldak
Staat van onderhouden binnen
Goed
Staat van onderhouden buiten
Goed

Oppervlakte en inhoud

Perceeloppervlakte
93 m2
Inhoud van de woning
371 m3
Oppervlakte externe bergruimte
5 m2

Indeling

Aantal kamers
4
Aantal slaapkamers
3
Aantal woonlagen
3
Voorzieningen
Tuin, schuur/berging

Buitenruimte

Balkon
Nee
Schuur/berging
Ja

Maandlasten berekenen

De maandlasten voor je woning bestaan uit meer dan alleen de hypotheeklasten. Hieronder vind je een overzicht van de bijkomende kosten en lasten. Zo weet je precies wat je huis per maand gaat kosten. En met de handige vergelijkers kun je ook nog eens snel de beste deals sluiten!

  • Kaart
  • Streetview