Verkocht

Dwarskamp 7 3751 JS Bunschoten-Spakenburg

129m2
Wonen
4
Kamers
130m2
Perceel
2019
Bouwjaar
Heerlijk ruim wonen in de Rengerswetering

Dwarskamp 7 laat zien hoe fijn het wonen kan zijn in een jonge, kindvriendelijke wijk. Voor de deur ligt een groen park met speeltuin, waardoor kinderen veilig kunnen spelen en jij zelf kunt genieten van het vrije uitzicht.

Binnen word je verrast door de ruimte. Dankzij de uitbouw is de woonkamer royaal en licht, met vloerverwarming die zorgt voor een aangenaam comfort. Alles is netjes afgewerkt en heeft een moderne uitstraling, zodat je zonder klussen kunt verhuizen.

De tuin op het westen is een plek om van te houden: zonnig, overzichtelijk en met veel privacy door de parkeerhaven achter de woning. Bovendien heb je altijd de luxe van een eigen parkeerplek direct bij huis.

De wijk Rengerswetering staat bekend om zijn rustige, vriendelijke sfeer, terwijl alle voorzieningen zoals scholen, supermarkt en het centrum van Spakenburg snel te bereiken zijn.

Zie jij jezelf hier al genieten van ruimte, comfort en het buitenleven?
Begane grond
Entree met hal, toilet en trapopgang. Aan de voorzijde bevindt zich de keuken, terwijl de ruime woonkamer aan de achterzijde toegang geeft tot de tuin met berging.

Eerste verdieping
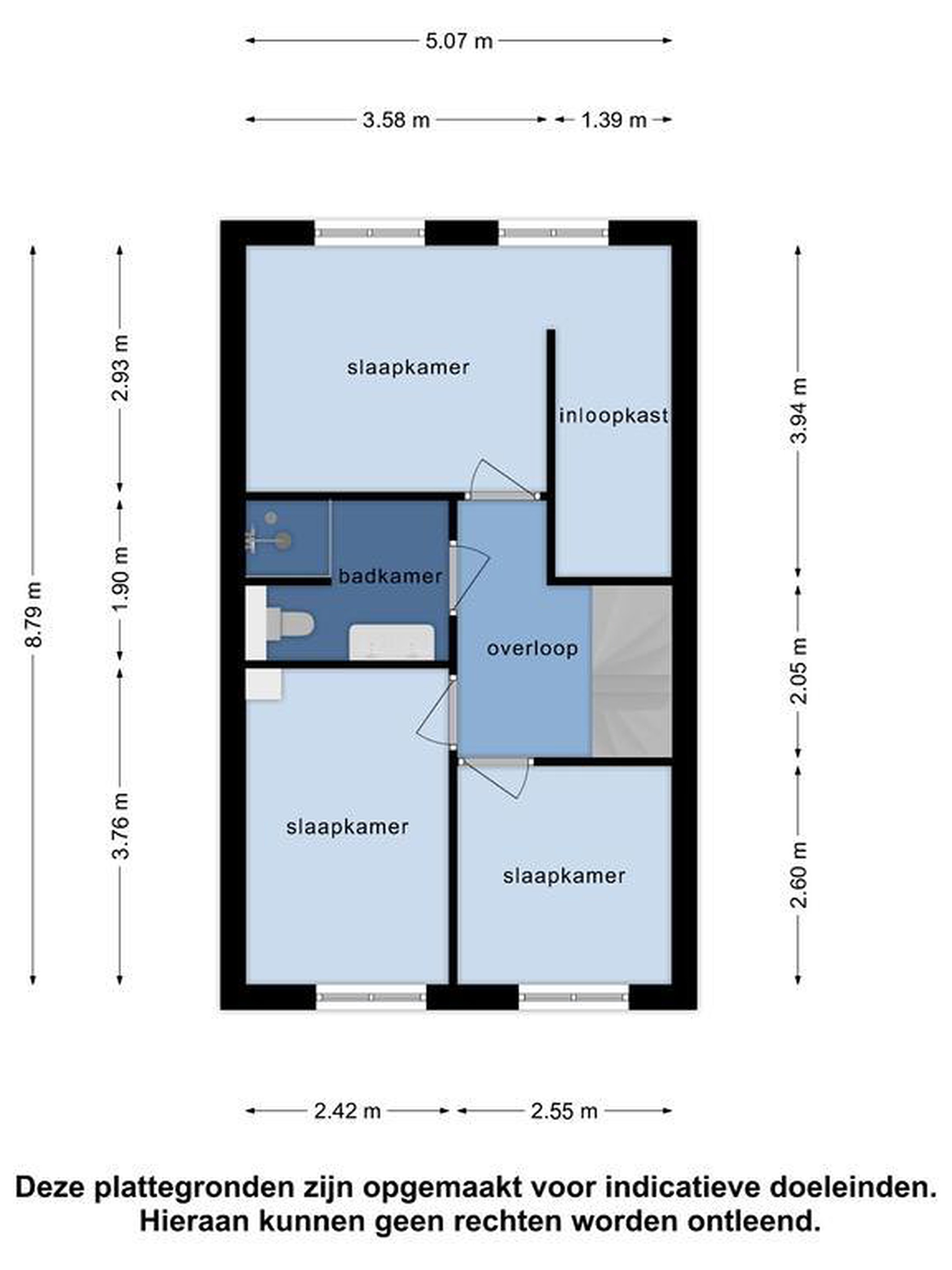
Overloop met toegang tot drie slaapkamers, een inloopkast en de badkamer.

Tweede verdieping
Ruime zolder met knieschotten en volop mogelijkheden voor extra slaap- of werkruimte.

Tuin
De achtertuin is onderhoudsvriendelijk aangelegd met voldoende ruimte voor een lounge- en eethoek. Achterin staat een praktische berging en er is een achterom. aanwezig.

Lees meer

Verkoopgeschiedenis

Aangeboden sinds
25 september 2025
Verkoopdatum
25 november 2025
Looptijd
2 maanden

Kenmerken

Overdracht

Prijs per m2
€ 4.051
Aangeboden sinds
25 september 2025
Status
Verkocht
Aanvaarding
In overleg

Bouw

Soort woonhuis
Eengezinswoning, tussen woning
Soort bouw
Bestaande bouw
Bouwjaar
2019
Soort dak
Zadeldak
Staat van onderhouden binnen
Goed
Staat van onderhouden buiten
Goed

Oppervlakte en inhoud

Perceeloppervlakte
130 m2
Inhoud van de woning
465 m3
Oppervlakte externe bergruimte
6 m2

Indeling

Aantal kamers
4
Aantal slaapkamers
3
Aantal woonlagen
3
Voorzieningen
Tuin, schuur/berging, rolluiken, airconditioning, dakraam

Buitenruimte

Balkon
Nee
Schuur/berging
Ja

Maandlasten berekenen

De maandlasten voor je woning bestaan uit meer dan alleen de hypotheeklasten. Hieronder vind je een overzicht van de bijkomende kosten en lasten. Zo weet je precies wat je huis per maand gaat kosten. En met de handige vergelijkers kun je ook nog eens snel de beste deals sluiten!

  • Kaart
  • Streetview