Verkocht

Dopperstraat 53 3752 JB Bunschoten-Spakenburg

136m2
Wonen
5
Kamers
222m2
Perceel
1974
Bouwjaar
Soms verdient een woning een tweede blik — zeker nu de prijs nog aantrekkelijker is geworden. Een unieke kans voor wie op zoek is naar ruimte, comfort en een fijne ligging !

Stel je eens voor: wakker worden met het gezang van vogels, genieten van een ruime, zonnige tuin en alle voorzieningen binnen handbereik. Dit kan werkelijkheid worden aan de Dopperstraat 53 in het fijne Bunschoten-Spakenburg, waar deze verrassend ruime en goed onderhouden tussenwoning op je wacht. Een plek waar je zó je verhuisdozen kwijt wilt!

Fijn gezinsleven in een groene wijk**
Of je nu toe bent aan een volgende stap met je jonge gezin, of misschien wel op zoek bent naar net dat beetje extra leefruimte als doorstromer – deze woning in de wijk Bikkersvaart zou zo maar aan al je wensen kunnen voldoen. Je woont hier lekker rustig en groen, want de straat is kindvriendelijk en autoluw. Kinderen spelen veilig in de buurt, terwijl jij geniet van de parkachtige omgeving om je heen. En wat misschien nog wel het mooiste is: alles wat het gezinsleven makkelijk maakt – zoals een basisschool, supermarkt en bushalte – is werkelijk om de hoek.

Ruimte in overvloed**
De woonkamer oogt heerlijk licht, met grote raampartijen die het zonlicht naar binnen halen. ’s Zomers zet je zo de tuindeur open en loopt het leefgedeelte over in de riante achtertuin op het zuidwesten. De tuin biedt volop privacy én ruimte – met z’n 79 m2 ideaal voor kinderen om te ravotten, maar ook voor gezellige borrels en lange zomeravonden. Overigens kun je meerdere auto’s kwijt op de dubbele oprit aan de voorkant. Parkeerproblemen zijn hier voorgoed verleden tijd!

Vier slaapkamers en een zee aan mogelijkheden**
Een druk (gezins)leven vraagt om flexibiliteit en daar is in dit huis absoluut aan gedacht. Op de eerste verdieping vind je drie ruime slaapkamers, genoeg plek voor ieder gezinslid. Op de tweede verdieping wacht een vierde kamer mét dakkapel, perfect als slaapkamer, thuiskantoor of hobbyruimte. Extra spullen berg je eenvoudig op, mede dankzij de praktische inpandige garage met handige bergzolder. Nooit meer zoeken naar ruimte voor fietsen, gereedschap of sportspullen.

Moderne badkamer & volop comfort**
Onze favoriet? Dat is zonder twijfel de grote, moderne badkamer. Lekker ontspannen in het ligbad na een drukke dag, snel douchen in de aparte douchecabine, of je tanden poetsen aan de fraaie wastafel met meubel – hier kan het allemaal. Het hangend toilet, de designradiator en niet te vergeten de vloerverwarming geven iedere ochtend nét dat tikkeltje extra luxe. Genoeg redenen om je dag vol energie te beginnen!

Duurzaam en onderhoudsarm
Verder zit het qua techniek ook helemaal goed. De woning is vrijwel volledig uitgevoerd met kunststof kozijnen voorzien van HR++ glas en draai-kiepramen. Dus: energielabel B, lage stookkosten en geen omkijken meer naar schilderwerk! Dat is nog eens onbezorgd wonen.

Waarom juist hier?**
Misschien vraag je jezelf af: waarom zou ik kiezen voor de Dopperstraat 53? Nou ja, waarom niet eigenlijk! Precies op deze plek woon je royaal, genieten jij en je gezin elke dag van rust, ruimte en groen, én heb je alle voorzieningen onder handbereik. Je hoeft er alleen maar je eigen invulling aan te geven – het huis is direct geschikt voor jarenlang woonplezier.

Kom snel kijken – wie weet is dit jouw toekomstige thuis!
Zie je jezelf al zitten op een warme zomeravond, in je eigen tuin, terwijl de kinderen spelen in de rustige straat? Pak dan je kans en kom dit huis ervaren – want sommige woningen moet je gewoon in het echt voelen. Bel gerust voor een bezichtiging, wie weet ben je straks de nieuwe trotse eigenaar van Dopperstraat 53!

We leiden je graag rond en beantwoorden met plezier al je vragen. Tot snel?
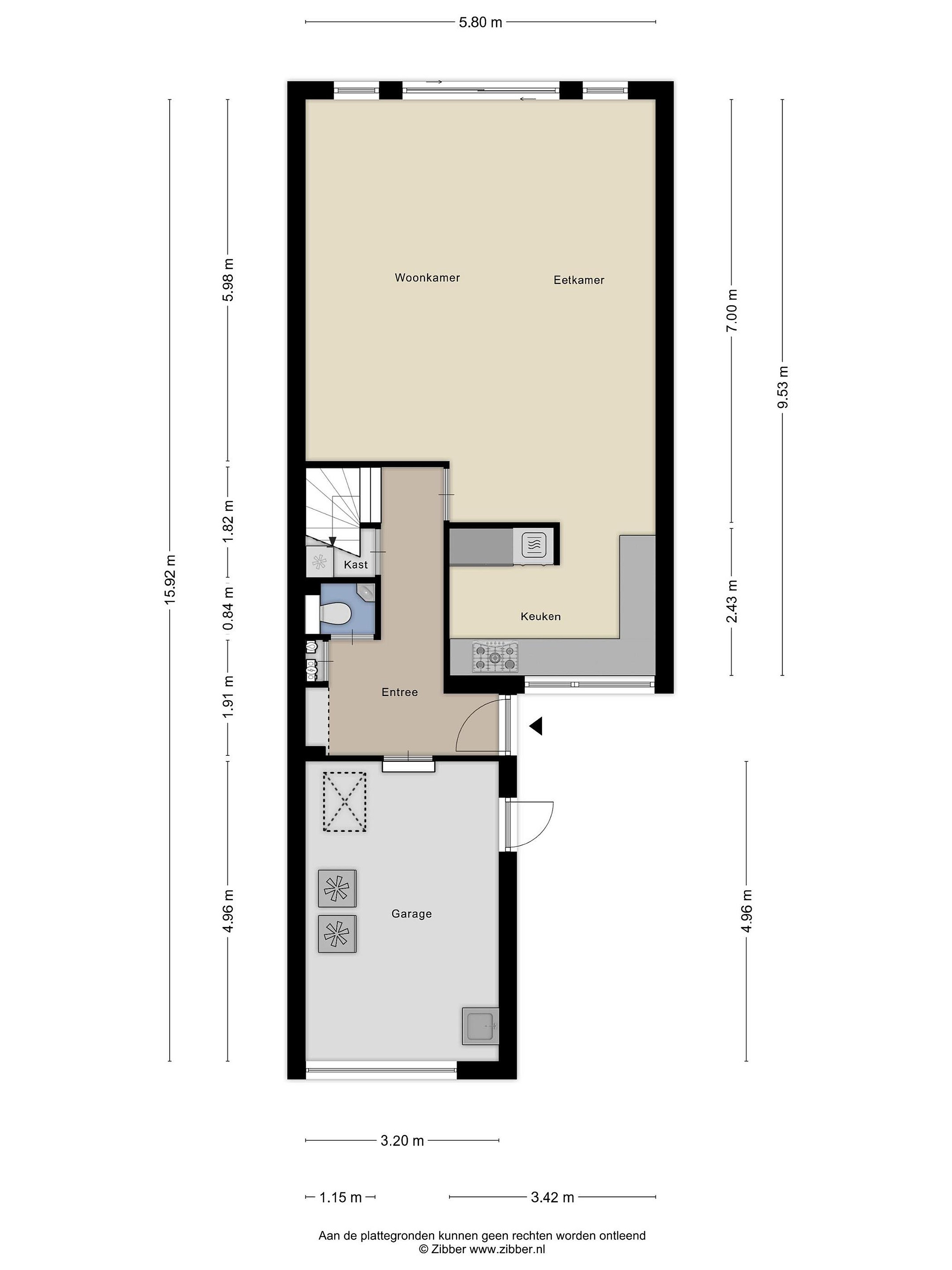
Begane grond
Begane grond
Parkeren op eigen grond, ruimte voor 2 auto’s, entree, hal met moderne meterkast en toegang tot de inpandige garage met bergzolder, vaste trapopgang in de hal naar de 1e verdieping, toegang tot de tuingerichte, uitgebouwde woonkamer die via de schuifpui toegang biedt tot de op het zuidwesten gelegen groene achtertuin. De keukenruimte ia straatgericht en beschikt over een keuken in wandopstelling. De keuken is v.v. een 5 -pits gasfornuis, afzuigkap, dubbele oven, koelkast, vaatwasser. Op de vloer ligt een plavuis en is gedeeltelijk voorzien van vloerverwarming.

1e verdieping
Overloop met toegang tot 3 slaapkamers en een ruime badkamer met ligbad, douchecabine, wastafel met meubel, hangend toilet en design radiator. De kozijnen op de slaapkamers zijn van kunststof en v.v. draai-kiepramen met HR++ glas.

2e verdieping
Voorzolder met bergruimte en toegang de tot was-droogruimte met cv-ketelopstelling en dakraam, toegang tot de 4e slaapkamer die is v.v. met dakkapel en groot Velux dakraam, bergruimte achter de knieschotten.

Tuin
Deze sfeervolle, op het zuidwesten gelegen achtertuin biedt volop zon en privacy in een rustige, groene woonomgeving. De tuin is fraai aangelegd met diverse bloeiende planten en struiken, in het midden van de tuin loopt een keurig bestrate tuinpad naar een gezellige overkapping met zitje, perfect voor lange zomeravonden.
De tuin grenst aan een brede groenstrook met bomen, wat zorgt voor een prachtig uitzicht en extra rust. Kortom: een zonnige, onderhoudsvriendelijke tuin in een zeer groene en kindvriendelijke omgeving!


Details
Unieke wooneigenschappen;
Dubbele oprit
Inpandige garage met bergzolder
Nagenoeg volledig kunststof kozijnen met HR ++ glas
Tuinligging op het zuidwesten
Rustige en groene ligging
Traprenovatie
Uitgebouwde woonkamer

Lees meer

Verkoopgeschiedenis

Aangeboden sinds
29 september 2025
Verkoopdatum
2 februari 2026
Looptijd
4 maanden

Kenmerken

Overdracht

Prijs per m2
€ 4.037
Aangeboden sinds
29 september 2025
Status
Verkocht
Aanvaarding
In overleg

Bouw

Soort woonhuis
Eengezinswoning, tussen woning
Soort bouw
Bestaande bouw
Bouwjaar
1974
Soort dak
Zadeldak
Staat van onderhouden binnen
Goed
Staat van onderhouden buiten
Goed

Oppervlakte en inhoud

Perceeloppervlakte
222 m2
Inhoud van de woning
563 m3
Oppervlakte externe bergruimte
4 m2
Oppervlakte gebouwgebonden buitenruimten
15 m2
Oppervlakte overige inpandige ruimten
23 m2

Indeling

Aantal kamers
5
Aantal slaapkamers
4
Aantal woonlagen
3
Voorzieningen
Tuin, ventilatie, glasvezel, dakraam

Buitenruimte

Balkon
Nee
Schuur/berging
Nee

Maandlasten berekenen

De maandlasten voor je woning bestaan uit meer dan alleen de hypotheeklasten. Hieronder vind je een overzicht van de bijkomende kosten en lasten. Zo weet je precies wat je huis per maand gaat kosten. En met de handige vergelijkers kun je ook nog eens snel de beste deals sluiten!

  • Kaart
  • Streetview