Jeltingalaan 66 9285 WL Buitenpost

109m2
Wonen
4
Kamers
496m2
Perceel
1959
Bouwjaar
Degelijke vrijstaande woning met carport, schuur/werkplaats, berging en zolder op royaal perceel
Aan de Jeltingalaan in Buitenpost staat deze vrijstaande woning met een carport en een schuur met werkplaats, berging en zolder. De woning staat op een ruim perceel en biedt veel gebruiksgemak en comfort. Een fijne gezinswoning met volop mogelijkheden, gelegen op een mooie plek in het dorp.
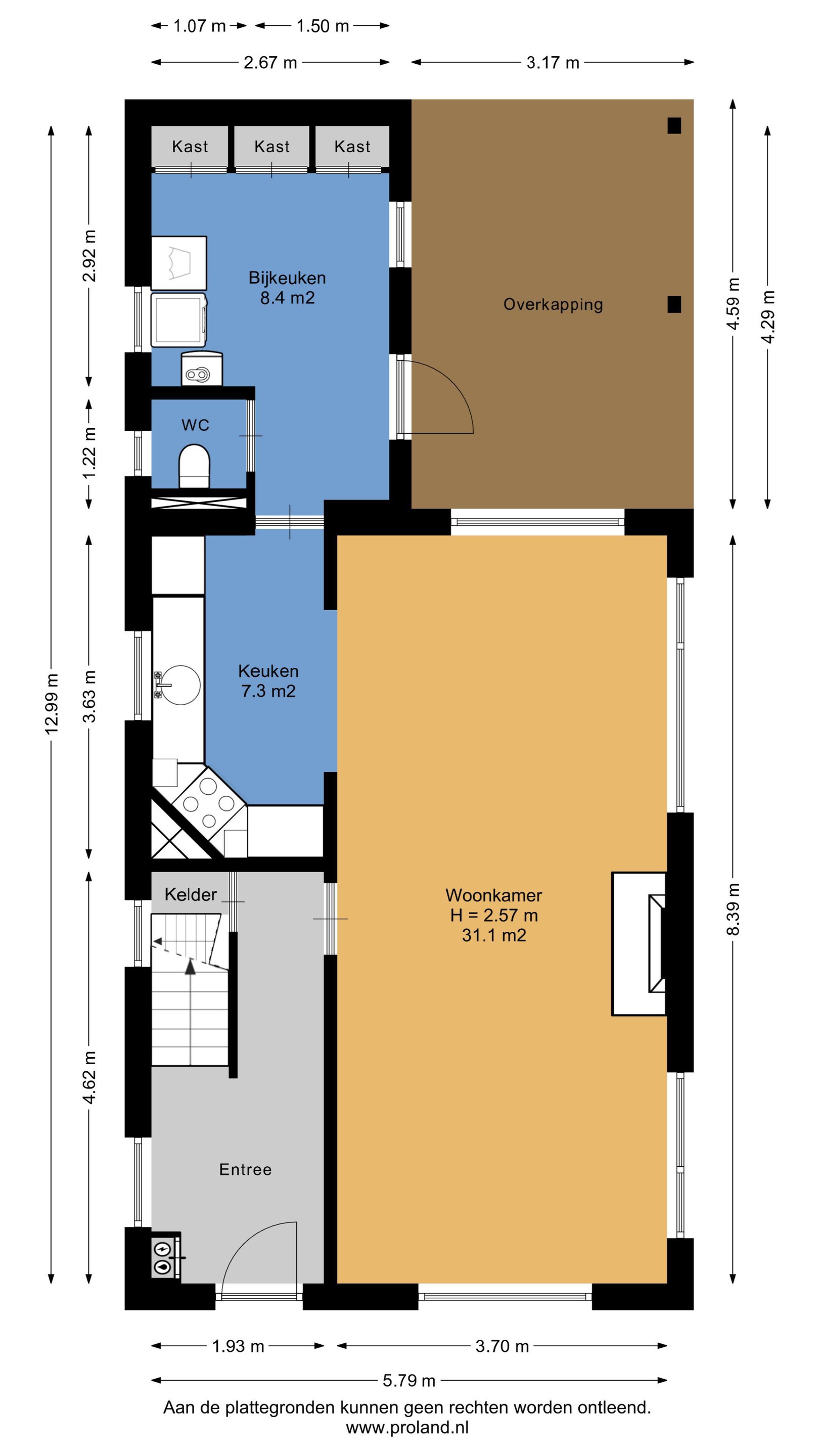
Begane grond
Entree, lichte woonkamer met plek voor een gezellige zithoek en eethoek, keuken met toegang tot de bijkeuken en het toilet.

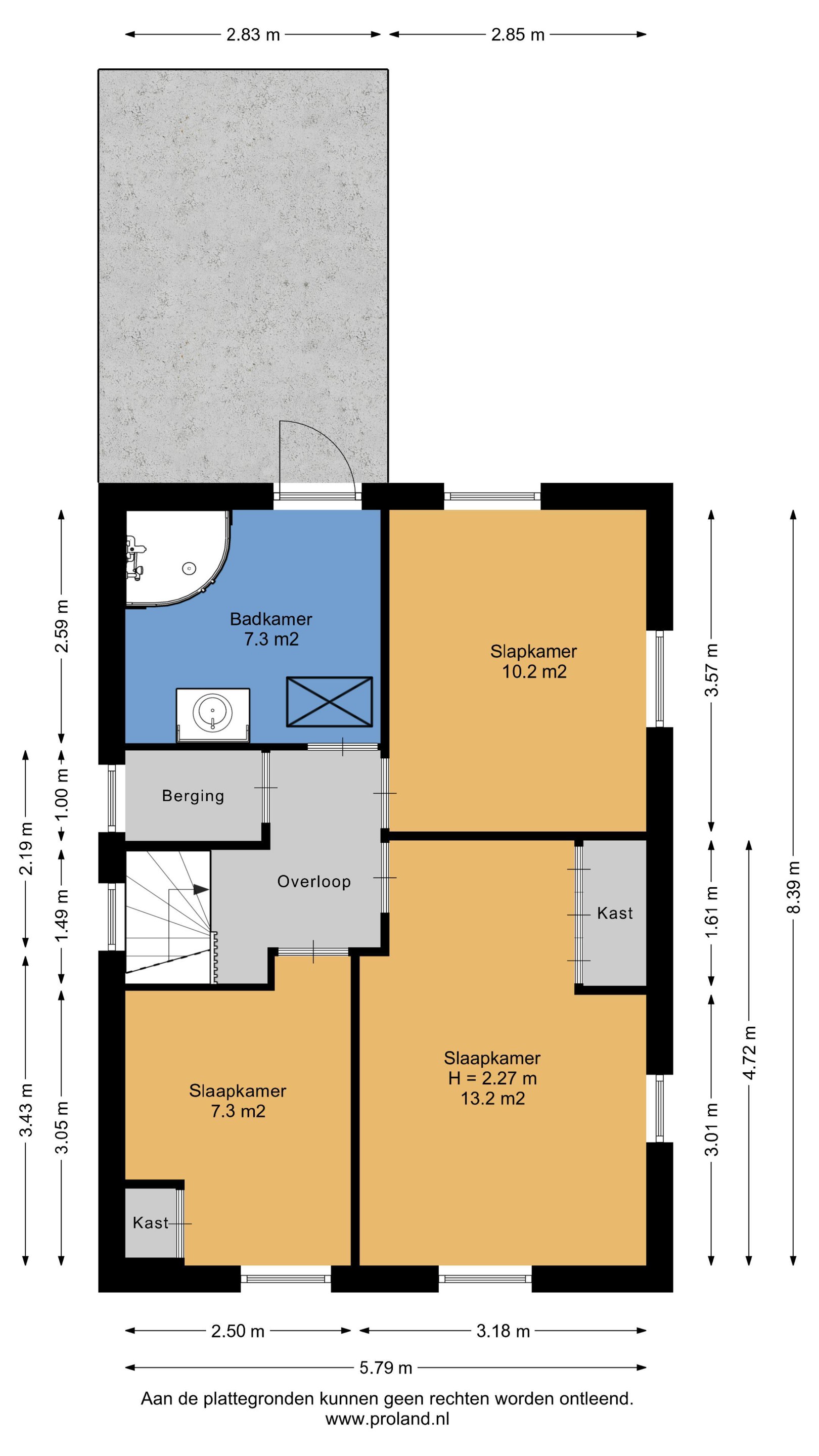
Eerste verdieping
Drie slaapkamers en een badkamer met de basisvoorzieningen.

Tuin
Rondom de woning ligt een ruime tuin met veel privacy en mogelijkheden. De achtertuin is diep en biedt voldoende plek voor een terras, speeltoestellen of een groentetuin. Hier is altijd wel een zonnig of juist beschut plekje te vinden. De tuin is praktisch ingericht en biedt volop ruimte voor buitenleven en ontspanning.

Schuur, werkplaats en berging
Op het perceel staat een schuur met werkplaats, berging en zolder, ideaal voor wie klust, extra opslagruimte zoekt of een hobby wil uitoefenen. De zolder boven de werkplaats biedt extra bergruimte of de mogelijkheid om een werk- of hobbyruimte te creëren. Daarnaast is er een carport, praktisch voor het parkeren van een auto.

Details
- Schuur met werkplaats, berging en zolder;
- Carport aanwezig;
- Bijkeuken aanwezig;
- Net sanitair en keuken;
- Ruim perceel met veel mogelijkheden;
- Gelegen aan een brede straat met goede bereikbaarheid;
- Nabij winkels, scholen en treinstation.

Omgeving
De woning ligt in Buitenpost, een gezellig en levendig dorp met een compleet aanbod aan voorzieningen. In de directe omgeving vindt u supermarkten, winkels, scholen, sportverenigingen en een medisch centrum. Ook het treinstation ligt op korte afstand, met goede verbindingen naar Leeuwarden, Groningen en Dokkum.
Een keurige en verzorgde woning met carport, schuur/werkplaats met berging en zolder, ruime tuin en een fijne plek om te wonen nabij het centrum van Buitenpost.

Lees meer

Kenmerken

Overdracht

Prijs per m2
€ 3.899
Aangeboden sinds
24 januari 2026
Status
Beschikbaar
Aanvaarding
In overleg

Bouw

Soort woonhuis
Eengezinswoning, vrijstaande woning
Soort bouw
Bestaande bouw
Bouwjaar
1959
Soort dak
Zadeldak
Staat van onderhouden binnen
Goed
Staat van onderhouden buiten
Goed

Oppervlakte en inhoud

Perceeloppervlakte
496 m2
Inhoud van de woning
433 m3
Oppervlakte externe bergruimte
67 m2
Oppervlakte gebouwgebonden buitenruimten
14 m2
Oppervlakte overige inpandige ruimten
4 m2

Indeling

Aantal kamers
4
Aantal slaapkamers
3
Aantal woonlagen
2
Voorzieningen
Tuin, schuur/berging, glasvezel

Buitenruimte

Balkon
Nee
Schuur/berging
Ja

Maandlasten berekenen

De maandlasten voor je woning bestaan uit meer dan alleen de hypotheeklasten. Hieronder vind je een overzicht van de bijkomende kosten en lasten. Zo weet je precies wat je huis per maand gaat kosten. En met de handige vergelijkers kun je ook nog eens snel de beste deals sluiten!

  • Kaart
  • Streetview