Maastrichterstraat 44 6444 GG Brunssum

139m2
Wonen
5
Kamers
375m2
Perceel
1950
Bouwjaar
GEZIEN DE ENORME BELANGSTELLING KUNNEN VOOR DEZE WONING INMIDDELS GEEN REACTIES MEER WORDEN AANGENOMEN OF AFSPRAKEN GEPLAND.

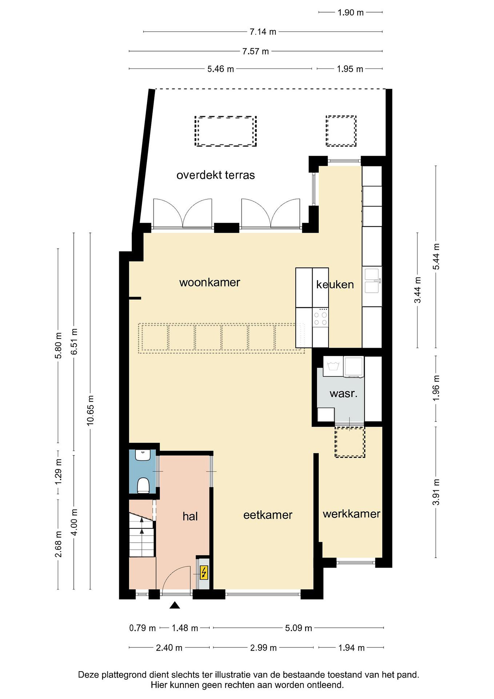
Instapklare, geheel gemoderniseerde 2 onder 1 kap woning met aan- en uitbouw, tuin met 2 overkappingen en zwembad, grote garage met kap/zolder, oprit voor 3 auto’s. Nabij oprit N276 en N300 (Buitenring), op loopafstand van centrum Brunssum, bassischool en sportschool. Indeling: entree, hal, meterkast, toiletruimte, woonkamer (70 m2) met aanbouw met lichtstraat en openslaande tuindeuren naar grote overkapping, werkkamer/kantoor met airco, bijkeuken en open keuken met schiereiland en alle apparatuur. Buiten: voortuin, achtertuin met grote aangebouwde overkapping en vrijstaande overkapping, zwembad, koivijver en grote garage met kap/zolder en toilet, oprit voor 3 auto’s. Perceel is via oprit achterzijde bereikbaar. Eerste verdieping: overloop, 2 slaapkamers -1 met airco en moderne badkamer met dubbele wastafel in badmeubel, 2e toilet, inloopdouche en ligbad. Tweede verdieping: middels vaste trap en lichte overloop bereikbare royale zolder met zolderkamer met dakkapel en airco, c.v.-berging en bergruimtes. Volledig voorzien van kunststof kozijnen dubbel glas en deels rolluiken. Voorzien van 3 airco’s en van vloer- en dakisolatie en de aan-en uitbouw tevens van gevelisolatie.) Energielabel C. Perceel 375 m2, woonopp. 139 m2. Bouwjaar 1950.
Begane grond
entree, hal, meterkast met ruim voldoende groepen, lichte en ruime woonkamer (70 m2) met aanbouw met lichtstraat en openslaande tuindeuren naar de grote overkapping, werkkamer/kantoor (7,6 m2) met airco, bijkeuken met aansluitingen wasmachine en droger, open keuken (10,6 m2) met schiereiland en veel kastruimte, koelkast, vriezer, oven, combi-oven, afzuigkap, vaatwasser en 5-pits gaskookplaat. Woonkamer en keuken zijn voorzien van vloerverwarming.

Eerste verdieping
overloop, 2 slaapkamers (10.5 en 12.5m2), 1 met airco en moderne badkamer (6m2) met vloerverwarming, inloopdouche, ligbad, toilet en dubbele wastafel in
badmeubel

Tweede verdieping
middels vaste trap via lichte overloop naar royale zolder met zolderkamer (23m2) met airco en dakkapel, c.v.berging (type HR-combi, eigendom, 2016) en aparte bergruimtes

Tuin
voortuin, gezellige achtertuin met diverse zitgelegenheden waardoor je altijd van de zon of schaduw kunt genieten en met grote aangebouwde overkapping (23m2), vrijstaande overkapping (12m2), koivijver, zwembad, grote garage (36m2) met kap/zolder, elektrische sectionaalpoort en toilet, ruime oprit voor 3 auto’s. Toegang tot perceel via oprit aan achterzijde.

Details
Volledig voorzien van kunststof kozijnen, deels rolluiken. Nabij basisschool, sportschool, ruime parkeerplaats, en oprit N276 en Buitenring.
De gebruikelijke bankgarantie/waarborgsom van 10% is van toepassing. De koper dient deze uiterlijk binnen 1 week nadat het financieringsvoorbehoud is verlopen bij de desbetreffende notaris te deponeren.

Lees meer

Kenmerken

Overdracht

Prijs per m2
€ 2.583
Aangeboden sinds
10 oktober 2025
Status
Beschikbaar
Aanvaarding
In overleg

Bouw

Soort woonhuis
Eengezinswoning, geschakelde twee-onder-een-kap woning
Soort bouw
Bestaande bouw
Bouwjaar
1950
Soort dak
Zadeldak
Staat van onderhouden binnen
Goed
Staat van onderhouden buiten
Goed

Oppervlakte en inhoud

Perceeloppervlakte
375 m2
Inhoud van de woning
496 m3
Oppervlakte externe bergruimte
35 m2
Oppervlakte gebouwgebonden buitenruimten
24 m2
Oppervlakte overige inpandige ruimten
8 m2

Indeling

Aantal kamers
5
Aantal slaapkamers
3
Aantal woonlagen
4
Voorzieningen
Tuin, rolluiken, zwembad, airconditioning

Buitenruimte

Balkon
Nee
Schuur/berging
Nee

Maandlasten berekenen

De maandlasten voor je woning bestaan uit meer dan alleen de hypotheeklasten. Hieronder vind je een overzicht van de bijkomende kosten en lasten. Zo weet je precies wat je huis per maand gaat kosten. En met de handige vergelijkers kun je ook nog eens snel de beste deals sluiten!

  • Kaart
  • Streetview