Verkocht

Sparrenweg 26 4814 AT Breda

90m2
Wonen
4
Kamers
150m2
Perceel
2026
Bouwjaar
GRAAG UW BEZICHTIGING AANVRAGEN VIA FUNDA.NL

TE KOOP
Splinternieuwe twee-onder-een-kapwoning (2026) nabij centrum Breda van 90 m2 woonoppervlak, 2 badkamers en volledig gasloos.

Op korte afstand van het centrum van Breda, in de wijk Tuinzigt, ligt deze zojuist (2026) opgeleverde twee-onder-een-kapwoning. De woning verkeert in absolute nieuwstaat – eerste bewoning – en is volledig gebouwd volgens de nieuwste eisen op het gebied van duurzaamheid en comfort.

Met een woonoppervlakte van ca. 90 m2 is deze woning ideaal voor starters die op zoek zijn naar een nieuwe en energiezuinige woning.

De woning is volledig gasloos en voorzien van een warmtepomp, WTW-installatie en 9 zonnepanelen, wat zorgt voor lage energielasten en een aangenaam binnenklimaat.
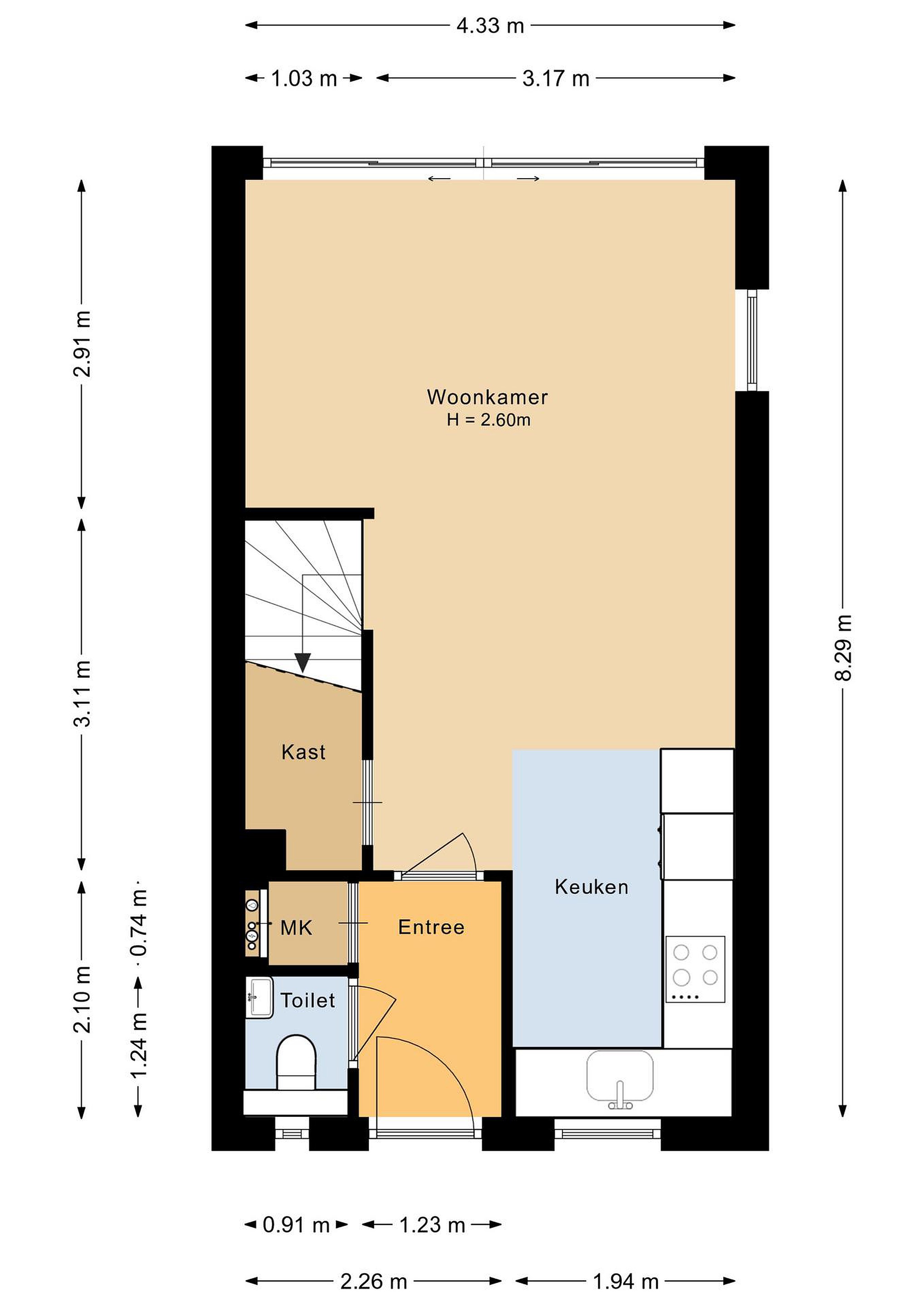
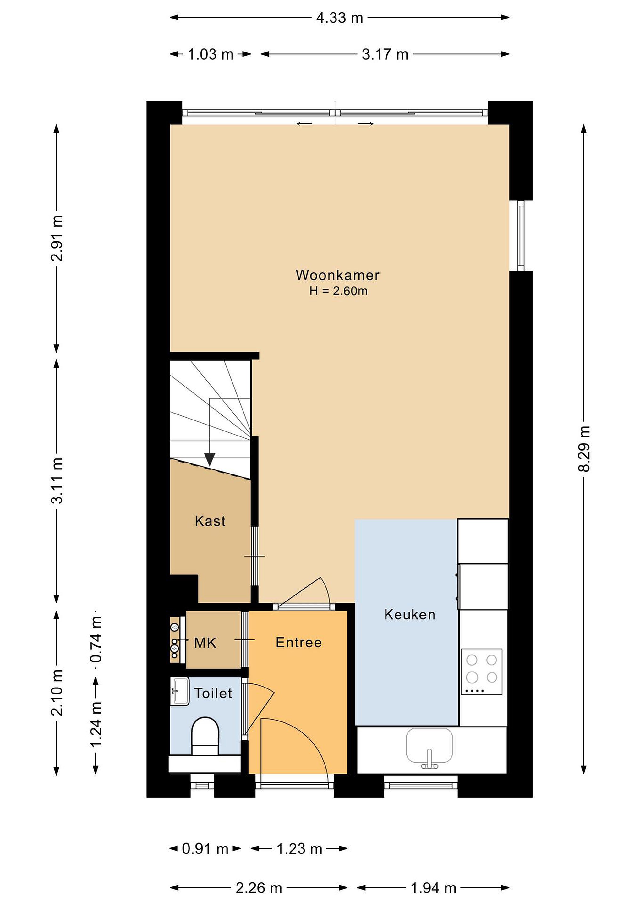
Begane grond
Entree/hal met meterkast en moderne, betegelde toiletruimte voorzien van een hangend closet met inbouwreservoir, fonteintje en mechanische ventilatie. Vanuit de hal is er toegang tot de woonkamer met open keuken.

De lichte woonkamer is afgewerkt met een fraaie pvc-vloer, voorzien van vloerverwarming en mechanische ventilatie. De wanden zijn sausklaar afgewerkt en naar eigen wens verder te personaliseren. Tevens bevindt zich hier de trapopgang naar de eerste verdieping. Middels schuifdeuren is er directe toegang tot de achtertuin.

De open keuken aan de voorzijde van de woning is uitgevoerd in een moderne hoek- en eilandopstelling en biedt veel bergruimte dankzij de aanwezige onder- en bovenkasten. De keuken is voorzien van diverse inbouwapparatuur, waaronder een inductiekookplaat, RVS afzuigkap, combi oven/magnetron, koel-/vriescombinatie, vaatwasser en spoelbak. Ook de keuken is voorzien van vloerverwarming en mechanische ventilatie en afgewerkt met een pvc-vloer.

Eerste verdieping
De slaapkamers zijn verzorgd afgewerkt met een moderne pvc-vloer wat zorgt voor een rustige en eigentijdse uitstraling. Daarnaast zijn alle kamers voorzien van mechanische ventilatie voor een prettig binnenklimaat. De wanden zijn sausklaar afgewerkt.

De luxe, volledig betegelde badkamer is compleet en hoogwaardig uitgevoerd. Deze beschikt over een ruime inloopdouche, comfortabel ligbad, hangend closet met inbouwreservoir, een stijlvol wastafelmeubel, designradiator en regelbare mechanische ventilatie. Een fijne, moderne ruimte waar comfort en uitstraling samenkomen.





Tweede verdieping
De overloop geeft toegang tot een royale en lichte zolderkamer met dakkapel, een volwaardige extra ruimte die perfect geschikt is als slaapkamer, werkruimte of hobbykamer.

Daarnaast beschikt deze verdieping over een tweede badkamer met derde toilet, ideaal voor gezinnen of gasten.

Verder is er een separate technische ruimte aanwezig met de opstelling van de WTW-installatie, de omvormer voor de zonnepanelen en de aansluitingen voor wasapparatuur, netjes uit het zicht en functioneel ingericht.


Tuin
De fraai aangelegde achtertuin is voorzien van een terras en gazon en vormt een heerlijke plek om te ontspannen. Dankzij de ligging op het noordoosten geniet je hier van de ochtend- en vroege middagzon.

Achterin de tuin bevindt zich een vrijstaande houten berging van ca. 12 m2, voorzien van elektra. De tuin is daarnaast praktisch bereikbaar via een eigen zij-ingang.

Details
Deze instapklare en energiezuinige woning combineert modern wooncomfort met een praktische indeling en een centrale ligging nabij het centrum van Breda. Dankzij de hoogwaardige afwerking, meerdere badkamers en de splinternieuwe staat is dit een ideale woning voor degene die zonder zorgen willen verhuizen.

Een unieke kans om te wonen in een nieuwe, duurzame woning. Plan snel een bezichtiging en ervaar het zelf.

- Een woonoppervlakte van 90m2
- Deze nieuwbouwwoning is zeer degelijk gebouwd met gebruikmaking van louter hoogwaardige materialen;
- Optimaal geïsoleerd, vermoedelijk is. energielabel A of beter (begin april wordt deze opgemaakt)
- Alle verdiepingen zijn voorzien van vloerverwarming;
- De woning is voorzien van hardhouten kozijnen met HR++ beglazing;
- De woning beschikt over 9 zonnepanelen op het dak;
- De woning is voorzien van een WTW systeem en een warmtepomp
- woning wordt met "sausklaar" afgewerkte wanden opgeleverd
- Alle vloeren zijn voorzien van een PVC vloer

Lees meer

Verkoopgeschiedenis

Aangeboden sinds
19 maart 2026
Verkoopdatum
18 april 2026
Looptijd
één maand

Kenmerken

Overdracht

Prijs per m2
€ 4.833
Aangeboden sinds
19 maart 2026
Status
Verkocht
Aanvaarding
In overleg

Bouw

Soort woonhuis
Eengezinswoning, twee-onder-een-kap woning
Soort bouw
Bestaande bouw
Bouwjaar
2026
Soort dak
Zadeldak
Staat van onderhouden binnen
Uitstekend
Staat van onderhouden buiten
Uitstekend

Oppervlakte en inhoud

Perceeloppervlakte
150 m2
Inhoud van de woning
333 m3
Oppervlakte externe bergruimte
12 m2

Indeling

Aantal kamers
4
Aantal slaapkamers
3
Aantal woonlagen
3
Voorzieningen
Tuin, ventilatie

Buitenruimte

Balkon
Nee
Schuur/berging
Nee

Maandlasten berekenen

De maandlasten voor je woning bestaan uit meer dan alleen de hypotheeklasten. Hieronder vind je een overzicht van de bijkomende kosten en lasten. Zo weet je precies wat je huis per maand gaat kosten. En met de handige vergelijkers kun je ook nog eens snel de beste deals sluiten!

  • Kaart
  • Streetview