Verkocht

Pastoor Tilmanstraat 30 5281 EG Boxtel

133m2
Wonen
5
Kamers
285m2
Perceel
1988
Bouwjaar
In de wijk ‘Het Gescheurd Hemd’ in het kerkdorp Lennisheuvel staat deze gemoderniseerde en verduurzaamde twee-onder-een-kapwoning.

De woning beschikt over vloerverwarming, een keuken uit 2024, kunststof kozijnen met HR++ glas, 12 zonnepanelen en energielabel B. Daarnaast zijn er een inpandige garage, een brede oprit en meerdere overdekte terrassen.

Lennisheuvel is een prettige, actieve gemeenschap met basisschool De Klim en diverse voorzieningen. Het NS-station, de A2, het centrum van Boxtel en natuurgebied De Kampina zijn binnen enkele minuten bereikbaar.

Woonoppervlakte 133 m2, overige inpandige ruimte 17 m2, inhoud 450 m3, 5 kamers, waarvan 3 slaapkamers, externe bergruimte van ca. 8 m2 en een perceel van 285 m2. Bouwjaar 1988.


Begane grond
Entree/hal met meterkast en garderobehoek.

De ruime woonkamer heeft een zithoek aan de straatzijde. In het portaal bevinden zich de moderne toiletruimte en de opgaande trap. Aan de achterzijde ligt de eethoek met een vrije doorloop naar de keuken (2024), voorzien van een hardstenen werkblad, koffiecorner, koel-vriescombinatie, bar met uitzicht op de tuin en veel kastruimte.

In de aanbouw de tweede keukenruimte-hoofdkeuken (2024), met o.a. een flexibele inductiekookplaat, een smart-oven en vaatwasser.
In dit deel van de keuken de achterom en deur naar de ruime inpandige garage met witgoedaansluitingen en sectionaal garagedeur.

De begane grond is afgewerkt met een moderne tegelvloer met vloerverwarming, echte houten lamellen als binnen-zonwering.

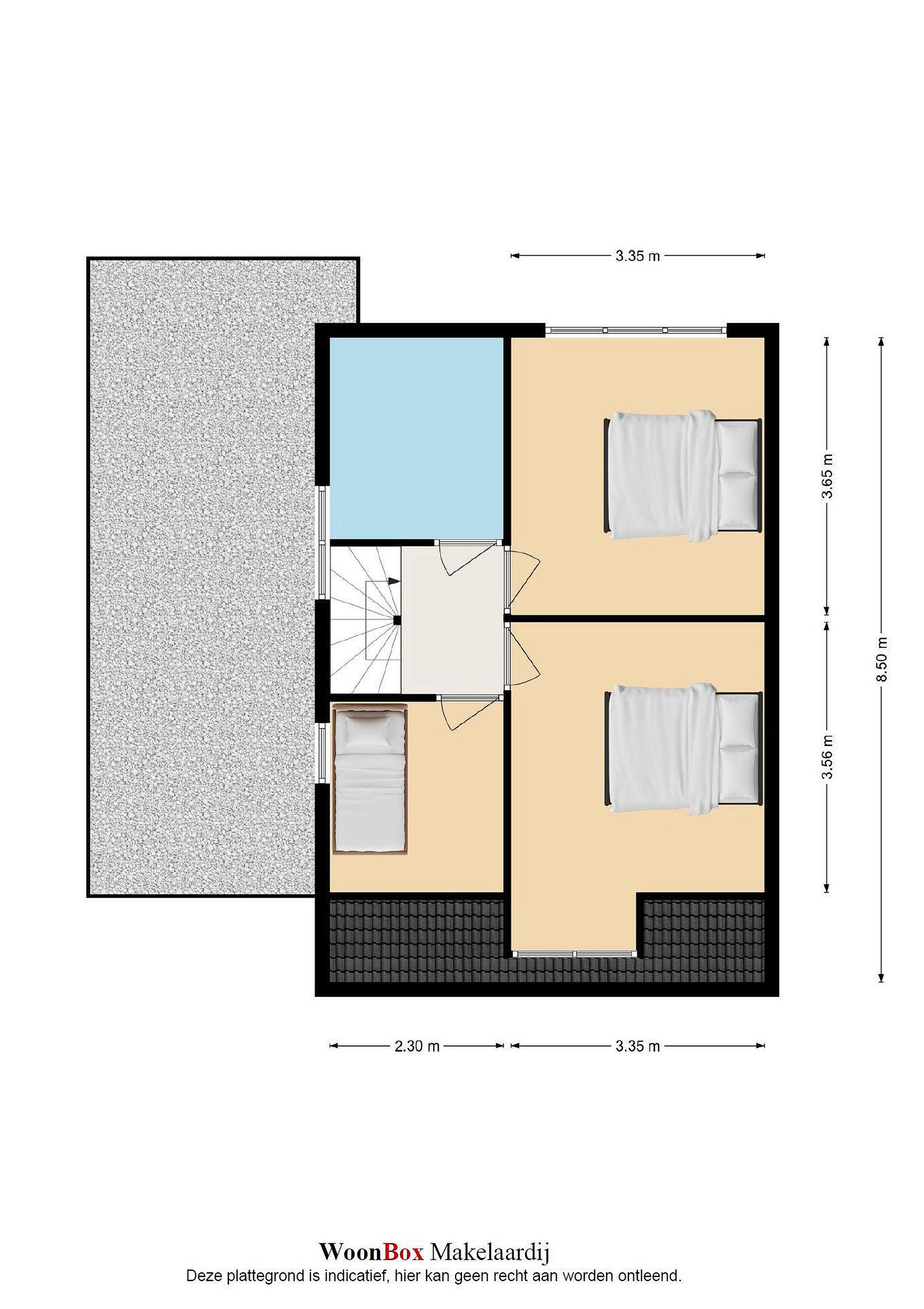
Eerste verdieping
Ruime en lichte overloop met drie slaapkamers, waarvan de ouderslaapkamer is voorzien van lambrisering en een royaal wandmeubel.
De badkamer beschikt over een wastafel, toilet, ruim hoekbad, designradiator en wasmachineopstelling.
De slaapkamers en overloop zijn afgewerkt met een grenen houten vloer.

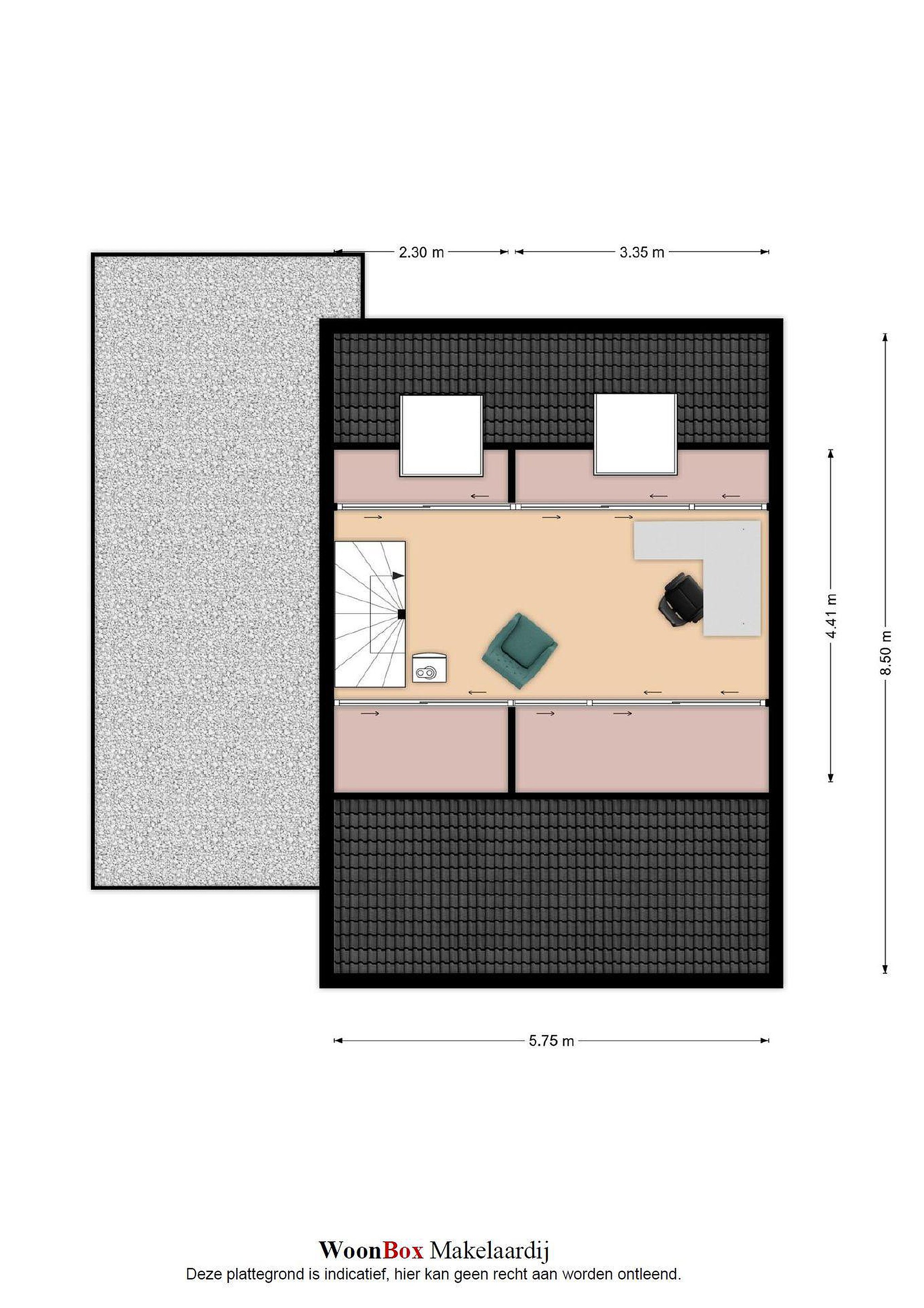
Tweede verdieping
Ruime multifunctionele zolderverdieping, geschikt als extra slaapkamer of werkruimte, met bergruimte onder de schuine kap.
Daarnaast bevinden zich hier de afzuigunit voor de centrale afzuiging en de HR-combiketel.
De verdieping is voorzien van twee Velux dakramen met horren, plissé gordijnen en verduistering.

Tuin
De woning is mooi gelegen aan een rustig, doodlopend hoekje in de wijk.
Verzorgde voortuin met een brede oprit en achterom met poort naar de fraai aangelegde achtertuin. Aluminium overkapping met screens direct aan de woning, een schuur met zolder en aangrenzend overdekt terras met prieel.
De achtertuin is gunstig gelegen op het westen.

Details
De woning is goed onderhouden en doorlopend gemoderniseerd, zoals te noemen:
- 2024:keukenmeubels inclusief hoogwaardige apparatuur
- 2024: uitbreiding groepenkast 3x25A t.b.v. de slimme laadpaal(Wallbox) en inductiekookplaat
- 2023: HR-combiketel
- 2021: 12 zonnepanelen

WoonBox voor uw WoonWens

Lees meer

Verkoopgeschiedenis

Aangeboden sinds
28 januari 2026
Verkoopdatum
24 maart 2026
Looptijd
2 maanden

Kenmerken

Overdracht

Prijs per m2
€ 3.759
Aangeboden sinds
28 januari 2026
Status
Verkocht
Aanvaarding
In overleg

Bouw

Soort woonhuis
Eengezinswoning, twee-onder-een-kap woning
Soort bouw
Bestaande bouw
Bouwjaar
1988
Soort dak
Zadeldak
Staat van onderhouden binnen
Goed
Staat van onderhouden buiten
Goed

Oppervlakte en inhoud

Perceeloppervlakte
285 m2
Inhoud van de woning
450 m3
Oppervlakte externe bergruimte
8 m2
Oppervlakte overige inpandige ruimten
17 m2

Indeling

Aantal kamers
5
Aantal slaapkamers
4
Aantal woonlagen
3
Voorzieningen
Tuin, ventilatie, glasvezel

Buitenruimte

Balkon
Nee
Schuur/berging
Nee

Maandlasten berekenen

De maandlasten voor je woning bestaan uit meer dan alleen de hypotheeklasten. Hieronder vind je een overzicht van de bijkomende kosten en lasten. Zo weet je precies wat je huis per maand gaat kosten. En met de handige vergelijkers kun je ook nog eens snel de beste deals sluiten!

  • Kaart
  • Streetview