Klippenweg 13 7622 EV Borne

171m2
Wonen
6
Kamers
388m2
Perceel
1992
Bouwjaar
Vrijstaand familiehuis op ideale centrumlocatie, Klippenweg 13, Borne
Gelegen aan een beschut hofje, op korte afstand van het levendige centrum van Borne, vind je deze verrassend ruime vrijstaande eengezinswoning uit 1992. Met een riante woonoppervlakte van maar liefst 171 m2 en een perceel van 388 m2 komt het aan ruimte absoluut niet tekort. Dit woonhuis biedt alles wat gezinnen en ouderen zich kunnen wensen: flexibiliteit, veel leefruimte en volop mogelijkheden om wonen, werken en ontspannen te combineren.

Wonen met comfort, tot in de puntjes verzorgd
Zodra je het huis binnenstapt, valt meteen de royale indeling op. De lichte woonkamer vormt het hart van de woning en grenst direct aan een hobbykamer met zicht op de tuin. Ideaal voor wie creatief bezig wil zijn, of misschien wel met een boek wil wegdromen.

Deze woning leent zich bij uitstek voor aanpassing tot toekomstbestendig wonen.
De begane grond is zo ingedeeld dat de mogelijkheid tot slapen en baden gelijkvloers gerealiseerd kan worden.
Aan de achterzijde bevindt zich nog een tweede kamer die gebruikt kan worden als werk- of studeerruimte. Of misschien wordt dit de slaapkamer of speelkamer voor de (klein)kinderen? Hier zijn werkelijk tal van opties denkbaar.

Ruimte voor iedere levensfase
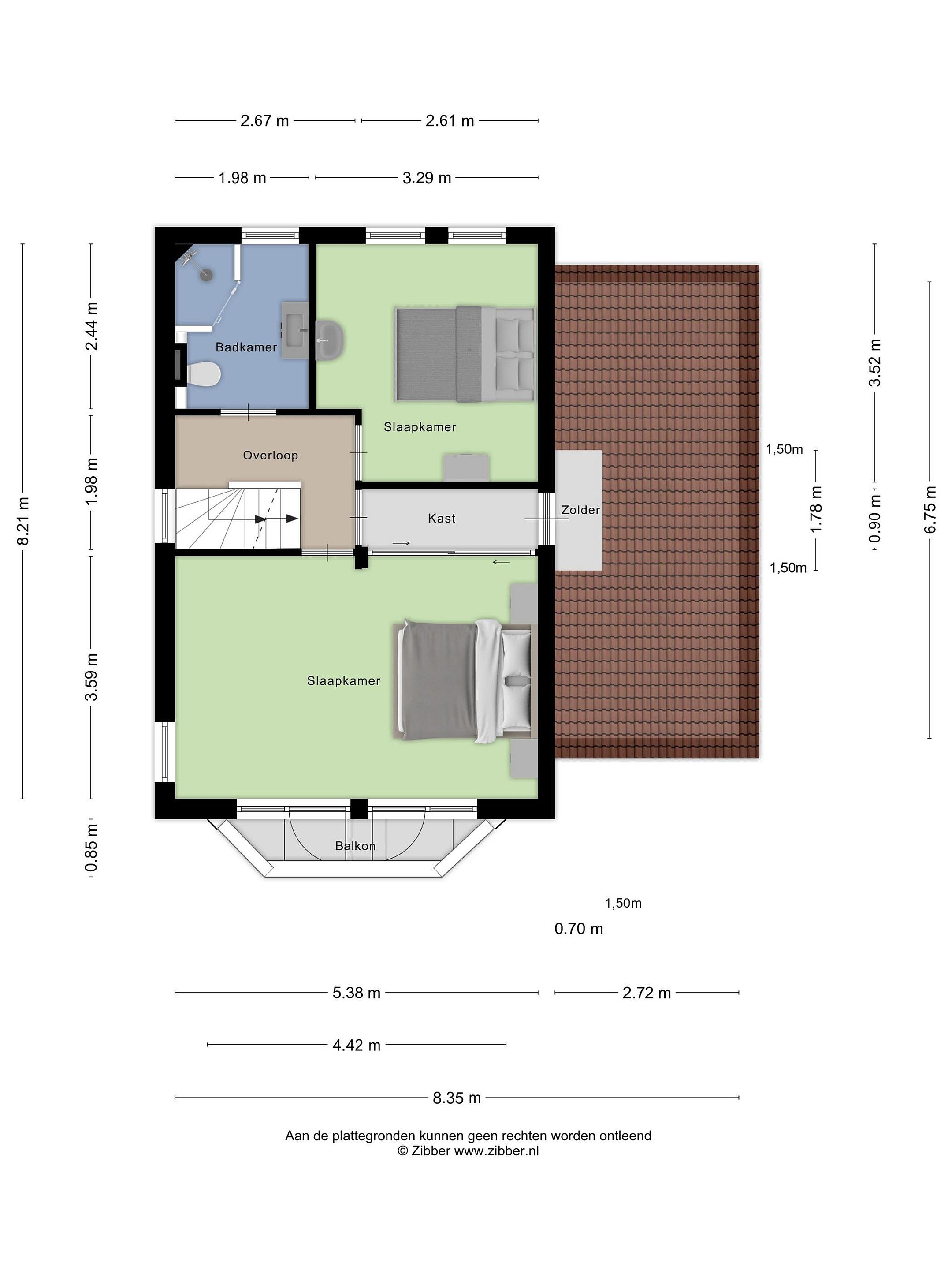
Op de eerste verdieping tref je twee slaapkamers aan, beide ruim bemeten. De slaapkamer aan de voorzijde heeft een balkon. Waar nu twee kamers zijn, waren het er oorspronkelijk drie. Een kleine ingreep volstaat om hier weer drie aparte ruimtes van te maken. Dat maakt deze woning heerlijk flexibel. De royale bergzolder op de eerste verdieping zorgt ervoor dat al je spullen veilig én uit het zicht opgeborgen kunnen worden.
Op de tweede verdieping kom je boven voor nóg meer ruimte; hier is eenvoudig een vierde slaapkamer te realiseren.

Multifunctionele garage en thuiswerken in stijl
De inpandige garage met eigen ingang geeft toegang tot zowel de werkkamer als de bijkeuken.
De garage is momenteel ingericht als praktische werkruimte en biedt volop gelegenheid om bijvoorbeeld een kantoor aan huis te realiseren. Door de ruime opzet is deze plek net zo goed geschikt voor praktijk aan huis of een mooie fitnessruimte.

Een groene oase rondom het huis
Buiten genieten kan hier in volle glorie. De woning beschikt over een diepe voor-, zij- en achtertuin. Ruim, groen en met privacy.

Aan de Klippenweg woon je in alle rust, maar geniet je wel van het gemak van het centrum en het NS-station op loopafstand. Of je nu zin hebt in een ochtendwandeling, een snelle boodschap, of de trein richting Hengelo of Almelo wilt pakken, alles ligt binnen handbereik.

Even praktisch, wie passen hier thuis?
Starters, jonge gezinnen, groeiende families, senioren… Eigenlijk voelt iedereen zich hier direct thuis. Dankzij de flexibiliteit in de indeling groeit het huis moeiteloos met je mee. Kinderen kunnen ravotten in de tuin, terwijl de ouders hun eigen werkplek of atelier hebben. Ouderen kunnen hier de luxe van gelijkvloers wonen realiseren. Kortom: deze woning is het perfecte thuis voor elke levensfase!


Begane grond
Hal/entree, trapopgang, meterkast, toiletruimte met toilet en fonteintje, toegang tot de ruime woonkamer.
De woonkamer heeft een schuifpui naar de tuin.
Hobbykamer en toegang tot de half open keuken met inbouwapparatuur.
Toegang tot de bijkeuken met kastenwand en wasmachine- en drogeraansluiting.
Via de bijkeuken kun je zowel naar de tuin als naar de werkruimte met eigen ingang. (Voorheen garage).
Vanuit de werkruimte te bereiken kantoorruimte. Ook de kantoorruimte heeft toegang tot de tuin.


Eerste verdieping
Overloop waaraan op dit moment 2 slaapkamers.
De slaapkamer aan de voorzijde kan op simpele wijze opgedeeld worden in de oorspronkelijke 2 slaapkamers.
In de nieuwe situatie hebben beide kamers toegang tot het balkon.
De badkamer heeft een inloopdouche, wastafelmeubel, wandcloset en designradiator.

Tweede verdieping
Deze verdieping is ingedeeld in twee delen. Van het eerste gedeelte is een slaap/logeerkamer gecreëerd.
Het tweede gedeelte is een open zolderruimte waar de opstelling van de Cv installatie is geplaatst.
Dit gedeelte biedt veel bergruimte.

Tuin
Aan de voorzijde van de woning is een diepe voortuin met ernaast de oprit met carport.
De ruime groene zij- en achtertuin biedt veel privacy en is gelegen op het zuidwesten.

Details
- Vrijstaande gezinswoning op prachtige locatie ;
- 171 m2 woonoppervlakte;
- Maar liefst 639 m3 inhoud;
- perceel van 388 m2;
- Hobbykamer én tweede werk/studeerkamer op de begane grond;
- Mogelijkheid tot slapen en baden op de begane grond;
- Garage in gebruik als werkruimte, mogelijkheid tot kantoor aan huis;
- Twee slaapkamers eerste verdieping (terug te brengen tot drie);
- Slaapkamer voorzijde met balkon;
- Zeer ruime bergzolder eerste verdieping;
- Tweede verdieping waarop een slaap/logeerkamer;
- Tweede gedeelte met opstelling CV installatie;
- Ruime voor-, zij- en achtertuin;
- Oprit met eigen parkeergelegenheid;
- Achterzijde woonkamer met schuifpui;
- Zonnescherm achterzijde begane grond;
- Energielabel C;
- Energie prestatie advies en bouwkundige keuring beschikbaar;
- Rustig gelegen aan een hof, op vijf minuten lopen van het station en centrum.

De ouderdomsclausule en de niet bewoningsclausule zijn van toepassing.

In de koopakte zal een waarborgsom / bankgarantie van 10% van de koopprijs worden opgenomen.

De maten zijn indicatief. Groottes en oppervlaktes zijn berekend met behulp van een GeoSLAM scanner, uitgevoerd door een extern buro, gebaseerd op de NEN 2580. Bovenstaande objectinformatie en bijlagen zijn met de groots mogelijke zorgvuldigheid samengesteld. Toch bestaat er de mogelijkheid dat er fouten en /of onvolledigheden in voorkomen. Voor de juistheid hiervan kan zowel door verkopers als door Twentse Woningmakelaar geen aansprakelijkheid worden aanvaard en aan de vermelde gegevens geen rechten worden ontleend. Indien bepaalde informatie voor u van wezenlijk belang is dan adviseren wij u deze op juistheid te controleren.
Verkoper heeft te allen tijde het recht van gunning. De koop is pas definitief wanneer beide partijen de koopovereenkomst getekend hebben.

Keurmerk Eerlijk Bieden

Twentse Woningmakelaar beschikt over het keurmerk Eerlijk Bieden.
Eerlijk Bieden is het eerste keurmerk voor makelaars dat een eerlijk biedproces garandeert aan zowel de verkoper als de woningzoeker.
AVG OK-Vignet.
Wij voldoen aan specifieke gestelde voorwaarden welke getoetst is door een onafhankelijke instantie en gaan zorgvuldig met jouw persoonsgegevens om.





Lees meer

Kenmerken

Overdracht

Prijs per m2
€ 4.094
Aangeboden sinds
21 november 2025
Status
Beschikbaar
Aanvaarding
In overleg

Bouw

Soort woonhuis
Eengezinswoning, vrijstaande woning
Soort bouw
Bestaande bouw
Bouwjaar
1992
Soort dak
Zadeldak
Staat van onderhouden binnen
Goed
Staat van onderhouden buiten
Goed

Oppervlakte en inhoud

Perceeloppervlakte
388 m2
Inhoud van de woning
639 m3
Oppervlakte externe bergruimte
8 m2
Oppervlakte gebouwgebonden buitenruimten
16 m2
Oppervlakte overige inpandige ruimten
1 m2

Indeling

Aantal kamers
6
Aantal slaapkamers
3
Aantal woonlagen
3
Voorzieningen
Tuin, schuur/berging, ventilatie, alarmsysteem, glasvezel, buitenzonwering, airconditioning, rookkanaal, schuifpui

Buitenruimte

Balkon
Nee
Schuur/berging
Ja

Maandlasten berekenen

De maandlasten voor je woning bestaan uit meer dan alleen de hypotheeklasten. Hieronder vind je een overzicht van de bijkomende kosten en lasten. Zo weet je precies wat je huis per maand gaat kosten. En met de handige vergelijkers kun je ook nog eens snel de beste deals sluiten!

  • Kaart
  • Streetview