Verkocht

Van Waningstraat 5 2665 KJ Bleiswijk

84m2
Wonen
4
Kamers
133m2
Perceel
1930
Bouwjaar

PRACHTIGE INSTAPKLARE JAREN '30 TUSSENWONING
Van Waningstraat 5 is gelegen in één van de oudste straatjes van Bleiswijk. Een rustig straatje om de hoek van de Dorpsstraat met jaren '30 woningen en diepe tuinen. Deze tussenwoning is in 2021 volledig gerenoveerd inclusief dakopbouw, nieuwe achtergevel en betonvloer met isolatie. De woning heeft een sfeervolle woonkamer, open keuken, drie slaapkamers, badkamer, twee toiletten, berging en een zonnige achtertuin op het zuiden. Gelegen vlakbij de winkels in de Dorpsstraat, speeltuinen, basiszorg, basisschool en kinderopvang. Verder zijn alle voorzieningen op fietsafstand te bereiken, zoals middelbare scholen, recreatiegebied de Rottemeren en sportvoorzieningen. Bleiswijk is centraal gelegen ten opzichte van grote steden, in enkele autominuten ben je op de N209 richting Rotterdam, Station Lansingerland en de A12 richting Den Haag en Utrecht. Je hoeft alleen de verhuisdozen te pakken om te gaan genieten!

Indeling:
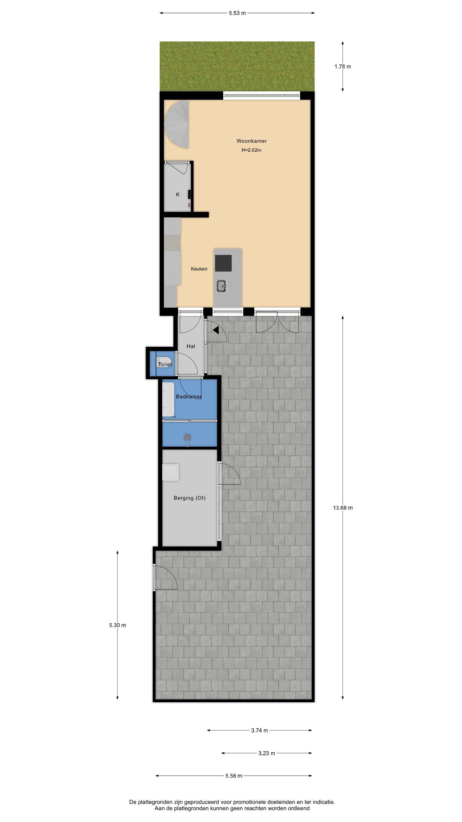
Entree van de woning is aan de achterzijde. Van Waningstraat 5 en 7 lopen via de rechterzijde de poort in, langs de woningen naar de achtertuin. Via de schutting kom je in de zonnige achtertuin van bijna 14 meter diep. Deze is verzorgd aangelegd met borders en straatwerk. Vanaf het voorjaar kun je hier al genieten uit de wind in het zonnetje, omdat de tuin op het zuiden is gelegen. Binnenkomst in de hal, met toegang tot de badkamer, het toilet en de woonvertrekken. De groepenkast vind je in de woonkamer in de vaste kast die gebruikt wordt als extra berging. De woonkamer (5.23 x 4.00) is gelegen aan de voorzijde van de woning met aan de achterzijde de open keuken met eetkamer (5.23 x 3.21). De keuken is in parallel-opstelling geplaatst met heel veel bergruimte door het grote kookeiland. Deze is voorzien van een inductiekookplaat met afzuiging, spoelbak en vaatwasser. In de wandkasten vindt je de combi-oven, koelkast en een handige koffiecorner. Vanuit de hal bij binnenkomst heb je de toegang tot de volledig betegelde badkamer (2.41 x 1.96) met ruime inloopdouche en dubbel wastafelmeubel, en het aparte toilet. De woonvertrekken en badkamer zijn voorzien van een prachtige duurzame tegelvloer met vloerverwarming, de wanden en plafond van glad stucwerk en betoncire.

Via de open trap in de woonkamer kom je op de kleine overloop direct bij de deur naar alle vertrekken op de eerste verdieping. De hoofdslaapkamer (3.57 x 3.99) is aan de voorzijde gelegen en is voorzien van een dakkapel en airco. Vanuit hier heb je toegang tot de twee slaapkamers aan de achterzijde (3.22 x 2.02 en 3.22 x 3.06). Waarvan er nu één in gebruik is als werkkamer en één als inloopkast. In de inloopkast-kamer is een tweede toilet (1.65 x 0.92) gemaakt waar je nog een wastafel kunt plaatsen en een vaste kast (1.82 x 1.53) voor bergruimte met de CV ketel. Deze verdieping is voorzien van een mooie laminaat afwerkvloer, de wanden en plafond van glad stucwerk.

De ruime berging (3.46 x 1.96) in de achtertuin biedt ruimte voor de fietsen, opslag en op dit moment zit de wasmachine-aansluiting hier. Aan de voorzijde van de woning heb je nog een klein stukje voortuin (1.78 x 5.58) welke nu omheind is met een haag.

Bijzonderheden:
* Bouwjaar 1930
* Totale oppervlakte woning circa 84 m2
* Perceel van 133 m2 in eigendom
* Energielabel C
* Dak- en vloerisolatie (2021)
* Vloerverwarming in de woonkamer, keuken en badkamer
* Airco in de hoofdslaapkamer
* CV ketel Remeha (2021)
* Mechanische ventilatie (2022)
* Begane grondvloer vervangen voor beton (2021)
* Elektra en meterkast vervangen inclusief nieuwe 3-fase aansluiting (2021)
* Houten kozijnen met HR++ glas (schilderwerk 2024)
* Overal glad stucwerk wanden en plafonds en nieuwe vloeren
* Nieuwe keuken (2021)
* Elektrische screen's slaapkamers achterzijde
* Dakopbouw achterzijde en achtergevel vernieuwd (2021)
* Badkamer vernieuwd (2012)
* Goede ligging vlakbij winkels, speeltuinen, scholen, kinderopvang, openbaar vervoer, snelwegen

Verkoopcondities;
* Oplevering in overleg
* Notaris keuze aan koper, voorkeur gelegen in de omgeving van Bleiswijk
* Ongeacht de perfecte staat van onderhoud is de ouderdoms- en materialenclausule van toepassingen bij woningen ouder dan 30 jaar

Voor alle woningen geldt dat de in tekst vermelde afmetingen een indicatie zijn en daar kunnen geen rechten aan worden ontleend. De werkelijke oppervlakte kan afwijken van hetgeen in detail op de website is vermeld. De woning is ingemeten volgens de meetinstructie welke verplicht is voor makelaars en taxateurs. Ondanks de zorg die door de makelaar aan de correcte invoer van de gegevens besteed wordt, kan de makelaar niet verantwoordelijk gehouden en/of aansprakelijk gesteld worden voor eventuele fouten, omissies en/of onvolkomenheden in de gegevens.
Lees meer

Verkoopgeschiedenis

Aangeboden sinds
30 januari 2026
Verkoopdatum
9 maart 2026
Looptijd
één maand

Kenmerken

Overdracht

Prijs per m2
€ 5.060
Aangeboden sinds
30 januari 2026
Status
Verkocht
Aanvaarding
In overleg

Bouw

Soort woonhuis
Eengezinswoning, tussen woning
Soort bouw
Bestaande bouw
Bouwjaar
1930
Soort dak
Zadeldak
Staat van onderhouden binnen
Uitstekend
Staat van onderhouden buiten
Uitstekend

Oppervlakte en inhoud

Perceeloppervlakte
133 m2
Inhoud van de woning
308 m3
Oppervlakte overige inpandige ruimten
6 m2

Indeling

Aantal kamers
4
Aantal slaapkamers
3
Aantal woonlagen
2
Voorzieningen
Tuin, schuur/berging, ventilatie, glasvezel, buitenzonwering, airconditioning

Buitenruimte

Balkon
Nee
Schuur/berging
Ja

Maandlasten berekenen

De maandlasten voor je woning bestaan uit meer dan alleen de hypotheeklasten. Hieronder vind je een overzicht van de bijkomende kosten en lasten. Zo weet je precies wat je huis per maand gaat kosten. En met de handige vergelijkers kun je ook nog eens snel de beste deals sluiten!

  • Kaart
  • Streetview