Oranjetuin 15 2665 VJ Bleiswijk

120m2
Wonen
4
Kamers
127m2
Perceel
2005
Bouwjaar
NIEUW IN VERKOOP
Ik nodig je van harte uit om na het zien van de volledige presentatie (foto's, teksten, video, plattegronden) een afspraak te maken voor een bezichtiging. De persoonlijke bezichtigingen vinden plaats op donderdag 11 december, vrijdag 12 december en zaterdag 13 december 2025. Graag reageren per mail of via een online reactieformulier op internet, waarna er telefonisch contact met je wordt opgenomen.

INSTAPKLARE TUSSENWONING MET DRIE SLAAPKAMERS EN ENERGIELABEL A+
Oranjetuin 15 is gelegen in de Oranjebuurt van Bleiswijk, vlak bij de winkels en tegenover basiszorgvoorzieningen in een doodlopende straat. De woning heeft een lichte uitgebouwde woonkamer met open keuken, drie slaapkamers, badkamer en een bergvliering. De vrijstaande stenen berging staat in de achtertuin met achterom. De achtertuin is gelegen op het noordoosten, maar diep genoeg om achterin in de zon te zitten. De woning is volledig geïsoleerd en voorzien van zonnepanelen, wat resulteert in een energielabel A+. Ligging vlak bij de winkels, speeltuinen, basiszorg, basisschool en kinderopvang. Verder zijn alle voorzieningen binnen Bleiswijk op loop- of fietsafstand te bereiken zoals middelbare scholen, recreatiegebied de Rottemeren en sportvoorzieningen. Bleiswijk is centraal gelegen ten opzichte van grote steden, in enkele autominuten ben je op de N209 richting Rotterdam, Station Lansingerland en de A12 richting Den Haag en Utrecht. Alle opgelegde verplichtingen vanuit de nieuwbouw in 2005 zijn niet meer van toepassing. Kortom, dit is jouw kans om je spullen te pakken en te verhuizen naar deze instapklare woning!

Indeling:
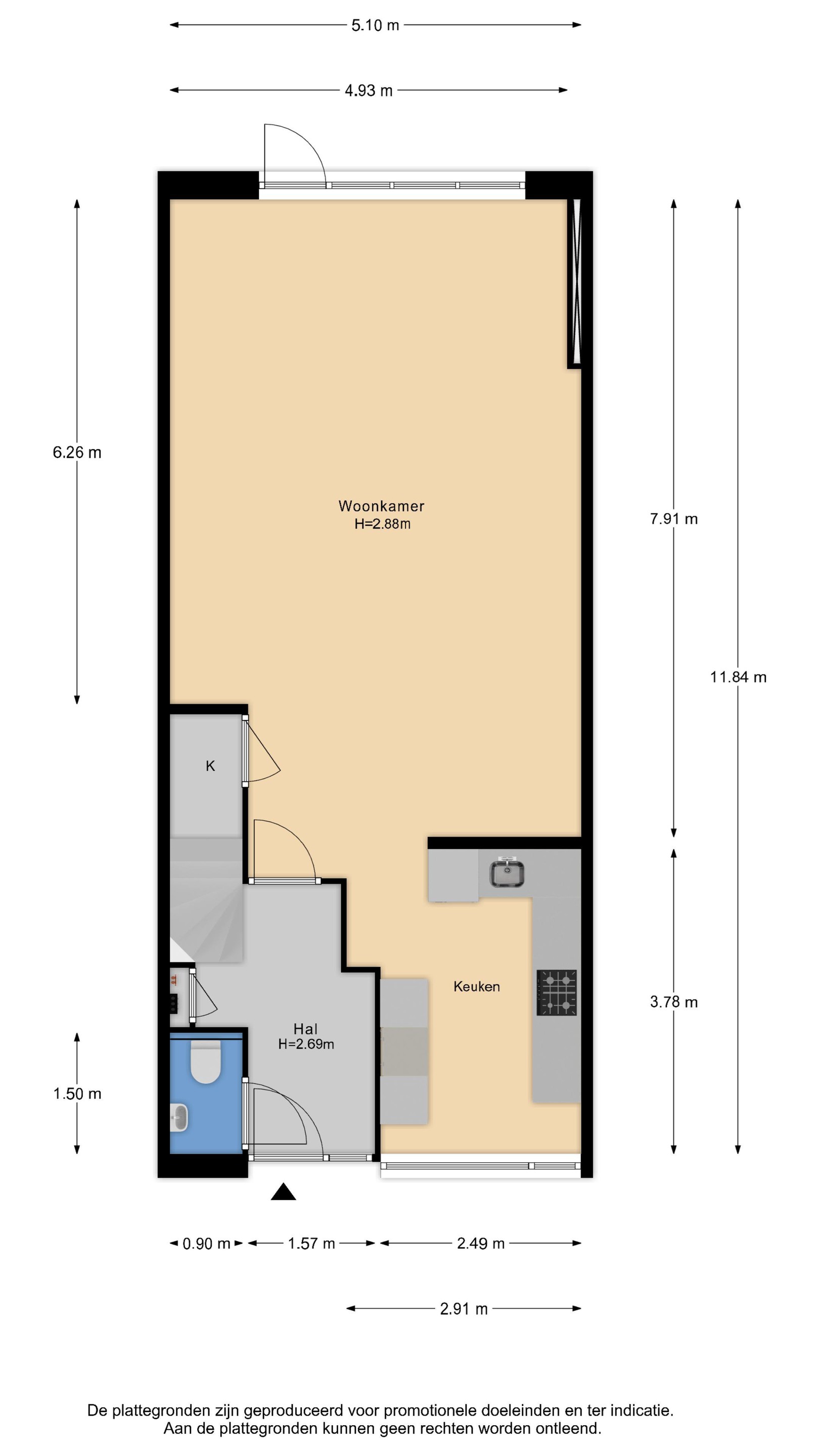
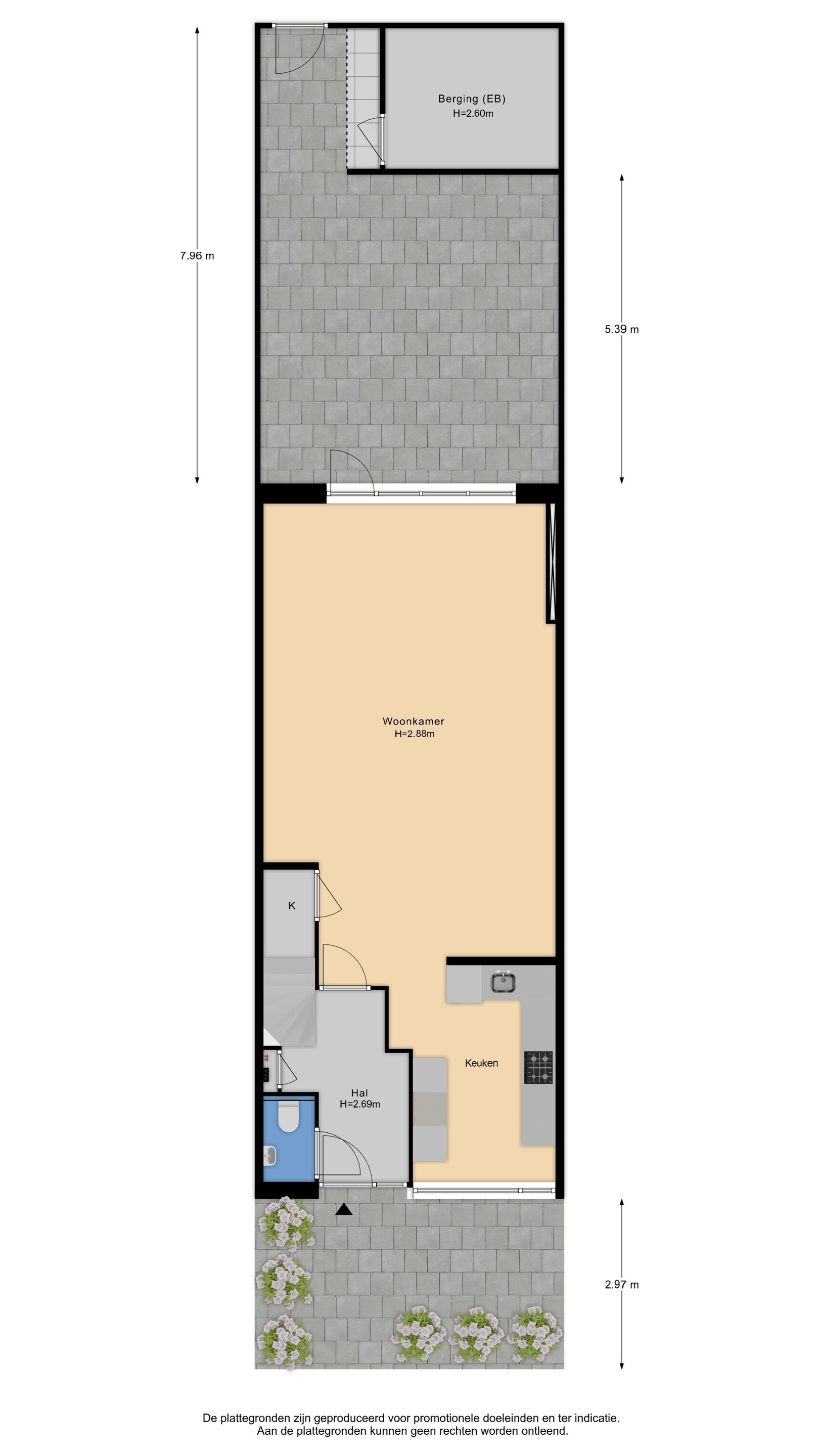
Via de voortuin kom je bij de entree van de woning waar je de hal met meterkast in stapt. De hal geeft toegang tot het toilet, de trapopgang naar de 1e verdieping en de woonkamer. Het toilet is deels betegeld en voorzien van een wandcloset en fonteintje. De lichte woonkamer (5.10 x 7.91) grenst aan de achtertuin. De open keuken (2.49 x 3.78) is gelegen aan de voorzijde en vernieuwd in 2017. De keuken is voorzien van diverse inbouwapparatuur zoals een inductiekookplaat, afzuigkap, combi-oven, Quooker en vaatwasser. De Amerikaanse koel-vriescombinatie is ter overname beschikbaar. De gehele begane grond is voorzien van een nette pvc-afwerkvloer met vloerverwarming. Via de achterdeur kom je in de achtertuin (7.96 x 5.20) op het noordoosten. Deze heeft een stenen berging (3.02 x 2.45) en achterom.

De overloop op de eerste verdieping geeft toegang tot twee slaapkamers en de vergrootte badkamer. Deze verdieping is voorzien van een laminaat afwerkvloer. Aan de achterzijde is de grootste slaapkamer gelegen (5.10 x 3.59). Deze heeft een op maat gemaakte kastenwand en twee grote dakramen. Er is de mogelijkheid om hier een dakkapel te plaatsen. Aan de voorzijde de tweede slaapkamer (3.06 x 2.72). De in 2017 vernieuwde badkamer (3.74 x 1.69) is volledig betegeld en voorzien van vloerverwarming, whirlpool ligbad, douchecabine, wastafelmeubel en tweede toilet.

Via de vaste trap kom je op de overloop van de tweede verdieping, welke toegang geeft tot de derde slaapkamer (3.02 x 4.51). Zowel de slaapkamer als de overloop zijn voorzien van een dakraam aan de achterzijde. Er is de mogelijkheid om de dakramen te vervangen voor een dakkapel waardoor je veel ruimtewinst kunt pakken. Op de overloop zijn de Cv-ketel en box van de mechanische ventilatie gesitueerd met opstelplaats voor de wasmachine en droger. Achter de knieschotten is ruimte voor extra berging. Deze verdieping is voorzien van een laminaat afwerkvloer.

De vliering (5.10 x 2.31) heeft een nokhoogte van 1.58 en is ideaal voor de opslag van spullen die je niet zo vaak nodig hebt.

Bijzonderheden:
* Bouwjaar 2005
* Volle eigendom
* Gebruikersoppervlakte wonen circa 121 m2
* Aanbouw woonkamer en pvc-afwerkvloer van augustus 2024
* Achtertuin op het noordoosten
* Houten kozijnen met HR++ glas
* Buitenschilderwerk van 2021 en aanbouw van 2024
* CV Ketel Intergas bouwjaar juli 2024 (eigendom)
* Energielabel A+, dus voordeel met jouw nieuwe hypotheek afsluiten
* 10 zonnepanelen 2022 (eigendom)
* Begane grond en badkamer voorzien van vloerverwarming
* Mechanische ventilatie 2018
* Badkamer en keuken vernieuwd in juni 2017
* De perfecte ligging, dichtbij voorzieningen zoals winkels, scholen, speeltuinen, basiszorg, uitvalswegen en recreatie

Verkoopcondities;
* Verplichtingen (verkoop en bewoning) van 2005 zijn niet meer van toepassing
* Oplevering in overleg
* Notaris keuze aan koper, voorkeur gelegen in de omgeving van Bleiswijk

Voor alle woningen geldt dat de in tekst vermelde afmetingen een indicatie zijn en daar kunnen geen rechten aan worden ontleend. De werkelijke oppervlakte kan afwijken van hetgeen in detail op de website is vermeld. De woning is ingemeten volgens de meetinstructie welke verplicht is voor makelaars en taxateurs. Ondanks de zorg die door de makelaar aan de correcte invoer van de gegevens besteed wordt, kan de makelaar niet verantwoordelijk gehouden en/of aansprakelijk gesteld worden voor eventuele fouten, omissies en/of onvolkomenheden in de gegevens.
Lees meer

Kenmerken

Overdracht

Prijs per m2
€ 4.632
Aangeboden sinds
27 november 2025
Status
Beschikbaar
Aanvaarding
In overleg

Bouw

Soort woonhuis
Eengezinswoning, tussen woning
Soort bouw
Bestaande bouw
Bouwjaar
2005
Soort dak
Samengesteld dak
Staat van onderhouden binnen
Uitstekend
Staat van onderhouden buiten
Uitstekend

Oppervlakte en inhoud

Perceeloppervlakte
127 m2
Inhoud van de woning
466 m3
Oppervlakte externe bergruimte
7 m2
Oppervlakte overige inpandige ruimten
0 m2

Indeling

Aantal kamers
4
Aantal slaapkamers
3
Aantal woonlagen
4
Voorzieningen
Tuin, schuur/berging, ventilatie, glasvezel, buitenzonwering, dakraam

Buitenruimte

Balkon
Nee
Schuur/berging
Ja

Maandlasten berekenen

De maandlasten voor je woning bestaan uit meer dan alleen de hypotheeklasten. Hieronder vind je een overzicht van de bijkomende kosten en lasten. Zo weet je precies wat je huis per maand gaat kosten. En met de handige vergelijkers kun je ook nog eens snel de beste deals sluiten!

  • Kaart
  • Streetview