Verkocht OV

Bitgumerdyk 31 9041 CB Berltsum

71m2
Wonen
3
Kamers
247m2
Perceel
1932
Bouwjaar
Sfeervol wonen met karakter, ruimte én mogelijkheden! Aan de Bitgumerdyk 31 in Berltsum staat deze charmante 2-onder-1-kapwoning met een karakteristieke uitstraling en een verrassend praktische indeling. Met onder andere een lichte woonkamer, twee slaapkamers, een diepe achtertuin met garage en berging én een bijkeuken, is dit een woning die volop kansen biedt om naar eigen smaak te moderniseren en geheel naar eigen wens in te richten.

De indeling is als volgt:

Begane grond
Via de entree kom je binnen in de hal met meterkast, toilet en toegang tot de kelder. Vanuit hier loop je door naar de woonkamer. De woonkamer is een sfeervolle ruimte met veel lichtinval dankzij de erker aan de voorzijde. De grote ramen geven een mooi zicht naar buiten en zorgen voor een fijne, lichte leefruimte.
Aansluitend bevindt zich de keuken. Deze is eenvoudig uitgevoerd in een rechte opstelling en voorzien van basisapparatuur. Er is ruimte voor een kleine eetopstelling, waardoor het een praktische plek is voor dagelijks gebruik. Tegelijk biedt de ruimte volop mogelijkheden om hier een moderne keuken naar eigen wens te realiseren. Vanuit de keuken bereik je de bijkeuken. Deze ruimte is ideaal voor witgoed, extra opslag en beschikt over een achterdeur naar de tuin.

Kelder
Vanuit de hal is de kelder bereikbaar. Ideaal als provisieruimte of voor extra opslag.

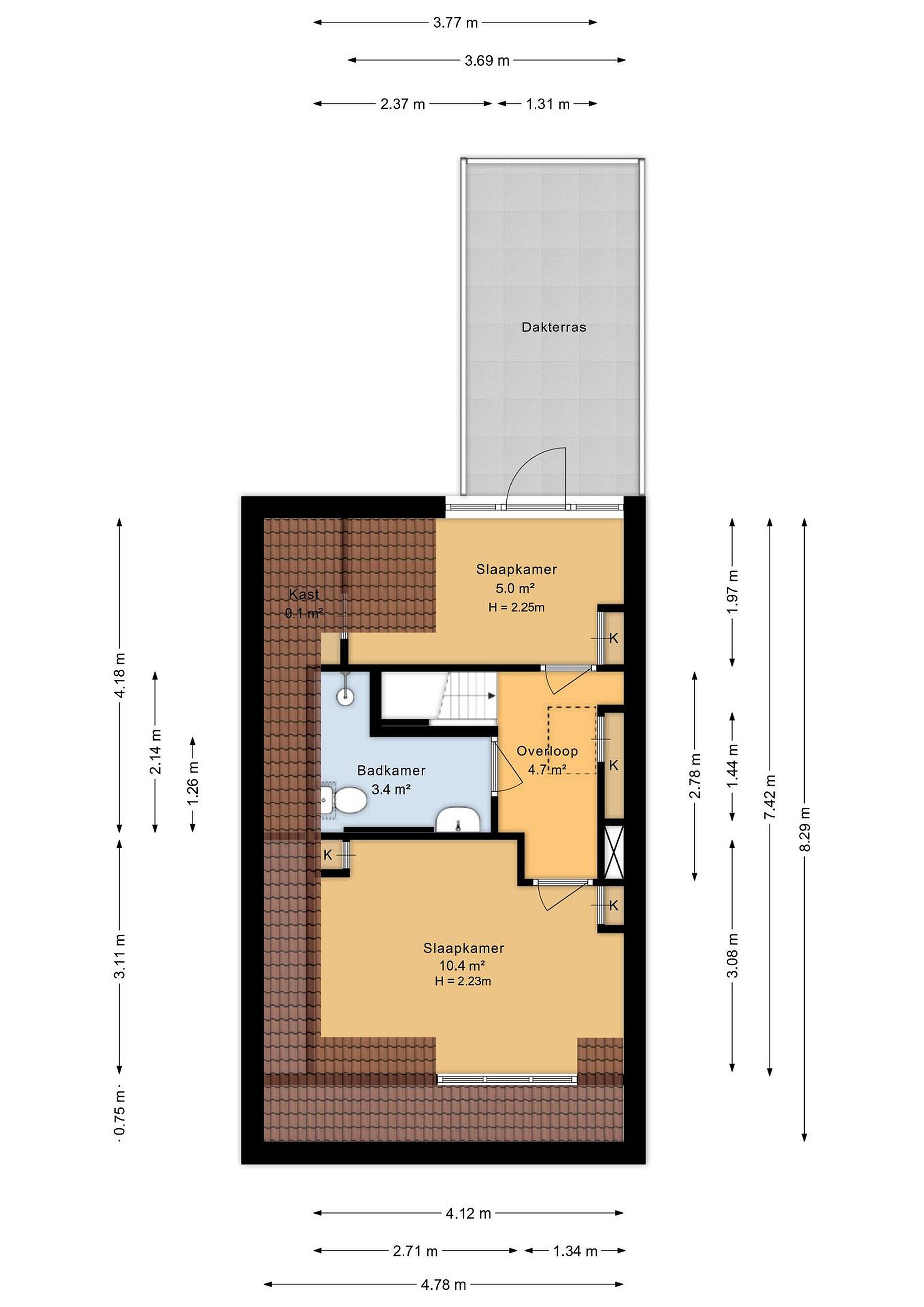
Eerste verdieping
De overloop geeft toegang tot twee slaapkamers en de badkamer. De grootste slaapkamer is ruim van opzet en beschikt over praktische inbouwkasten. De tweede slaapkamer is compacter, maar prima geschikt als kinder-, werk- of logeerkamer. De badkamer is voorzien van een douche, tweede toilet en wastafel.

Zolder
Via een vlizotrap bereik je de zolderverdieping. Deze ruimte is geschikt als bergzolder.

Buiten
De achtertuin is verzorgd aangelegd met een combinatie van groen en bestrating en is gelegen op het noordoosten. Hier kun je heerlijk zitten en genieten van rust en privacy. Achterin de tuin bevinden zich een garage en een separate berging, ideaal voor opslag, hobby of het stallen van fietsen. De voortuin geeft het geheel een vriendelijke en karaktervolle uitstraling. Daarnaast beschikt de woning over een dakterras, waar je heerlijk vrij zit en kunt genieten van het uitzicht over de omgeving. Een fijne extra plek om buiten te ontspannen.

Berltsum is een levendig dorp met diverse voorzieningen zoals winkels, scholen en sportverenigingen. Daarnaast ben je binnen 10 autominuten al in Leeuwarden of Harlingen. Een fijne woonplek voor wie rustig wil wonen met alles binnen handbereik.

Goed om te weten:
+ 2-onder- kapwoning met karakter
+ Lichte woonkamer met erker
+ Twee slaapkamers
+ Kelder en zolder aanwezig
+ Garage en berging in de tuin
+ Muur- en vloerisolatie (2023)
+ Buitenschilderwerk (2024)
+ Naar eigen smaak te moderniseren
+ Ouderdomsclausule van toepassing

Een woning met sfeer en potentie op een mooie plek. Zie jij hier jouw nieuwe thuis? Plan dan gerust een bezichtiging!

Deze informatie is door ons met de nodige zorgvuldigheid samengesteld, veelal aan de hand van de door verkoper aan ons ter hand gestelde gegevens en tekeningen. Onzerzijds wordt echter geen enkele aansprakelijkheid aanvaard voor enige onvolledigheid, onjuistheid of anderszins, dan wel de gevolgen daarvan. Dit geldt voor onder meer de opgegeven maten, oppervlakten, isolatie en ouderdom van technische installaties.
Lees meer

Kenmerken

Overdracht

Prijs per m2
€ 3.463
Aangeboden sinds
17 april 2026
Status
Verkocht onder voorbehoud
Aanvaarding
In overleg

Bouw

Soort woonhuis
Eengezinswoning, twee-onder-een-kap woning
Soort bouw
Bestaande bouw
Bouwjaar
1932
Soort dak
Schilddak
Staat van onderhouden binnen
Goed
Staat van onderhouden buiten
Goed

Oppervlakte en inhoud

Perceeloppervlakte
247 m2
Inhoud van de woning
292 m3
Oppervlakte externe bergruimte
35 m2
Oppervlakte gebouwgebonden buitenruimten
11 m2
Oppervlakte overige inpandige ruimten
3 m2

Indeling

Aantal kamers
3
Aantal slaapkamers
2
Aantal woonlagen
4
Voorzieningen
Tuin, schuur/berging, buitenzonwering, dakraam

Buitenruimte

Balkon
Nee
Schuur/berging
Ja

Maandlasten berekenen

De maandlasten voor je woning bestaan uit meer dan alleen de hypotheeklasten. Hieronder vind je een overzicht van de bijkomende kosten en lasten. Zo weet je precies wat je huis per maand gaat kosten. En met de handige vergelijkers kun je ook nog eens snel de beste deals sluiten!

  • Kaart
  • Streetview